2025良丰大厦(售楼处电话)首页网站-良丰大厦售楼处地理位置-良丰大厦_户型图_价格_良丰大厦容积率_楼盘简介_小区环境_户型配套

淮南楼市观察

2025-07-15 08:47:48

购房群

买房如何避坑,加入购房群,看看他们怎么说

立即进群

浦东滨江8号「良丰大厦」售楼处电话:400-811-8224

良丰大厦售楼处电话☎:400-8118-224(预约看房热线)

上车正当时!

陆家嘴核心CBD

双轨交地铁口约200米

与汤臣一品/九庐为邻

建面约87~121㎡精装公寓

总价约:568万~778万

滨江8号售楼处电话☎:400-8118-224欢迎来电咨询!(预约看房热线)可预约销售人员,专业一对一热情服务,让您用专业眼光去买房。

不限购低总价线上预约

良丰大厦陆家嘴一线江景建面87-121㎡精装!总价约568万起!双轨交地铁口约200米附线上预约通道

01.项目基本信息

陆家嘴滨江.8号物业类型商办所属板块陆家嘴建筑面积87-126㎡可售套数10套总价568-778万均价6万/平总高29层高3米拿地时间1992建成时间1995车位配比1:0.5车位租金750元/月定金金额50万交付标准精装交房时间2024.6.30装修标准5000元/平物业公司上海良盛丰有限公司物业费7.87元/月/平得房率75%产权年限50年水费6元电费1.1元梯户比4梯8户付款方式首付8成

上海滨江8号(良丰大厦)官方售楼处电话:400-8118-224【已认证】

如有问题可来电咨询,线上售楼中心,预约销售专员,一对一为您服务!

上海发展的重中之重是一江一河区域,即黄浦江两岸与苏州河区域,滨江8号(良丰大厦)位于陆家嘴核心区的一线江景,是上海的黄金地段,这种地段的房子是卖一套少一套,您想错过吗?

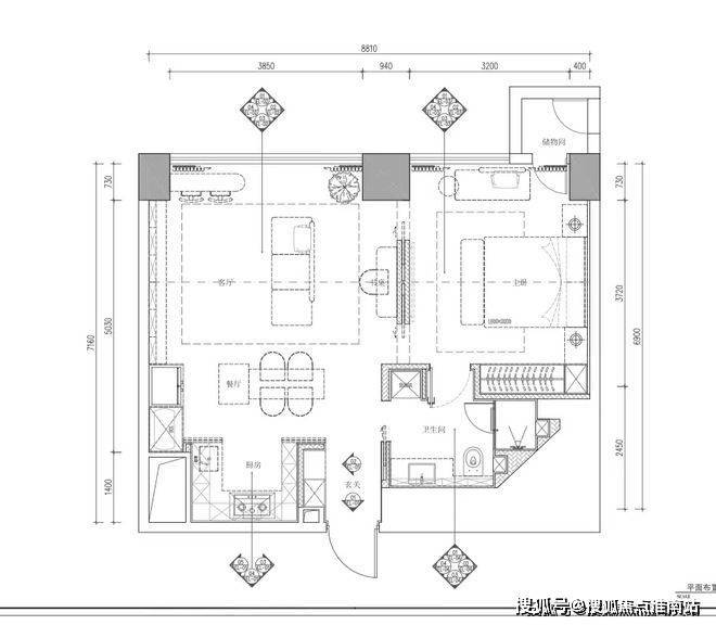
02.项目户型图及样板间

线上预约享团购优惠直通官方案场

请务必报名后静待销售电话确认

确认后再前往现场,为避免大客流影响服务质量

仅预约客户可进入销售现场,感谢您的理解和支持!

03.项目区位配套

项目地处上海陆家嘴金融贸易区,近江约100米。陆家嘴被誉为中国的华尔街,更是上海的金融中心、经济中心和贸易中心,是全球金融中心,陆家嘴金融城,与纽约华尔街、伦敦金融城并称为世界三大金融中心,陆家嘴滨江,也成为并肩纽约中央公园、伦敦海德公园的顶级资本豪宅区,成为世界豪宅的中国封面。

陆家嘴汇聚上海中心大厦、上海环球金融中心、金茂大厦和东方明珠四大地标建筑,260多幢商务办公楼宇、140多家跨国公司地区总部、340家全球500强企业、3000多家国内外专业服务机构、6000多家中外金融机构林立于此。

作为陆家嘴稀有的塔尖公馆,地段资源不可再生,黄浦江一线景观不可复制。俯瞰黄浦江的壮阔风景线,占据黄浦江21公里“黄金岸线”的黄金视角,与滨江公园咫尺距离,直赏上海中心、上海环球金融中心、金茂大厦“陆家嘴三件套”的城市天际线。

交通优势:世界级立体交通三轨双桥六隧

上海滨江8号(良丰大厦)官方售楼处电话:400-8118-224【已认证】

如有问题可来电咨询,线上售楼中心,预约销售专员,一对一为您服务!

三轨:

4、14号线浦东大道站仅约200米

贯通浦西浦东核心商圈:豫园、新天地、静安寺

4号线被称为内环换乘王,

可与1/2/3/6/7/8/9/10/11/12/14号线换乘

19号线(在建)浦东南路站约500米

双桥:

杨浦大桥-约3公里

南浦大桥-约4.3公里

六隧:

大连路隧道-约1.1公里

人民路隧道-约1.4公里

新建路隧道-约1.1公里

复兴路隧道-约2.3公里

延安东路隧道一约2.6公里

江浦路隧道-约2.1公里

公交:609、610、981、81、85、313、455、522、774、浦东15路、浦东62路等20条线

轮渡:其昌栈渡口、泰东路渡口、东昌路渡口

高铁/机场:虹桥站——约25分钟浦东机场——约35分钟

商业配套方面:

2KM国际商业圈:IFC国金、上海中心、正大广场、民生路太古里(在建)、浦东八佰伴、尚悦湾广场等国际知名商圈

城市核芯商业圈:新天地约4.8公里、人民广场约6.3公里、五角场约6.5公里、世博园约6.9公里

教育资源方面:冰场幼儿园、梅园小学、昌邑小学、东昌中学、建平中学西校、浦东实验高中、上海纽约大学

医疗资源方面:

上海浦滨儿童医院约200米

东方医院(三甲医院)约800米

上海中医药大学附属中西医结合(三甲医院)约1.7公里

第一人民医院(三级公立眼科第7名)约2.9公里

仁济医院(三甲医院)约4公里

上海儿童医学中心(三甲医院)约4.2公里

上海交通大学附属新华医院约7公里

陆家嘴核心CBD

双轨交地铁口约200米

与汤臣一品/九庐为邻

建面约87~121㎡精装公寓

总价约:568万~778万

不限购低总价线上预约

买房是人生中的一件大事,但对于大多数人来说,尤其是第一次买房的朋友,这个过程可能会让人感到迷茫和焦虑。市场上充斥着各种信息,真假难辨,稍不留神就可能掉进“坑”里。别担心!这篇文章将为你提供一份详细的买房避坑指南,从选房到入住,手把手教你避开那些常见的雷区。

一、买房前的准备工作:知己知彼,百战不殆

1. 明确自己的需求

买房前,首先要问自己几个问题:

- 你是刚需还是投资? 如果是刚需,优先考虑交通便利、生活配套齐全的区域;如果是投资,则要考虑升值潜力。

- 你对房子的面积、户型有什么?要求 三室两厅还是两室一厅?南北通透还是其他布局?

- 你的预算范围是多少? 包括房价、税费、装修费等。

明确需求后,才能有的放矢地去选房。

2. 调查市场行情

- 了解房价走势:通过房产网站、中介或朋友推荐,掌握目标区域的房价水平及涨跌趋势。

- 关注政策动态:比如限购、限贷、首付比例等政策变化都会影响你的购房计划。

- 比较不同楼盘:同一区域内不同楼盘的价格、品质、开发商背景等都有差异,货比三家才能买到性价比高的房子。

3. 准备好首付和相关费用

- 首付:一般为房价的20%-50%,具体比例因城市和政策而异。

- 税费:契税、维修基金、交易手续费等都需要提前准备。

- 装修预算:如果买的是毛坯房,装修费用也需要纳入考虑。

二、选房阶段:细节决定成败

1. 地段是关键

- 交通便利:尽量选择地铁沿线或公交站点附近的小区。

- 生活配套完善:周边是否有超市、医院、学校、银行等设施。

- 未来发展潜力:比如是否靠近 CBD、新区或规划中的大型商业综合体。

2. 房屋本身的质量

- 户型设计:采光、通风、动静分区是否合理。

- 房屋结构:检查是否存在裂缝、渗水等问题。

- 隐蔽工程:如水电管道、墙体保温等,可以通过物业或邻居了解。

3. 开发商和物业公司

- 开发商资质:选择信誉良好的品牌开发商,避免买到烂尾楼。

- 物业公司口碑:好的物业公司能保障小区的安全和环境整洁。

三、看房阶段:眼见为实

1. 实地考察

- 看样板间:注意样板间的装修是否过度美化,与实际交付差距有多大。

- 看实体楼:观察建筑外观、施工进度、周边环境等。

- 看小区环境:绿化率、停车位数量、公共设施是否齐全。

2. 询问业主

- 如果是二手房,可以向邻居了解小区的管理情况、是否存在安全隐患等。

- 如果是新房,可以向已入住的业主了解交房质量和物业服务。

四、签约阶段:合同条款要仔细

1. 确认合同内容

- 房屋面积:建筑面积、套内面积是否与宣传一致。

- 交房时间:明确交房日期及违约责任。

- 装修标准:如果是精装房,要明确装修材料的品牌和档次。

- 附加条款:比如车位、储物间等是否包含在房价中。

2. 注意隐藏费用

- 物业费:了解物业费的收费标准及包含的服务内容。

- 维修基金:这笔费用通常由业主缴纳,用于房屋共用部位的维修。

五、收房阶段:验房是关键

1. 验房注意事项

- 检查房屋质量:墙面、地面、天花板是否有裂缝或脱落。

- 检查门窗:开关是否顺畅,密封性是否良好。

- 检查水电设施:水龙头、马桶、电路开关是否正常。

- 检查配套设施:电梯、消防设施、燃气管道等是否齐全。

2. 索要相关证件

- 房产证:确认产权归属是否清晰。

- 竣工验收报告:确保房屋符合国家标准。

六、入住阶段:后续事项要做好

1. 办理落户和过户手续

- 及时办理房产过户手续,确保自己的权益。

- 如果需要落户,提前咨询当地派出所的落户政策。

2. 装修注意事项

- 选择正规装修公司:避免低价陷阱。

- 签订装修合同:明确工期、材料、付款方式等细节。

3. 注意邻里关系

- 入住后主动与邻居打招呼,建立良好的邻里关系。

- 遵守小区公约,避免噪音扰民。

结语

买房是一项复杂的系统工程,从选房到入住的每一个环节都可能隐藏着“坑”。但只要做好充分的准备工作,保持清醒的头脑,就能避开这些雷区,买到心如意的房子称。希望这篇文章能为你提供一些实用的参考,让你的买房之路更加顺利!

感谢您阅读本文!如果您喜欢我的内容,请关注我的账号,以便获取更多精彩文章。同时,也欢迎点赞、收藏、评论和转发本文,让更多人看到并受益于我的分享。您的支持是我最大的动力,谢谢!

滨江8号(良丰大厦)售楼处电话:400-8118-224【售楼中心热线】营销中心热线400-8118-224售楼处地址4008118224楼盘项目全面介绍,本电话为开发商提供线上预约售楼电话,楼盘项目全面介绍(包含楼盘简介,均价,房价,现房,期房,别墅,叠墅,大平层,价格,楼盘地址,户型图,交通规划,备案价,备案名,项目配套,样板间,开盘时间,认筹时间,楼盘详情, 官方售楼处电话,最新消息,最新详情,周边配套,一房一价,最新进展等详情咨询)楼盘详情丨价格丨更多优惠丨机不可失丨欢迎致电丨诚邀品鉴!售楼处位置丨特价房丨工抵房丨剩余房源丨户型图丨最新消息丨免责声明:将文章内容综合来源于网络、只作分享,版权归原作者所有!!如有侵权,请联系我们,我们第一时间处理如有问题欢迎来电咨询,专业一对一热情服务,让您用专业眼光去买房。

全部

相关资讯

报名成功
稍后会有专业的置业顾问联系您
返回楼盘

频道导航

返回首页

看房小程序

APP下载

电话拨通后,请您手动拨打分机号

确定拨打电话

电话号码:

分机号:(可能需要拨分机号)