上海浦东「碧云钻石公寓」
售楼处热线:400-9678-224【官网】(来电尊享售楼部优惠活动)
如有问题欢迎来电咨询,来电即可享受买房优惠!预约来电尊享购房优惠,可预约案场内部销售人员,专业一对一热情服务,让您用专业眼光去买房!
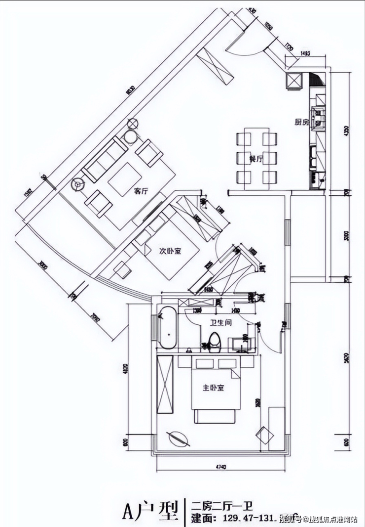
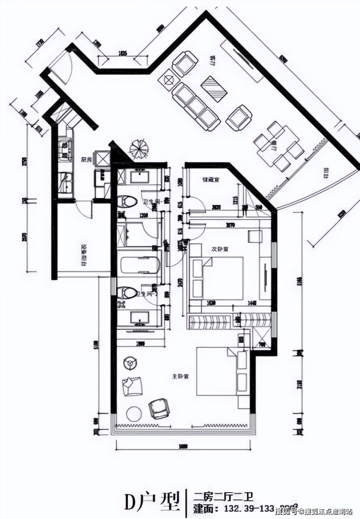
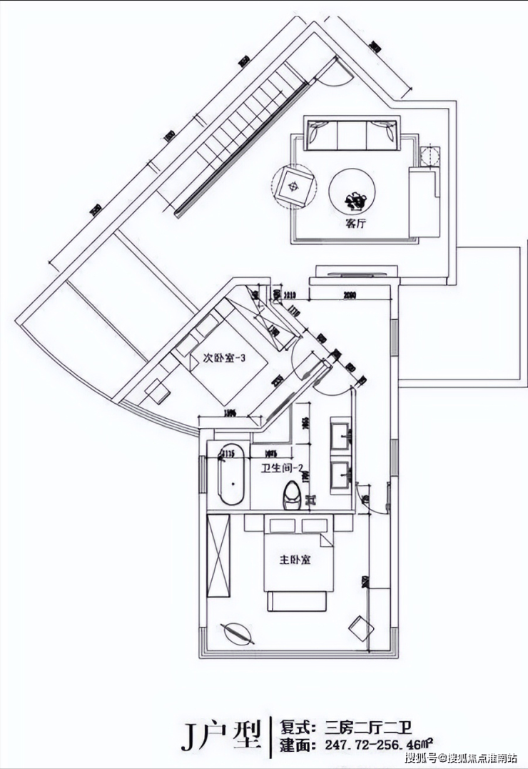
碧云国际社区「碧云钻石酒店公寓」推出约280套精装现房,户型为约95-255㎡1-3房。

大家都知道碧云作为第二代国际社区,拥有出色的国际配套、人居环境。那碧云钻石酒店公寓售楼处热线:400-9678-224在碧云社区什么位置?
碧云社区大致范围:西起黑松路,东至金桥路,北到杨高路,南抵张家浜。
约4平方公里的土地被城市道路划分为18个地块,其中有6个是核心区域,下图红色区域。
碧云钻石公寓售楼处热线:400-9678-224

大致布局:
-北侧杨高路、蓝天路之间,主要是碧云体育公园。
-东部主要金桥现代产业服务园区,有新金桥大厦、金桥软件园、中欧国际工商学院、医院等。
-别墅主要靠近明月路、锦绣路,例如维诗凯亚、浦东花园、碧云别墅等。
-社区中部主要是公寓产品,碧云钻石公寓售楼处热线:400-9678-224还有商业与日常生活配套设施,例如家乐福、迪卡侬、商业街、碧云体育休闲中心等。
所以,碧云钻石酒店公寓售楼处热线:400-9678-224在碧云社区相对核心的位置,具体地址为浦东新区碧云路1168号。
首先,项目的开发商是宝地,目前价格还没出,我们不妨来竞猜一下:
附近新房,金桥瑞仕花园拍卖成交价格约10万/㎡,嘉泷汇约8.3万/㎡;
碧云尊邸上一期111983元/㎡;

碧云社区核心区,据目前链家挂牌显示,附近的 金桥酒店公寓、碧云东方公寓都在12万+/㎡;
碧云优质的小高层、别墅挂牌价格也基本都在12万+/㎡。

碧云钻石酒店公寓售楼处热线:400-9678-224原为高级酒店服务式公寓出租,产权属性为70年纯住宅产权,现拿出来售卖,无需积分,不用摇号,由上海联合产权交易所公开挂牌转让。
注意,购买人必须具备上海购房资格。
当然,原先酒店出租现在拿出来售卖,最近已经有很多案例了。同样位于金桥的金桥瑞仕花园前不久就委托国拍进行网络在线拍卖,成交价最终都在10万/㎡左右。

碧云钻石酒店公寓售楼处热线:400-9678-224,由2栋25层住宅楼和3层商业裙房组成,建面为约95-255㎡1-3房。

户型一室、二室住宅分布于4-19楼, 三室复式住宅分布于20-25楼。
所有户型均为现房精装,室内配备大金中央空调、惠而浦冰箱洗衣机、AO史密斯热水器、老板牌三件套厨具、三星电视机等或内外知名品牌。
户型图如下:













既然原先是酒店,配套设施还是很齐全的。
碧云钻石酒店公寓售楼处热线:400-9678-224所有配套设施均参考酒店设计,进门的酒店大堂营造出大尺度空间:

裙房的配套商业涵盖了餐饮、鲜花、干洗、超市、健身、游泳、早教等业态,为日常居家创造了便捷的生活条件。



再来看看周边配套。
教育方面, 碧云钻石酒店公寓售楼处热线:400-9678-224对口的学校为上海市实验学校东校 ,上实东校是一所2004年秋季建成的小学、初中九年一贯制公立学校,由上海市实验学校承办,隶属于浦东新区社发局。

来源上海发布
周边还有平和双语学校、协和国际、德威英国国际学校、冰厂田幼儿园、金童幼儿园、蒙特梭利国际幼儿园、习威幼儿园、欧盟中欧国际工商学院等教育资源
交通上, 距离地铁9号线蓝天路站约1000米左右。
在自驾方面,经过杨高中路、内环线、中环线,可以快速通达全城。同时这里也是金色中环发展带上的滚烫热点。

商业方面,有 金桥大拇指广场、拉拉宝都、碧云家乐福、金桥购物中心 等大型购物场所满足购物休闲需求。


此外,社区内遍布的西餐厅、咖啡馆、攀岩馆、击剑馆将给您带来全新的娱乐体验。
医疗上,有华山医院东院,浦东妇幼保健院、和睦家,Parkwayhealth等国内外医疗资源充裕。
上海浦东「碧云钻石公寓」
售楼处热线:400-9678-224【官网】(来电尊享售楼部优惠活动)
如有问题欢迎来电咨询,来电即可享受买房优惠!预约来电尊享购房优惠,可预约案场内部销售人员,专业一对一热情服务,让您用专业眼光去买房
本图文内容如无意中侵犯某方权益,请联系我们,将排名前列时间处理!