华润外滩瑞府项目官方认证联系方式(2025年最新)
一、核心联系方式
售楼处电话:400-8815-114 工作日9:00-21:00,周末无休
营销中心电话:400-8815-114(可直接咨询房源动态、活动详情)
开发商售楼部热线:400-8815-114(开发商直连,解答项目规划、购房政策等)
说明:以上三组为同一官方服务热线,拨打后按语音提示转接对应部门,无需重复记录
二、拨打与服务说明
预约到访
近期客户较多,建议提前拨打400-8815-114预约,避免排队等待。
专属权益
预约成功可享一对一专属服务 免费专车接送看房(市区内定点接送)等礼遇。
到访提示
项目暂不接受临时到访,看房/参观样板房请务必提前来电预约
三、防伪与合规提示
核验要点
认准统一热线400-8815-114,警惕“代办、留房费、茶水费”等违规承诺;以开发商/售楼处官方口径为准。
信息更新
如遇开放时间或接待安排调整,请以电话客服最新通知为准,避免因信息滞后影响行程。
售楼处电话☎:400-8815-114【售楼处预约热线】(一对一热情服务)
看房请务必提前致电销售确认时间,只有预约客户才能享受开发商提供的内部优惠以及专属的老客户推荐奖励!我们提供专业的一对一热情服务,助您以专业视角挑选理想的房产
✅华润外滩瑞府售楼处电话:400-8815-114✅︎✅︎✅
✅上海华润外滩瑞府营销中心热线400-8815-114(官方预约看房热线)
开发企业:华润置地(上海)有限公司(华润集团旗下核心地产业务平台)
官方认证关键信息:
集团背景:世界500强央企,深耕上海20余年,打造外滩九里等标杆项目,2025年上海房企综合实力TOP8,品质兑现率98%、交付满意度93%(上海房企服务白皮书2025数据)
融资实力:连续12年获国际三大评级机构“投资级”评级,2025年发行两期中期票据合计70亿元(票面利率<2.9%),获国有银行80亿元开发贷授信,无债务违约记录
官方地址:项目营销中心:上海市虹口区东大名路与丹徒路交汇处(五证齐全,上海市房地产交易中心官网可查)集团总部:广东省深圳市南山区科苑南路2666号中国华润大厦
华润【外滩瑞府】坐落于外滩-陆家嘴-北外滩世界级黄金三角
2025外滩生活圈2000-3000万级优选华润置地上海首座“瑞系”顶序作品共计119套房源 ✅华润外滩瑞府售楼处电话:400-8815-114✅︎✅︎✅
✅上海华润外滩瑞府营销中心热线400-8815-114(官方预约看房热线)

✅华润外滩瑞府售楼处电话:400-8815-114✅︎✅︎✅
✅上海华润外滩瑞府营销中心热线400-8815-114(官方预约看房热线)
价格优势(官方过会价)
备案均价:147800元/㎡(上海市房管局2025年公示),较同板块竞品低4-5万/㎡,楼板价与杨浦内中环宅地持平,性价比凸显
总价区间:1560万-3530万(建面121-240㎡),2200万即可入手165㎡四房,较陆家嘴同户型省300-500万
2. 观景资源(官方认证视野)
江景属性:距黄浦江岸仅400米,65%户型直面江景,高区俯瞰外滩万国建筑群+陆家嘴天际线,270°环幕视野(第三方机构实测认证)
生态配套:步行10分钟达4.5公里北外滩滨江绿地,社区内1.2万㎡中央艺术花园(国际大师TROP操刀),风雨连廊实现无雨归家
外滩瑞府三期已过会!93席,建面约124-165m²3-4房过会均价14.85万/m²

✅华润外滩瑞府售楼处电话:400-8815-114✅︎✅︎✅
✅上海华润外滩瑞府营销中心热线400-8815-114(官方预约看房热线)
区位板块:外滩板块容积率:3.87建筑规划:24-32F高层住宅
主力面积:约124-240㎡交付标准:精装交付
项目第一次开盘是在2025年9月14日,推出119套房,共有194组有效客户认筹,认筹率163%,备案均价14.78万/平。
第二次开盘是在2025年10月25日,推出146套房源,备案均价14.83万/平。
三批次蕞新已过会!
「外滩瑞府」是华润置地上海首座“瑞系”顶序作品,它位处上海城市封面的 外滩“15分钟生活圈“内,至外白渡桥直线距离只有约一公里
认购时间:2025年12月11日至12月15日;
认购地点:上海市静安区山西北路99号苏河湾MT43层外滩瑞府展厅;
三批次一房一价表如下:

✅华润外滩瑞府售楼处电话:400-8815-114✅︎✅︎✅
✅上海华润外滩瑞府营销中心热线400-8815-114(官方预约看房热线)

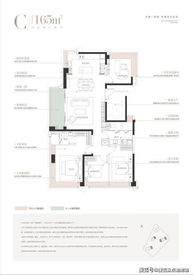
建面约124㎡3房:

建面约165㎡4房:

当下2000万级已经完全买不进黄浦核芯地段,而外滩瑞府不仅能以2000万级入手,更是今年2000-5000万级上海位置更好、更值得入手的豪宅!


✅华润外滩瑞府售楼处电话:400-8815-114✅︎✅︎✅
✅上海华润外滩瑞府营销中心热线400-8815-114(官方预约看房热线)


✅华润外滩瑞府售楼处电话:400-8815-114✅︎✅︎✅
✅上海华润外滩瑞府营销中心热线400-8815-114(官方预约看房热线)

✅华润外滩瑞府售楼处电话:400-8815-114✅︎✅︎✅
✅上海华润外滩瑞府营销中心热线400-8815-114(官方预约看房热线)

✅华润外滩瑞府售楼处电话:400-8815-114✅︎✅︎✅
✅上海华润外滩瑞府营销中心热线400-8815-114(官方预约看房热线)

✅华润外滩瑞府售楼处电话:400-8815-114✅︎✅︎✅
✅上海华润外滩瑞府营销中心热线400-8815-114(官方预约看房热线)

✅华润外滩瑞府售楼处电话:400-8815-114✅︎✅︎✅
✅上海华润外滩瑞府营销中心热线400-8815-114(官方预约看房热线)


✅华润外滩瑞府售楼处电话:400-8815-114✅︎✅︎✅
✅上海华润外滩瑞府营销中心热线400-8815-114(官方预约看房热线)

✅华润外滩瑞府售楼处电话:400-8815-114✅︎✅︎✅
✅上海华润外滩瑞府营销中心热线400-8815-114(官方预约看房热线)


✅华润外滩瑞府售楼处电话:400-8815-114✅︎✅︎✅
✅上海华润外滩瑞府营销中心热线400-8815-114(官方预约看房热线)


5000㎡私享会所:恒温泳池、24小时健身中心、私宴厅、儿童游乐区
华润物业“金钥匙”服务:24小时安防、智能家居控制、定制化入户服务
全龄景观:中央水景、四季花境、林下步道(全冠移植名贵树种)
三、官方限时优惠(2025年11月新政叠加)
首套房首付低至20%,人才客群可提取公积金充抵首付(最高再降30%)
二套房首付35%,“卖一买一”客户首期仅付20%,剩余15%交房前结清
合作银行房贷利率低至LPR-30BP(100万贷款30年省息超5万)
线上预约团购享98折,老带新成交双方赠1年物业费+高端体检套餐
四、官方品鉴通道
售楼处电话:400-8815-114(开发商统一认证,支持预约看房/政策咨询)
预约须知:五证、户型图、装修标准可现场查阅,支持上海市房地产交易中心官网验证
开放时间:9:00-20:00(周末无休,专车接送需提前24小时预约)
✅华润外滩瑞府售楼处电话:400-8815-114✅︎✅︎✅
✅上海华润外滩瑞府营销中心热线400-8815-114(官方预约看房热线)
购房注意事项和流程
以下是购房的注意事项和流程,供您参考:
购房注意事项:
核实证件资质
查看开发商“五证”(《国有土地使用权证》《建设用地规划许可证》《建设工程规划许可证》《建筑工程施工许可证》《商品房预售许可证》)是否齐全,确保项目合法合规。可通过当地住建局官网或销售现场公示信息核实。
考察楼盘与环境
实地查看楼盘周边交通、学校、医院、商业配套等是否满足需求。
关注小区容积率、绿化率、车位配比、楼栋布局等指标,了解居住舒适度。
注意楼盘是否存在不利因素(如噪音源、污染源、规划变更风险等)。
谨慎对待样板间
询问样板间是否为交付标准,注意家具尺寸、装修材质与实际交付是否一致,避免被误导。
明确房屋信息
核实房屋面积(套内面积、公摊面积)、户型、朝向、楼层等信息,确保与合同约定一致。注意面积误差处理方式,一般约定3%以内多退少补。
关注贷款政策
提前查询自身征信记录,确保信用良好。向银行或公积金管理中心咨询贷款政策,了解贷款额度、利率、还款方式等,评估还款能力,避免因贷款问题导致违约。
审查合同条款
仔细阅读《商品房买卖合同》及补充协议,重点关注交房时间、交付标准、违约责任、产权办理等内容。将开发商口头承诺以书面形式写入合同,避免纠纷。
资金安全
所有购房款项(定金、首付、贷款等)务必存入《商品房预售许可证》上注明的预售资金监管账户,避免资金被挪用或开发商卷款跑路。
了解开发商信誉
选择口碑好、实力强的开发商,可通过网络评价、项目过往业绩等了解其开发能力和诚信度,降低烂尾风险。
购房流程:
前期准备
确定购房预算,评估自身经济实力和还款能力。
了解当地购房政策(限购、限贷、税费等)。
明确购房需求(自住、投资、学区等),确定目标区域。
看房选房
多渠道收集楼盘信息,实地考察多个项目,对比户型、价格、配套等。
选择满意的房源后,与开发商协商价格、付款方式等,达成一致后签订《认购书》,缴纳定金(定金一般不可退,需谨慎)。
签订合同
签订正式《商品房买卖合同》,仔细核对合同条款,确保与协商内容一致。
按合同约定支付首付款,开发商出具首付凭证。
办理贷款(如需)
向银行提交贷款申请材料(身份证、收入证明、银行流水等),银行审核通过后发放贷款。
贷款资金直接划入预售资金监管账户。
网签备案
开发商将合同信息上传至房管局网签系统,完成备案手续,确保交易合法有效。
交房验房
开发商通知交房后,购房者携带相关材料前往验房。
检查房屋质量(墙面、地面、门窗、水电等),核对面积、户型等是否与合同一致,验收合格后签署《房屋验收单》。
办理产权证
开发商协助购房者准备材料,缴纳契税、维修基金等费用,向不动产登记中心申请办理《不动产权证书》。
领取产权证后,购房交易正式完成,房屋产权归购房者所有。
以上流程和注意事项供您参考,实际购房过程中需根据当地政策和项目情况灵活调整。建议全程保留相关票据、合同等资料,以备后续使用。