上海闵行「中铁建万科朗拾花语」
售楼处电话:400-9966-224【预约热线】(一对一热情服务)
如有问题欢迎来电咨询,专业一对一热情服务,让您用专业眼光去买房。
项目介绍
上海闵行中铁建万科朗拾花语售楼处电话:400-9966-224【预约热线】开发商:中铁建&万科板块:闵行梅陇板块容积率:约2.5物业:万科物业
建面:92-140平均价:75000元/㎡总价:650-1200万
在售楼栋:
上海闵行中铁建万科朗拾花语售楼处电话:400-9966-224【预约热线】一期:1栋/3栋/8栋/6栋/14栋二期:2栋/10栋/11栋/12栋/15栋/16栋/17栋
装修:14、 2、10、12、17毛坯,其余装修交付(中央空调、地暖、新风均有)物业费:6.3元/平定金:20万交房时间:2025年12月小户型:92/95/99平:3房户型大户型:133平:大三房;140平:3+1户型
必买朗拾花语的十大理由黄金中环线 成长新高地
上海闵行中铁建万科朗拾花语售楼处电话:400-9966-224【预约热线】承接中心城区、虹桥商务区、上海南部科创中心三心辐射与价值赋能
三轨交汇枢纽 无缝城市热点3⃣两大自然水系 都会臻藏谧屿
坐拥稀缺T型水域 沿水岸构筑融于自然的丰富场景
16万方滨水大城 四象合一土地规划都会林屿
上海闵行中铁建万科朗拾花语售楼处电话:400-9966-224【预约热线】大公园营造真实水岸场景
五大空间场景 慢拾生活优雅
高得房率 悦享从容秩序
上海闵行中铁建万科朗拾花语售楼处电话:400-9966-224【预约热线】双世界500强联袂 里程碑作品
万科服务 中国物业管理行业领跑者周边高科技产业园及前滩、徐汇、浦东等核心商圈精英圈层项目规划梅陇新中心,承接百亿科创
闵行2035规划全新公布,拟优化梅陇地区中心功能定位和用地布局,将其打造为闵行中部地区科创核心。朗拾花语择址梅陇新中心,正居闵行“中部崛起”战略版图,南临紫竹科技园区,北倚虹桥商务区,接壤徐汇,是名副其实的上海主城价值新高地。
路网纵横 便捷通达全城
距离15号线虹梅南路站约400米,同时乘坐15号线9站30分钟就可以抵达上海闵行中铁建万科朗拾花语售楼处电话:400-9966-224【预约热线】徐家汇中央活动区;19号线沿黄浦江自南向北,串联起前滩,陆家嘴两大世界级CBD;未来的上海机场联络线,虹梅南路高架,向北可以快速接入中环,银都路隧道向浦东,构筑梅陇城市热点版图。
商圈环绕 打造生活样板

上海闵行中铁建万科朗拾花语售楼处电话:400-9966-224【预约热线】5公里范围有仲盛世界商城,凯德龙之梦,海梦一方,盒马,大润发等,可以满足您的日常消费需求;10公里左右可以触达前滩太古里,晶耀前滩,恒隆广场等顶级商圈;此外还会有百万繁华商业南方商务区,由中庚环球创意中心、百联南方购物中心及正在建设打造的三井商业体等十大商业商务板块构成,总建筑面积近130万平方米,将打响梅陇面向长三角的现代服务品
名校环绕 享受优质教育
闵行区实验小学、莘松中学、上海市示范高中上海市第二中学等优质学校。
上海闵行中铁建万科朗拾花语售楼处电话:400-9966-224【预约热线】公立医院 健康品质疗养

三甲医院华东医院(闵行门诊部) ,复旦大学儿科医院、 闵行梅陇社区卫生服务中心等,可以为您的健康保驾护航。
三、品牌价值
上海闵行中铁建万科朗拾花语售楼处电话:400-9966-224【预约热线】
中国铁建+万科,强强联合筑封面作品
中国铁建集团 责任央企
中国铁建已发展为全球最具实力、规模的特大型综合建设集团之一、2022年《财富》“世界500强企业”排名第39位、“全球250家最大承包商”排名第3位、“中国企业500强”排名第11位。累计获拥有31479项专利。砥砺70余载,参与建造了中国第一条海底隧道—厦门翔安隧道,中国第一条高原铁路—青藏铁路。同时还参与建设了诸多耳熟能详的著名公建项目:如人民大会堂、港珠澳8大桥、京沪高速等。
截至2022年底,已在全国及海外45个城市(含9个国家级新区)布局239个项目,实现京津冀、长三角、珠三角等主要城市群的全面布局。
万科企业股份有限公司
成立于1984年,2022年8月连续第7次跻身《财富》“世界500强”,位列榜单第178位。始终聚焦好产品好服务,已成为国内领先的城乡建设与生活服务商。国内已进入83个城市,七大区域拥有600多个主要开发项目,同时布局海外8个重点城市。多年来,万科坚持“以人为本”的设计理念,锚定“产品主义”的赛道持续深耕,凭借行业领先的产品品质和卓越的综合产品能力,从1999 年至 2022 年,连续 24 年屡获中国建设工程鲁班奖、詹天佑奖、广厦奖等房地产综合开发领域的最高荣誉。
上海闵行中铁建万科朗拾花语售楼处电话:400-9966-224【预约热线】【产品体系】:万科“拾”系+中国铁建的“花语”系拾系:拾系,是万科上海区域针对城市核心区改善客户研发的一个城市度假产品系,主要借鉴曼谷湄南河四季酒店风格。是拾系落地的第12个项目,也是万科和中铁建为上海这座城市打造的首个产品。产品设计对标曼谷四季酒店等多个国外高奢酒店,围绕“精致、雅奢、静谧、放松”的产品关键词,打造具有度假感、松弛感、雅致奢华的居住体验。

上海闵行中铁建万科朗拾花语售楼处电话:400-9966-224【预约热线】花语系:中国铁建地产在华东区域主打的高端改善型产品线。以“繁华里的慢调生活”为主旨,打造精致时尚的城芯烟火,内外兼修的优雅质感、心归自然的宁逸境界和恰到好处的多元美好,也代表着中国铁建对于当代城市人居的思考和实践。
上海闵行中铁建万科朗拾花语售楼处电话:400-9966-224【预约热线】【建筑立面】:住宅立面设计采用竖向线条构图,强调高层建筑的挺拔感。结合建筑体量,设置了城市“灯塔”,在细节刻画上不同的建筑材料以白加金的拾系标志性色调作为统领。
上海闵行中铁建万科朗拾花语售楼处电话:400-9966-224【预约热线】【景观亮点】:以城市度假感营造为核心,将生态的湖岸风景线与精致的都市酒店内庭院相织,摒弃传统的上帝视角的轴线对称设计,用最纯粹的自然元素作为设计语言,以“人视角”景观设计,把入口庭院、静心庭院、水榭林间、微风草坪,童玩场地,迷你植物园等景观组团落地,营造轻松惬意的归家氛围以及度假式的居住体验,打造一个雅中有奢,静谧精致的社区。
上海闵行中铁建万科朗拾花语售楼处电话:400-9966-224【预约热线】五、物业服务——万科物业万科集团物业服务作为中国物业管理行业的领跑者,致力于让更多用户体验物业服务之美好,围绕业主不动产保值增值提供全生命周期服务,已连续第十年蝉联“中国物业服务百强企业综合实力TOP1”,连续第六年蝉联“中国房地产开发企业500强首选物业品牌”榜首,并连续三年获得“中国特色物业服务领先企业——企业总部基地”荣誉称号。

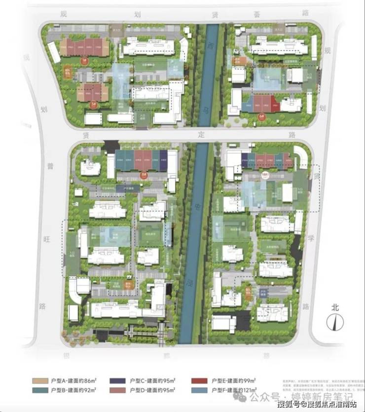
六、户型亮点

上海闵行中铁建万科朗拾花语售楼处电话:400-9966-224【预约热线】样板间展示
户型图展示
户型推荐:主推户型92㎡/95

99㎡这个户型是整个板块都非常难得的大三房户型,尤其是餐厅和主卧部分,整体尺度非常奢阔。

建面约133㎡3房两卫户型图、横厅3+1朝南+南北通透、最低900万级起步

建面约140㎡3+1房两卫户型图、拐角餐客厅飘窗270度采光。

上海闵行中铁建万科朗拾花语售楼处电话:400-9966-224【预约热线】
此次推售的133/140m²户型必然非常受本地改善客户欢迎,尤其是春申景城一期二期的业主,如果想要改善换房的话,这个户型堪称优选之选。
上海闵行中铁建万科朗拾花语售楼处电话:400-9966-224【预约热线】
纯改善奢享大尺度横厅,或者根据功能需求升级为全能四房,整体空间尺度和视觉感受也不会受太多影响,适合追求一步到位的改善客群。
土拍回顾:
上海闵行中铁建万科朗拾花语售楼处电话:400-9966-224【预约热线】
今年4月21日,上海第一批次土地出让最后一天,梅陇社区MHP0-0306单元5-3、6-3、5-5、6-5地块,万科旗下上海万怡景置业有限公司与中国铁建旗下中铁房地产集团华东有限公司组成的联合体以75.486亿元竞得该地块。地块房地联动价75000元/㎡。
项目四至范围:东至贤学路、南至银都路、西至普旺路、北至贤荟路。
万科中铁建梅陇项目由4幅小地块组成,项目紧邻15号线红梅南路站,不仅距离相比去年的天樾园和距离地铁更近,而且还属于约60万㎡梅陇新中心大规划范围内。
上海闵行中铁建万科朗拾花语售楼处电话:400-9966-224【预约热线】根据转让合同规定显示:
5-3地块:普通商品房用地,容积率2.5,限高80米,住宅套数下限390套;
5-5地块:普通商品房用地,容积率2.5,限高80米,住宅套数下限259套;
6-3地块:普通商品房用地,容积率2.5,限高80米,住宅套数下限578套;
6-5地块:普通商品房用地,容积率2.5,限高80米,住宅套数下限489套;

上海闵行中铁建万科朗拾花语售楼处电话:400-9966-224【预约热线】
根据项目规划设计方案显示,项目规划总体量逾16万方滨水大城,作为低密区中难得的高层大盘,拟建18幢17-26F主力为约85-133㎡3-4房产品,为梅陇及周边板块提供了更丰富、更多元的人居选择。

上海闵行中铁建万科朗拾花语售楼处电话:400-9966-224【预约热线】
由春申塘和西马屯泾两条天然河流汇聚而成的“T”型水域,在城市核心形成了一个16万方的滨水大城——朗拾花语,创造的是一种可漫步的水系情景生活。
这是中铁建的“花语”系与万科的“朗拾”系结合大自然一次完美无瑕的组合。
以一座都市里的自然度假岛屿,来回应繁华城市之中,人们对静谧生活的无尽向往。
上海闵行中铁建万科朗拾花语售楼处电话:400-9966-224【预约热线】示意图 仅供参考 实际以官方公示为准

水系与景观相融合,让朗拾花语有了一种得天独厚的美学轮廓;舒朗排布与错动的建筑,与自然充分交织,城市与社区更好地相互渗透交流,情绪在此归隐、心灵在此宁静,无处不在的奢适与静雅,为感官带来一场趣味相投的旅行。
通过天然的景观体系,朗拾花语施展了一种让人慢下来的“魔法”。慢,就要停留,只有惊喜、只有变化,才能让人停留。
上海闵行中铁建万科朗拾花语售楼处电话:400-9966-224【预约热线】示意图 仅供参考 实际以官方公示为准

“拾系”的精神内核,在项目中得到充分贯彻。
从进入社区开始的每一幕空间,都有自己的“脚本”,动线上的每个细节都被精心设计过,不能有留白。然而这一周密设置并不预设某种最终目的——周密的是用心,但不是束缚,步步精心,是为留足生活的想象与可能。
上海闵行中铁建万科朗拾花语售楼处电话:400-9966-224【预约热线】景观既是用来观赏的,也是用来参与的。
透过光线、水、植物等元素的融合,并萃取高端酒店设计,呈现更多自然、舒适且松弛的多元生活状态。
上海闵行中铁建万科朗拾花语售楼处电话:400-9966-224【预约热线】效果示意图 仅供参考 实际以官方公示为准

在社区内打造静心庭院、水榭林间、微风草坪等松弛雅奢的都市谧境,将居住者的视线随时控制在自然的簇拥里,在繁忙喧嚣的城市环境中,为日常的居住提供闲适的“停顿”,创造一片都市闲适中的凝神场域,让居者在城市快节奏生活中能够感受到静下来、慢下来的感受,在独处中治愈身心。
示意图 仅供参考 实际以官方公示为准

上海闵行中铁建万科朗拾花语售楼处电话:400-9966-224【预约热线】伴随光影与氛围的催化,去往微风草坪野营烧烤、开音乐派对、看露天电影……于静谧林中疗愈放松、冥思沉静,流连每一个角落体验出繁入静的居住乐趣。
建筑应该拥有经久不衰的艺术价值。
建筑是一座城市的气质符号,而城市界面则是最直接的第一层审美传达。作为万科拾系2.0之作,朗拾虽然基底仍然延续度假风,但雅中有“奢”,高阶显贵的气质让人眼前一亮。
效果示意图 仅供参考 实际以官方公示为准
上海闵行中铁建万科朗拾花语售楼处电话:400-9966-224【预约热线】建筑表情同样延续社区自然优雅的静谧和闲造氛围。墙体遥相延伸,勾画整体而自然的围合感,营造出一个隐秘精致的超级领域。
上海闵行中铁建万科朗拾花语售楼处电话:400-9966-224【预约热线】入口空间,汲取曼谷四季酒店设计灵感,在优雅奢适的仪式感与领域感中,让每一次归家的步调,都成为度假的开始。
“花语系”的温暖优雅,也体现得淋漓尽致。
在朗拾花语,每一个场景都不是设计师对照着图纸做产品,而是设计师从自己的体感开始,从生活中发现生活开始,然后设计出的产品。
于是,更温暖,更人性了。
上海闵行中铁建万科朗拾花语售楼处电话:400-9966-224【预约热线】在庭院中的场景应该是这样的:一个转身,一棵树在你面前摇曳生姿,让你感到清风拂面般舒展;在庭院里面落坐下来的时候,一道光影投射到你的面前,它变幻莫测,它让你心旷神怡,这就是和自然做交流。
在朗拾花语,对生活真意的共鸣,就在都会度假式生活情境中悄然发生,以一切可被感知、被触摸、被品味、可参与、可互动、可娱乐的体验,去尝试补偿上海都市生活中“未被满足的心情”。
项目采用中国物业管理行业领跑者——万科物业
连续第十年蝉联中国物业服务百强企业综合实力TOP1
连续六年蝉联“中国房地开发企业500强首选物业品牌”榜首,服务1800+项目
上海闵行中铁建万科朗拾花语售楼处电话:400-9966-224【预约热线】连续三年获得“中国特色物业服务领先企业——企业总部基地”荣誉称号
真的,你值得来看!
真的,TA值得上海拥有!

生活配套:
上海闵行中铁建万科朗拾花语售楼处电话:400-9966-224【预约热线】
交通方面:项目距离轨道交通15号线虹梅南路站约500米,步行可达,另外还有虹梅高架路,可直通中环及沪闵高架,出行较为便捷。
除了已经开通的1、12、15号线,还有规划在建中的19、23、26号线以及机场联络线。七轨交汇、共设21个站点,轻松畅达全城。
上海闵行中铁建万科朗拾花语售楼处电话:400-9966-224【预约热线】商业方面:坐拥莲花路车站三井商业体、力波商务中心、天利现代设计中心等十大商业群,总建筑面积近130万㎡。
教育方面:项目附近有上海市第二中学(梅陇校区)、闵行区实验小学(春城校区)、上海闵行区民办弘梅小学(蔷薇校区)等;
上海闵行中铁建万科朗拾花语售楼处电话:400-9966-224【预约热线】医疗方面:有华东医院(闵行门诊部)、上海同康医院等。
目前,梅陇新中心规划已正式获批,部分工程正在如如火如荼建设中。不久之后,这一片美好的“规划蓝图”即将变成美丽的“现实画卷”。

请大家查看自己的生日,太可怕了,连自己什么时候去天堂了都能算出来!【鬼谷子称骨神算】真的挺准啊!易經通聖 人的命格(以阴历为主) 几两相加。
大家试试,贼准贼准的!
★年的重量:
1941:6钱
1942:8钱
1943:7钱
1944:5钱
1945:1两5
1946:6钱
1947:1两6
1948:1两5
1949:7两
1950:9钱
1951:1两2
1952:1两
1953:7钱
1954:1两5
1955:6钱
1956:5钱
1957:1两4
1958:1两4
1959:9钱
1960:7钱
1961:7钱
1962:9钱
1963:1两2
1964:8钱
1965:7钱
1966:1两3
1967:5钱
1968:1两4
1969:5钱
1970:9钱
1971:1两7
1972:5钱
1973:7钱
1974:1两2
1975:8钱
1976:8钱
1977:6钱
1978:1两9
1979:6钱
1980:8钱
1981:1两6
1982:1两
1983:1兩9
1984:1两2
1985:9钱
1986:6钱
1987:7钱
1988:1两2
1989:5钱
1990:9钱
1991:8钱
1992:7钱
1993:8钱
1994:1两5
1995:9钱
1996:1两6
1997:8钱
1998:8钱
1999:1两9
2000:1两2
★月的重量:
一月:6钱
二月:7钱
三月:1两8
四月:9钱
五月:5钱
六月:1两6
七月:9钱
八月:1两5
九月:1两8
十月:1兩9
十一月:9钱
十二月:5钱
★出生日的重量:
初一:五钱
初二:一两
初三:八钱
初四:一两五
初五:一两六
初六:一两五
初七:八钱
初八:一两六
初九:八钱
初十:一两六
十一:九钱
十二:一两七
十三:八钱
十四:一两9
十五:一两
十六:八钱
十七:九钱
十八:一两八
十九:五钱
二十:一两五
廿一:一两
廿二:九钱
廿三:八钱
廿四:九钱
廿五:一两五
廿六:一两八
廿七:七钱
廿八:八钱
廿九:一两六
三十:六钱
★时辰重量:
子时:一两六
丑时:六钱
寅时:七钱
卯时:一两
辰时:九钱
巳时:一两六
午时:一两
未时:八钱
申时:八钱
酉时:九钱
戌时:六钱
亥时:六钱
●时辰表:
子时:23:00――1:00
丑时:1:00――3:00
寅时:3:00――5:00
卯时:5:00――7:00
辰时:7:00――9:00
已时:9:00――11:00
午时:11:00――13:00
未时:13:00――15:00
申时:15:00――17:00
酉时:17:00――19:00
戌时:19:00――21:00
亥时:21:00――23:00
★批注诗:
(二两一)
终身行乞孤苦之命。
短命非业谓大空,平生灾难事重重,
凶祸频临陷逆境,终世困苦事不成。
注解:身寒骨冷苦伶仃,此命推来行乞人,碌碌苦苦无乐日,终生孤单过一生。
(二两二)
一生劳碌之命。
身寒骨冷苦伶仃,此命推来行乞人,
劳劳碌碌无度日,终年打拱过平生。
注解:此命劳碌一生穷,每逢困难事重重,凶祸频临陷苦境,终身大事谋不成。
(二两三)
终身困苦之命
此命推来骨肉轻,求谋做事事难成,
妻儿兄弟实难靠,外出他乡做散人。
注解:此命推来骨肉轻,求谋做事事难成,妻儿兄弟实难靠,外出他乡做善人。
(二两四)
一生薄福之命
此命推来福禄无,门庭困苦总难荣,
六亲骨肉皆无靠,流浪他乡作老翁。
(二两五)
六亲无靠,自立更生之命
此命推来祖业微,门庭营度似稀奇,
六亲骨肉如冰炭,一世勤劳自把持。
(二两六)
平生衣禄苦中求,独自营谋事不休,
离祖出门宜早计,晚来衣禄自无休。
注解:此命为人刚强,劳心劳力,移祖居住,有能自力得安然,知轻识重,坏事不做,老来贪心口无毒,但一生不足,子息难靠。初限之中小发达,早年家计得安康,四十八九岁,交来末运渐渐谋事而成,事业而就,财源茂盛,老来荣华。妻宫有克,两妻无刑 ,子息四个只一子送终,寿元七十九,过此七十九岁,死于十二月中。
(二两七)
一生多谋少成之命
一生作事少商量,难靠祖宗作主张,
独马单枪空做去,早年晚岁总无长。
注解:此命为人性纯不刚不柔,心中无毒,做事有始有终,池塘鸳鸯寻食吃,易聚易散,骨肉六亲不得力,财物风云,操心劳力,极早恨奋寒窗,原来破尽,重新白手起家,且过三十五六,方可成家立业,四十外行船顺风,五十安稳,末限滔滔事业兴,妻宫硬配,子女送终,寿元七十,死于五月中。
(二两八)
一生行事似飘蓬,祖宗产业在梦中,
若不过房改名姓,也当移徒二三通。注解:此命为人多才能,心机灵巧,祖业飘零,离乡别井可成事业,兄弟多力,驳杂多端,为静处安然,出外有人敬重,可进四方之财,有贵人扶持,逢凶化吉,勤俭一生,无大难,只是救人无功,恩中招怨,重义轻才,易聚易散,早年不能聚财,三十三岁方知劳苦,凡事顺意,三十八九,四十岁称心如意,末限福如东海,寿比南山。只是妻宫有克,三子送终,寿元六十九,闯过八十一,死于三月中。
(二两九)
初年运限未曾亨,纵有功名在后成,
须过四旬才可立,移居改姓始为良。
注解:此命为人性爆,心直口快,有才能,见善不欺,逢恶不怕,事有始终,量能宽大,但不能聚财,兄弟六亲无力,自立家计,出外方好,初限二十三四五不遂,二十七八有好运到,犹如枯木逢春,中限四十九之命有险,四十多来古镜重磨,明月再圆。五十六七八九末限明月又被云侵,交七十方走大运,妻小配怕刑,克子,寿元七十七,死于春光中。
(三两)
劳劳碌碌苦中求,东奔西走何日休,
若使终身勤与俭,老来稍可免忧愁。
注解:此命为人多才多能,心机为巧,祖业凋零,离乡别井可成家业,兄弟少力,驳杂多端,出外有贵人扶持,一生无刑克,无大难,只是救人无功,恩中招怨,重义轻才,易聚易散,早年不能聚财,三十三岁方知劳苦,凡事顺意,三十八九,四十岁称心如意 ,三子送终,寿元六十九,死于三月中。
(三两一)
忙忙碌碌苦中求,何日云开见日头,
难得祖基家可立,中年衣食渐无忧。
交友谨慎,老年衣食足用之命 忙忙碌碌苦中求,何日云开见日头,难得祖基家可立,中年衣食渐能周。
注解:此命推来敬重双亲,有福有禄,六亲和睦,义气高强,少年勤学有功名,忠孝双 全,心中无毒,不贵则福,出外受人钦佩,四海闻名,老来荣华,限上无忧,一生安康 ,年轻欠利,末限安享福禄,白鹤先生云:此命三限,有子孙旺相局,初限早成家计, 辛勤劳苦,中限渐渐生财重奔江山,夫妻少配无刑,末限荣华富贵,寿元八十三岁,死 于冬月之中。
(三两二)
初年运蹇事难谋,渐有财源如水流,
到得中年衣食旺,那时名利一齐收。
注解:中限交来渐渐称心,求谋顺利,出外有人恭敬,一生受贵,若要问其消息,事业 兴,家业旺,其年运到滔滔财源至,滚滚利丰盈,春光花自发,微风细雨生,四十六七 八交末运,移花接子桂花香,夫妻偕老,寿元八十之外,子孙福禄荣昌,死于腊月中。
(三两三)
性直多情,交友带劫之命
早年作事事难成,百计徒劳枉费心,
半世自如流水去,后来运到得黄金。
注解:此命生人性巧心灵,弄假成真,口快无心,恩中招怨,君子敬佩,小人气恨,骨 肉无援,志在四方,身心健康,前运乘阴少种树,中限轻财,大运交来,声名可望,万 事更新,名利振建,此后小事宜注意,才有子息,寿元八十三,死于三月中。
(三两四)
此命福气果如何,僧道门中衣禄多,
离祖出家方为妙,朝晚拜佛念弥陀。
注解:此命推来为人性躁,与人做事反为不美,离祖成家,三翻四次自成自立安享福, 直自三十六至四十六,财不谋而自至,福不求而自得,有贵人助,家庭安宁,妻宫若要 无刑,猴、猪、羊、蛇不可配,龙、虎、马、牛方得安,虽有二子,终生带暗方可。兄 弟六亲如冰碳,在家不得安然,初限驳杂多端,劳碌奔波不能聚钱,常有忧愁,寿元七 十八岁,死于三月中。
(三两五)
生平福量不周全,祖业根基觉少传,
营事生涯宜守旧,时来衣食胜从前。
注解:此命为人品性纯和,做事忠直,志气高傲,与人做事恩中招怨,六亲兄弟不得力 ,祖业全无,早年驳杂多端,独马单枪,初限命运甚来,二十八九三十来岁末曾交运都 说好,三十五六到四十犹如金秋菊迎秋放,心机用尽方逢春,末限交来始称怀,祖业有 破后重兴,犹如枯木逢春再开花,妻宫忧虚无刑,寿元五十七,限至六十九,三子送终 ,寿元八十一,死于十月中。
(三两六)
少年多波折,老来安逸之命
不须劳碌过平生,独自成家福不轻,
早有福星常照命,任君行去百般成。
注解:此命为人品性刚直,做事公开有才能,有机变不肯休息,六亲兄弟不得力,祖业 无靠,白手成家立业,末运多驳杂,不能聚财,好一双抓钱手,没有一个赚钱斗,此命 蜘蛛结网,朝圆夜不圆,做几番败几番,只能稳步成家计,谁知又被狂风吹,初限二十 三四,犹如明月被云侵,三十外来恰是日头又重开,二子送终,寿元五十七岁,过此八 十八,死于秋天中。
(三两七钱)
此命般般事不成、弟兄少力自孤行。
虽然祖业须微有,来得明时去不明。
一生财来复去,难得大富之命
注解:此命为人品性刚直,做事公开有才能,不肯休息,六亲兄弟不得力,祖业无靠, 白手成家立业,末运多驳杂,不能聚财,待到年将三十六,蓝衫脱去换红袍。
注解:此命为人品性刚直,做事公开有才能,不肯休息,六亲兄弟不得力,祖业无靠, 白手成家立业,末运多驳杂,不能聚财,好一双抓钱手,没有一个赚钱斗,此命蜘蛛结 网,朝圆夜不圆,做几番败几番,只能稳步成家计,谁知又被狂风吹,初限二十三四, 犹如明月被云侵,三十外来恰是日头又重开,终交末运方为贵,渐渐荣昌盛。
(三两九钱〕
少年命运不通,老享清福之命
此命终身运不通,劳劳作事尽皆空,
苦心竭力成家计,到得那时在梦中。
注解:此命为人灵机性巧,胸襟通达,志气高,少年勤学有功名之格,青年欠利,腹中 多谋,有礼有义,有才能,做事勤俭,一生福禄无,与人干事,反为不美,六亲骨肉可 靠,交朋友,四海春风,中限光耀门庭,见善不欺,逢恶不怕,事有始终,量能宽大, 义利分明,吉人天相,四海闻名,末限成家立业,安然到老,高楼大厦,妻宫无刑,子 息三人,只一子送终,寿元七十七,卒于春光中。
(四两)
平生衣禄是绵长,件件心中自主张。
前面风霜多受过,后来必定享安康。
注解:此命为人性躁,心直口快,有才能,逢善不欺,逢恶不怕,事有始终,量能宽大 ,不能聚财,祖业破败,兄弟六亲不得力,自立家计出外方好,初限二十五六连年不遂 ,二十七八九有好运,犹如枯木逢春,中限四十九岁有灾,铁镜重磨,明月正圆,五十六七交大运,寿元七十七,卒于春光中。
(四两一钱)
聪明超群,老来逍遥享福之命
此命推来事不同,为人能干异凡庸,
中年还有逍遥福,不比前时运未通。
注解:此命性重气高,有口无心,祖业未交,离别他境,事事可成,六亲骨肉不得力, 自成家计,学习经营,四方闻名,当把外方之时,丰隆初限奔波驳杂,不能聚财,交过 三十八九方可成家,四十五六方能顺意,末限犹如三月杨柳,枝枝生细叶,晚景处处红 ,妻宫无克破,子息假送老,寿元四十七,闯过可到六十六,卒于九月中。
(四两二钱)
自力更生,老运名利双收之命
得宽怀处且宽怀,何用双眉皱不开,
若使中年命运济,那时名利一齐来。
注解:此命为人操劳,自成自立,与人出力事不成,离祖之命,成家三番四次,用尽心 机不得开怀,若要安乐享福,要到三十六到四十六时不谋自待,福不求自至,有贵人助 力,家庭安然,妻宫若要无刑,猴、猪、羊、蛇不可配,龙、虎、马、牛方得安,兄弟 六亲如冰碳,在家不得安然,初限驳杂多端,不能聚钱,常有忧愁,寿元七十八岁,死于三月中。
(四两三):
福禄厚重,白手成家之命
为人心性最聪明,作事轩昂近贵人,
衣禄一生天数定,不须劳碌过平生。
注解:此命为人性躁刚强,平生不受亏,多技多能,祖业冰碳,能聚财,交过三十开外 ,方得开怀,中限之命能进四方之财,出外逢贵人之力,艺术精,善经营,方能兴旺, 上业迟,有一疾相侵,直至末限方得享福,妻宫匹配,龙虎马牛可配,二子送终,寿元 八十,卒于四月之中。
(四两四)
初年无财,老年自得享福之命
万事由天莫苦求,须知福禄命里收,
少壮名利难如意,晚景欣然更不忧。
注解:此命为人忠直敬重,心慈性躁,深谋远虑,心中多劳,贵人钦敬,六亲冰碳,初 限行运,美中不足,中限渐入佳境,名利可佳,刚柔有济,二十九交佳运,可通花甲, 天赐麒麟送老,寿元八十五岁,卒于冬月之中。
(四两五钱)
少年辛苦,老来福禄双全之命
名利推来竟若何,前番辛苦后奔波。
命中难养男与女,骨肉扶持也不多。
注解:此命为人品性不刚不柔,心中无毒,自当自担,离祖之命,做事有始有终,池塘 鸳鸯觅食,或聚或散,骨肉六亲不得力,如嗥如风,劳心费力多成败,初限运寒多驳杂 ,祖业破败,重新白手成家,至三十五六方能成家立业,四十开外,如船遇顺风,五十 多岁安稳,末限滔滔事业兴,妻宫硬配,子息伴架送终,寿元七十五岁,卒于五月之中
(四两六钱)
改姓移居,自得福寿双全之命
东西南北尽皆通,出姓移居更觉隆,
衣禄无亏天数定,中年晚景一般同。
注解:此命为人心慈性躁,有口无心,有粗有细,一生奔波,六亲无靠,无大难,妻宫 无刑,祖业凋零,自立家计,早业如同败落萍,劳心用下一半生,交三十五六七八九岁 ,又平平度过几春秋,六十前后花开日,花开又招雨来淋,必定小人加暗害,平日之中 要小心,早子招维,只一子送终,寿元七十三,卒于冬月之中
(四两七钱)
早年多波折,晚年享福之命
此命推为旺末年,妻荣子贵自怡然,
平生原有滔滔福,财源滚滚似水流。
注解:此命为人品性纯和,做事公道,忠心待人气质高,与人干事恩仇报,兄弟不力祖 业微,早年驳杂多端,时来骨肉精,财源是归命,匹马单枪,初限运来二十八九三十岁初年大志难伸,晚年发展之命
初年运道未曾亨,若是蹉跎再不兴,
兄弟六亲皆无靠,一身事业晚年成。
注解:此命为人性躁,能随机应变,常近贵人,祖业无成,骨肉六亲少义,一个自立家计,初限交来财运如霜雪,中限略可成家,大运突来能立家业,妻有克,小配无刑,子息三人,寿元七十七岁,卒于七月之中。
(四两九钱)
交友多情有损,小心防之再发之命
此命推来福不轻,自成自立显门庭,
从来富贵人钦敬,使婢差奴过一生。
注解:此命为人品性纯和,做事勤俭,恩中招怨,兄弟有克,亲朋相援,赔酒赔饭,反 说不美,初限贫愁,交过二十六七岁,如逆水行舟,不能聚财,中限驳杂多端,刑妻克 子,交过四十岁,方可成家立业,般般遂意,件件称心,至四十七八岁有一灾,宁可损 财交过,后有十年好运来,家中钱财聚,三子送老,寿元七十三岁,卒于九月之中。
(五两)
衣食无亏,一生富贵之命
为利为名终日劳,中年福禄也多遭,
老来是有财星照,不比前番目下高。
注解:此命为人正直,伶俐灵巧,有机变,平生无大难,祖业无靠,自成自立,白手成家,亲朋冷落,兄弟少力,可得四方之财,好一双挣钱手,没有一个聚钱斗,满面春风人道好,一生不足自爱知,妻迟子晚,初限奔波,中限四十岁方交大运,犹如枯木逢春 ,四十九岁有一灾,其年福星高照,有十年大运,财禄丰盈大吉昌,妻宫铁硬同偕老, 子息一双可送终,寿元六十九岁,卒于冬月之中。
(五两一钱)
勤俭成家,老年自得福禄之命
一世荣华事事通,不须劳碌自亨通,
弟兄叔侄皆如意,家业成时福禄宏。
注解:此命为人做事有能力,且能随机应变,性燥能知其轻重,交朋结友如兄弟,气量 宽宏,见善不欺,逢恶不怕,平生正直,无大难刑险,只是少招祖业,初限衣禄无亏,子息晚招可实得,四十至五十,末限通达昌吉,福禄无亏,财源稳定,丰衣足食,高堂 大厦,妻宫友好,二子两女送终,寿元八十岁,卒于九月中。
(五两二钱〕
聪明能干,老来财禄丰足之命
一世荣华事事能,不须劳思自然宁,
宗族欣然心皆好,家业丰亨自称心。
注解:此命为人多才多能,心机灵变,祖业飘零,离乡可成家计,兄弟少力,驳杂多端 ,为人只是救人无功,重义轻财,财禄易聚易散,早年聚财凡事顺意,三十八九四十岁 如意称心,末限福如东海,寿比南山,只是妻克两硬无刑,有三子二女送终,寿元八十 三,卒于冬月之中。
(五两三钱〕
自己兴家立业之命
此格推为气量真,兴家发达在其中,
一生福禄安排定,却是人间一富翁。
注解:此命推来敬重双亲,有福有禄,气质高昂,少年勤学有功名,忠孝两全,心善无 毒,非富则贵,出外有人钦佩,四海名扬,到老荣华,限上无忧,一世健康,青年欠利 ,末限安享福禄,白鹤先生云:此骨三限之骨,子孙王相之局,初限早成家计,辛勤劳 苦,中限渐渐生财,重整门庭,末限荣华富贵,妻宫小配无刑,有三子二女送终,寿元 八十二,卒于冬月之中。
(五两四钱〕
一生清闲之命
此命推来厚且清,诗书满腹看功成,
丰衣足食自然稳,正是人间有福人。
注解:此命为人灵巧,胸襟通达,志气高强,少年勤学有功名,年轻欠利,腹中多谋, 有礼有义,有才有能,做事勤俭,一生福禄无亏,与人干事反为不美,亲朋戚友,四海 春风。中限光辉门庭,逢善不欺,逢恶不怕,事有始终,吉人天相,四海扬名,成家立 业,安然到老,高楼大厦,妻宫硬无刑,子息三人,只一子送终,寿元七十七,卒于春 光中。
(五两五钱〕
少年奋斗,晚年富贵之命
走马扬鞭争利名,少年作事费筹论,
一朝福禄源源至,富贵荣华显六亲。
注解:此命为人灵巧机巧,初限尚不聚财,只是虚名虚利,财来财去,一生勤于学,自 有功名,有衣禄,福星照命,中限交来可称心,求谋如意,出外有人恭敬,一生受贵, 要问其他消息,事后兴家发达,壮年滔滔财源旺,滚滚利顺来,迎春花正发,微风细雨 生,四十九交来末运,移花接木桂花香,夫妻百年同偕老,寿元八十之外,福禄荣昌, 卒于春光之中。
(五两六钱〕
仁义之人,老来富贵之命
此格推来礼义通,一身福禄用无穷,
甜酸苦辣皆尝过,滚滚财源稳且丰。
注解:此命为人性巧心灵,有口无心,事不保密,少年劳碌难免,志在四方,身心健康 ,前运乘阴少种树,怀才不遇,中限轻财,大举随行,移动得安然终日成,名声可望, 旧业换新,名利享通,五人盆石皆白发,倾自心田此后昆,此命小事宜放松,方有子息 ,寿元八十二岁,卒于冬月之中。
(五两七钱〕
人人钦敬,离祖成家之命
福禄丰盈万事全,一身荣耀乐天年。
名扬威震人争羡,此世逍遥宛似仙。
福禄丰盈万事全,一身荣耀显双亲,名扬威振人钦敬,处世逍遥似遇春。注解:此命为人心灵性巧,做事细致,足智多谋,志气高昂,少年勤学,名利成就,逍 遥快乐,气量宽宏,财禄有余,犹如锦上添花,中限以来,自成自立,渐渐荣昌,招人 进财,妻子晚配为美,四十至四十五六岁,看子成名,末限多得意,家中财产甚丰隆, 妻宫无克,二子送终,寿元七十三岁,卒于正月中。
(五两八钱〕
独创名利,晚年享福之命
平生福禄自然来,名利兼全福寿偕,
雁塔题名为贵客,紫袍金带走金阶。
注解:此命为人忠直,做事有头有尾,身清气高,六亲有旺,兄弟少帮,妻宫并重,子 息二三,他乡创业,官臣之命,只是与人干事,恩中招怨,反为不美,早限财来财去, 中限兴旺,一子送终,寿元八十三岁,卒于四月之中。
(五两九钱〕
宜安分守己,福禄自足之命
细推此格妙且清,必定才高礼义通,
甲第之中应有分,扬鞭走马显威荣。
注解:此命为人性情暴躁,刚强,平生不受亏,所谓量大多智多能,受人尊敬,祖业凋 零,兄弟只可画饼冲饥,亲戚则是望梅止渴,劳心见早,发福见迟,独立成家,只是早 聚财,逢凶化吉,驳杂交过二十开外,方得顺利开怀,中限之命可进四方之财,出外有 贵人助力,可精手艺营业,方能兴家立业,此间或有小疾相侵,再交限方得安然,坐享 福禄,妻宫之配龙虎马牛,一子送老,寿元八十岁,卒于六月之中。
(六两〕
鹤立鸡群,显祖扬宗之命
一朝金榜快题名,显祖荣宗立大功,
衣禄定然原裕足,田园财帛更丰盈。
注解:此命为人灵机性巧,胸襟发达,志气高强,少年勤学,有功名之格,青年欠利, 腹中多谋,有礼有仪,有才能,做事勤俭,一生福禄无亏,与人做事,有力无功,兄弟 骨肉中多谋,交朋友,四海名扬,中限光辉门户,早能发达,义利分明,末限成家立业 安然到老,高楼大厦,妻宫两硬无刑,子息三人,只有一人送终,寿元七十七岁,卒于 春光之中。
(六两一钱〕
名利双收,一生富贵之命
不作朝中金榜客,定为世上大财翁,
聪明天赋经书熟,名显高科自是荣。
注解:此命为人心秉直,聪明利达,心善口快,有才能。见善不欺,逢恶不怕,刚柔有 济,事有始终,早能宽大,而能聚财,祖业如旧,六亲兄弟有靠,自立家计出外更好, 二十至二十五六七八九岁有险,三十开外古镜重磨,明月再圆,六十六至七十方交大运 妻宫小配,寿元七十七岁,卒于春光之中。
(六两二钱〕 书聪明,特任高官,大振家风之命
此命生来福不穷,读书必定显亲宗,
紫衣金带为卿相,富贵荣华皆可同。
注解:此命为人忠直敦厚,心无所毒,性巧灵敏,深谋远虑,吉人天相,心中多劳,受 人钦叹,美中不足,中限渐入佳境.
上海闵行中铁建万科朗拾花语售楼处电话:400-9966-224【预约热线】(一对一热情服务)如有问题欢迎来电咨询,专业一对一热情服务,让您用专业眼光去买房。