越秀·外滩樾
售楼处电话☎:400-998-9694✔✔
如有问题欢迎来电咨询,来电即可享受买房优惠!
预约来电尊享购房优惠,可预约案场内部销售人员,专业一对一热情服务,让您用专业眼光去买房。
楼盘项目全面介绍,本电话为开发商提供线上售楼处电话,楼盘项目全面介绍(包含楼盘简介,楼盘积分,房价,价格,楼盘地址,户型图,交通规划,备案价,项目配套,楼盘详情,售楼处电话,最新消息,最新详情,周边配套,最新进展等详情咨询)
越秀·外滩樾售楼处电话☎:400-998-9694✔✔
「越秀·外滩樾」

内环内虹口北外滩
外滩仅1公里/陆家嘴1.5公里
建面约238/305/318/338㎡风貌别墅
仅48套房源可售 总价约4000万起

越秀·外滩樾售楼处电话☎:400-998-9694✔✔
在顶豪圈层有一句话:所谓家族的行宫,一定是要根植于土地之上的别墅!
如果说外滩代表了上海的过去,陆家嘴代表了上海的当下,那么北外滩就代表了上海的未来。而【越秀外滩樾】就是将代表上海城市繁华的黄金三角,整个装进了自己的步行圈。
效果图

越秀·外滩樾售楼处电话☎:400-998-9694✔✔
中国人对家族的情怀,亘古未变,而一套别墅,也早已成为家族意识传承的重要载体,同时担当着家族的荣耀。占位北外滩核心地段的越秀·外滩樾正是为49个传奇家族准备的行宫!
当然,除了地段和业态本身,【越秀·外滩樾】的收藏价值还来源于其注重居住舒适度的设计与无与伦比的尊崇服务。
效果图

越秀·外滩樾售楼处电话☎:400-998-9694✔✔
最新消息:虹口北外滩,低密风貌别墅临港越秀北外滩,项目定名【越秀外滩樾】样板房已开放预约!
项目基础信息
【项目名称】越秀·外滩樾
【开发商】上海漕越经济发展有限公司
【项目位置】上海市·虹口区·梧州路
【项目类别】70年产权住宅
【项目类型】风貌别墅
【可售户数】48套
【容积率】约1.3

越秀·外滩樾售楼处电话☎:400-998-9694✔✔

百年前的高端工艺元素的经典转译,让海派造诣世纪传承,于历史和未来之间收藏百年上海。

越秀·外滩樾售楼处电话☎:400-998-9694✔✔
清水红砖:百年前先进舶来品代表,10种以上拼接工艺铺陈
装饰窗楣:同源中共二大会址、张爱玲故居,装饰主义经典元素
弧形韵线:邬达克式的建筑曲线,同源远东第一豪宅的优雅轮廓
海派山墙:带肩仿观音兜,中西文化融合的典藏之美

越秀·外滩樾售楼处电话☎:400-998-9694✔✔
【越秀·外滩樾】是世界知名大师汇聚一堂的灵感结晶,比如项目的设计总顾问邀请了程绍正韬。他是建筑室内设计之东方主义集大成者,致力于东方文化的坚守与创新,打破惯常的职业思维,将生活方式化作一种哲学态度,融入空间设计,让设计不止于作品,再比如项目还邀请了城市文化大师李玮珉。

程绍正韬,集文人、工业家、艺术家、设计师、哲学家、修行者身份于一身,建筑室内设计之东方主义集大成者,致力于东方文化的坚守与创新。他打破惯常的职业思维,将生活方式化作一种哲学态度,融入空间设计,让设计不止于作品。

越秀·外滩樾售楼处电话☎:400-998-9694✔✔
李玮珉,撑起中国豪宅设计半壁江山,擅长为城市塑造文化符号建筑作品。他的作品更多用极简的方式来表明态度,崇尚简而高效的现代生活方式。庄重的建筑语汇,适时注入艺术、自然与美学,让空间充满想象力。

大师操刀,必然不同凡响。
首先项目承袭了百年前的高端工艺元素,让海派传承得以延续。将清砖立柱、古典门头、岩石山墙等经典海派建筑风貌转译和突破,更适配现代人居审美,于历史和未来之间收藏百年上海底蕴!

越秀·外滩樾售楼处电话☎:400-998-9694✔✔
其次,项目超越了以往风貌建筑的尺度感,创新了风貌规制,带来了城心难得的双拼、三拼别墅!大窗墙比大南向开间保证了极高的舒适度。大面积运用奢石的外立面,则把名门望族的尊贵身份和非凡气度体现的淋漓尽致!

效果图
巷弄新生:跨越风貌豪宅正统,打造双拼、三拼、多联排别墅的天地私享
建筑新生:创新风貌规制,致微而筑的建筑腔调赏新
美学新生:转译远东第一豪宅立面美学,收藏名门望族生活
材质新生:百年红砖、釉面砖、印度进口幻彩红奢石运用,型制家族传承

越秀·外滩樾售楼处电话☎:400-998-9694✔✔
最后,项目社区配置的三处会所、泛会所空间合计约2500㎡,包含私宴厅、恒温泳池、私人运动空间等内容,提供酒店级高奢服务!

越秀·外滩樾售楼处电话☎:400-998-9694✔✔
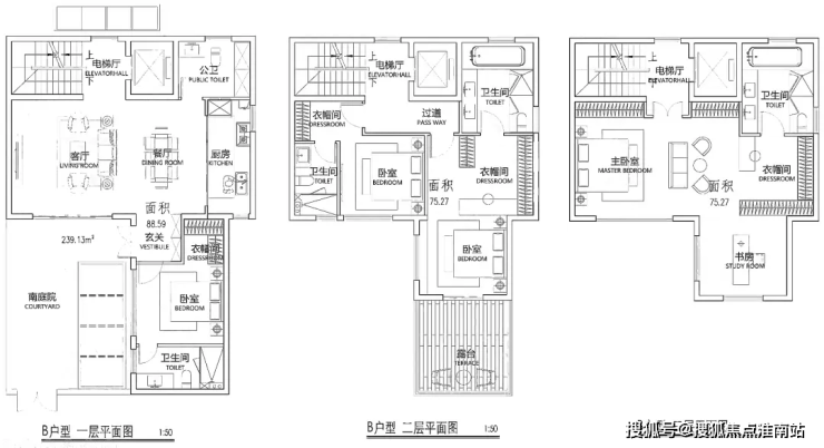
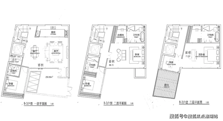
【越秀·外滩樾】项目将呈现48套低密风貌里弄住宅,建筑面积约238-338㎡户型。户型图过程稿如下(过程稿仅供参考,最终以实际为准)。

建面约236.25㎡A户型▼

越秀·外滩樾售楼处电话☎:400-998-9694✔✔
建面239.13㎡B户型▼

建面250.89㎡B-3户型▼

C户型▼

越秀·外滩樾售楼处电话☎:400-998-9694✔✔
建面291.42㎡D户型▼

【41载越秀 | 千亿级开发商 与上海共卓越】
国内资产规模最大的地方驻港企业之一越秀集团
41载国匠越秀 千亿级开发商——越秀地产
中国第一代商品房缔造者
已进驻30多个核心城市
开发了300多个大型住宅和50多个大型商业物业
2024中国房企综合实力TOP9
(信息来源:亿翰智库)

越秀·外滩樾售楼处电话☎:400-998-9694✔✔
项目区位配套
【越秀·外滩樾】项目地块四至范围, 东至:梧州路,隔壁是中皇广场;西至:hk270B-02,隔壁就是1933老场坊;南至:周家嘴路 北至:柘皋路。

越秀·外滩樾售楼处电话☎:400-998-9694✔✔
【一座码头 启航外滩百年世界史】
项目所在地北外滩,是百年前上海的“下海”地。作为上海开埠后第一座码头的诞生地,北外滩率先“开眼看世界”,海纳万国文化风潮,众多此后影响中国的创举在此诞生,是上海最早的“十里洋场”
(*示意图,图片来源于网络)

越秀·外滩樾售楼处电话☎:400-998-9694✔✔
【一江一河 再立世界上海新传】
傲立“一江一河”交汇处(直线距离约1.1KM),未来将打造成为彰显上海城市核心竞争力的黄金水岸和具有国际影响力的世界级城市会客厅,出入之间,相逢城市高阶未来
(*示意图,图片来源于网络)

越秀·外滩樾售楼处电话☎:400-998-9694✔✔
【北外滩 面向世界的上海新封面】
北外滩,与外滩、陆家嘴并称为上海的“黄金三角”。将以2座陆家嘴的商务体量规划,新天地2.0生活圈打造,成为上海跃升世界舞台的“中心发力”新引擎
(*示意图,图片来源于网络)

越秀·外滩樾售楼处电话☎:400-998-9694✔✔
【中央商务区 未来上海腾飞引擎】
区域能级:总开发面积约840万方,40栋甲级写字楼城市地标:480米浦西第一高楼,19栋摩天大楼集群金融产业:2100+家金融企业赋能,资产管理规模超8万亿元,位居全市第一航运格局:4500+家航运企业集聚(上港集团、中远海运等),打造国际航运中心全球贸易:2500+家贸易企业入驻(摩亚方舟、银联商务等)新兴产业:129家新增高新技术企业,113家市区科技小巨人企业(数据来源:上海市规划局《北外滩地区控制性详细规划》)
(*示意图,图片来源于网络)

越秀·外滩樾售楼处电话☎:400-998-9694✔✔
距离外滩商圈仅约1公里
项目所在地北外滩,是百年前上海的“下海”地。作为上海开埠后第一座码头的诞生地,北外滩率先“开眼看世界”,海纳万国文化风潮,众多此后影响中国的创举在此诞生,是上海最早的“十里洋场”。
示意图,图片来源于网络

越秀·外滩樾售楼处电话☎:400-998-9694✔✔
轨道交通方面:项目位于虹口区嘉兴路街道,距离地铁4、10、19号线换乘站海伦路站约600米,交通十分便捷。

交通路网示意图,仅供参考

越秀·外滩樾售楼处电话☎:400-998-9694✔✔
4号线海伦路站
商业配套方面:项目约2公里内,多元繁华构筑封面商业圈:北外滩商圈直线距离约500米,外滩商圈直线距离约1000米,陆家嘴商圈直线距离约1500米,瑞虹商圈直线距离约900米。

越秀·外滩樾售楼处电话☎:400-998-9694✔✔
教育资源方面:2km内就有虹口区第二中心小学、华东师大一附中实验小学、华东师大一附初中等优质配套。*施教区及就学政策以教育部门规划为准
示意图,图片来源于网络

越秀·外滩樾售楼处电话☎:400-998-9694✔✔
生态资源方面:2.5公里北外滩滨江绿地(约800m直达),四川北路公园、和平公园、鲁迅公园3大公园环伺,于滨江和城市低密绿芯之间,肇启当代诗意生活传序。
示意图,图片来源于网络

越秀·外滩樾售楼处电话☎:400-998-9694✔✔
生活医疗方面:地块紧邻上海第一人民医院(三甲),1km左右就有集购物、餐饮、娱乐休闲、办公及服务式公寓为一体的综合商业体——瑞虹天地,商业面积55万方,包括太阳宫、月亮湾、星星堂、瑞虹坊四个部分。

越秀·外滩樾售楼处电话☎:400-998-9694✔✔
图源网络,仅供参考
地块西侧的1933老场坊,早前是上海工部局宰牲场;而如今,成为了众多文艺青年打卡拍照的必游胜地。此次也要求保留工部局旧址建面约1800㎡。

买房注意事项有哪些
朋友们,买房那可是人生中的一件大事,好多人辛苦打拼半辈子,就为了能有一套属于自己的房子。可买房的门道可多了去了,一不小心就容易踩坑。今天咱就来唠唠买房时最关键的三项注意事项,让你在买房路上少走弯路。
一、产权问题——买房的“定海神针”
产权问题,那可是买房的核心,就像房子的“身份证”,没了它,这房子买得心里都不踏实。
首先,你得搞清楚房子的产权性质。现在市场上的房子产权性质五花八门,有商品房、经济适用房、小产权房等等。商品房产权明晰,可以自由买卖,一般没啥大问题。但经济适用房就有讲究了,它有一定的购买条件和限制,而且在一定年限内是不能随意交易的。小产权房就更得小心了,它没有国家颁发的产权证,不受法律保护,买了之后可能会面临很多麻烦,比如无法办理过户、拆迁时得不到合理补偿等等。我有个朋友,贪便宜买了套小产权房,结果后来房子要拆迁,他因为没有合法产权,补偿款比有产权的邻居少了一大截,肠子都悔青了。

其次,产权年限也很重要。住宅的产权年限一般是70年,商业用房的产权年限是40年或50年。在买房的时候,一定要问清楚房子的产权年限还剩多少年。有些房子可能已经使用了很多年,产权年限所剩无几,这就会影响到你未来的居住和房子的价值。而且,产权年限到期后,续期的问题也得提前了解清楚,虽然目前国家有相关规定,但具体情况还得看政策的变化。
最后,产权纠纷也是个大问题。在买房之前,一定要了解房子是否存在产权纠纷。比如,房子是否被抵押、是否被查封、是否存在一房多卖的情况等等。你可以通过查询房产登记信息、向开发商或卖家询问等方式来了解这些情况。如果房子存在产权纠纷,那你买了之后就会陷入无尽的麻烦之中,甚至可能会钱房两空。
二、地理位置——决定房子价值的“黄金要素”
地理位置好不好,直接关系到房子的价值和你未来的生活质量。
交通是否便利是地理位置的重要考量因素。一个好的房子,周边应该有完善的交通网络,公交、地铁站点近,出行方便。想象一下,如果你每天上班都要花一两个小时在路上,那得多累啊。而且,交通便利的地方,商业、教育、医疗等配套设施一般也比较完善。比如,靠近地铁站的房子,周边往往会有商场、超市、医院、学校等,生活起来非常方便。我有个同事,为了图便宜买了个偏远地方的房子,结果每天上班都要倒好几趟车,早上天不亮就得出门,晚上回到家天都黑了,生活质量大打折扣。

周边环境也不能忽视。周边环境包括自然环境和社会环境。自然环境好的地方,空气清新、风景优美,有利于身心健康。比如,靠近公园、湖泊、山林的房子,就是很多人梦寐以求的居住之地。社会环境也很重要,周边治安状况要好,不能有太多的噪音和污染。如果房子旁边就是工厂、垃圾处理场或者夜市,那噪音和污染肯定会影响你的生活质量。而且,治安不好的地方,你住得也会提心吊胆。
未来发展潜力也是选择地理位置时需要考虑的。有些地方虽然现在看起来比较偏僻,但未来可能会有大的发展规划,比如会建设新的商业区、学校、医院等。这样的地方,房子的升值潜力就比较大。你可以关注当地政府的发展规划,了解一些重点发展区域,说不定就能找到性价比高的房子。
三、房屋质量——关乎居住安全的“生命线”
房屋质量可是买房的重中之重,它直接关系到你的居住安全和舒适度。
首先,要检查房屋的结构安全。房屋的结构就像人的骨架,如果结构有问题,那房子就存在很大的安全隐患。你可以通过观察房屋的墙体是否有裂缝、梁柱是否有变形等方式来初步判断房屋的结构是否安全。如果有条件的话,最好请专业的验房师来进行检测。我有个邻居,买了套二手房,住进去没多久就发现墙体有裂缝,后来经过检测,发现房子的结构存在问题,需要进行加固处理,这不仅花了不少钱,还让他担惊受怕了好久。
其次,装修质量也不能马虎。现在很多房子都是带装修出售的,但装修质量参差不齐。你要仔细检查装修的材料是否环保、工艺是否精细。比如,墙面是否平整、地板是否空鼓、门窗是否密封等等。有些开发商为了降低成本,会使用一些质量差的装修材料,这些材料可能会释放有害气体,危害你的健康。而且,装修工艺不好,也会影响房子的美观和使用寿命。

最后,配套设施的质量也很重要。配套设施包括水电、燃气、暖气等。你要检查水电线路是否老化、燃气管道是否安全、暖气设备是否正常运行。这些配套设施如果出现问题,会给你的生活带来很大的不便。比如,水电线路老化可能会导致漏电、短路等问题,燃气管道泄漏会引发安全事故,暖气设备不正常会影响你冬天的取暖。
朋友们,买房是一件大事,一定要谨慎再谨慎。产权问题、地理位置、房屋质量这三项关键注意事项,你可得盯紧了。在买房之前,多做功课,多了解相关信息,最好找专业人士咨询一下。这样才能买到一套让自己满意的房子,开启美好的居住生活。希望大家都能买到心仪的房子,过上幸福的生活!
越秀·外滩樾
售楼处电话☎:400-998-9694✔✔
如有问题欢迎来电咨询,来电即可享受买房优惠!
预约来电尊享购房优惠,可预约案场内部销售人员,专业一对一热情服务,让您用专业眼光去买房。
楼盘项目全面介绍,本电话为开发商提供线上售楼处电话,楼盘项目全面介绍(包含楼盘简介,楼盘积分,房价,价格,楼盘地址,户型图,交通规划,备案价,项目配套,楼盘详情,售楼处电话,最新消息,最新详情,周边配套,最新进展等详情咨询)
越秀·外滩樾售楼处电话☎:400-998-9694✔✔
楼盘项目全面介绍,本电话为开发商提供线上预约售楼电话,楼盘项目全面介绍(包含楼盘简介,均价,房价,现房,期房,别墅,叠墅,大平层,价格,楼盘地址,户型图,交通规划,备案价,备案名,项目配套,样板间,开盘时间,认筹时间,楼盘详情,售楼处电话,最新消息,最新详情,周边配套,一房一价,最新进展等详情咨询)楼盘详情丨价格丨更多优惠丨机不可失丨欢迎致电丨诚邀品鉴!售楼处位置丨特价房丨工抵房丨剩余房源丨户型图丨最新消息丨免责声明:将文章内容综合来源于网络、只作分享,版权归原作者所有!!如有侵权,请联系我们,我们第一时间处理如有问题欢迎来电咨询,专业一对一热情服务,让您用专业眼光去买房。如果您想了解更多楼盘详情,欢迎提前预约拨打