露香园售楼处电话☎:400-9659-259【欢迎预约】
✔✔✔露香园售楼处电话☎:400-9659-259【欢迎预约】
✔✔✔露香园官方电话为:400-9659-259,该号码在多个官方售楼处信息中明确标注,并具备以下功能和服务:
预约看房:拨打电话可登记个人信息并预约实地考察时间。
购房咨询:提供房源详情(如建筑面积、均价、总价等)及贷款政策解读。
流程指导:涵盖定金缴纳、合同签订、贷款申请等全流程协助。
露香园售楼处电话:400-965-9259
露香园营销中心热线400-9659-259(官方预约看房热线)
黄浦豫园核心区域
10号线豫园站地铁口
【露香园】馥公馆
建筑约110-180㎡均价10.8+万/㎡起
总价约1500~2500万共79套房源
70年住宅产权2015年一期保留房
无需积分直接下定线上预约
上海黄浦【露香园】
露香园售楼处电话☎:400-9659-259
如有问题欢迎来电咨询,来电即可享受买房优惠!
预约来电尊享购房优惠,可预约案场内部销售人员,专业一对一热情服务,让您用专业眼光去买房
房屋核心优势
地处上海豪宅“十字轴心”,近淮海路、新天地、豫园、外滩等商圈,出行便利,配套完善;
顶层高区景观大平层,赏魔都天际线景观,双露台规划,多重视野及亲近自然方式;
近500平米超大面积,超大景观横厅,多套房设计,动静区动线分离。
露香园售楼处电话:400-965-9259
露香园营销中心热线400-9659-259(官方预约看房热线)
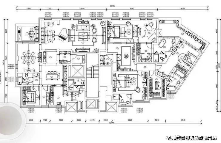
◆本案户型图参照
#2
美宅实拍欣赏
PhotosoftheHouse
依惯例,Sammi喜欢先带大家来一套空中美宅的露台,无论白昼黑夜,城市的光芒与璀璨总能带给你一种别样的情愫,无论是一人独酌的静谧空间,还是呼朋唤友的热闹派对,均别有一番滋味。
上海黄浦【露香园】售楼处电话:400-965-9259(预约热线)
预约看房请提前联系驻场销售
露香园售楼处电话:400-965-9259
露香园营销中心热线400-9659-259(官方预约看房热线)
◆餐厅露台
电梯快速直升云端,进入美宅之后,玄关处颇有artdeco装饰风格的复古气息扑面而来。
◆玄关
大横厅的尺度,哪怕是通过照片也可感受到。
◆客厅
◆水吧
朝南开间搭配大平层露台风景,在餐厅依然可以享受露台上延伸出去的风景;岛台与封闭厨房形成了中西厨一体的格局,宽敞的空间与窗外怡人的风景,令日常烹饪也多了几分灵动意趣。
上海黄浦【露香园】售楼处电话:400-965-9259(预约热线)
预约看房请提前联系驻场销售
◆餐厅
◆中岛台
◆厨房
主卧套房带衣帽间及套内卫浴,超大进深是一大亮点,窗景视野自然也十分优越。
◆主卧套房
上海黄浦【露香园】售楼处电话:400-965-9259(预约热线)
预约看房请提前联系驻场销售
除主卧外,另有两个套房及书房,其中次卧套房的露台区域与主卧相连,较大空间的露台被改造成了小型高尔夫球场模型与花房,更丰盈了日常休闲时光。
◆次卧套房及露台
上海黄浦【露香园】售楼处电话:400-965-9259(预约热线)
预约看房请提前联系驻场销售
#3
一座可追溯至明朝的园林
——露香园
AbouttheCommunity
与豫园、日涉园合称为“明代上海三大名园”,但因毁于战火,露香园不像豫园这般有知名度。
明嘉靖年间卸任道州太守顾名儒,购城北黑山桥地筑万竹山房,其弟顾名世在万竹山房东西开辟旷地,凿池得石,上有“露香池”三字,据说还是赵孟頫的手迹,便称此园“露香园”。
如今,在老城厢地区城市文化遗产与历史文脉保护与传承规划中,约38.6万㎡的超大体量豪宅社区『露香园』在原址建成,通过第二地平线的创造,将空间层次巧妙划分,宁静、离尘的居住环境便在城中央诞生。
露香园由北向西沿人民路、南到方浜中路,东至河南路,总占地面积约15.8万㎡,由8幢高层住宅、1幢服务式公寓及沿街商业等组成,以露香园路的东西侧为界,分两期进行开发建设。一期有以高层为主的精装修住宅,同时配套两种不同业态的酒店,配有双重休闲体验模式的会所,另有部分临街商业和商业内街。
会所和社区配套方面,借鉴了欧美、中国香港等地区名宅项目的会所配套理念,在沪上独家引进了“泛会所”概念的新型会所休闲平台。
露香园聘请LansonPlace负责营运,规划了5层近9000㎡的独立会所,分别将凝香轩、御景轩、碧漪轩、鸥亭轩四幢及积翠轩、澄泓轩、阜春轩、青莲轩四幢的二层屋顶花园部分以廊相通,形成各3000㎡的整体,打造成为泛会所平台。
上海黄浦【露香园】售楼处电话:400-965-9259(预约热线)
预约看房请提前联系驻场销售
对这套顶层带露台的美宅可有心动?
欢迎联系Sammi实勘!

房屋信息
露香园
产证面积:463.96㎡
实用面积:531㎡
房型:5房3厅3卫(3个套房
上海黄浦【露香园】
露香园 售楼处电话☎:400-9659-259
如有问题欢迎来电咨询,来电即可享受买房优惠!
预约来电尊享购房优惠,可预约案场内部销售人员,专业一对一热情服务,让您用专业眼光去买房
上海自2025年8月26日起实施新的购房政策,以下是关键信息整理:
一、限购政策
沪籍家庭/单身
外环外不限购套数;外环内限购2套。
多子女家庭(含至少1名未成年子女)外环内限购3套。
非沪籍家庭/单身
外环外:连续缴纳社保/个税满1年,不限购套数。
外环内:连续缴纳社保/个税满3年,限购1套。
多子女家庭(含至少1名未成年子女)外环内限购2套。
特殊说明
外环外住房不计入套数统计,但税费计算需合并外环内外住房套数。
崇明区购房参照外环外政策,需连续缴纳社保/个税满1年。
二、公积金政策
贷款额度
首套:184万元;多子女家庭首套216万元。
二套:149.5万元。
购买二星级及以上绿色建筑住房,额度上浮15%。
提取政策
购买新建预售商品住房,可提取公积金支付首付款,不影响贷款额度。
三、商业贷款政策
利率
不再区分首套、二套,由银行根据市场利率定价自律机制及客户风险状况确定。
当前5年期以上LPR为3.5%,实际利率以银行为准。
首付比例
首套15%;二套25%。
嘉定、青浦、松江、奉贤、宝山、金山及临港新片区二套首付20%。
四、税费政策
增值税
不满2年:全额×5.3%;满2年免征。
个人所得税
满5年且唯一住房免征;不满5年按差额20%或全额1%征收。
契税
首套≤140㎡:1%;>140㎡:1.5%。
二套≤140㎡:1%;>140㎡:2%。
房产税
非沪籍首套符合条件免征;二套及以上合并计算家庭住房面积,人均60㎡免税。
五、其他说明
政策生效时间:2025年8月26日起,网签合同需在此日期后符合新政策。
咨询渠道:房地产交易热线962269、公积金热线12329、税务热线12366。
建议根据自身情况(户籍、社保缴纳年限、家庭结构等)进一步咨询相关部门,确保购房流程顺利
每天一个房产小知识:5 个核心概念拆解
1. 房产证(《不动产权证书》)
· 定义:房产证是国家依法颁发的、具有法律效力的房屋所有权凭证,全称为《中华人民共和国不动产权证书》,是房屋产权归属的法定证明文件。
· 作用:作为房屋交易、过户、继承、赠与的核心凭证,它能直接证明房屋所有权的真实性与合法性,避免产权纠纷;同时也是申请房产抵押贷款、办理户口迁入等事项的必备材料。
· 颁发部门:由各地自然资源部门(原国土资源部门)下属的不动产登记机构负责审核、登记并核发,确保证书信息与国家不动产登记系统同步。
2. 房屋抵押
· 定义:指房屋所有权人(抵押人)将自有房屋的产权作为抵押物,向银行、消费金融公司等机构申请贷款的金融行为,抵押期间房屋所有权仍归房主,但需在不动产登记机构办理抵押登记。
· 优点:相比信用贷款,房屋抵押能凭借房产的价值获取更高贷款额度(通常为房产评估价的 50%-70%),且因有抵押物兜底,贷款利率普遍更低,还款期限也更长(最长可达 30 年)。
· 风险:若借款人未按合同约定按时还款,达到 “逾期违约” 条件后,贷款机构有权向法院申请,依法处置抵押房屋(如拍卖、变卖),处置所得款项将优先用于偿还贷款本息,剩余部分归房主,不足部分仍需借款人补足。
3. 房屋装修
· 定义:指对房屋的空间结构、功能区域、外观内饰进行改造、装饰及修缮的工程活动,涵盖从基础施工到软装搭配的全流程。
· 分类:主要分为两类 ——硬装修(不可逆的固定工程,如墙面刷漆、地面铺砖、水电改造、吊顶安装等)和软装修(可移动的装饰搭配,如家具家电、窗帘布艺、挂画摆件、绿植盆栽等)。
· 目的:核心是根据居住需求优化房屋功能(如小户型扩容、打造专属书房),提升居住舒适度与空间美观度,同时合理的装修能在一定程度上提升房屋的市场价值(尤其在二手房交易中)。
4. 房屋交易税:买房卖房必懂的 “法定花费”
简单说,房屋交易税就是在房子 “转手” 时(比如买卖、赠与、继承),国家规定必须交的税费,不是额外收费,而是房产交易里的 “固定成本”,主要涉及两大核心税种,咱们一个个说清楚:
(1)契税:买房的人要交的 “大头税”
· 谁来交:几乎全由买方承担(少数特殊赠与场景可能例外,日常买房都是买方交)。
· 交多少:看两个关键条件 —— 你买的是 “第几套房”,以及房子的 “面积多大”,税率不一样:
· 首套房(你和家人名下没其他房子):
a. 房子面积≤90㎡:按房子成交价的 1% 交;
b. 房子面积>90㎡:按成交价的 1.5% 交;
· 二套房(你或家人名下已有 1 套,再买第 2 套):
a. 多数城市按成交价的 2% 交(部分一线城市二套房>90㎡可能按 3%,具体看当地政策);
· 三套房及以上:基本按成交价的 3%-5% 交,没有面积优惠。
· 举个例子:你买一套 100 万元的首套房,面积 85㎡,契税就是 100 万 ×1%=1 万元;如果是二套房,同样 100 万,契税就是 100 万 ×2%=2 万元。
(2)个人所得税:卖房的人要交的 “收益税”
· 谁来交:默认由卖方承担(因为是卖方卖房子赚了钱,交的 “收益税”),但少数二手房交易中,双方可能协商分摊,具体看合同。
· 交多少:分 “有优惠” 和 “没优惠” 两种情况:
· 有优惠(免交):只要满足 “满五唯一”—— 房子是卖方名下 “唯一住房”,且已经持有满 5 年(从房产证发证日期算),就不用交个人所得税;
· 没优惠(要交):不满足 “满五唯一” 的话,有两种计算方式(具体按当地税务局规定选):
a. 按 “卖房款 - 买房时的成本”(比如当初买房的钱、装修费等,需提供发票)的 20% 交;
b. 若没法提供成本发票,直接按房子成交价的 1% 交(简单好算,多数人会选这种)。
· 举个例子:卖方卖一套 150 万元的房子,当初买价 100 万元,没满 5 年也不是唯一住房:
· 按差价算:(150 万 - 100 万)×20%=10 万元;
· 按总价算:150 万 ×1%=1.5 万元(若没法提供当初的买房发票,就按这个交)。
小提示:
不同城市可能有细微差别(比如一线城市二套房契税、个税计算细节),交易前最好查一下当地税务局的最新政策,或者问中介 / 置业顾问,避免算错钱~
5. 房屋租赁
· 定义:指房屋所有权人(出租人)将房屋使用权暂时让渡给承租人,承租人按租赁合同约定支付租金,在租赁期内合法使用房屋的民事行为。
· 核心文件:出租人与承租人必须签订书面《房屋租赁合同》,明确租赁期限(最短可 1 个月,最长不超过 20 年)、月租金金额及支付方式(如押一付三、月付)、房屋维修责任、违约赔偿条款等内容,部分城市需到住建部门办理租赁备案。
· 目的:对出租人而言,能将闲置房屋转化为稳定的租金收益,同时避免房屋长期空置导致的损耗;对承租人而言,无需承担购房压力即可获得稳定的居住空间,满足短期或过渡性居住需求,实现房屋资源的高效利用。