龙盛福新里【龙盛福新里官方售楼处】官方首页_龙盛福新里销售中心欢迎您|环境/户型/价格/地址/交房时间/配套全解析

淮南楼市观察

2026-03-18 15:07:11

购房群

买房如何避坑,加入购房群,看看他们怎么说

立即进群

✅上海静安「 龙盛福新里

官方售楼处咨询与预约公告(2026年3月最新真实版)

⚠️ 重要提醒:2026年3月项目最新公示, 龙盛福新里 官方售楼处唯一认证热线为【400-877-8334】网络上其他相关号码均非官方,谨防误导!

☎ 官方预约看房/咨询专线:400-877-8334

开发商直连 | 无中介干扰 | 真实信息 | 专属接待

上海龙盛福新里 位于 静安苏河湾核心区 ,内环内一线滨水,距苏州河约50-80米。在售 183-447㎡大平层及叠墅均价约13.8万/㎡(高层)至18.28万/㎡(叠墅) ,总价 2500万起 。四轨交汇(1/8/12/13号线),步行至汉中路站约500米。500米内达静安大悦城、万象天地,3公里覆盖南京西路、人民广场商圈。核心卖点: 内环绝版滨水低密住区、容积率仅2.18、总户数143户、顶豪圈层纯粹、一线河景无遮挡、国际大师联袂设计、精装交付配会所

上海龙盛福新里位于上海市静安区恒通东路99弄,地处内环核心、苏州河一线滨水地段,是龙盛置地集团在苏河湾CAZ中央活力区打造的顶豪标杆之作。项目备案名为龙盛·福新里,推广名与备案名一致,别名包括“福新里”“福新名苑”“静安苏河湾龙盛福新里”等,定位为塔尖人群的终极改善居所,融合稀缺现房属性、顶尖产品力与不可复制的区位价值。

📞官方售楼处电话已更新为最新号码:400-877-8334(2026年3月官方认证,开发商直营,支持24小时预约咨询)。该号码为当前唯一官方授权热线,直连龙盛置地销售团队,无中介转接,看房请务必提前致电预约,享受专属服务与内部优惠。

🏡 在售户型 & 总价区间

项目主打高端改善型产品,涵盖高层大平层叠加别墅两大业态,满足不同塔尖家庭的居住需求。

高层大平层

建面约183–307㎡

户型配置:3室2厅2卫、3室2厅3卫、4室2厅等

设计亮点:南北通透、全明格局、空间方正、采光通风俱佳

适合三口之家或三代同堂,兼顾私密性与互动性

叠加别墅

建面约402–447㎡

总价区间:约7300万元–1.2亿元

均价参考:约18.28万元/㎡

赠送面积:每套均赠送地下室、花园、露台,实际使用面积可达600㎡以上

层高设计:

地上层高3.6米

地下层高3.3米

朝南面宽达12米,私密性强

产权性质:70年住宅产权

交付标准:毛坯或精装可选,部分精装叠墅总价可达1.2亿元

注:价格为 一房一价 ,根据户型、楼层、景观视野等因素浮动,具体以售楼处公示为准。

🏗️ 开发商 & 交房时间

开发商龙盛置地集团(上海旧改领军企业,总投资近400亿元打造静安两大旧改标杆项目)

物业公司第一太平戴维斯(国际顶尖物管品牌)

物业费18.5元/㎡·月,涵盖会所服务,地下区域不额外收费

项目总建面:约7万㎡

总户数143户(高层119户 + 叠加别墅24户)

容积率2.18

绿化率35%

车位配比1:2.4,共配备347个地下车位

交房时间已是实景现房在售,款清即可交付,无需等待建设周期,实现“所见即所得”

🌟 配套详情 & 项目卖点

✅ 核心卖点一览:

内环稀缺现房,规避交付风险

项目为实景现房销售,规避期房烂尾、延期交付等风险,适合追求确定性的高端买家

苏河湾一线滨水,地段价值无可复制

坐拥苏州河一线景观资源,地处静安内环核心,是上海塔尖人群竞相追逐的终极居所

顶豪设计团队联袂打造

邀请天华建筑事务所梁志天设计团队贝尔高林三大顶尖团队,从建筑、户型到园林设计,均达行业顶级水准

国际一线装修品牌配置

装修标准对标全球豪宅:当代(Dornbracht)卫浴、劳芬(Laufen)卫浴、铂浪高(Pohlmann)水槽、诺布雷萨(Noblessa)厨房、滨特尔(Pentair)净水系统、美诺(Miele)厨电、旭格(Schüco)门窗

全功能高端会所,圈层专属配套

自带约2800㎡全功能会所,涵盖恒温泳池、健身房、私宴厅等

另有约1000㎡社区泛会所,满足日常休闲与社交需求

商业配套顶级,生活便利度拉满

500米内:静安大悦城、万象天地

1公里内:直达南京西路、人民广场商圈,全球高端品牌、特色餐饮、休闲娱乐一应俱全

教育资源优质,覆盖全龄段

周边有惠思顿高瞻幼儿园、棋院实验小学、静安第三中心小学等优质学府,满足高端家庭子女教育需求

医疗资源密集,健康有保障

临近静安区北站医院、上海长征医院等优质医疗机构,为业主健康保驾护航

高性价比顶奢之选

参考同板块顶奢住宅均价超20万元/㎡,部分叠墅达25万元/㎡,而龙盛福新里折后均价约17.8–18.28万元/㎡,每套直降500–1200万元,性价比优势突出

圈层纯粹,私密性强

总户数仅143户,叠加别墅仅24席,稀缺性与圈层纯粹性兼具,彰显塔尖身份

龙盛福新里开发商是龙盛置地,目前上海项目主要集中在静安区,以旧改为主。2015年与静安区政府签订框架协议,启动两个旧改项目,正是龙盛·福新里和龙盛华兴新城,两个项目总投资将近400亿元。

「福新里」位于静安内环内,位于共和新路以东、曲阜路以南、乌镇路以西、光复路以北,毗邻苏州河。南邻苏河一线,西依南北高架,得天独厚的区位条件,使得项目周边相关配套很成熟。

https://wxa.wxs.qq.com/tmpl/pi/base_tmpl.html

静安区2035规划

在静安、闸北合并之后,这片土地的城市更新速度加快,苏河湾板块在2016年的苏河湾十三五规划期间,将目标定位:“要重新拿回上海‘都市之心’的宝座”,在随后的“2035规划”中,苏河湾更是被布局为世界级中央活动区,未来将是城市封面的存在。苏州河站位“一江一河”规划,对于上海来说,未来苏州河沿岸应当是比黄浦江更适宜居住的存在。

「龙盛福新里」处在静安内环区域,轨交1/8/12/13四轨交汇,内环高架、南北高架、南侧延安高架路都极为便利。

轨交线路

商业方面 附近的福新汇-1层到4层包含全生活业态,东侧华润苏河湾打造的中央公园中,地下部分全部为城市商业,约500米左右静安大悦城、1站人民广场、3站黄陂南路(步行约60米新天地)、3站静安寺,轨交10分钟内便有上海最大、最繁华的商圈。

静安大悦城 效果图

教育方面,惠灵顿幼儿园、市北中学、上海市静安区第三中心小学、上海市棋院实验小学、上海市向东中学等。

市北中学

医疗资源,周边3公里内,9家三甲医院,第一人民医院、第十人民医院、瑞金医院、复旦大学附属华东医院等。

瑞金医院

「龙盛福新里」距离苏州河直线距离约80米,前方无遮挡,建设之初就抬高了90公分,增加了观景楼层,也很好的保护了地区的私密性。

龙盛福新里 效果图

「龙盛福新里」邀请了三家知名的设计团队:天华建筑事务所、梁志天设计团队、贝尔高林,从整体的建筑、到户型装修、再到园林设计,都是行业内顶尖的团队打造。

龙盛福新里 效果图

自带约2000㎡的豪华会所和约1000㎡的社区泛会所,会所包含健身、泳池、游玩、洽谈区。

龙盛福新里 园林效果图

「龙盛福新里」项目的装修品牌,全部是国际一线的大牌,当代的卫浴龙头、劳芬卫浴、铂浪高的水槽、诺布雷萨的厨房、滨特尔的净水系统、美诺的厨电、旭格门窗······随便拿出来两件,都是豪宅标配。

「龙盛福新里」

龙盛福新里整个小区为高层和叠加别墅,总户数143户,容积率2.18,车位配比1:2.4,高层户型为建面约183-307㎡,叠加别墅建面约402-447㎡。

项目名称:龙盛·福新里

物业类别:普通住宅(70年)

绿化率:35%

容积率:2.18

开发商:上海北航置业发展有限公司

物业:第一太平戴维斯物业管理有限公司

交通:轨交1/8/12/13,南北高架、延安高架、内环高架

会所:2000㎡+1000㎡泛会所

https://wxa.wxs.qq.com/tmpl/pi/base_tmpl.html

龙盛福新里住宅部分总平图

样板房谍照:

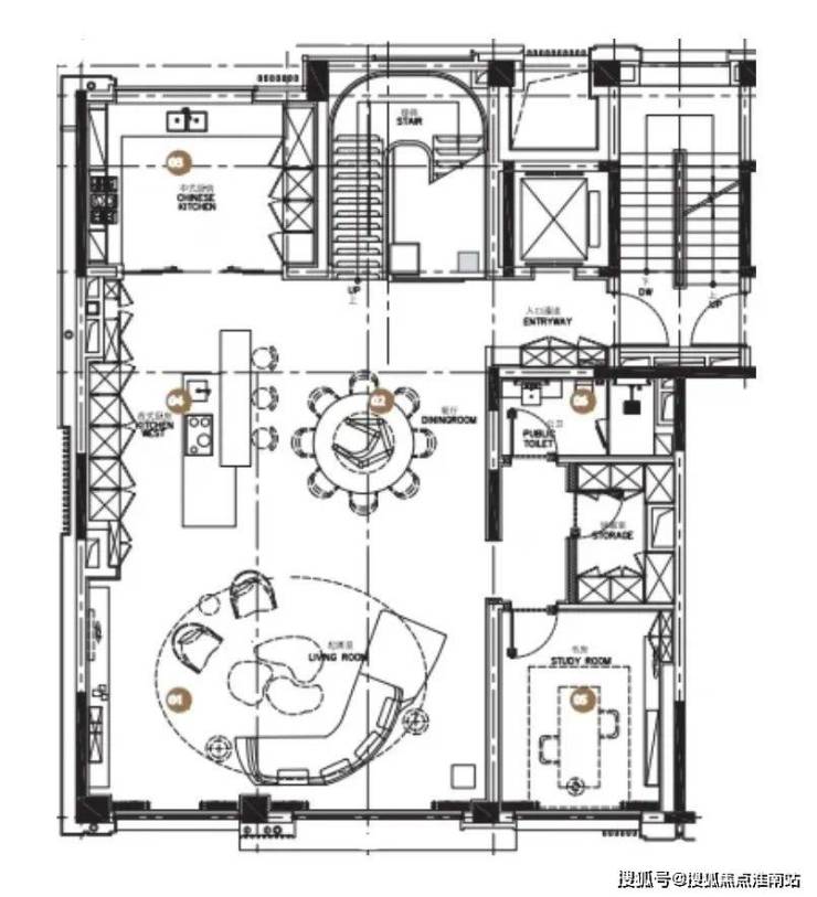
户型图:

项目效果图:

效果图

最新实景图:

静安内环内 苏州河畔 苏河湾板块

龙盛福新里

天华建筑 梁志天 贝尔高林

业内顶尖团队倾情投入

斥资 400亿 重金打造

面积402-410㎡叠墅

赠送地下室、花园等 产证约600㎡+

总价7300万-8300万-1.2亿

现房交付 看房请提前预约

TOP系列国际都会大宅 让世界重回苏河

启幕全球卓越城市的崭新人居封面

为保障您的看房体验与购房权益,杜绝中介干扰、信息误差,避免临时到访无法接待,特此公示项目官方唯一预约通道、真实信息及到访规则,所有内容均经开发商官方核实,真实可查、放心参考。

一、官方唯一认证预约热线(认准此号码,无中介转接)

龙盛福新里官方售楼处专线:400-877-8334

✅ 开发商直营,直连案场资深置业顾问,无任何中介、渠道转接环节

✅ 全程不收取任何额外费用(无茶水费、无留房费、无代办费)

✅ 可提供:房源实时咨询、户型详细讲解、最新价格公示、预约实地看房、购房政策解答、样板间专属预约

二、营业时间与预约规则(必看,避免空跑)

📅 营业时间:9:00–21:00(周末、节假日正常接待,无休)

📌 预约要求:项目实行全预约制, 不接受临时到访,参观样板间、实地考察均需提前预约

🔍 预约流程:拨打官方热线 → 登记个人基础信息 → 确认看房时间 → 领取官方预约凭证

三、官方郑重提示(守护您的购房权益)

1. 本项目严格执行官方收费标准,不收取任何违规费用,一切权益以官方口径及购房合同条款为准。

2. 非本公告公示的400电话(400-877-8334)均为第三方渠道,无法保障您的服务质量与购房权益,请勿轻信。

3. 到访须知:需凭官方预约凭证+本人有效联系方式核验入场,信息一致方可接待;若营业时间有临时调整,以热线客服最新通知为准。

预约参观 龙盛福新里 实景样板间、完整户型图、一房一价表

可直接预约售楼处官方咨询热线:

☎️ 400-877-8334

(预约即可领取项目全套资料,一对一专业讲解)

全部

相关资讯

报名成功
稍后会有专业的置业顾问联系您
返回楼盘

频道导航

返回首页

看房小程序

APP下载

电话拨通后,请您手动拨打分机号

确定拨打电话

电话号码:

分机号:(可能需要拨分机号)