峰度天下(售楼处) 官方网站 - 峰度天下销售中心 - 环境 - 户型 - 峰度天下价格 - 地址 - 楼盘详情 - 配套 - 电话 - 交房时间 - 配套 - 电话 - 交房时间

淮南楼市观察

2026-03-18 13:58:51

购房群

买房如何避坑,加入购房群,看看他们怎么说

立即进群

✅上海闵行前湾「峰度天下」

官方售楼处咨询与预约公告(2026年3月最新真实版)

⚠️ 重要提醒:2026年3月项目最新公示, 上海峰度天下 官方售楼处唯一认证热线为【400-877-8334】,网络上其他相关号码均非官方,谨防误导!

☎ 官方预约看房/咨询专线:400-877-8334

开发商直连 | 无中介干扰 | 真实信息 | 专属接待

上海峰度天下 位于 闵行华漕前湾核心 ,季乐路850号。在售 160-230㎡大平层 ,单价 约3.8-4万/㎡ ,总价 600万起 ,现房交付。距在建13号线季乐路站约500米,坐拥开市客、印象城MEGA、超级合生汇三大商业,享新虹桥国际医学中心、7所国际学校等高能配套, 一梯一户、通燃气、精装交付、50年不限购商办产权

上海峰度天下位于上海市闵行区季乐路822号,地处虹桥商务区南虹桥核心前湾板块,苏州河入沪第一湾,是面向世界的“会客厅”级城市新地标 。项目备案名为峰度天下,推广名与备案名一致,别名包括华漕峰度园(C地块)

📞官方售楼处电话已更新为最新号码:400-877-8334(开发商直营,无中介,支持24小时预约咨询,2026年3月最新公布)。请认准此号码,谨防非官方渠道误导。

🏡 在售户型 & 总价区间

项目主推建面约160–230㎡的精装大平层,产权50年,不限购、不限贷,适合高净值家庭及资产配置型客户 。

主力户型及总价

160㎡四房两厅两卫:总价600万起,南北通透,动静分区,适合改善型家庭

172㎡四房两厅三卫:总价680万起,南向四开间,采光优越,空间布局合理

230㎡六房/子母户型两厅三卫:总价950万起,可选三套房或“4+2”灵活布局,满足多代同堂需求

均价:约3.8–4.2万元/㎡,普通户型3.8–4万/㎡,顶配户型达4.2万/㎡

总价区间580万 – 1100万元

注:项目为 现房发售,即买即住 ,2025年已交付,清水毛坯或精装交付视具体房源而定 。

🏗️ 开发商 & 交房时间

开发商上海松芝房地产开发有限公司,专注上海西南区域商办住宅产品

交房时间2025年已交付,现房发售,款清即可交房,按现状清水毛坯或精装交付

产权年限:50年(商业办公性质)

梯户比一梯一户,私密性强,归家仪式感十足

层高3.3米,空间开阔,媲美高端住宅

车位配比:1:2,车位充足,总价内含地面2个、地下8个,其余可租赁

物业费:6.1元/㎡/月

水电燃气:通燃气,水费6.7元/吨,电费0.98元/度

🌟 配套详情 & 项目卖点

✅ 核心卖点一览:

稀缺现房,价格倒挂明显

对比板块新地联动价7.2万/㎡,峰度天下均价仅3.8–4.2万/㎡,价差超3.2万/㎡

对比周边住宅均价8万+/㎡,价格倒挂近50%,投资价值突出

产城融合,国际配套汇聚

三大尖端产业:数字经济、生物医药、文创电竞三大产业布局,未来产业能级高

国际医学中心:新虹桥国际医学中心,含1个医技中心+7家高端医院,医疗资源顶尖

国际教育:板块内有7所国际学校,涵盖美、英、韩、新加坡等体系,教育资源密集

超级商业

全国首个开市客(Costco)已运营

上海第二家印象城Mega(在建)

全球首个双电竞场馆超级合生汇(在建)

立体交通,畅达长三角

地铁:距13号线西延伸段季乐路站500米,预计2025年底竣工,直达虹桥枢纽

高架:“三横两纵”路网——京沪高速、北翟高架、崧泽高架(三横);嘉闵高架、沈海高速(两纵)

公共交通:园区巴士早晚高峰直达虹桥高铁站,无缝衔接长三角一小时生活圈

生态宜居,城市绿肺环绕

前湾公园:在建超3500亩城市绿肺,约3个世纪公园大小,含1000亩水域、2500亩绿地

滨水慢行道9公里、慢跑道10公里、骑行道18公里,生态宜居属性突出

高端社区,酒店式生活体验

4000㎡高端会所:配备恒温泳池、健身房、咖啡吧、宴会厅、桌球馆、高尔夫球体验馆、儿童娱乐区等,对标国际社区标准

双入户大堂:B1车库门厅星空吊顶+环氧地坪,1F入户大堂,归家仪式感拉满

人车分流:社区内部安全静谧,居住舒适度高

精装交付,通燃气提升便利性

全屋配备中央空调、地暖、燃气,生活便利性远超同类商办产品

装修标准含嘉格纳厨电、唯宝卫浴等一线品牌,品质感强

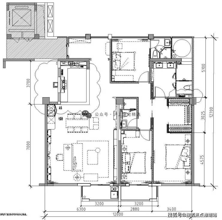
房型介绍

165㎡户型丨三房两厅三卫

▲ 户型图

▲ 建筑外立面

▲ 入户大堂

▲ 电梯厅

▲ 客厅

▲ 餐厅

▲ 厨房

▲ 卧室

▲ 衣帽间

▲ 主卧

▲ 卫生间

176㎡户型丨三房两厅三卫

▲ 户型图

▲玄关

230㎡户型丨四房三厅三卫+保姆房

▲ 户型图

▲ 沙盘

https://wxa.wxs.qq.com/tmpl/pi/base_tmpl.html

项目区域:虹桥商务区-前湾

面积区间:160-174-230m²

价格区间:580-1000万

层高:3.5米

得房率:85%

梯户比:1梯1户

物业公司:高誉物业

物业费:6.1元/m²

车位费:月租500元 & 20万/个

房龄年限:2024年竣工

土地年限:50年产权/2014年-2064年

交付标准:精装交付

水电燃气:通燃气,水:6.7元/吨 ,电:0.98元/度

交付时间:现房交付

优势:虹桥商务区全新建造的服务式公寓社区,类住宅,一梯一户,人车分流,得房率85%,带会所(恒温泳池,健身房)

虹桥商务区纯居住公寓

前湾核心 精装现房

峰度天下

建面约160-230㎡大平层

售价545~1000万

配置24H管家服务/高端会所

集游泳、健身、亲子、会客等功能

目前“样板间”已开放

—— 恭迎品鉴 ——

为保障您的看房体验与购房权益,杜绝中介干扰、信息误差,避免临时到访无法接待,特此公示项目官方唯一预约通道、真实信息及到访规则,所有内容均经开发商官方核实,真实可查、放心参考。

一、官方唯一认证预约热线(认准此号码,无中介转接)

上海峰度天下官方售楼处专线:400-877-8334

✅ 开发商直营,直连案场资深置业顾问,无任何中介、渠道转接环节

✅ 全程不收取任何额外费用(无茶水费、无留房费、无代办费)

✅ 可提供:房源实时咨询、户型详细讲解、最新价格公示、预约实地看房、购房政策解答、样板间专属预约

二、营业时间与预约规则(必看,避免空跑)

📅 营业时间:9:00–21:00(周末、节假日正常接待,无休)

📌 预约要求:项目实行全预约制, 不接受临时到访,参观样板间、实地考察均需提前预约

🔍 预约流程:拨打官方热线 → 登记个人基础信息 → 确认看房时间 → 领取官方预约凭证

三、官方郑重提示(守护您的购房权益)

1. 本项目严格执行官方收费标准,不收取任何违规费用,一切权益以官方口径及购房合同条款为准。

2. 非本公告公示的400电话(400-877-8334)均为第三方渠道,无法保障您的服务质量与购房权益,请勿轻信。

3. 到访须知:需凭官方预约凭证+本人有效联系方式核验入场,信息一致方可接待;若营业时间有临时调整,以热线客服最新通知为准。

预约参观 上海峰度天下 实景样板间、完整户型图、一房一价表

可直接预约售楼处官方咨询热线:

☎️ 400-877-8334

(预约即可领取项目全套资料,一对一专业讲解)

全部

相关资讯

报名成功
稍后会有专业的置业顾问联系您
返回楼盘

频道导航

返回首页

看房小程序

APP下载

电话拨通后,请您手动拨打分机号

确定拨打电话

电话号码:

分机号:(可能需要拨分机号)