招商·林屿湖畔
售楼处电话☎:400-998-9694
如有问题欢迎来电咨询,来电即可享受买房优惠!
预约来电尊享购房优惠,可预约案场内部销售人员,专业一对一热情服务,让您用专业眼光去买房。
招商·林屿湖畔售楼处电话☎:400-998-9694
嘉定新城核心 一线“湖景+河景”
招商·林屿湖畔
推建面约110-120-145㎡高层及160-170㎡叠墅湖居奢宅
将于本周六样板开启预约接待

招商·林屿湖畔售楼处电话☎:400-998-9694
招商·林屿湖畔售楼处电话☎:400-998-9694
项目信息
上海2批次土拍中,4家开发商经过49轮举牌,最终招商蛇口以总价26.6亿元斩获嘉定新城F03A-4地块,楼板价31850元/㎡,溢价率高达30%,到达封顶价,并触发双高双竞!
四大迭代产品力,第四代湖居迭新奢宅

招商·林屿湖畔售楼处电话☎:400-998-9694
作为招商蛇口在沪上的首部度假式湖居巨著,林屿湖畔雄踞嘉定新城CAZ核心,以"自然而然的贵重"为设计灵魂,融汇前沿的全球设计语汇,为当代高净值人群量身打造"重回一倍速"的湖畔度假生活方式。
四大核心产品力共同筑就4.0湖居沉浸式奢居新标杆:招商林屿湖畔,以湖居母本,成就献给城市的未来恒产,它以土地敬畏之心重构自然与奢居的关系,以人本洞察回应塔尖人群的精神诉求,以全球视野重塑“出门即繁华,归门即度假”的生活母本。

招商·林屿湖畔售楼处电话☎:400-998-9694

招商·林屿湖畔售楼处电话☎:400-998-9694
林屿湖畔采用"首席设计师负责制",由首席设计师统筹产品经理、大师团队及专业顾问,高效整合全球顶尖设计资源。
从概念到细节的高规格闭环输出,确保建筑、景观、室内的一体化呈现,在严格的设计管控与细部雕琢中,烙印鲜明的品牌美学基因。
游艇曲线建筑:从单一住宅功能,到湖岸在地化美学地标

招商·林屿湖畔售楼处电话☎:400-998-9694
住宅建筑立面承袭招商玺系的经典游艇风格,运用大面铝板玻璃,以流畅的游艇曲线勾勒天际线。高层以0.28-0.35超大窗墙比,超越上海行业常规产品,将无界风景纳入家中。

招商·林屿湖畔售楼处电话☎:400-998-9694
公区建筑片墙近人尺度内,运用大块切割打磨沙漠风高级米黄石材,雕琢高级沙砾感和肌理,整石旋转10cm递差叠砌,不计废料只为呈现卢浮宫金字塔式的微妙角度,檐口巧藏灯带,予以细腻温润的质感体验;浮光门庭以6毫米超薄铝板勾勒飞檐,营造飘逸轻盈的度假意境。

招商·林屿湖畔售楼处电话☎:400-998-9694
峡谷秘境庭院:从单一景观功能,到酒店度假化超级公区
板块内领创“峡谷”意境的下沉式立体庭院,在约420平米的垂直面中,通过多层花池、叠水、软景塑造立体层次观感,遴选多种珍贵苗木,立体庭院贯通风雨连廊,给予五星级度假酒店般的空间体验。
精心设计十二重归家动线,从车马院迎宾车道、约87米奢阔门廊到约13.7米挑高的酒店式大堂等空间。


招商·林屿湖畔售楼处电话☎:400-998-9694
约2900平米地上地下泛会所及活动空间,给予生活度假般的感受,地下层设有国际标准壁球馆、园景健身房,地上架空层为最高悬挑越7.2米的泛会所空间,以休闲下沉卡座、水吧台、休闲会客区、联动室外水池,打造酒店式度假空间等柔化社区与自然的边界。

招商·林屿湖畔售楼处电话☎:400-998-9694

招商·林屿湖畔售楼处电话☎:400-998-9694
空间革新与收纳哲学:从单一居住功能,到慢奢生活空间营造
尺度与视野的革命,无论高层还是叠墅产品,空间尺度与视野设计均突破常规。

招商·林屿湖畔售楼处电话☎:400-998-9694
在空间革新上,好房子标准下,打造嘉定区域内开创性的3.1-3.15米层高,并配置多个约80公分飘窗灵活空间,带来通透奢阔的居住体验。主卧设置270°转角飘窗,带来更高舒适度与更大采光。双门厅礼仪,客餐分离升级社交款待维度,飞机户型+客厅双动线平衡通透与私密,营造出既有秩序又具仪式感的私密殿堂。

招商·林屿湖畔售楼处电话☎:400-998-9694
收纳设计大师打造超级收纳,建面约122与140户型全屋交付收纳量达约8.2m³与约8m³,约等于205个20寸行李箱(40L)的收纳空间,140户型预留收纳11m³,围绕 12 种场景应用,玄关、厨房、卫浴三大区域,让各类物品都有归属,生活更加从容舒适。
根据内部户型图来看,整体户型都还是比较不错的,高层全南北通,叠墅对比市面上的常规户型也有很大创新,其中大平层做到了五开间朝南,约8.6米横厅!
招商·林屿湖畔售楼处电话☎:400-998-9694
其中高层价格预计在5.3万左右,叠预计在7万左右!
建面约110m3房2厅2卫,一梯两户,仅部分两个楼标有连廊,共计约166套;
经典飞机式户型,独立入户玄关,三开间朝南,南北直通,厨房附赠飘窗,南白双阳合,边套户型主卧为270°飘窗!建面约120m3房2厅2卫,全两梯两户无连廊,共计约250套;

招商·林屿湖畔售楼处电话☎:400-998-9694

招商·林屿湖畔售楼处电话☎:400-998-9694
独立入户,横厅户型,同样为三开间朝南,南北通透,且厨房附赠飘窗,除客厅外,北房间也带阳台,边套户型主卧为270°飘窗!建面约145㎡4房2厅2卫,全两梯两户无连廊,共计约98套;

招商·林屿湖畔售楼处电话☎:400-998-9694

招商·林屿湖畔售楼处电话☎:400-998-9694
该户型为四开间朝南,独立入户玄关,南北直通,客厅面宽约4.6米,客厅+南次卧+北房间均带阳台,边套户型主卧为270°飘窗,中间套与边套户型的区别主要也就是有无主卧飘窗!

招商·林屿湖畔售楼处电话☎:400-998-9694

招商·林屿湖畔售楼处电话☎:400-998-9694
叠墅户型首曝:
建面约168m下叠,4房2厅3卫,共计约38套,独立入户玄关,附带地下室+花园,首层横厅+南向次卧+北向1厨1卫,二层三个卧室全朝南+北向公共休闲空间;边套户型客厅以及主卧为270°飘窗!
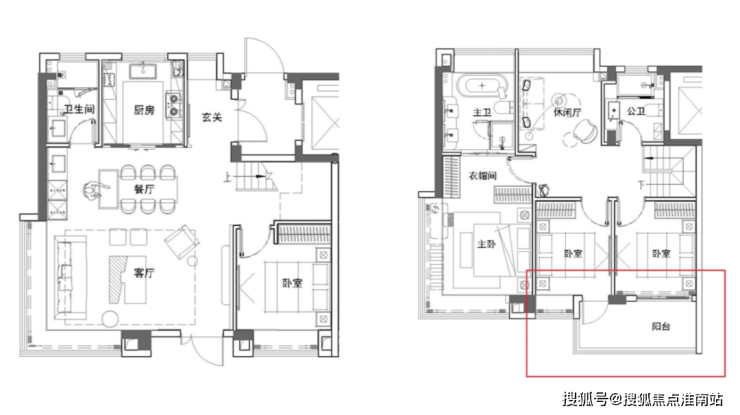
下图为边套户型过程稿,红框线范围内可能会对另外一个次卧的飘窗位置进行优化,优化为阳台,也就是南白两个次卧均带阳台!

招商·林屿湖畔售楼处电话☎:400-998-9694
建面约163m上叠,4房2厅3卫,共计约38套,上叠的户型布局其本与下叠一致,附赠南北露台,边套户型的客厅以及主卧同样也是270°飘窗!
下图为边套户型过程稿,红框线范围内可能会优化,一是客厅飘窗位置可能会优化为阳合,变为南向双阳台;是六层南白次卧飘窗位置优化为露台,两个次的露合连通!

招商·林屿湖畔售楼处电话☎:400-998-9694
建面约165m大平层,4房2厅3卫,共计约37套,一梯一户,五开间朝南,约8.6米横厅,双套房设计,边套户型主卧为270°转角飘窗!
下图为边套户型过程稿,红框线范围内可能会对餐厅位置飘窗进行优化,优化为阳合,使客餐厅阳台贯通!

招商·林屿湖畔售楼处电话☎:400-998-9694
板块信息
招商远香湖项目位于嘉定新城F03A-4地块,是嘉定新城核心区的中心——远香湖CAZ,是嘉定中心中的中心。
招商嘉定新城位于嘉定新城的核心位置,是远香湖中央活动区最后一幅宅地。

招商·林屿湖畔售楼处电话☎:400-998-9694
四至范围内现状及规划情况:项目南侧为温州嘉定科技创新园区,目前已基本建成。项目北邻伊宁路,伊宁路北侧为绿地公园以及运动场、公厕、伊宁路污水泵站,可能会有一定的噪音等影响;实地看下来,伊宁路污水泵站很小,基本对项目无影响;


招商·林屿湖畔售楼处电话☎:400-998-9694
该泵站主要承担伊宁路以北,A30以南污水,以及伊宁路以南,永盛路以东,封周路以北范围的污水提升任务:
污水将通过阿克苏路、伊宁路污水主干道进入该泵站经过提升输送到污水处理厂;
项目东侧规划为一幅教育科研设计用地,限高50米;

项目西侧规划为公共绿地以及河道;

招商·林屿湖畔售楼处电话☎:400-998-9694

招商·林屿湖畔售楼处电话☎:400-998-9694
这里成片的商品房大多建成于2010年以后,整体城市界面崭新,从控规也能看出,项目周边学校、商业、办公和绿地公园应有尽有,且大多配套都是现成的。

招商·林屿湖畔售楼处电话☎:400-998-9694
嘉定新城远香湖CAZ定位嘉定新城的综合功能中心与城市形象集中展示区,集聚国际住区、大型商业集群、摩天地标集群、科创科研企业集群、国际教育文化等功能为一体。(规划来自上海嘉定微信公众号)北侧有远香湖、保利大剧院、嘉定图书馆老三大件配套,以及地标级超高层建筑凯悦酒店。

招商·林屿湖畔售楼处电话☎:400-998-9694
未来,远香湖核心区还将建设文化环、未来塔、活力谷等城市“新三件套”,也在项目周边。文化环:除了现有嘉定图书馆、保利大剧院、江南书院、尚画美术馆外,围绕着远香湖未来还将打造立体儿童乐园、航模活动中心、嘉昆太路演中心等一系列高能级文化设施。

招商·林屿湖畔售楼处电话☎:400-998-9694
未来塔:位于CAZ的正中央,建成约300米,将成为嘉定甚至是上海西北第一高楼,是真正的C位地标
活力谷:集商业和办公于一体的休闲创意街区。交通方面,项目距离11号线嘉定新城站步行约2.2公里,需借助短驳交通工具或自驾出行;

招商·林屿湖畔售楼处电话☎:400-998-9694
周边虽然规划有嘉定快线以及宝嘉线,但仍然停留在规划阶段暂无官宣的选线方案,存在一定的不确定性,且短期内也很难落地!
教育方面,参考25年学校划分政策,该项目所在的区域可参与上实嘉定新城分校的摇号,对口的学校为交大附属嘉定新城实验学校(期房不承诺学校对口,以上为25年政策,仅供参考!)商业方面,项目步行至宝龙广场约900米左右,另外周边2公里范围内还有万达、TSF购物中心等商业,可完全满足日常消费需求!医疗方面,距离项目约1.4公里有交大医学院附属瑞金医院(三甲)!

招商·林屿湖畔售楼处电话☎:400-998-9694


招商·林屿湖畔
售楼处电话☎:400-998-9694
如有问题欢迎来电咨询,来电即可享受买房优惠!
预约来电尊享购房优惠,可预约案场内部销售人员,专业一对一热情服务,让您用专业眼光去买房。
招商·林屿湖畔售楼处电话☎:400-998-9694
楼盘项目全面介绍,本电话为开发商提供线上预约售楼电话,楼盘项目全面介绍(包含楼盘简介,均价,房价,现房,期房,别墅,叠墅,大平层,价格,楼盘地址,户型图,交通规划,备案价,备案名,项目配套,样板间,开盘时间,认筹时间,楼盘详情,售楼处电话,最新消息,最新详情,周边配套,一房一价,最新进展等详情咨询)楼盘详情丨价格丨更多优惠丨机不可失丨欢迎致电丨诚邀品鉴!售楼处位置丨特价房丨工抵房丨剩余房源丨户型图丨最新消息丨免责声明:将文章内容综合来源于网络、只作分享,版权归原作者所有!!如有侵权,请联系我们,我们第一时间处理如有问题欢迎来电咨询,专业一对一热情服务,让您用专业眼光去买房。如果您想了解更多楼盘详情,欢迎提前预约拨打