中粮北外滩壹号-中粮北外滩壹号售楼处电话-北外滩壹号开盘时间-房价-户型-楼盘详情

淮南楼市观察

2025-07-17 10:11:13

购房群

买房如何避坑,加入购房群,看看他们怎么说

立即进群

上海虹口中粮北外滩壹号售楼处电话:400-9966-224✔✔【预约热线】中粮北外滩壹号售楼处营销中心:400-9966-224中粮北外滩壹号售楼处电话/地址☎:4009966224(开发商热线)如有问题欢迎来电咨询,专业一对一热情服务,让您用专业眼光去买房。真北外滩核心区中粮大悦城全新项目「中粮北外滩壹号」主推约130-410㎡高层&风貌别墅户型图&效果图发布!现场实景首次曝光

根据最新现场实景可以看出,项目目前尚未动工,预计最快今年下半年入市!

虹口很多项目大多位于瑞虹或者四川北路板块,但论纯正北外滩红线内的,你可能得关注中粮大悦城这个项目。

项目案名大概率定名中粮北外滩壹号,预计将推约130-350㎡高层、风貌别墅,项目由于为协议出让地块,因此无联动价,参考周边同类新盘,预估高层均价在14万/㎡左右,风貌别墅在22万/㎡左右。

网传户型分布如下:(仅供参考,以官方公示为准)

最新效果图过程稿如下:

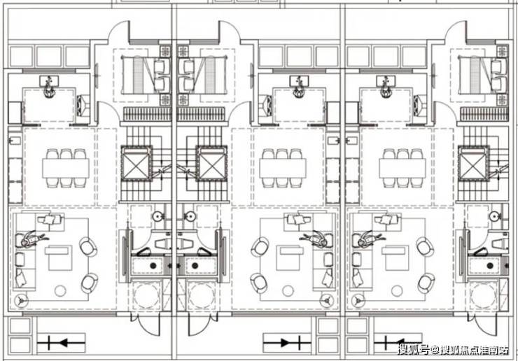
部分户型平面图过程稿如下:

项目历史:2023年9月5日,大悦城控股上海大区公司通过上海联交所成功竞得上海市虹口区北外滩116街坊地块。这幅地块位于北外滩红线内,靠近大连路地铁站和新弘北外滩。

116街坊地上计容面积46505.94㎡,用地性质为Rr1Rr3混合用地,其中混合地比例为Rr1≥60%、Rr3≤40%——简单来说,项目中有60%以上是Rr1别墅住宅,剩下的40%以内是Rr3高层住宅,这个配置和五坊园四期有点像,从大悦城控股发布的效果图(非最终交付标准)也可以看出。

该项目计容建面4.65万㎡,容积率1.95,是上海市中心罕见的无商办、无15%自持住宅、无5%保障房的纯住宅,高层84户,别墅76户,总共160户。

项目意向效果图如下:

真北外滩核心区中粮大悦城全新项目「中粮北外滩壹号」主推约130-410㎡高层&风貌别墅户型图&效果图发布!现场实景首次曝光

下半年还有什么政策大招?

最近顶层的重要会议已经有多次发声,关于楼市的下一步是加大力度实现“止跌回稳”。所以,从某种意义上来讲,下半年楼市会有大动作这一点是必然的。不需要任何的消息面,看宏观经济就知道。因为在转型尚未完成之前,当下房产依旧是整体经济里很重要的一部分。所以,我们来预测今年下半年可能会出的政策。

1.全线解除限购/限售一线城市全面松绑楼市,此前广州已然打样了。目前,在一线城市中还有北京、上海、深圳没有解除限购。而一线城市解除楼市限购,取消一切限制,已经刻不容缓了,不能再犹豫了。因为,只要市场化秩序回归了,涨跌才有了实际的作用和价值。在限制的情况下,所谓的涨停是没有实际意义的。归根到底,有了实际的交易,才能有良性的循环,最终才会有资金的流动。而钱动起来了,自然会流向它该去的地方。而回归市场化,才能有效的释放改善型需求。龙头股领涨,大盘才有希望。一线城市稳住,全国才能稳住。

2.取消增值税最近,住建部调研组近日赴广东、浙江两省调研。就有小道消息传出,7月深圳或有重磅楼市政策出台。其中,就包含了取消增值税!这一点会比较特别。因为对于大部分老百姓来说,看起来好像就是节约个三瓜俩枣的事情。但实际上,并非如此。因为,如果取消增值税,那就意味着从理论层面,可以真正做到今天买明天卖。购房者的换房周期将大幅下降。当然,在会一定程度上鼓励“炒房”。所以,这个能否落实,校长先打个打个“问号”。

3.首付下调至10%成都的首付比例已经低到15%,并且不区别首套二套。自从4月份的关税战之后,刚有点企稳势头的房价就再受重创。那下一步,很可能首付比例就奔着10%去了。不过在08年最困难的时候,深圳甚至连0首付都有过,这么看其实10%也不算激进。

4.继续下调利率做个预测,欢迎打脸。今年下半年会落地2025年的第二次降息,预计降息幅度为-25BP。预测时间有两个:1.8月若美联储7月议息会议维持利率不变(概率较高),且国内经济数据继续显示通缩压力和内需不足。央行可能在8月初的货币政策例会上宣布降息降准,并引导银行下调存款利率。2.9月若美联储在7月议息会议上意外降息,或国内经济数据改善不及预期,央行可能将存款利率下调推迟至9月,与美联储降息形成协同。

上海虹口中粮北外滩壹号售楼处电话:400-9966-224✔✔【预约热线】中粮北外滩壹号售楼处营销中心:400-9966-224中粮北外滩壹号售楼处电话/地址☎:4009966224(开发商热线)如有问题欢迎来电咨询,专业一对一热情服务,让您用专业眼光去买房。

全部

相关资讯

报名成功
稍后会有专业的置业顾问联系您
返回楼盘

频道导航

返回首页

看房小程序

APP下载

电话拨通后,请您手动拨打分机号

确定拨打电话

电话号码:

分机号:(可能需要拨分机号)