有一种热度,叫引领一座城的仰望,有一种热销,是厚积薄发的沉淀,有一种佳绩,是市场与客户的认可。南上海黄金轴线之上红盘——象屿·天宸雅颂自入市以来,一路热销不止步,每次加推皆霸屏出圈。如今,不负一城期待,21#、22#央景臻品热势加推,6月17号已取证,已经盛大开盘,以奢阔的视野和景观礼献隐奢人生,如此稀贵臻品,必然成为置业优选!

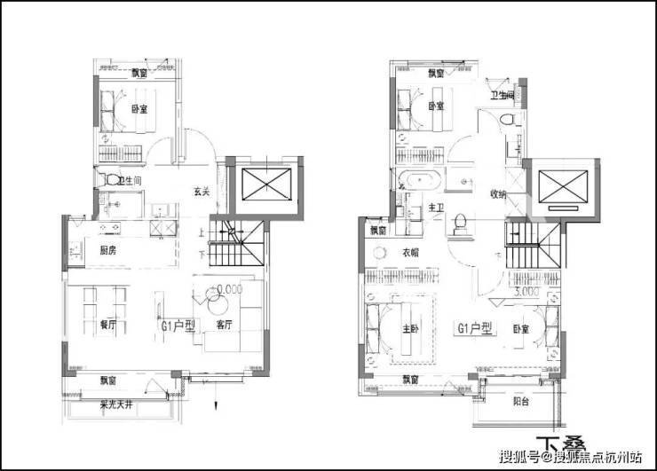
【象屿·天宸雅颂】从户型配置来看,约89㎡三房、约107㎡三房、约129㎡四房三种户型各具特色,无论是二人世界、多孩家庭还是三代同堂,均可找到理想的生活场景。三批次加推建面约107-140㎡3-4房,均价60970元/m²!

前滩之上,品质再造,不付精工,何以臻品。项目即将加推的21#、22#楼央景臻品,持续更新迭代,将建筑美学、位置、功能、结构与户型等元素实现有机统一。
21#、22#楼央景臻品,傲立社区之中,集各种自然资源于一身,下楼即享“奢感、松弛、自然”的三重复合景观:雨林梯田——层次叠翠,绿意蜿蜒如诗;半岛花园与半岛客厅——相映成趣,营造度假式社交场域;四叶草花园——清新雅致,暗藏自然疗愈密码。同时,坐拥IMAX级视野与舒适的观景角度,推窗园林盛景一览无余,带来视觉上的无界享受。以“C”位之态占据央景臻品之尊,与自然聚场无界共栖。

央景臻品不仅拥有阔绰的景观等外在条件,新加推的建筑面积约107-139㎡三至四房产品,整体户型设计也十分优越。象屿·天宸雅颂设计团队大胆将豪宅产品尺度融入其中,3S墙设计(部分户型)、大尺度开间、270°全景双舱(仅边套)等,将实用性和尺度的平衡拿捏得恰到好处。进入客厅,L/D/K分域设计,让家人亲密有界,U型餐厨空间,给居家、聚会带来新鲜体会。步入起居空间,除了标配的套房主卧室,更增加多个卧房空间,在考虑户型功能的同时,赋予业主后期更多的可能。


项目户型硬核,装修更硬核!大件方面,项目日立中央空调/地暖两联供、格兰斯柯(或同等品牌)新风系统一应俱全。厨房方面,除了灶具、吸油烟机等常规配置,加配方太(或同等品牌)蒸烤一体机、洗碗机,博世冰箱,以及线性凉霸,全方位提升便捷性和品质感。卫浴品牌或直接上豪宅专属唯宝品牌(或同等档次品牌),呈现的居住品质足以媲美其他市区千万级豪宅!
项目建面约128㎡4房同样出彩。
延续3S墙和双270°全景双舱亮点的同时,尺度感极大提升,南向四开间,保证了更充沛的阳光。
客餐厅+超大尺度阳台贯穿南北,进门视野无遮挡,大宅气度油然而生!
项目建面约139㎡4房则是集大成的终极改善户型。
该户型是独立电梯入户,保证了业主的私密性和尊崇感!
不止是四开间朝南,更是大宽厅设计,采光无敌。
飘窗数量来到了惊人的7个:4个房间、2个卫生间、还有厨房,仅飘窗带来的灵动空间就秒杀同面积段其他产品,要知道这个户型还配备了超大尺度的阳台!
项目高层户型硬核,装修更硬核!
据销售人员透露,大件方面,项目中央空调/地暖两联供、新风系统一应俱全。
厨房方面,除了灶具、吸油烟机等常规配置,还将加配蒸烤一体机、洗碗机、冰箱和厨房凉霸,全方位提升便捷性和品质感。
卫生间方面,项目洗脸盆、座便器、淋浴龙头或直接上豪宅专属唯宝品牌(或同等档次品牌)。
从选材、选牌到施工工艺,项目装修每个环节都非常考究,呈现的居住品质足以媲美其他市区千万级豪宅!
另外,项目使用了智能化系统,从社区到单元门和入户整体的无接触归家,单元门自动呼梯到户内装标配置的智能化系统,为业主带来全方位的科技便捷生活!

去年10月25日,上海市第六批涉住地块供地中,闵行区MHP0-1316单元01-03、01-02、03-02地块,东至浦星公路,南至姚家浜,西至大寨河,北至昌林路。
项目分为三个住宅地块开发,提供建面约89-140㎡的3-4房户型。
01-02地块规划约524套可售住宅,无保障房拟建8栋17-18F高层住宅。
以及若干社区配套用房,全部为两梯四户带连廊;地面无车位,全人车分流,规划有风雨连廊以及大量的架空层,预计打造泛会所概念(公共活动空间);
01-03地块规划约466套可售住宅
地块拟建9栋17-18F高层住宅、1栋20F保障房以及若干社区配套用房;其中1#为两梯三户带连廊、4#、6#、8#为一梯两户,其余楼栋为两梯四户带连廊;
03-02地块为别墅产品,其中叠墅约147套,联排约35套。
该地块拟建4栋7F多层住宅、4栋4F住宅、5栋3F多层住宅以及若干社区配套用房,其中4-7F住宅为叠墅,3F住宅为联排。
产品力卷出天际,600万级预算越级享受千万级豪宅品质的机会!
项目实景呈现的硬核品质和超高颜值比起市区千万级的豪宅有过之而无不及!
项目恢弘大气的门头,项目设计师以浮岛为灵感,将几根立柱化作悬浮的雕塑,撑起一片轻盈的仪式感。
门头顶部的500多片镂空透光铝板雕花花瓣,皆由项目LOGO精琢演化而来。当阳光倾泻,光与影在镂空间起舞,在地面织就一幅不断变幻的自然画作。这是3000万重金雕琢的细节,更是对品质的无声承诺。
它不仅是社区的入口,更是城市界面的艺术展馆。当访客驻足,当业主归来,这道门,以当代美学重新定义归家即度假的奢适体验。
进门之后,恍若走进一幅立体绽放的画卷。地面采用了石材拼花,纹理如行云流水般舒展,在光影交错间勾勒出低调的奢华。
最令人屏息的设计,莫过于倒置的花园,与传统墙上挂画或桌上摆花不同,这种反重力美学让视线不由自主地上扬,创造出仰视仙境的震撼体验。
穿过大堂可以走浪漫的旋转楼梯去到B1层的会所。从上往下看去,这个唯美的旋转楼梯像永生的花瓣,也像凝固的巴兰钦芭蕾。有一瞬间我仿佛感觉这不是楼梯,而是连接现实与诗意的时空隧道。
虽然目前开放的公区只有这些,但项目展现的品质已足够惊艳,让客户对于象屿·天宸雅颂其他地方的兑现充满期待。
比如,项目打造的约2500㎡下沉式会所,预计包含等泳池、健身房、瑜伽室、水吧台、私宴厅等功能,满足业主全龄多元需求。

另外,项目地上三分之二的楼栋有架空层,最高层高约4.5米,合计约3000㎡架空层作为泛会所,在室内外交叠过渡的空间中,以自然之景点缀,营造全龄共享的丰盛聚场。

再比如项目的外立面。
当其他外环外新房还在纠结用涂料还是真石漆,象屿·天宸雅颂直接上了对标千万级豪宅的铝板。精致的铝板装饰+通透大窗的美学立面设计(局部涂料),打造弧面窄框艺术之镜,将来无疑又是一道靓丽的风景线!

项目在园林景观方面结合郊野公园特色做的浮岛美学园林惊艳无比,层层递进的秩序之美,传递生活与归心的仪式感。让业主享受内外皆胜境的生态居住体验!
而且项目3个地块全部都是人车分流设计,开车归家的业主在社区外就直接进入车库,保证地面行人安全以及安静绿色的居住体验。
另外,项目用归家风雨连廊局部巧妙连接着高层核心景观节点和功能空间,让业主能重温“户外风雨连绵,廊下月华如水”的诗意瞬间。
全系神户型搭配魔鬼化细节装修!
项目推出建面约89-139㎡3-4房,尤其值得一提的是,项目户型采用“一生之宅”的理念设计,高层户型均设置可拓展空间,保证不同年龄段都可以进行不同功能调整。
项目全套户型图如下:
①建面约89㎡3房2厅1卫户型:
这个建面约89㎡户型妥妥的性价比之选,预计总价500万级即可上车!
功能性上符合市场需求!同时利用科学的收纳和S墙设计保障了室内空间的井井有条,又通过大量飘窗和阳台等提升尺度感,尤其是厨房带飘窗!!!
②建面约107㎡3房2厅2卫户型:
这个建面约107㎡刷新了我对百平三房的新认知,据悉该户型或将申请专利,实至名归!
客厅的面宽被拉长到了约4.7米,呈现了可成长的X空间,适配更长家庭周期;
足足5个飘窗,3个卧室2个卫生间全部“扩容”,尤其是主卧、主卫双270°全景飘窗的设计前所未见,未来窗外郊野公园的胜境将一览无余。
该户型的收纳,大量S墙的设计简直见缝插针,极大的扩容了家的储物角落,消减了业主生活的繁琐。
首先是进门的3S墙设计,可以做出一个“700库”的超大收纳空间。原先的冰箱则挪到了厨房旁,不仅方便料理取用食材,侧面还设计了洞洞板,日常衣物、小包和挂件可以轻松摆放。
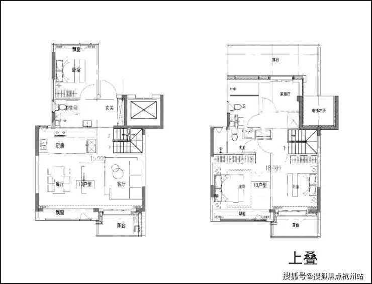
项目建面约128㎡4房同样出彩。
次卫的S墙则安排在了干湿分离的干区,算上台盆上面的收纳柜足以放下各类洗护用品。而且次卫台盆下方还预留了扫地机器人上下水。
北向卧室的S墙设计,则可以做成一整面的收纳架,书籍或玩具都有了足够的盛放空间。
最后一个S墙则是在主卧,等于直接增加了一个衣柜,直接击中了女主人的心趴!
③建面约128㎡4房2厅2卫户型
项目建面约128㎡4房户型延续了前作3S墙的设计,保证了收纳空间的丰富性。
格局上进化为南向四开间,保证了更充沛的阳光。客餐厅+超大尺度阳台贯穿南北,进门视野无遮挡,大宅气度油然而生!
建面约128㎡户型此次开放了样板间,参观下来客户对该户型的厨房的配置和飘窗的设计赞不绝口。
首先厨房是半开放式的岛台,让整个公区的视野更开阔,尺度更具豪宅气度。其次敞开式的厨房能让家人沟通更顺畅,温馨感提升。最后,厨房的选品也是坚持使用主义,采购了方太的市售款,隐形油烟机颜值非常高,灶具和蒸烤箱则做了完全的联动。
另一个亮点则是主卧的双270°飘窗,整体的“实用”面积几乎大了一圈,通透性和采光性能也更上一层楼。有种花了标准款的钱买到PLUS产品的感觉。
④建面约139㎡4房2厅2卫
项目建面约139㎡4房则是集大成的终极改善户型。该户型是独立电梯入户,保证了业主的私密性和尊崇感!不止是四开间朝南,更是大宽厅设计,采光无敌。
飘窗数量来到了惊人的7个:4个房间、2个卫生间、还有厨房,仅飘窗带来的灵动空间就秒杀同面积段其他产品,要知道这个户型还配备了超大尺度的阳台!
项目户型硬核,装修更硬核!
大件方面,项目日立中央空调/地暖两联供、格兰斯柯(或同等品牌)新风系统一应俱全。
厨房方面,除了灶具、吸油烟机等常规配置,还将加配方太(或同等品牌)蒸烤一体机、洗碗机,博世冰箱,以及线性凉霸,全方位提升便捷性和品质感。卫生间方面,项目洗脸盆、座便器、淋浴龙头或直接上豪宅专属唯宝品牌(或同等档次品牌)。
除了配置上不惜成本,项目的装修细节也十分人性化。比如,项目入户门选用的是铸铝门配耶鲁6合1智能门锁,安全性与便捷性兼具!
项目的厨房采用金属框+艺术玻璃移门,推拉丝滑颜值颇高!
项目全户型的阳台都做了灯光+隐藏式晾衣杆的吊顶方案,阳台边有按钮可以直接控制晾衣杆的下放和抬升。
项目的天地墙也是细节满满:天花板设计圆弧吊顶,工艺极高颜值自然不俗。客厅整块的背景墙充满质感,卫生间通顶的大面墙砖极抓眼球。客厅选用90*180大板砖恢弘大气,卧室采用人字拼地板,温馨港湾!
项目空调风口和户内门把手都是定制LOGO造型,颜值不俗的同时,也体现了项目对于品质与品牌的信心!
另外项目还使用了华为(或同等档次品牌)智能化系统,从社区到单元门和入户整体的无接触归家,单元门自动呼梯到户内装标配置的智能化系统,为业主带来全方位的科技便捷生活!
综合来看从选材、选牌到施工工艺,项目装修每个环节都非常考究,呈现的居住品质足以媲美其他市区千万级豪宅!
项目后期还会推出叠加别墅,叠墅户型过程稿如下,仅供参考:
浦江恒流,上海恒新。上海迈向卓越全球城市的进程,始终沿着黄浦江展开。黄浦江作为上海重要功能轴,至2035年将黄浦江沿岸打造成为彰显上海城市核心竞争力的黄金水岸和具有国际影响力的世界级城市会客厅。
作为上海中心城辐射区,闵行六大地区中心之一,前滩南门户,浦东四大城镇圈之一,浦江地区中心占据特有的平台区位优势。
新浦江中心沿袭闵东文创中心定位,以蓝绿环绕为基底,历史人文为内涵,产业更新为驱动,新浦江中心将衔接闵行与浦东新区,打造黄浦江沿岸崭新的生态交织、文化自信、产城融合能量聚集地。
新浦江新中心将围绕沈杜公路TOD打造创智总部湾、大型商业、艺术街区、文化展览、滨水码头、高端住宅等,以世界前沿Live-Work-PlayShop模式,为上海打造高度复合等职住平衡10分钟生活圈。
轨道交通方面:项目距离8号线沈杜公路站步行约350-600米左右,可快速直达前滩、陆家嘴等核心区域,也算是项目一大卖点;通过浦星公路可直接上南北高架,自驾出行也十分便捷!
商业配套方面:项目高层东侧规划约15万方的商业,该商业地块应于住宅一并打包出让,共同组成真正的TOD项目,但目前做了拆分!另外距离项目约3.3公里有浦江城市生活广场、绿地乐和城,约3.9公里有万达广场、4.4公里有浦江欢乐颂等商业!
教育资源方面:项目周边规划有一幅幼儿园用地,参考周边,未来项目对口浦江镇第二小学、第二中学的概率较大,教育资源一般;
另外在项目北侧规划有一所民办学校,该校舍建成后,将迁入上海市民办协和尚音学校(九年一贯制)、上海闵行协和海富幼儿园,由协和教育中心举办。
医疗资源方面:距离项目约4公里有仁济医院南院以及复旦大学附属眼耳鼻喉科医院。
生态资源方面:项目周边被浦江郊野公园环绕,低密宜居。
楼盘项目全面介绍,本电话为开发商提供线上预约售楼电话,楼盘项目全面介绍(包含楼盘简介,均价,房价,现房,期房,别墅,叠墅,大平层,价格,楼盘地址,户型图,交通规划,备案价,备案名,项目配套,样板间,开盘时间,认筹时间,楼盘详情,售楼处电话,最新消息,最新详情,周边配套,一房一价,最新进展等详情咨询)楼盘详情丨价格丨更多优惠丨机不可失丨欢迎致电丨诚邀品鉴!售楼处位置丨特价房丨工抵房丨剩余房源丨户型图丨最新消息丨免责声明:将文章内容综合来源于网络、只作分享,版权归原作者所有!!如有侵权,请联系我们,我们第一时间处理如有问题欢迎来电咨询,专业一对一热情服务,让您用专业眼光去买房。如果您想了解更多楼盘详情,欢迎提前预约拨打象屿天宸雅颂售楼处电话400-867-3567
老上海Vs新富豪-上海豪宅的两种逻辑:老钱买地段,新钱买产品
新老上海房产产品的形成
一、老上海房产产品
行成背景:1998-2010年,尤其是2005年前后,楼市处于“地段决定一切”的时代.老上海的本质还是以“地段稀缺+外资时代+第一代民营企业财富”,主要看中历史地段和城市中心性,房产在业主财富中占比极高;
核心区域:主要集中在三大板块——衡复历史保护区(湖南路、衡山路、愚园路部分洋房周边),主打历史风貌与人文底蕴;西郊别墅区(檀宫、明苑别墅、西郊庄园等),聚焦高端低密度居住;陆家嘴顶级公寓(汤臣一品、财富海景、中粮海景等),占据城市核心CBD资源.
二、新上海房产产品
形成背景:随着自媒体兴起、城市更新加速,以及2017年尤其是2021年后新房集中开发,房产价值从单一地段转向“产品+圈层”,形成了分阶段迭代、逐步成熟的发展格局,核心是适配新财富人群的居住需求与身份彰显.
发展阶段与核心区域:
早期(2010-2017年):老“钱”置换+新晋豪宅业主涌入+新楼盘开发,代表项目有古北壹号、凯德茂名、嘉御庭等,古北壹号尤为突出,吸引了互联网创业者、新金融及新媒体老板、PE/VC投资人等,开启“圈层+私密+物业服务”的豪宅新逻辑.
中期(2018-2022年):中国财富增长黄金期,新豪宅楼盘集中爆发,大量的新豪宅业主财富来自于互联网,新消费/能源,金融投资等,是很多富豪首次进入上海的黄金时期;一方面是大量新豪宅楼盘的开发,特别像滨江云锦系列,北外滩如陆家嘴壹号院,融创滨江系列,中海系列,九庐和新天地范围的扩大,另一方面,主流自媒体大量宣传风貌别墅的概念,让很多豪宅通过社交媒体“被种草”-吸引了大量的新晋富豪进入上海;
当前(2023年至今):豪宅进入产品时代:由原来板块内的概念,衍生到现在的部分“部分零散”的楼盘-一手盘;即不是板块而是单盘爆发!因为“中期”发展,基本形成了新的购房思路-买新不买旧,加上限价,核心地段供地减少和城市项目更新零散,导致“孤岛型”豪宅出现,单个楼盘也能“卖爆”-比如万科高福里,弘安里,潮鸣东方,启元等,单独的豪宅开盘,也能吸引大量的人气和买家进入!
这些区域集中体现在新-新的楼盘,新的商业配套,新的上海人进入;也形成集中化的新型豪宅区域:如徐汇滨江-云锦东方,潮鸣东方,香港启元,大新天地概念板块-翠湖系列,金陵华庭,上海壹号院,露香园系列,外滩板块-融创壹号院,绿地海珀系列,包括“早期”的绿城黄浦湾;虹口北外滩和黄埔风貌别墅区等;
总结:
新老上海房产产品的形成,是城市发展、财富迭代、媒体环境变化的必然结果.“只见新人笑,不见旧人哭”,这个期间城市背后人的分流非常明显,进入新上海板块的豪宅精英,大部分都是经过长时间的财富积累,赶上了中国发展的黄金期和城市发展的必然阶段-城市分流,所以很多富豪精英把部分财富放到中国最好的“避险港”-上海.特别是以2018年为时间线,因为这一年,中国财富规模达到历史高位,上海城市更新大规模启动,社交媒体开始影响房地产;
而这个阶段,这部分老上海人,除了已经完成资产优化外,也在进行财富的重新分配,把早期通过房地产获取的大量利润开始分流放置,而不是完全集中在上海房地产,这也是案例1中部分老上海现在去哪里了的答案!
新老上海豪宅选择的逻辑
新老上海的豪宅购房逻辑,存在明显差异.我们从资产视角vs产品视角、城市理解深度vs居住习惯惯性两个维度来看,上海豪宅市场的购房者,大致可分为两类:老上海资本与新上海财富.两者在财富来源、对城市的理解、房产投资经验等方面截然不同,因此形成了完全不同的置业逻辑.
老上海:把房子当资产,稳健、长期、重圈层
这一群体主要从上世纪90年代便开始投资房地产,以本地老上海世家、港澳台商人、外资企业高管为主,大多经历过多轮楼市周期.他们买房,本质是配置资产,而非单纯满足居住,因此决策维度更全面,投资视野也更成熟稳健!
1.看重城市长期价值:
他们习惯将上海放在全球城市体系中对比,对标纽约、东京、香港、新加坡等国际都会,更看重核心区域的稀缺性与历史价值.这也是早期在衡复风貌区产品“受青睐”的原因-如老洋房,湖南路四大豪宅等——这类资产具备不可复制、难以替代的核心优势.
2.重视房产的金融属性:这批人群亲历过90年代商品房起步、2000年楼市爆发、2008年金融危机,几次上海楼市的涨跌(2009年,2015年,直到2021年大涨前的退出);对房地产的理解更成熟.选房时会重点关注:历史价格走势、长期保值能力、房产流动性、地段流动性等综合指标.
3.在意社区细节与生活氛围:除宏观价值外,他们同样看重社区氛围、邻里结构、物业服务、历史气质等软性因素,甚至会细致研究租赁市场——不只看租金高低,还关注空置期、是否高频出租等.总体而言,这类人群对居住圈层的纯度极为敏感.
新上海:把房子当产品,重体验、重更新、重身份-买新不买旧!
这类购房者多为改革开放后快速崛起的财富群体,包括民营企业家、新经济创业者、外地实业家、互联网新贵等.他们财富积累周期相对“较短”,房产投资的实际经验相对偏“少”,购房时更多从产品视觉出发!
1.习惯新房生活方式他们在原籍城市大多居住新交付的大平层、别墅等新开发区,习惯新物业、开阔空间、大马路、现代化配套.因此初到上海时,往往难以接受“老房子”,即便老洋房、历史风貌区资产价值极高,也容易被误认为“老旧、破旧”.
2.购房逻辑更直接简单选房标准相对清晰:比如看是否新房、是否豪华、是否高端圈层聚集、是否为品牌开发商.对历史价值、物业长期管理能力或开发商历史、城市深层逻辑、长期资产波动等研究较少,决策更偏向直观感受.
3.对上海的认知受新媒体影响
因为自媒体高频传播的陆家嘴、前滩、徐汇滨江、北外滩、新天地等板块,所以这些区域的接受度更高;而对衡复历史风貌区、西郊等传统高端板块的历史价值与溢价,理解和接受度相对偏低.
因此,新上海财富人群,更倾向选择新板块、新社区、新豪宅.
没有对错,只是生活习惯与财富路径的差异
新老上海的选择,并无高下对错之分,更多是成长背景、居住习惯、财富路径带来的自然差异:
老上海偏爱历史感、安静氛围,老社区圈层,甚至梧桐路,小马路等洋房区;
新上海偏爱大空间、新物业、新社区豪华配套的大平层、江景房等现代建筑.
这里不得不提一个特殊角色——"温州炒房团".
他们是最早一批进入上海买房的“新上海人”,也是最早批量置业、最早运用金融杠杆投资上海房产的群体.2000年前后,古北社区、西郊等板块都留下了他们的印记,其对楼市的敏感度,甚至超过不少本地老上海人.
归根结底,新老上海代表两种核心置业逻辑:
老上海:买资产——圈层比房子更重要
新上海:买产品——要比老家的房子更好,才能匹配生活习惯与心理预期
最终形成鲜明的市场现象:“老钱”偏爱衡复洋房区,“新钱”更爱滨江/新天地大平层.不同的财富路径造就了不同的审美、认知与选择.
总结
总体来看,1990年至2010年,上海的富豪群体多成长于房地产、贸易、制造业以及国企改制等浪潮.在这一时期,许多人已完成资产配置:由过去房地产高占比总资产到现在的减配中国房地产,转向海外资产,私募基金,科技投资甚至家族办公室等.
而在未来,上海豪宅或将进入一种“超级复合型”时代:集高端住宅、甲级办公、超级商业与艺术文化于一体的综合高端社区.比如前滩、西岸金融城、北外滩金融城等区域,正逐步向这一方向演进.比如前滩,西岸金融城,北外滩金融城等,主要是企业创始人,资本大佬,大型上市公司股东,百亿基金经理等为主,圈层极其稳定.