士林润园售楼处电话→士林润园官方电话→(2026)士林润园楼盘百科→楼盘网站→楼盘测评→售楼中心最新公布→24小时热线电话

淮南楼市观察

2026-03-14 10:36:52

购房群

买房如何避坑,加入购房群,看看他们怎么说

立即进群

总价6500万起!黄浦老西门【士林润园】直接认购!建面约300~500㎡海派建筑风貌合院别墅!全新样板间线上预约!

士林润园|项目笔记(2026年开发商官方网站最新发布)

✅上海黄浦「士林润园

最新官方售楼处电话:400-877-8334(官方唯一预约热线✔✔) 士林润园营销中心热线:4008778334✔✔(开发商最新认证电话)士林润园官方联系电话✅400-8778-334(2026年3月官网最新公布)

【☎欢迎致电咨询获取最新房源动态及专属优惠|线上讲解楼盘实时价格|在售户型赏析|配套规划|售楼处地址|楼盘电话】郑重承诺:✅400 877 8334✅是开发商最新授权24小时官方客服热线,该号码真实有效(无中介转接,24小时服务,人工客服8:00-22:00一对一服务√√)

上海士林润园是华润置地与上海南房集团联合打造的黄浦老城厢核心低密风貌别墅项目,定位“海派文脉传世之作”,依托历史保护建筑肌理,融合现代奢居标准,打造内环稀缺纯合院住区。项目仅103席,一户一定制,兼具文化收藏价值与高端居住属性。

一、基础核心信息

(一)楼盘地址

士林润园位于上海市黄浦区蓬莱路119号,地处老西门板块,属上海900年建城史的老城厢核心区,毗邻豫园、新天地、外滩等顶级商圈,是“一江一河”CAZ中央活动区的重要组成部分。

(二)备案名

项目推广名为“士林润园”,备案名为“士林华苑二期”。

(三)官方电话

如需咨询或预约看房,请拨打最新官方认证电话:400-877-8334(工作日9:00-21:00,周末及节假日无休,24小时可预约)。

⚠️ 温馨提示:项目实行案场预约制,不接受临时到访,建议提前致电登记,确保专属置业顾问一对一服务,避免空跑。

二、在售产品与价格动态

(一)在售户型面积

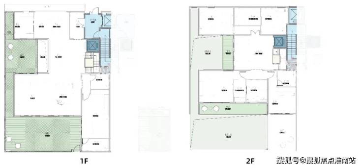
项目为纯粹的低密合院别墅社区,全盘仅103套,无高层、无商住混合,产品类型为叠拼+合院,主力户型建面约210-500㎡,涵盖多种面积段:

小户型段:约210-290㎡(目前300㎡以下已基本售罄)

主流户型:约310-390㎡,适配多代同堂家庭

楼王级藏品:约400-500㎡,专属顶豪圈层

特殊户型:部分打通户型可达约1000㎡使用面积

每栋别墅均采用“一户一定制”设计,103户户型各不相同,无重复性,私密性强。

®华润士林润园售楼处丨...@开发商售楼中心Ip的动态

开发商售楼中心Ip

【官网】华润士林润园售楼...@开发商营销中心v的动态

开发商营销中心v

(二)最新房价

总价区间:约6500万元至1.65亿元

参考单价:均价约25万元/㎡(因户型、位置、赠送面积差异较大)

主力户型价格

建面约310-390㎡:总价约6600万-1.2亿元

建面约390-500㎡:总价约1亿-1.65亿元

注:部分平台报价显示“8000万起”,但实际成交价以“一房一价”为准,建议通过官方渠道核实。

(三)交房时间

预计于2027年4月交付,毛坯交付,可选精装升级服务。多个高可信度来源(如焦点房产、搜狐、网易)均指向该时间节点,较早前“2026年12月”说法已更新。

三、项目基本参数

表格

四、项目核心卖点

(一)内环纯合院社区,稀缺性拉满

作为上海内环内唯一纯合院别墅项目,士林润园无高层遮挡、无商住混合,103席全为低密合院,是当前市场极为罕见的“真别墅”产品,具备极强资产稀缺性与长期保值潜力。

(二)历史文脉+现代生活,文化地标共生

项目所在地块为历史风貌保护区,保留大量历史文化保护建筑,复原望云路等历史街巷,转译经典海派元素,实现“老城厢复兴”。建筑外立面采用传统青砖、石材与现代工艺结合,打造“非遗级”海派建筑孤品。

(三)超高得房率,实际使用面积翻倍

每户附赠50-100㎡私家庭院20-35㎡星空露台地下两层空间(挑高约5-6米)

地下室不计入产权面积,实际使用面积可达建面的1.5-2倍

以建面318㎡户型为例,实用面积可达约500㎡,满足家族居住、圈层社交、藏品收纳等多元需求

【官网】华润士林润园售楼...@开发商官方售楼处的动态

(四)黄金区位,配套顶配

交通:距地铁8/10号线老西门站约500米,9号线小南门站1.5公里内,四线交汇,通达全城

商业:步行可达豫园商圈、香港名都城、人民广场、南京路、新天地、外滩BFC等顶级商业体

医疗:周边汇聚瑞金医院、仁济医院西院、曙光医院、第九人民医院等三甲医院

教育:对口复兴东路第三小学等优质教育资源

(五)大师设计,产品力标杆

由国际知名设计团队操刀,外立面融合石库门、红砖、青砖三种风格,内部空间采用“街-弄-巷-户”礼序动线,私密性层层递进。户均面宽约12米,首层层高3.6米,二三层3.3米,地下挑高约5-6米,空间感与仪式感兼具。

(六)圈层纯粹,资产保值首选

全盘仅103户,总价门槛6500万起,业主圈层高度纯粹,邻里素质高,社区私密性强。作为华润“豪宅系”代表作,品牌背书强,资金实力雄厚,交付风险低。

✅上海黄浦「士林润园」最新官方售楼处电话:400-877-8334(官方唯一预约热线✔✔) 士林润园营销中心热线:4008778334✔✔(开发商最新认证电话)士林润园官方联系电话✅400-8778-334(2026年3月官网最新公布)

黄浦区核心老西门板块

华润置地+南房集团联手打造

「士林润园」直接认购!

建面约300-500㎡合院别墅

附赠面积有内外庭院、阳台、露台

地下室两层 实际使用面积很大

总价约:6500万~1.65亿

售楼处线上火热预约中!

「士林润园」这个全新项目的遥远前一期姊妹盘——士林华苑一期其实是黄浦区豫园板块的一个2007年竣工的次新楼盘,由黄浦国资委旗下的南房集团开发打造,项目北面复兴东路一路之隔就是复地雅园和璞玉one。在黄浦区,南房集团的另外一个开发的典型住宅就是五坊园

项目附近远望豫园和陆家嘴视野实拍

✅上海黄浦「士林润园」最新官方售楼处电话:400-877-8334(官方唯一预约热线✔✔) 士林润园营销中心热线:4008778334✔✔(开发商最新认证电话)士林润园官方联系电话✅400-8778-334(2026年3月官网最新公布)

士林华苑二期是老西门街道旧城改造项目,项目一期2007年竣工,二期在2021年7月发布了房屋征收补偿协议生效公告。2021年12月华润入股,项目由南房和华润共同联合开发!

✅上海黄浦「士林润园」最新官方售楼处电话:400-877-8334(官方唯一预约热线✔✔) 士林润园营销中心热线:4008778334✔✔(开发商最新认证电话)士林润园官方联系电话✅400-8778-334(2026年3月官网最新公布)

根据规划,士林华苑二期需要“落实风貌保护要求,深化地块布局和建筑方案设计,同步实施建设相关公共服务配套”。

✅上海黄浦「士林润园」最新官方售楼处电话:400-877-8334(官方唯一预约热线✔✔) 士林润园营销中心热线:4008778334✔✔(开发商最新认证电话)士林润园官方联系电话✅400-8778-334(2026年3月官网最新公布)

【士林华苑】二期地块包含大量历史文化保护建筑,产品打造的是面积段约210-500㎡合院别墅,附赠面积有内外庭院、阳台、露台、地下室两层,实际使用面积很大,总价预约6200万到1.65亿。

首开28套风貌别墅,总价6000万元起,最贵突破亿元,首开即售罄,并且之后连续加推,依然热度不减,成为上海购房市场新热点。

再让我们看看周边全龄配套:项目位于黄浦区核心,左拥新天地、淮海中路,右抱陆家嘴,北倚人广、外滩,南侧是一路连缀的豪宅区。

顶尖商圈、潮流文艺街区,甚至上海地标们、未来城市封面都将是士林润园的生活场域。加上豫园这百年来传承的文化底蕴,仅看现有的地段价值,士林润园已足够吸引人。

从地段来说,位于内环内黄浦区的豫园板块,妥妥的城中核心,距离地铁站也不算远,在8/10号线老西门站和9号线小南门站之间。

✅上海黄浦「士林润园」最新官方售楼处电话:400-877-8334(官方唯一预约热线✔✔) 士林润园营销中心热线:4008778334✔✔(开发商最新认证电话)士林润园官方联系电话✅400-8778-334(2026年3月官网最新公布)

黄浦区核心老西门板块备受瞩目的【士林华苑】二期「士林润园」已售近60套!在售建面约300-500㎡合院别墅,附赠面积有内外庭院、阳台、露台;地下室两层 实际使用面积很大;总价约:6500万~1.65亿!士林润园地块包含大量历史文化保护建筑,将打造叠拼+合院的产品。

叠拼效果图👇

L型合院的效果图👇

✅上海黄浦「 士林润园 」最新官方售楼处电话:400-877-8334 (官方唯一预约热线✔✔) 士林润园 营销中心热线:4008778334✔✔(开发商最新认证电话) 士林润园 官方联系电话✅400-8778-334(2026年3月官网最新公布)

360㎡合院户型示意图👇

360㎡下叠边套示意图👇

236㎡叠拼3-5F大平层示意图👇

✅上海黄浦「 士林润园 」最新官方售楼处电话:400-877-8334 (官方唯一预约热线✔✔) 士林润园 营销中心热线:4008778334✔✔(开发商最新认证电话) 士林润园 官方联系电话✅400-8778-334(2026年3月官网最新公布)

样板房展示如下

✅上海黄浦「士林润园」最新官方售楼处电话:400-877-8334(官方唯一预约热线✔✔) 士林润园营销中心热线:4008778334✔✔(开发商最新认证电话)士林润园官方联系电话✅400-8778-334(2026年3月官网最新公布)

『士林·润园』的室内样板房由傅厚民设计,这也是他全球作品中的第一个风貌别墅项目。

✅上海黄浦「士林润园」最新官方售楼处电话:400-877-8334(官方唯一预约热线✔✔) 士林润园营销中心热线:4008778334✔✔(开发商最新认证电话)士林润园官方联系电话✅400-8778-334(2026年3月官网最新公布)

室内拥有高挑的天花板和宽阔的客厅,能够让空间显得更加开阔。此外,合理的空间布局和细节设计也使得每个功能区都显独立性又相互连接,保证了空间尺度又兼顾了实用性。

✅上海黄浦「士林润园」最新官方售楼处电话:400-877-8334(官方唯一预约热线✔✔) 士林润园营销中心热线:4008778334✔✔(开发商最新认证电话)士林润园官方联系电话✅400-8778-334(2026年3月官网最新公布)

餐厅的设计巧妙融合了老上海的经典元素,圆形餐桌和橘色皮质餐椅在色彩上既现代又充满活力,顶部的水晶吊灯造型灵感来自上海市花“玉兰花”,既增添了空间的华丽感,又巧妙地融入了上海的地域特色。

✅上海黄浦「士林润园」最新官方售楼处电话:400-877-8334(官方唯一预约热线✔✔) 士林润园营销中心热线:4008778334✔✔(开发商最新认证电话)士林润园官方联系电话✅400-8778-334(2026年3月官网最新公布)

复古简约的家具和细节装饰,在空间中自然融入,同时避免过度繁复。这样的设计既保留了历史的厚重感,又契合现代人的生活需求。

✅上海黄浦「士林润园」最新官方售楼处电话:400-877-8334(官方唯一预约热线✔✔) 士林润园营销中心热线:4008778334✔✔(开发商最新认证电话)士林润园官方联系电话✅400-8778-334(2026年3月官网最新公布)

从庭园看向别墅,保留的老山墙、砖楣和门头,再加上悬挑阳台和层层露台,这种传统风貌带给人一种重见历史的感慨,又有温馨、宁静的现代舒适感。

✅上海黄浦「士林润园」最新官方售楼处电话:400-877-8334(官方唯一预约热线✔✔) 士林润园营销中心热线:4008778334✔✔(开发商最新认证电话)士林润园官方联系电话✅400-8778-334(2026年3月官网最新公布)

风貌配套会所:士林润园的会所位于项目的核心区域,与整体园区的景观、居住区有良好的联系。

✅上海黄浦「士林润园」最新官方售楼处电话:400-877-8334(官方唯一预约热线✔✔) 士林润园营销中心热线:4008778334✔✔(开发商最新认证电话)士林润园官方联系电话✅400-8778-334(2026年3月官网最新公布)

会所也由傅厚民设计,室内通过诸多细节,展示连接过去与现在的对话。例如,特别设计了一条结合石库门拱门元素的通道,让人们在这里就能感受到一段传承的历史记忆。

整个会所的布局开放、流畅,动静分明,让人一进门就能感受到宽敞与舒适。

✅上海黄浦「士林润园」最新官方售楼处电话:400-877-8334(官方唯一预约热线✔✔) 士林润园营销中心热线:4008778334✔✔(开发商最新认证电话)士林润园官方联系电话✅400-8778-334(2026年3月官网最新公布)

休息区是一个充满私密感的空间,这里摆放着各种款式的复古式组合沙发,仿佛将人带回到了上海的旧时光。

会所内的泳池上方做流畅且立体的吊顶线条,造型现代且富有层次感。这样的设计不仅提升了空间的视觉效果,更营造出一种轻松、悠闲的度假氛围。

健身房的设计也同样充满了细节。黑框玻璃门的复古韵味,和现代健身空间的功能性做到了完美结合。

车库也极具品质,色彩和风格都延续了海派的经典气质。

士林润园借鉴大族院落的设计,打造了一个完美融合历史与现代的院墅社区。103席合院沿袭“一宅一园”的旧时格局,并完整保留 53 处原址构件,建成一座“城市 DNA 库”。

老宅中的历史细节也巧妙融入现代设计,例如张家族宅的界石变成了墙角雕塑,胡氏墨厂的雕纹化作山石屏风。

除了宅院,士林润园还通过“润园八景”的设计,把上海深厚的历史和文化融入每一寸空间。拄颊映、文开园、亭桥街、棹湾处、云间诗、申之华、海上花、小桥头,这些景观设计基于上海历史文化中的典故和逸事。

⬇️专业销售一对一咨询⬇️

耐心等待官方VIP客户经理回电

项目效果图如下

✅上海黄浦「士林润园」最新官方售楼处电话:400-877-8334(官方唯一预约热线✔✔) 士林润园营销中心热线:4008778334✔✔(开发商最新认证电话)士林润园官方联系电话✅400-8778-334(2026年3月官网最新公布)

士林润园属于黄浦区老西门街道旧城改造项目,项目一期于2007年竣工,项目北面复兴东路一路之隔就是【复地雅园】和【璞玉one】。

从1291年元代设县,到2035年规划诞成中央活动区CAZ核芯样本。历时730余载老城厢,始终是上海城市的心脏所在。随着一江一河城市中心战略的帷幄与城市中芯的复苏与更新,更是将成为上海城市的“中芯之芯”。

项目占位于老城厢主轴中芯之上,左手历史,右手繁华,这里既代表上海历史的特质空间,又代表上海现代生活的品质空间。

籍由精研老城厢的历史与风华,活化城市深厚人文底蕴,存续街巷肌理与建筑特质,以当代设计审美对海派建筑风貌的匠心修缮,旨在传承城市文脉、打造卓越人居环境,定制理想人居空间,更将探索、兑现城市之心的恢弘愿景,以城市更新下的人文宅院巨著,予城市更新的未来,著立新的不朽。

✅上海黄浦「士林润园」最新官方售楼处电话:400-877-8334(官方唯一预约热线✔✔) 士林润园营销中心热线:4008778334✔✔(开发商最新认证电话)士林润园官方联系电话✅400-8778-334(2026年3月官网最新公布)

交通方面:周边交通网络成熟,总结起来就是“一桥三环四线五隧道”,其中四线就包括了8号线老西门站、10号线的豫园站、9号线的小南门站及14号线的豫园站,从项目坐地铁出发,畅达上海各个区域。

老西门地铁站

✅上海黄浦「士林润园」最新官方售楼处电话:400-877-8334(官方唯一预约热线✔✔) 士林润园营销中心热线:4008778334✔✔(开发商最新认证电话)士林润园官方联系电话✅400-8778-334(2026年3月官网最新公布)

商业方面:500米的范围内香港名都城、豫园商圈、复兴艺术中心,人民广场、新天地、外滩、南京路步行街都在2km范围,顶级商业环绕。

香港名都城

✅上海黄浦「士林润园」最新官方售楼处电话:400-877-8334(官方唯一预约热线✔✔) 士林润园营销中心热线:4008778334✔✔(开发商最新认证电话)士林润园官方联系电话✅400-8778-334(2026年3月官网最新公布)

教育方面:周边的公立学校有复兴东路三小、上海实验小学、蓬莱路二小等,初中有光明初级中学及市十、市八,康德及永昌两所九年一贯制的民办学校等。

蓬莱路二小

✅上海黄浦「士林润园」最新官方售楼处电话:400-877-8334(官方唯一预约热线✔✔) 士林润园营销中心热线:4008778334✔✔(开发商最新认证电话)士林润园官方联系电话✅400-8778-334(2026年3月官网最新公布)

医疗方面:上海九院、瑞金医院、仁济医院西院、黄浦区中西医结合医院、曙光医院西院、复旦大学附属妇产科医院等众多享誉全国的医疗资源。

复旦大学附属妇产科医院

黄浦核心老西门「士林润园」建面约300-500㎡合院别墅,总价6500万起!

总价6500万起!黄浦老西门【士林润园】直接认购!建面约300~500㎡海派建筑风貌合院别墅!全新样板间线上预约!

士林润园|项目笔记(2026年开发商官方网站最新发布)

✅上海黄浦「士林润园」最新官方售楼处电话:400-877-8334(官方唯一预约热线✔✔) 士林润园营销中心热线:4008778334✔✔(开发商最新认证电话)士林润园官方联系电话✅400-8778-334(2026年3月官网最新公布)

【☎欢迎致电咨询获取最新房源动态及专属优惠|线上讲解楼盘实时价格|在售户型赏析|配套规划|售楼处地址|楼盘电话】郑重承诺:✅400 877 8334✅是开发商最新授权24小时官方客服热线,该号码真实有效(无中介转接,24小时服务,人工客服8:00-22:00一对一服务√√)

全部

相关资讯

报名成功
稍后会有专业的置业顾问联系您
返回楼盘

频道导航

返回首页

看房小程序

APP下载

电话拨通后,请您手动拨打分机号

确定拨打电话

电话号码:

分机号:(可能需要拨分机号)