中粮北外滩壹号
售楼处电话☎:400-998-9694✔✔
如有问题欢迎来电咨询,来电即可享受买房优惠!
预约来电尊享购房优惠,可预约案场内部销售人员,专业一对一热情服务,让您用专业眼光去买房。
中粮北外滩壹号售楼处电话☎:400-998-9694✔✔
中粮北外滩壹号售楼处电话☎:400-998-9694✔✔
3000万级预算客户的选择面向来是很广的。
但在小胖看房直播间和小胖看房公众号后台,近期3000万级客户几乎全都不约而同的“锚定”着同一个项目,不问值不值,只问什么时候入市,大有非ta不可的态势!
这个项目就是北外滩的中粮北外滩壹号!

中粮北外滩壹号售楼处电话☎:400-998-9694✔✔
中粮北外滩壹号售楼处电话☎:400-998-9694✔✔
项目效果示意图,仅供参考
你一定好奇这个项目有何魔力,能让3000万级客户集体转向?
中粮北外滩壹号售楼处电话☎:400-998-9694✔✔ 简单对比,你就明白了:
北外滩板块是近一年最炙手可热的滨江板块之一,但红线内的住宅却是少之又少。
今年好不容易出让一块宅地被绿城摘走,预计价格或超过19万/㎡。平心而论,作为黄金三角里的稀缺供应,北外滩卖到19万我并不奇怪。
中粮北外滩壹号售楼处电话☎:400-998-9694✔✔ 但你知道吗?
中 粮北外滩壹号拿地更早,同样属于北外滩红线范围里,与绿城项目几乎呈现掎角之势,而据知情人士透露,该项目的预计价格仅约15-16万/㎡,项目主推建面约185-228㎡四房,总价约3000万级!如果属实,这个价格无疑是北外滩错过再无的抄底机遇!

中粮北外滩壹号售楼处电话☎:400-998-9694✔✔
中粮北外滩壹号售楼处电话☎:400-998-9694✔✔
比价格更重要的是,中粮壹号系作品一直都是手握板块定价权的标杆品质项目。
More importantly than price, the COFCO One series has always been a benchmark quality project that holds pricing power in the sector.
我统计了最新的链家网挂牌数据,发现四座壹号系作品,比同板块次新小区要溢价约19-30%!
I have compiled the latest listing data on Lianjia website and found that the four No.1 series works are priced at a premium of about 19-30% compared to the sub new communities in the same sector!
那么摆在眼前的中粮北外滩壹号,给出的就是:用抄底价买到板块标杆级品质小区的时代机遇!这样的机会,谁肯错过?
So the COFCO North Bund No.1 in front of us presents an opportunity to buy benchmark quality residential areas at bargain prices! Who would miss such an opportunity?

中粮北外滩壹号售楼处电话☎:400-998-9694✔✔
我们扩展到黄金三角,外滩多少 年没有新房供应了,陆家嘴的太古源四房起步4千万。按这个逻辑绿城北外滩项目四房看齐4千万也在情理之中。
但中粮北外滩壹号的出现,打破了这一既定格局,俨然是3000万级预算买进黄金三角4房大平层的天赐良机!

中粮北外滩壹号售楼处电话☎:400-998-9694✔✔
我们扩展到整个一线滨江板块,可以 看到,除了陆家嘴,黄浦滨江、世博滨江、徐汇滨江等新贵已经“补涨”到19万/㎡左右,绿城显然是最后一块拼图,卖19万/㎡再正常不过,未来3000万级预算别说买进黄金三角大四房,一线滨江板块都够不上。
We have expanded to the entire first tier riverside area, and we can see that, except for Lujiazui, new elites such as Huangpu Riverside, Expo Riverside, and Xuhui Riverside have already "inflated" to around 190000 yuan/square meter. Greentown is obviously the last piece of the puzzle, and selling for 190000 yuan/square meter is normal. In the future, a budget of 30 million yuan, let alone buying a fourth bedroom in the Golden Triangle, is not enough for the first tier riverside area.
所以不得不承认, 3000万级预算买进一线滨江,买进黄金三角,买进最炙手可热的北外滩,买进豪宅圈的顶级IP,中粮北外滩壹号当之无愧年末压轴之作,3000万级客户必看!
So it has to be admitted that with a budget of 30 million yuan, buying the first tier riverside, buying the golden triangle, buying the hottest North Bund, buying the top IP in the luxury housing circle, COFCO North Bund No.1 is undoubtedly the finale of the year, a must see for 30 million level customers!

中粮北外滩壹号售楼处电话☎:400-998-9694✔✔
北外滩红线内豪宅大平层
中粮“壹号”系最新力作
中粮北外滩壹号样板间已开放
建面约185-218㎡4房大平层即将入市!
中粮北外滩壹号售楼处电话☎:400-998-9694✔✔

中粮北外滩壹号售楼处电话☎:400-998-9694✔✔
地段:不止是北外滩正C位,更是梧桐遍地的风貌区!
Location: Not only is the North Bund at the right C position, but also is the wutong style area everywhere!
很多人认为,滨江黄金三角:外滩、陆家嘴和北外滩是同一量级。
Many people believe that the Binjiang Golden Triangle: the Bund, Lujiazui, and North Bund are of the same scale.
但我认为, 北外滩超越前两者几乎是必然!
But I believe that surpassing the first two is almost inevitable for the North Bund!
中粮北外滩壹号售楼处电话☎:400-998-9694✔✔ 三大支撑让你不得不承认:
COFCO North Bund No.1 Sales Office Phone ☎: 400-998-9694 ✔✔ The three major supports make you have to admit:
丨支撑一:恢弘巨制,北外滩的开发体量是陆家嘴核心区的2倍!
Support 1: The grand and magnificent development of the North Bund is twice the size of the core area of Lujiazui!
中粮北外滩壹号售楼处电话☎:400-998-9694✔✔ 从规划的角度来看,北外滩的开发体量超过 840万方 ,是陆家嘴核心区的2倍,伦敦CAZ的7倍。
COFCO North Bund No.1 Sales Office Phone ☎: 400-998-9694 ✔✔ From a planning perspective, the development volume of the North Bund exceeds 8.4 million square meters, which is twice that of the core area of Lujiazui and seven times that of London CAZ.
项目南侧的北外滩核心区,更是发展的重中之重。 1/5的土地上,将承载了北外滩超四成的建筑体量 。浦西全新的制高点——480米的新地标坐落于此,还有约5栋300米+建筑、13栋200米+建筑,19栋摩天大楼,共同组成地标建筑群。
The core area of the North Bund on the south side of the project is of paramount importance for development. On 1/5 of the land, it will carry over 40% of the building volume of the North Bund. The new landmark at a height of 480 meters in Puxi is located here, along with about 5 buildings over 300 meters, 13 buildings over 200 meters, and 19 skyscrapers, forming a landmark building complex.

中粮北外滩壹号售楼处电话☎:400-998-9694✔✔
北外滩 规划效果图
丨支撑二:北外滩是站在巨人肩膀上的再超越!
中粮北外滩壹号售楼处电话☎:400-998-9694✔✔ 北外滩是站在巨人肩膀上的再超越,它吸收了陆家嘴规划上的成功之处,也摒弃了其令人诟病的地方,剑指全球超大城市精细化管理的典型示范区,所以北外滩超越陆家嘴是历史使命的必然。
具体来看,北外滩将比陆家嘴具备更深的历史文化底蕴,有更休闲的滨江路网和生态环境,也有更具城市温度的人文关怀。

中粮北外滩壹号售楼处电话☎:400-998-9694✔✔
北外滩规划效果图
丨支撑三:世纪规划北外滩的兑现速度全球领先!
Support Three: The realization speed of the Century Plan North Bund is globally leading!
陆家嘴成为上海金融之巅花了30年,而留给北外滩的时间只有10年! 所以你会看到北外滩规划兑现的速度简直史无前例!
It took 30 years for Lujiazui to become the pinnacle of Shanghai's finance, while only 10 years were left for the North Bund! So you will see that the speed of realizing the North Bund plan is unprecedented!
2023年,北外滩开发建设重大工程项目22个,投资超过800亿元,实现开竣工面积141.9万㎡。
In 2023, 22 major engineering projects will be developed and constructed on the North Bund, with an investment of over 80 billion yuan and a completion area of 1.419 million square meters.
2024年,北外滩将推动开建重大工程项目48个,投资1890亿元,计划实现开竣工面积超140万㎡。
In 2024, the North Bund will promote the construction of 48 major engineering projects with an investment of 189 billion yuan, with a planned completion area of over 1.4 million square meters.
那些前几年还停留在图纸上的城市地标,如今已经屹立江边,成为上海新的天际线!
The city landmarks that were still on the blueprint a few years ago have now stood tall by the river and become the new skyline of Shanghai!
中粮北外滩壹号售楼处电话☎:400-998-9694✔✔ 约320米的白玉兰广场
COFCO North Bund No.1 Sales Office Phone ☎: 400-998-9694 ✔✔ About 320 meters of Magnolia Square
约263米来福士双塔
Approximately 263 meters from the Raffles Twin Towers
综上所述,未来的北外滩在规模、业态、发展速度方面都会超越外滩、陆家嘴,说它是当下最炙手可热的滨江板块,没有任何问题。
In summary, the future North Bund will surpass the Bund and Lujiazui in terms of scale, business format, and development speed. It can be said that it is currently the hottest riverside area without any problems.
中粮北外滩壹号售楼处电话☎:400-998-9694✔✔ 而作为北外滩红线内屈指可数的住宅项目,中粮北外滩壹号无疑能尽享这份世纪红利!
COFCO North Bund No.1 Sales Office Phone ☎: 400-998-9694 ✔✔ As one of the few residential projects within the red line of the North Bund, COFCO North Bund No.1 undoubtedly enjoys the benefits of this century!

中粮北外滩壹号售楼处电话☎:400-998-9694✔✔
示意图仅供参考
更难得的是,中粮北外滩壹号所在区域, 恰恰是北外滩核心商务区与提篮桥风貌区交汇地。
意味着,住在中粮北外滩壹号,信步可达黄金三角的汹涌澎湃与商务区的现代繁华。转身即入,梧桐树下被时光浸润的静谧街区和里弄肌理。

中粮北外滩壹号售楼处电话☎:400-998-9694✔✔
示意图仅供参考
这并非简单的区位叠加,而是一种稀缺的生活范式——在世界的舞台上奔涌向前,亦能在历史的脉络里安顿身心。
中粮北外滩壹号售楼处电话☎:400-998-9694✔✔ 项目带来的,不止是一处居所,更是一种“出则掌控全局,入则栖心桃源”的从容境界。
而且小胖君深入了解了提篮桥风貌区的规划,发现几乎全部都是低密产品 ,中粮北外滩壹号即将入市的是片区 唯一一幢高层!采光与视野可想而知!

中粮北外滩壹号售楼处电话☎:400-998-9694✔✔
示意图仅供参考
这让我想起了衡复风貌区的嘉里华庭。
这个小区的挂牌均价不过15-16万/㎡,但高区能看低密洋房的房源挂牌价普遍超过20万/㎡,最高能超过24万/㎡。

中粮北外滩壹号售楼处电话☎:400-998-9694✔✔
下图是嘉里华庭高区的视野实景图,无遮挡一览无余的景色相当震撼!

中粮北外滩壹号售楼处电话☎:400-998-9694✔✔
图片来源于网络
确实,能在繁华市中心,将一抹充满文化气息的绿意“镶”在窗框,成为日常生活的背景图,这样的心境与掌控感值得这样的溢价!
显然,作为风貌区唯一的高层,中粮北外滩壹号未来必然拥有同级别的享受,值得期待!

中粮北外滩壹号售楼处电话☎:400-998-9694✔✔
产品:北外滩“壹号”作品,重新定义了滨江国际豪宅生活!
在上海豪宅圈,中粮的“壹号”系作品已然成为身份与地位的象征,其超强的保值能力也让入手它的业主资产一再进阶。
中粮北外滩壹号售楼处电话☎:400-998-9694✔✔ 能有如此高的认可度首先得益于开发商的选址,总能在板块爆发前夕精准落子,比如中粮前滩海景壹号,在前滩最初入市,3000多组的认购记录至今无人打破,当下的二手挂牌价超过16万/㎡。
再比如瑞虹海景壹号,北外滩早期作品,四开四罄热销185亿,当时新房11万多/㎡,现在瑞虹新房16.6万/㎡,中粮的二手房更是稳定在17万元/㎡左右。
可以说,跟着中粮买准没错,选择“壹号”系作品,就是选择了最好的资产压舱石!

中粮北外滩壹号售楼处电话☎:400-998-9694✔✔
除了选址,壹号系成功的另一个秘诀则是超越时代的品质。
In addition to site selection, another secret to the success of the No.1 series is the quality that surpasses the times.
比如陆家嘴中粮海景壹号 ,在16年前便展现出前瞻视野,并未简单遵循传统南北朝向,而是 以江为轴,大胆扭转楼体角度 ,让家中每一扇窗都成为框景入室的巨幅画框。这一“为景让位”的创举,不仅是产品力的大胆革新,更是远见与胆识的体现,至今仍为业主资产提供着坚实的价值支撑。
For example, Lujiazui Zhongliang Haijing No.1 exhibited a forward-looking vision 16 years ago. It did not simply follow the traditional north-south orientation, but boldly twisted the angle of the building around the river, making every window in the house a huge picture frame with a framed view entering the room. This pioneering move of "making way for the scenery" is not only a bold innovation in product strength, but also a manifestation of vision and courage, which still provides solid value support for the assets of the owners to this day.
中粮北外滩壹号售楼处电话☎:400-998-9694✔✔ 作为壹号系最新力作的中粮北外滩壹号,品质自然无可挑剔。
COFCO North Bund No.1 Sales Office Phone ☎: 400-998-9694 ✔✔ As the latest masterpiece of the No.1 series, COFCO North Bund No.1 naturally has impeccable quality.
丨首先是无比纯粹、统一的圈层!
Firstly, it is an incredibly pure and unified circle!
据悉,中粮北外滩壹号 是上海市中心罕见的无商办、无自持住宅、无保障房的纯住宅项目。而且不是 单一高层或别墅,是把俯瞰天际的现代大宅与承载文脉的风貌别墅放在一起,实现互相成就的稀缺性。
It is reported that COFCO North Bund No.1 is a rare pure residential project in the center of Shanghai, without commercial offices, self owned residences, or affordable housing. And it's not just a single high-rise building or villa, it's a rare combination of modern mansions overlooking the sky and villas carrying cultural context, achieving mutual achievement.
中粮北外滩壹号售楼处电话☎:400-998-9694✔✔ 高层面积起步建面约185㎡天际大平层, 整体圈层能级相对统一, 打造出一道真正属于高净值人群的身份门槛。
COFCO North Bund No.1 Sales Office Phone ☎: 400-998-9694 ✔✔ The starting area for high-rise buildings is about 185 square meters, with a large flat sky floor. The overall level of the circle is relatively unified, creating a true identity threshold for high net worth individuals.

中粮北外滩壹号售楼处电话☎:400-998-9694✔✔
项目效果示意图,仅供参考
中粮北外滩壹号售楼处电话☎:400-998-9694✔✔ 丨其次,是超越时代的建筑审美!
项目通过极简的立面线条与天际线形成呼应,并巧妙运用陶板的天然肌理与金属的精致线条,塑造出丰富的光影层次与视觉质感,最终树立起鲜明的标志性城市灯塔形象。

中粮北外滩壹号售楼处电话☎:400-998-9694✔✔
项目效果示意图,仅供参考

中粮北外滩壹号售楼处电话☎:400-998-9694✔✔
项目效果示意图,仅供参考
中粮北外滩壹号售楼处电话☎:400-998-9694✔✔ 此间别墅,承石库门之骨相,融当代设计之精神。
对经典门头、山花与院落进行尺度重构,成就顶豪审美下应有的优雅典范。

中粮北外滩壹号售楼处电话☎:400-998-9694✔✔
项目效果示意图,仅供参考
丨再次,是与北外滩和风貌区相得益彰的园林设计!
项目的园林景观设计紧扣「拾光映象」理念,让镜面水景、古木纹石材与艺术雕塑,共同复刻源福里的往昔剪影。
「八大主题场景」如长卷铺陈开,从百年梧桐下的静谧巷道,到充满未来感的艺术庭院,共同构成一个鲜活立体的生活剧场。

中粮北外滩壹号售楼处电话☎:400-998-9694✔✔
项目效果示意图,仅供参考
中粮北外滩壹号售楼处电话☎:400-998-9694✔✔ 丨全市独一档的会所高占有率!
在上海,以别墅为主体的项目极少带会所。
原因主要有2方面,一方面业主基数少,均摊成本高;另一方面,别墅业主对会所品质要求极高,非常考验开发商的运营能力。
在这样的背景下,中粮北外滩壹号坚守 “壹号”标准,突破性挖地三层打造出惊人的 1800㎡顶奢会所,恒温泳池、健身瑜伽、私宴茶室、酒吧会客等功能一应俱全。
中粮北外滩壹号售楼处电话☎:400-998-9694✔✔ 折算本就稀少的户数,会所空间的高占有率、高使用频率,全市可能是独一份!

中粮北外滩壹号售楼处电话☎:400-998-9694✔✔

中粮北外滩壹号售楼处电话☎:400-998-9694✔✔
以上均为项目效果示意图,仅供参考
丨最后来看户型:
项目没有拘泥于传统的南北通透,而是打造了270°观景的天际大平层, 低区俯瞰风貌别墅风华,中区远眺北外滩天际线,高区直接对话陆家嘴三件套,层层递进的视觉层次感,让每一户都能拥有绝佳视野!
中粮北外滩壹号售楼处电话☎:400-998-9694✔✔ 项目一层4梯4户,每户都有独立电梯厅,保证私密性的同时,也能成为家的延伸!
功能性方面,全部是四房两厅三卫的户型,适配当下越来越多的三代同堂和二胎家庭。
功能布局上,基本都做了三开间或四开间朝南、阔绰南向观景面,客餐厅 LDKB一体化,多套房设计,独立书房或X空间,主卧小家化,尺度感与舒适度都是妥妥的顶豪水准!

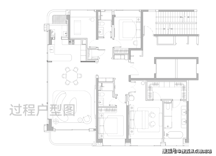
中粮北外滩壹号售楼处电话☎:400-998-9694✔✔
网传 185㎡过程户型图

中粮北外滩壹号售楼处电话☎:400-998-9694✔✔
网传 228 ㎡过程户型图
综上所述, 凭借其优越的地段、稀缺的天赋以及高品质的产品,中粮北外滩壹号无疑是北外滩新的封面之作!
对于3000万级买家来说,项目也是买进黄金三角、甚至整个一线滨江板块大尺度4房错过再无的置业机会,且买且珍惜!
北外滩红线内豪宅大平层
中粮“壹号”系最新力作
中粮北外滩壹号样板间已开放
建面约185-218㎡4房即将入市!
1、房地产:指房产和地产的总称(又称不动产)。
2、房地产的三种存在形态:
单纯的土地、单纯的房屋、土地房屋的综合体
3、房地产的特征:
a、房地产位置的固定性(土地不可移,房屋也不可动);
b、房地产地域的差别性(每宗房地产的价值都不同);
c、房地产的高值、耐久性(价格贵、土地永久的);
d、房地产的保值、增值性(货币贬值、房产保值、货币增值、房产增值);
4、房产:是房屋及其权利的总称(占有、使用、收益、处分等权利)。
5、房屋分类:
a、功能用途:居住用房(小区、高品住宅)、工业用房(厂房、仓库)、商业用房(门面、商场)、办公用房(写字楼)、行政用房(军事、学校等单位用房及城市);
b、建筑结构:钢结构、钢筋混凝土结构、砖混结构、砖木结构和其他;
c、所有权归属:公房(直管公房和自管公房等)和私房;
6、地产:是土地及其权利的总称(使用、收益、转让等权利)。
7、土地分类:
a、开发利用:生地和熟地;
b、建筑功能:建筑用地和非建筑用地;
c、用途:居住用地、商业服务用地、工业用地、仓储用地、市政公共设施用地、交通用地、绿化用地、特殊用地等;
8、房地产业:指从事房产开发、经营、管理和服务的行业。包括:
a、土地开发;
b、房屋建设、维修、管理;
c、土地使用权的有偿划拔、转让;
d、房屋所有权的买卖、租赁;
e、房地产抵押贷款;
f、房地产市场;
9、土地使用权:就是土地所有者根据土地分类对土地加以利用的权利(指依法对土地经营、利用和收益的权利)。土地公有制采取了两种形式:即集体所有制和国家所有制。a)农村土地采用了集体所有制,属于农民集体所有;b)城市土地采取国家所有制的形式,属于全民所有;任何个人不能取得土地的所有权。
土地使用获得的方式:
划拔:无偿使用,如学校、医院、军事用地、机场等市政建设工程;
出让:从国家有偿取得使用权,方式:协议(如200-250万/亩)、招标(提出底价,根据使用用途和价格取得)、拍卖(价高者竟得,不违法的前提下,通过正规渠道取得);
10、房地产市场:
a、一级市场:以土地为体(亦称土地市场、土地交易市场);
b、二级市场:开发商获得土地后,投入一定的奖金建设,通过有偿或赠与将产权转买给需求者(新建商品房的买卖市场);
c、三级市场:房屋在消费市场的再次流通,包括:买卖、抵押、转让、租凭(二手房);
房地产市场结构善一览表:
市场称谓
一级市场
二级市场
三级市场
称谓
土地使用权出让市场
土地使用权转让市场、增量商品房市场、住房一级市场等
土地使用权转让市场、存量商品房市场、二手房市场、住房二级市场等
市场主体
政府、开发企业(投资者)
开发企业、业主
业主
市场客体
国有土地使用权
增量商品房
存量商品房、已售旧公房、私房
交易方式
拍卖、招标、协议
出售、出租等
买卖、租赁、交换等
11、土地使用权出让:指国家以土地所有者身份,按指定地块的使用年限、用途和城市规划等条件,将城市土地使用权出让给土地使用者,并向土地使用者收取土地使用权出让金的行为。出让交易双方是国家和用地单位或个人。
12、土地产权:包括土地所有权、地上权、地役权、抵押权、典权、租赁权。
地上权:指以支付租金为代价在他人土地上建筑房屋的权利,它的实质就是土地使用权;
地役权:指利用他人土地供自己使用的权利;
抵押权:指土地使用权获得者在其有效的使用期限内有以土地作抵押获取银行贷款或其他担保的权利;
租赁权:指土地使用权获得者在其有效使用期限内将土地租给他人使用以获取收益,承租人即取得该块土地的租赁权;
13、土地使用年限:指国家将土地使用权出让给土地使用者,双方约定土地使用者可以使用的年限。
1)土地使用权出让年限:
a、居住用地70年;
b、工业用地、教育、科技、文化卫生、体育及综合或其他用地50年;
c、商业、旅游、娱乐用地40年;
PS:使用用途需转换的要补年限地价的差价,国家指定的则遵照执行;
2)土地使用年限到期后如何处理:
a、国家有权无条件的收回该土地;
b、建筑主体经质控部门检验后不属危房;
c、项目的存在不影响城市规划,不影响市容,只要向政府缴纳土地出让金可以继续使用。
PS:b、c条完全存在的情况下,以当时的地价购买使用年限,年限由政府规定,否则无条件收回;
14、商品房:开发商以市场地价取得土地使用权后进行开发建设,并经国土局批准在市场上流通的房地产,它是在获取房产证后,可自行转让、出租、继承、抵押、交换的固定资产。
商品房的物业类型:住宅、写字楼、商场、酒店、市场。
15、商品房的预售制度:五证二书
五证:〈国有土地使用证〉、〈建设用地规划许可证〉、〈建设工程规划许可证〉、
〈建设工程施工许可证〉、〈商品房预售许可证〉
二书:〈质量保证书〉、〈使用说明书〉、两书可以作为商品房买卖合同的补充约定,并且是房地产开发企业在商品房交付使用时向购房人提供的对商品房住宅承担质量责任的法律文件和保证文件。
16、烂尾楼:指未能完成施工中途停建的楼盘。造成楼盘烂尾的原因主要有资金不足、设计、施工存在严重质量问题,非常建设等。
17、楼花:指已经动工建造,但尚未建成的楼宇、房屋。即指图纸上的楼宇,处于建筑施工的最初阶段,离交房时间长,价格优惠,买了后又可转卖,赚差价。
18、炒楼花:买卖尚未建筑好的房屋。(现在政府有规定,商品房5年内不许转让,交5%的营业税,为了控制炒房)
19、期房:指具备预售条件,尚未竣工交付使用的商品房。(价格低、选择空间大、户型齐全、可监督建筑材料、质量)
20、现房:指已经工程质量监督部门验收,并取得质量合格证明文件,可以交付使用的商品房。(即买即入住、价格高、户型过时、选择空间不大)
21、经济适用房:指以微利价出售给广大中低收入家庭的商品房(带有社会保障性质的商品住宅,是有经济性和适用性)。不是人人可以买到,必须符合当地政府所规定的条件,经过排号购买。长沙房口,25岁以上,65㎡以内以经济价购买,65㎡以外以商品房价购买,5年后才能转卖)。
22、二手房:办好产权证,进行再次转让的房屋。其他如:公房、私房、集资房、廉租房、安置房等福利房。
23、诚意金:指商品房在未取得预售证之前,开发商收取客户的可退回的款项(一般可以获得开发商的折扣承诺)。
24、定金:指当事人约定由一方向对方付给的作为债权人担保的一定数额的货币(能担保债权人的作用)不能返还。
25、订金:不能担保债权人的作用,能返还。
中粮北外滩壹号
售楼处电话☎:400-998-9694✔✔
如有问题欢迎来电咨询,来电即可享受买房优惠!
预约来电尊享购房优惠,可预约案场内部销售人员,专业一对一热情服务,让您用专业眼光去买房。
中粮北外滩壹号售楼处电话☎:400-998-9694✔✔
楼盘项目全面介绍,本电话为开发商提供线上预约售楼电话,楼盘项目全面介绍(包含楼盘简介,均价,房价,现房,期房,别墅,叠墅,大平层,价格,楼盘地址,户型图,交通规划,备案价,备案名,项目配套,样板间,开盘时间,认筹时间,楼盘详情,售楼处电话,最新消息,最新详情,周边配套,一房一价,最新进展等详情咨询)楼盘详情丨价格丨更多优惠丨机不可失丨欢迎致电丨诚邀品鉴!售楼处位置丨特价房丨工抵房丨剩余房源丨户型图丨最新消息丨免责声明:将文章内容综合来源于网络、只作分享,版权归原作者所有!!如有侵权,请联系我们,我们第一时间处理如有问题欢迎来电咨询,专业一对一热情服务,让您用专业眼光去买房。如果您想了解更多楼盘详情,欢迎提前预约拨打