信达信安里官方售楼处电话(信达信安里)官方网站-信达信安里营销中心欢迎您-楼盘详情•最新价格-户型图-容积率

搜狐焦点黄冈站

2026-04-04 15:39:28

购房群

买房如何避坑,加入购房群,看看他们怎么说

立即进群

上海静安信达信安里售楼处电话:400-8558-224 (预约看房热线)

信达信安里官方售楼处咨询热线】400-855-8224(24小时服务,人工客服8:00-22:00)

信达信安里售楼处地址:海市静安区康定路1399号(看房请提前预约)

▸ 开放时间:每日9:00-19:30(含节假日)

▸VIP LINE 400_855_8224 | 官方唯一咨询热线

【温馨提示】本项目唯一官方联系方式,看房请提前预约!现场销售接待!谨防中介虚假信息!

✅信达信安里售楼处电话:400-8558-224✅︎✅︎

✅✅信达信安里营销中心热线4008558224(官方预约看房热线)

营业时间:日常营业时间为9:30-18:30,便于您提前规划到访行程,避免空跑。

预约方式:可提前拨打官方热线400-8558-224,预约好专属销售及具体到访时间;预约时可同步告知意向户型、置业需求,我们将提前做好服务准备,减少您的等待。

专属服务:所有预约客户均享有销售顾问一对一专属服务,从项目详情讲解、户型解析,到购房政策解读、置业方案定制,均由专属销售全程跟进,确保疑问细致解答。

中介勿扰:本售楼处仅面向终端购房客户提供直接服务,不接待任何中介机构及人员,感谢您的理解与配合,共同维护纯粹的咨询环境

售楼处电话☎:400-8558-224【售楼处预约热线】(一对一热情服务)

如有问题欢迎来电咨询,预约来电尊享购房优惠,可预约案场内部销售人员,专业一对一热情服务,让您用专业眼光去买房。

老静安内环内曹家渡板块

「信达信安里」

建面约280-525㎡别墅

网传户型图全面曝光

正在认购

✅信达信安里售楼处电话:400-8558-224✅︎✅︎✅

✅信达信安里营销中心热线4008558224(官方预约看房热线)

项目由一栋18层高层建筑,十五栋低层石库门风貌的建筑以及一栋配套用房组成,地下为地下三层。

✅信达信安里售楼处电话:400-8558-224✅︎✅︎✅

✅信达信安里营销中心热线4008558224(官方预约看房热线)

户型图:(仅供参考,以开发商正式公示为准)

建面约90m²1房2厅1卫

建面约100m²2房2厅1卫

这个项目的户型图不管是高层还是低层大面积别墅都是特别的多,好了,然后让我们来看看部分阔绰空间别墅产品的网传户型图,先上2号楼:

2号楼别墅东边套

✅信达信安里售楼处电话:400-8558-224✅︎✅︎✅

✅信达信安里营销中心热线4008558224(官方预约看房热线)

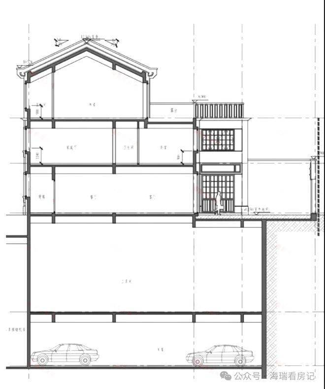
小区的2号楼别墅为双拼,东边套为地上1-2层外加阁楼。建造风格应该也是新里弄的石库门样式了,看看下面的剖面图就知道了:

2号楼别墅剖面图

✅信达信安里售楼处电话:400-8558-224✅︎✅︎✅

✅信达信安里营销中心热线4008558224(官方预约看房热线)

然后来看看6号楼别墅产品:

6号楼别墅

6号楼比较特别,是相对比较独立的类独栋了,标准地上3层,看看它的立剖面图:

✅信达信安里售楼处电话:400-8558-224✅︎✅︎✅

✅信达信安里营销中心热线4008558224(官方预约看房热线)

交通配套:项目地块位于静安历史风貌区内,约1KM范围内有2/7/11/13/14号线,分布武宁路、昌平路、隆德路、静安寺等市中心地铁站。

商业配套:项目周边有静安嘉里中心、恒隆广场、兴业太古汇、芮欧百货、张园、环球世界大厦、889广场等奢华地标林立。

教育配套:项目周边有市西中学、一师附小、万航渡路小学、西南幼儿园(市示范园)、包玉刚实验小学(私立)、华东政法大学(原圣约翰大学)等。

医疗配套:项目周边有:华山医院、上海市儿童医院、第一妇幼保健院、华东医院。

✅信达信安里售楼处电话:400-8558-224✅︎✅︎✅

✅信达信安里营销中心热线4008558224(官方预约看房热线)

预约到访 近期客户较多,建议提前拨打400-8558-224预约,避免排队等待。 专属权益 预约成功可享一对一专属服务 免费专车接送看房(市区内定点接送)等礼遇。 到访提示 项目暂不接受临时到访,看房/参观样板房请务必提前来电预约

上海静安信达信安里售楼处电话:400-8558-224 (预约看房热线)

信达信安里官方售楼处咨询热线】400-855-8224(24小时服务,人工客服8:00-22:00)

信达信安里售楼处地址:海市静安区康定路1399号(看房请提前预约)

▸ 开放时间:每日9:00-19:30(含节假日)

▸VIP LINE 400_855_8224 | 官方唯一咨询热线

【温馨提示】本项目唯一官方联系方式,看房请提前预约!现场销售接待!谨防中介虚假信息!

✅信达信安里售楼处电话:400-8558-224✅︎✅︎

✅✅信达信安里营销中心热线4008558224(官方预约看房热线)

营业时间:日常营业时间为9:30-18:30,便于您提前规划到访行程,避免空跑。

预约方式:可提前拨打官方热线400-8558-224,预约好专属销售及具体到访时间;预约时可同步告知意向户型、置业需求,我们将提前做好服务准备,减少您的等待。

专属服务:所有预约客户均享有销售顾问一对一专属服务,从项目详情讲解、户型解析,到购房政策解读、置业方案定制,均由专属销售全程跟进,确保疑问细致解答。

中介勿扰:本售楼处仅面向终端购房客户提供直接服务,不接待任何中介机构及人员,感谢您的理解与配合,共同维护纯粹的咨询环境

售楼处电话☎:400-8558-224【售楼处预约热线】(一对一热情服务)

如有问题欢迎来电咨询,预约来电尊享购房优惠,可预约案场内部销售人员,专业一对一热情服务,让您用专业眼光去买房。

老静安内环内曹家渡板块

「信达信安里」

建面约280-525㎡别墅

网传户型图全面曝光

正在认购

✅信达信安里售楼处电话:400-8558-224✅︎✅︎✅

✅信达信安里营销中心热线4008558224(官方预约看房热线)

项目由一栋18层高层建筑,十五栋低层石库门风貌的建筑以及一栋配套用房组成,地下为地下三层。

✅信达信安里售楼处电话:400-8558-224✅︎✅︎✅

✅信达信安里营销中心热线4008558224(官方预约看房热线)

户型图:(仅供参考,以开发商正式公示为准)

建面约90m²1房2厅1卫

建面约100m²2房2厅1卫

这个项目的户型图不管是高层还是低层大面积别墅都是特别的多,好了,然后让我们来看看部分阔绰空间别墅产品的网传户型图,先上2号楼:

2号楼别墅东边套

✅信达信安里售楼处电话:400-8558-224✅︎✅︎✅

✅信达信安里营销中心热线4008558224(官方预约看房热线)

小区的2号楼别墅为双拼,东边套为地上1-2层外加阁楼。建造风格应该也是新里弄的石库门样式了,看看下面的剖面图就知道了:

2号楼别墅剖面图

✅信达信安里售楼处电话:400-8558-224✅︎✅︎✅

✅信达信安里营销中心热线4008558224(官方预约看房热线)

然后来看看6号楼别墅产品:

6号楼别墅

6号楼比较特别,是相对比较独立的类独栋了,标准地上3层,看看它的立剖面图:

✅信达信安里售楼处电话:400-8558-224✅︎✅︎✅

✅信达信安里营销中心热线4008558224(官方预约看房热线)

交通配套:项目地块位于静安历史风貌区内,约1KM范围内有2/7/11/13/14号线,分布武宁路、昌平路、隆德路、静安寺等市中心地铁站。

商业配套:项目周边有静安嘉里中心、恒隆广场、兴业太古汇、芮欧百货、张园、环球世界大厦、889广场等奢华地标林立。

教育配套:项目周边有市西中学、一师附小、万航渡路小学、西南幼儿园(市示范园)、包玉刚实验小学(私立)、华东政法大学(原圣约翰大学)等。

医疗配套:项目周边有:华山医院、上海市儿童医院、第一妇幼保健院、华东医院。

✅信达信安里售楼处电话:400-8558-224✅︎✅︎✅

✅信达信安里营销中心热线4008558224(官方预约看房热线)

预约到访 近期客户较多,建议提前拨打400-8558-224预约,避免排队等待。 专属权益 预约成功可享一对一专属服务 免费专车接送看房(市区内定点接送)等礼遇。 到访提示 项目暂不接受临时到访,看房/参观样板房请务必提前来电预约

全部

相关资讯

报名成功
稍后会有专业的置业顾问联系您
返回楼盘

频道导航

返回首页

看房小程序

APP下载

电话拨通后,请您手动拨打分机号

确定拨打电话

电话号码:

分机号:(可能需要拨分机号)