2025越秀·外滩樾(越秀·外滩樾)首页网站-越秀·外滩樾欢迎您-越秀·外滩樾楼盘详情-最新价格户型

搜狐焦点黄冈站

2025-10-19 14:14:19

购房群

买房如何避坑,加入购房群,看看他们怎么说

立即进群

越秀·外滩樾

越秀·外滩樾售楼处24小时电话:400-8783-873 首页网站最新介绍:房价、价格、折扣、规划、户型图、特价房、样板房、优缺点、得房率、车位比、折扣优惠、交通出行、周边配套、商业配套、销售中心位置、楼盘地址、户型介绍、营销中心电话、最新动态详情咨询

基础信息

【项目名称】越秀·外滩樾

【开发商】上海漕越经济发展有限公司

【项目位置】上海市·虹口区·梧州路235弄

【项目类别】70年产权住宅

【项目类型】风貌别墅

【可售户数】项目共计49栋(仅48栋可售)

【容积率】约1.3

越秀·外滩樾售楼处电话:400-8783-873【预约看房热线】越秀·外滩樾官方售楼处电话:400-8783-873【售楼处电话/地址】越秀·外滩樾售楼处电话:400-8783-873【开发商认证】

【越秀·外滩樾】

🌈越秀外滩樾开发商电话:400-8783-873(开发商认证)

越秀外滩樾营销中心

🌈越秀外滩樾开发商电话:400-8783-873(开发商认证)

预约看房请联系案场销售

【传奇的1.5公里启航外滩百年世界史】

项目所在地北外滩,是百年前上海的发源地。作为上海开埠后第一座码头的诞生地,北外滩率先“开眼看世界”,海纳万国文化风潮,众多此后影响中国的创举在此诞生,是上海最早的“十里洋场”。

越秀·外滩樾售楼处电话:400-8783-873【预约看房热线】越秀·外滩樾官方售楼处电话:400-8783-873【售楼处电话/地址】越秀·外滩樾售楼处电话:400-8783-873【开发商认证】

【世界的1.5公里再立世界上海新传】

傲立“一江一河”交汇处(直线距离黄浦江约1km),未来将打造成为彰显上海城市核心竞争力的黄金水岸和具有国际影响力的世界级城市会客厅,出入之间,相逢城市高阶未来。

【上海新封面】黄金三角顶序规划

北外滩,与外滩、陆家嘴并称为上海的“黄金三角”。将以2座陆家嘴的商务体量规划,新天地2.0生活圈打造,成为上海跃升世界舞台的“中心发力”新引擎。

【经济中心】全球化核心腹地

北外滩总开发面积约840万方,自陆家嘴之后上海最大开发区域,未来将聚焦资产管理、金融科技、绿色航运等上游产业,打造“运作全球的总部城”。

越秀·外滩樾售楼处电话:400-8783-873【预约看房热线】越秀·外滩樾官方售楼处电话:400-8783-873【售楼处电话/地址】越秀·外滩樾售楼处电话:400-8783-873【开发商认证】

【地标中心】世界仰止的高度

北外滩将建设480米高的浦西第一高楼——上海北外滩中心,未来将携19栋摩天大楼集群共筑上海崭新天际线。

【极核中心】顶奢商业新地标

约1.5KM内拥享北外滩商圈、外滩商圈、陆家嘴商圈,华贸奢侈品品牌之家、白玉兰广场等潮奢集萃,未来上海顶奢商业新地标,举步间繁华尽拥。

【越秀·外滩樾】

🌈越秀外滩樾开发商电话:400-8783-873(开发商认证)

越秀外滩樾营销中心

🌈越秀外滩樾开发商电话:400-8783-873(开发商认证)

预约看房请联系案场销售

【交通中枢】无界畅行世界

约360米新建路隧道(直线距离),快速直达陆家嘴CBD;

约670米外滩隧道(直线距离),直达外滩金融商业街以及老码头;

约150米北横通道(直线距离)贯通全城,快速通达虹桥机场/虹桥火车站;

约2.4公里大连路隧道(直线距离),直达浦东东方路、世纪大道、八百伴商业圈。

越秀·外滩樾售楼处电话:400-8783-873【预约看房热线】越秀·外滩樾官方售楼处电话:400-8783-873【售楼处电话/地址】越秀·外滩樾售楼处电话:400-8783-873【开发商认证】

【42载越秀|千亿级开发商与上海共卓越】

国内资产规模最大的地方驻港企业——越秀集团

42载国匠越秀千亿级开发商——越秀地产

中国第一代商品房缔造者

2024中国房企综合实力TOP7

越秀·外滩樾售楼处电话:400-8783-873【预约看房热线】越秀·外滩樾官方售楼处电话:400-8783-873【售楼处电话/地址】越秀·外滩樾售楼处电话:400-8783-873【开发商认证】

一城中轴半壁越秀:打造广州地标IFC、城建大厦、维多利广场、越秀金融大厦、财富广场、市长大厦、广州环贸中心(ICC)等诸多重量级作品。

全球地标打造者:广州国际金融中心(IFC)高约440.75米,建成之时为全球10大超高层建筑之一,获得国际建筑界奥斯卡“英国菜伯金奖”。(此外,中国仅北京“鸟巢”和上海世博会英国馆荣获该奖项。)

豪宅基因始终传承:打造“广州第一富人区”二沙岛,屹立广州顶豪之列,整个二沙岛9个项目,有7个项目都是越秀开发,其中越秀宏城花园单价25万-40万/㎡,总价1-6亿,一房难求。

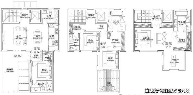
305户型

越秀·外滩樾售楼处电话:400-8783-873【预约看房热线】越秀·外滩樾官方售楼处电话:400-8783-873【售楼处电话/地址】越秀·外滩樾售楼处电话:400-8783-873【开发商认证】

238户型

236户型

风貌之上世界堂前

建面约238㎡—338㎡海派院墅

三里外滩立传别墅

从你开启传承

虹口北外滩新封面【越秀外滩樾】

约238㎡-338㎡海派院墅,总价约4500万起,

样板间已经开放

越秀·外滩樾

越秀·外滩樾售楼处24小时电话:400-8783-873 首页网站最新介绍:房价、价格、折扣、规划、户型图、特价房、样板房、优缺点、得房率、车位比、折扣优惠、交通出行、周边配套、商业配套、销售中心位置、楼盘地址、户型介绍、营销中心电话、最新动态详情咨询

全部

相关资讯

报名成功
稍后会有专业的置业顾问联系您
返回楼盘

频道导航

返回首页

看房小程序

APP下载

电话拨通后,请您手动拨打分机号

确定拨打电话

电话号码:

分机号:(可能需要拨分机号)