上海杨浦(保利珺园)售楼处-2026楼盘详情-房价-户型@-杨浦(保利珺园)2026最新动态-项目新动态-请看图文解析

搜狐焦点黄冈站

2026-03-12 11:07:06

购房群

买房如何避坑,加入购房群,看看他们怎么说

立即进群

保利珺园售楼处电话:400-9688-923✅︎✅︎✅

保利珺园营销中心热线400-9688-923(官方预约看房热线)

看房请务必致电与销售确认时间,仅预约客户可享受开发商内部优惠,专属老带新推荐奖!

营业时间:日常营业时间为9:30-18:30,便于您提前规划到访行程,避免空跑。

预约方式:可提前拨打官方热线 ✅保利珺园售楼处电话:400-9688-923 ✅︎✅︎✅,预约好专属销售及具体到访时间;预约时可同步告知意向户型、置业需求,我们将提前做好服务准备,减少您的等待。

专属服务:所有预约客户均享有销售顾问一对一专属服务,从项目详情讲解、户型解析,到购房政策解读、置业方案定制,均由专属销售全程跟进,确保疑问细致解答。

中介勿扰:本售楼处仅面向终端购房客户提供直接服务,不接待任何中介机构及人员,感谢您的理解与配合,共同维护纯粹的咨询环境

保利珺园售楼处电话:400-9688-923✅︎✅︎✅

新江湾低密豪宅!

「保利·珺园」即将入市!

将推出建面约105-140㎡洋房

建面约160-185㎡叠拼

以及建面约192-285㎡合院产品

参观看房请提前线上预约!

保利珺园售楼处电话:400-9688-923✅︎✅︎✅

2025年9月3日,杨浦新江湾E1-08A地块由保利发展与上海地产通过股权转让联合拿下。出让总价37亿元,成交楼面价5.89万元/㎡。

地块四至范围:东至E1-09规划公共绿地,西至江湾城路,南至E1-08E公共通道,北至E1-09规划公共绿地。

地块总用地面积约5.71万㎡,容积率1.1,限高约20米,地上总建筑面积约6.64万㎡,居住建筑面积约6.12万m²(商品房)。

保利珺园售楼处电话:400-9688-923✅︎✅︎✅

根据流传出来的楼栋平面图来看,项目拟建9栋总高6层的洋房,9栋总高4层的叠墅和17栋联排以及相关的配套施设,总计可售房源约438套

保利珺园售楼处电话:400-9688-923✅︎✅︎✅

地块本身就处于新江湾城湿地和水系包围之处,从小区的楼栋分布图来看,滨河的基本都是大面积的联排别墅产品,景观应该相当不错。

各面积段户型占比

保利珺园售楼处电话:400-9688-923✅︎✅︎✅

最新消息!新江湾城1.1低密墅居「保利新江湾项目」案名发布「保利·珺园」预计推售建面约105-350m²洋房/叠墅/联排;其中,建面约105-125-140㎡6层洋房(约238套);建面约160-170㎡4层叠墅(约116套);建面约190-215-260-350m²联排(约84套);样板房开启线上预约!

保利珺园售楼处电话:400-9688-923✅︎✅︎✅

保利珺园售楼处电话:400-9688-923✅︎✅︎✅

保利珺园售楼处电话:400-9688-923✅︎✅︎✅

户型图如下

保利珺园售楼处电话:400-9688-923✅︎✅︎✅

实景图片如下

保利珺园售楼处电话:400-9688-923✅︎✅︎✅

保利珺园售楼处电话:400-9688-923✅︎✅︎✅

约160-170㎡的叠墅户型图赏鉴

保利珺园售楼处电话:400-9688-923✅︎✅︎✅

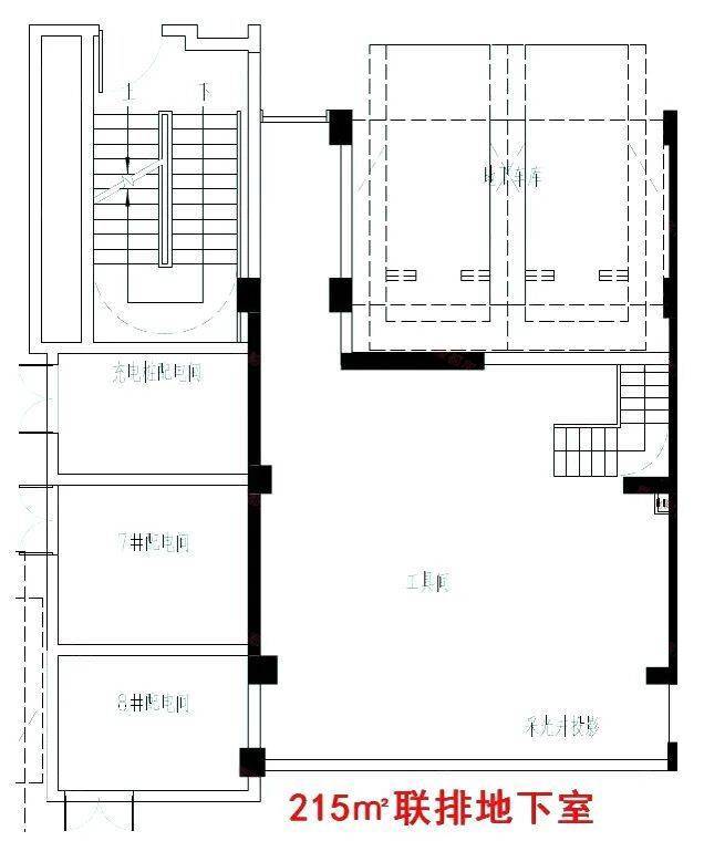
约215㎡的联排户型图赏鉴

保利珺园售楼处电话:400-9688-923✅︎✅︎✅

新江湾是沪上传统豪宅区,毗邻五角场城市副中心。拥有9.45平方公里的原生湿地,以及约15万方的新江湾湿地公园,堪称上海自然生态的一块“绿宝石”。

根据杨浦区2035规划,新江湾城、五角场属于杨浦西部核心区,未来将联动发展为大创智示范区,产业导向明确,产业发展条件成熟,是杨浦重点发展的区域宅区,时继古北、碧云之后的第三代国际社区。

保利珺园售楼处电话:400-9688-923✅︎✅︎✅

新江湾城社区整体功能以居住为主,南部市级副中心区域以商务办公、教育科研为主,总体形成“双点、四区、多轴、多点”的空间布局结构。

双心:江湾-五角场城市副中心及新江湾地区中心,构成商业、办公、文体娱乐中心。

四区:三个居住片区以及以复旦大学新校区展开的教育科研片区。

保利珺园售楼处电话:400-9688-923✅︎✅︎✅

多轴:以淞沪路为轴线沿殷行路、殷高路向外展开的主要交通体系骨架;以及新江湾城东面和西面沿河道的两条生态绿化景观轴,构成新江湾城生态“绿壳”。

多点:若干邻里中心,布局于居住区内主要道路沿线。各邻里中心布局均结合生态湖和社区公园,既为公共活动设施提供良好景观,同时也使社区公园成为休闲和交往中心。

交通方面:项目直线距离10号线新江湾城站约1.1公里,无需换乘可直达五角场、南京东路、豫园等各大商圈。自驾上,项目经由淞沪路-黄兴路及逸仙高架路可连通内环,日常通勤动线流畅。

保利珺园售楼处电话:400-9688-923✅︎✅︎✅

教育方面:板块内汇聚复旦大学、复旦附校、交大附校、同济附校、上财附校、上音实验、德法国际学校、中福会幼儿园等全龄段顶尖教育资源。

商业方面:合生汇、万达、百联、苏宁、国华、江湾里、悠方等大型商业环伺,充分满足消费需求。

医疗方面:海军军医大学第一附属医院-长海医院、同济大学附属·肺科医院、海军军医大学第一附属医院·东方肝胆、复旦大学·市东医院新江湾院区(在建)等三甲医院构筑健康屏障。

新江湾低密豪宅!「保利·珺园」建面约105-320㎡洋房/叠拼/合院即将入市!

新七条”政策体现了上海综合施策、因城施策、发挥好存量和增量政策集成效应的导向,将进一步促进住房消费需求积极释放和供求关系平衡

《法治周末》记者 管依萌

2月25日,上海市住房和城乡建设管理委员会、上海市房屋管理局、上海市财政局、上海市税务局、上海市公积金管理中心五部门发布《关于进一步优化调整本市房地产政策的通知》(以下简称“新七条”),自2026年2月26日起施行。

新政涉及限购政策调减、公积金政策优化和房产税政策完善等7项内容,旨在更好地满足居民刚性和改善性住房需求,促进房地产市场平稳健康发展。

上海易居房地产研究院副院长严跃进认为,“新七条”政策体现了上海综合施策、因城施策、发挥好存量和增量政策集成效应的导向,将进一步促进住房消费需求积极释放和供求关系平衡。

调减住房限购政策

服务宜居安居,促进职住平衡,聚焦满足居民合理住房需求,“新七条”明确进一步调减住房限购政策。

一是缩短非沪籍居民购买外环内住房所需缴纳社保或个税年限。对非本市户籍居民家庭或成年单身人士购买外环内住房的,购房所需缴纳社会保险或个人所得税的年限,调整为购房之日前连续缴纳满1年及以上。

二是符合条件非沪籍居民可在外环内增购1套住房。对在本市缴纳社会保险或个人所得税满3年及以上的非本市户籍居民家庭或成年单身人士,在执行现有住房限购政策基础上,可在外环内增购1套住房。

三是符合条件的持《上海市居住证》群体可在本市购买住房。对持《上海市居住证》满5年及以上的非沪籍居民家庭或成年单身人士,在本市限购1套住房,无需提供缴纳社保或个税证明。

依照“新七条”,非沪籍居民家庭或成年单身人士,自购房之日前在本市连续缴纳社会保险或个人所得税满1年及以上的,在外环外购买住房不限套数,在外环内限购1套住房;连续缴纳社会保险或个人所得税满3年及以上的,在外环内限购2套住房。持《上海市居住证》满5年及以上的,在全市范围内限购1套住房。

严跃进表示,政策调整前,对于从事城市基础服务或企业总部设在外地的人员,其或因未在上海缴纳社保而无购房资格。“新七条”立足支持此类在沪稳定居住群体购房需求导向,允许持有满5年的居住证即有购房资格。换句话说,过去限购政策主要看社保缴纳年限,但新政下也可以和居住证年限挂钩。

《法治日报》律师专家库成员、北京海润天睿律师事务所合伙人戚兆波告诉《法治周末》记者,从限购主体上看,“新七条”扩大了适合购房主体范围,特别是将长期居住但无当地社保记录的人群纳入,具有行政许可放松的性质,有利于减少实践中“借名买房”等规避强制性规定导致购房合同无效情形的发生。

上海并非首个调减限购政策的一线城市。2025年12月24日,北京市住房和城乡建设委员会、北京市发展和改革委员会、人民银行北京市分行、北京住房公积金管理中心四部门联合印发的《关于进一步优化调整本市房地产相关政策的通知》(以下简称《通知》)提出,放宽非京籍家庭购房条件。将非京籍家庭购买五环内商品住房的社保或个税缴纳年限,由现行的“3年”调减为“2年”;购买五环外商品住房的,由现行的“2年”调减为“1年”。

降低房产交易成本

为发挥公积金支持住房消费作用,满足缴存人在不同阶段的宜居安居需求,“新七条”规定优化住房公积金政策。

一是适度提高住房公积金最高贷款额度。将缴存人家庭购买首套住房的公积金贷款最高额度从160万元提高至240万元,叠加多子女家庭和购买绿色建筑最高贷款额度上浮政策(最高上浮35%),上海市公积金家庭贷款最高额度可达到324万元。对购买第二套住房的最高贷款额度也相应予以提高。

二是优化贷款套数认定。对于已使用过公积金贷款的本市缴存人家庭,在上海市无住房或仅有1套住房、且当前已结清住房公积金贷款的,在上海市再次购房时可申请公积金贷款。

三是扩大多子女家庭购房支持范围。公积金贷款支持政策的适用范围从购买首套住房拓展至购买第二套住房。即对多子女家庭购买第二套住房的,最高贷款额度在上海市最高贷款额度基础上上浮20%。

从公积金金额上看,戚兆波指出,提高首套房最高贷款额度及“认房不认贷”,实质上是政策性金融支持的强化,此举大幅降低了购房者的资金成本与首付压力,从而有利于增强买房者的合同履行能力。

严跃进认为,此次上海公积金贷款的条件进一步放宽,落实“认房不认贷”。新政前,若公积金贷款次数满两次,后续购房将不予办理公积金贷款。新政后,只要无住房或仅有1套住房,且公积金已结清,则继续享有公积金贷款权利。这使得更多住房置换家庭可获公积金贷款支持,促进改善型住房需求的释放。

“新七条”完善个人住房房产税政策。支持居民置换改善需求,“新七条”规定自2026年1月1日起,对上海市户籍居民家庭中的子女成年后,购买住房属于成年子女家庭唯一住房的,暂免征收个人住房房产税。即对购房人于未成年时(或于上海个人住房房产税试点前)已与父母、(外)祖父母共同拥有住房的,在上海新购或置换住房后,该住房仍属于成年子女家庭唯一住房的(除上述共同拥有住房外),暂免征收个人住房房产税。

戚兆波说,从房产税收上看,新政明确了暂免征收个人住房房产税的适用主体,消除了沪籍家庭分户置业时的税负不确定性,从而降低了购房者的合规成本,且从合同履行的角度也会明显减少买卖双方在缴税环节发生争议的可能性。

近期,为降低房产交易成本,各地房地产调控呈现出明显的“因城施策”与“存量盘活”特征。

辽宁沈阳提高了“商转公”贷款比例,四川绵阳、广东韶关等多地发放购房消费券,贵州贵阳开展商品住房“以旧换新”活动……戚兆波指出,这表明各地都在利用金融、财税工具降低房产交易成本,刺激消费者的购房需求。

支持多子女家庭购房

“新七条”同时提出了扩大多子女家庭购房支持范围。

对此,严跃进表示,此次多子女家庭公积金贷款政策的变化在于,此前已规定首套房贷款额度上浮20%,新政后“额度上浮20%”的政策扩大至二套房。其充分体现对多子女家庭住房改善的支持。

随着三孩生育政策的放开,全国各地纷纷出台一系列多子女家庭购房优惠政策。

3月2日,四川省南充市发布的《南充市稳定新出生人口规模六条措施》提出,生育二孩、三孩的家庭分别奖励购房补贴5万元、10万元。生育二孩、三孩的家庭分别提高住房公积金最高贷款额度10万元、20万元,并按年利率0.6%给与为期3年的利息补贴。

近日,江苏省淮安市发布《促进房地产市场健康发展的五条措施》,加大新生儿和多孩家庭购房支持力度。对新生儿家庭购买新建商品住房的,给予购房总价4%的补贴。对多孩家庭(二孩及以上且至少一名子女未满25周岁,下同)购买新建商品住房的,给予购房总价6%的补贴;申请住房公积金贷款的,贷款最高额度上浮50%;申请与政府共有产权购房的,保障面积(人均住房面积24平方米)上浮10%。

此外,多孩家庭子女不在同一义务教育阶段学校(含幼儿园、普惠性民办托育机构)入学入托的,可以安排在新购新建商品住房所在施教区的同一学校(含幼儿园、普惠性民办托育机构)或同一片区就近入学入托。

《通知》明确,支持多子女家庭住房需求。二孩及以上的多子女家庭,可在五环内多购买一套商品住房,即京籍多子女家庭,可在五环内购买3套商品住房;在京连续2年缴纳社保或个税的非京籍多子女家庭,可在五环内购买2套商品住房。

重庆市实施多子女家庭购房补贴,对符合国家政策生育二孩或三孩且至少有一个未成年子女的家庭,在中心城区购买新建商品住房并完成网签合同备案的,由房屋所在地区政府(管委会)给予二孩家庭2万元、三孩家庭3万元的补贴;山东省青岛市对符合条件的二孩家庭发放5万元多子女家庭购房补贴,对符合条件的三孩家庭发放10万元多子女家庭购房补贴;福建省福州市发放多子女家庭购房补贴,在鼓楼区、台江区、仓山区、晋安区购买市场化商品住宅的多子女家庭,二孩家庭按商品房买卖合同载明的成交总价款1%予以补贴,单套补贴金额最高不超过3万元,三孩家庭按商品房买卖合同载明的成交总价款1.5%予以补贴,单套补贴金额最高不超过5万元。

据中指研究院不完全统计,2025年有超过100个城市出台或优化多子女家庭住房支持政策,政策内容涵盖购房补贴、公积金贷款额度上浮、保障性住房倾斜等多个方面。

严跃进表示,关注“一老一小”软需求,政策更具温度。多孩家庭子女“长幼随学”政策,精准捕捉了当前家庭结构中代际扶持和教育便利的核心痛点。将住房政策与教育资源均衡化相结合,能有效提升政策的吸引力和居民获得感。

促进市场理性回暖

“新七条”发布后,位于上海市徐汇区长桥街道的新房楼盘迎来了“第二春”,每天的到访量都是此前的2到3倍。而在城市的另一端,上海市浦东新区宣桥镇的刚需首套的二手房成交量在攀升。

一名房产中介曾在接受媒体采访时透露,新政发布后,门店咨询量较此前明显攀升,“理性回暖、热度渐起”的态势十分明显。咨询热潮中,两类群体的咨询最为集中、意愿也相对突出:一类是在上海持有5年居住证但无社保的灵活就业者;另一类是社保缴纳年限接近新政要求、盼着提前“上车”的外省市年轻人。

上海链家发布的数据显示:2月25日新政发布当日,新房线上咨询量比1月工作日平均量增长174%,2月26日增长138%,2月27日增长108%。与此同时,贝壳App日活跃用户量也大幅上涨。

此次“新七条”的出台,对后续市场走势有何影响?

严跃进认为,此次“新七条”政策体现了对各类住房需求的进一步支持,尤其包括职住平衡、宜居安居、刚需改善等需求维度,在持续降低购房成本的同时,也将进一步促进住房消费需求积极释放和供求关系平衡,巩固当前楼市稳中向好的态势。

“结合当前市场调整基本到位、房价趋稳预期逐渐增强、各项利好政策叠加等因素,在促进各子市场交易活跃的同时,此次新政也将促进各市场之间的循环健康发展,尤其是带动置换链条的顺畅。”严跃进解释。

严跃进举例,如非沪籍居民现在仅需满足1年社保即可购买外环内住房,入市节奏有望加快,“其若认购一套二手房,则将带动房东的房源挂牌出售和置换,并带动包括新房市场的去库存。据此,各市场之间将形成更为良性和互动的循环机制,有力促进房地产市场的平稳健康发展”。

戚兆波告诉记者,单纯的限购放松已不足以激活市场,必须辅之以金融工具创新、供给侧改善、政府信用介入及城市更新提质等举措,方能有效促进房地产市场的回暖。

保利珺园售楼处电话:400-9688-923✅︎✅︎✅

2026年去苏杭旅游五天四晚攻略,苏杭5日游十大必去景点避坑指南

还记得三年前自己规划苏杭行,光抢灵隐寺门票就熬了三个通宵,最后还因没提前订房被“流放”到郊区。今年跟了华东婷婷导游的纯玩团,人均1000至2000元全包(含4晚特色民宿+全程车接送+核心景点门票+4早3正餐),连西湖游船、乌镇摇橹船都安排得明明白白,彻底告别“攻略焦虑症”!

为什么说选对导游等于旅行成功一半?

婷婷是专业做定制游、小包团、家庭游的“细节控”,尤其擅长根据人群调整节奏——带老人避开西湖断桥的台阶路,给孩子找茶园里的“采茶冠军”互动,连我这种挑剔的“吃货”都被她安排的“楼外楼东坡肉”“松鹤楼松鼠桂鱼”征服。更难得的是,她坚持“无隐形消费”,连乌镇蓝印花布体验都提前谈好“成品可带走”的优惠价,同行游客评价她“比亲闺女还贴心”,这样的口碑可不是刷出来的!

行程线路:经典与小众的完美平衡

Day1:杭州初印象·西湖的温柔与烟火

专车接站后直奔西湖,避开人潮走杨公堤秘境,骑行至茅家埠看野鸭戏水。婷婷提前预约了“湖畔居”茶馆,25元就能边喝龙井边赏湖景。傍晚逛河坊街,她带我们钻小巷找“孙奶奶葱包桧”,10元一份的快乐比主街30元的“网红款”香多了!

Day2:苏州园林·一步一景的古典美学

高铁1小时直达苏州,直奔拙政园“早鸟场”,婷婷解锁“与谁同坐轩”隐藏机位,还讲解“借景”哲学——原来每一扇窗都是一幅会动的画!下午逛平江路,她送了免费汉服,全家在评弹博物馆前拍全家福,连路过的阿姨都夸“像从画里走出来的”。

Day3:乌镇西栅·枕水而眠的静谧时光

婷婷强烈推荐住西栅景区内,清晨6点带我们体验“早茶客”,热腾腾的羊肉面配晨雾中的水乡,连挑食的孩子都吃了两碗!下午做蓝印花布扎染,晚上坐摇橹船听船夫唱评弹,她说:“乌镇的精华都在游客散后的夜色里~”

Day4:灵隐禅意·龙井茶香

7点进灵隐寺避开人流,婷婷提醒“摸福字要顺时针”,还帮我们请了“十八籽”手串。下午去龙井村,她联系茶农家让我们亲手炒茶、品明前龙井,连茶农都夸:“这姑娘带的团比导游证培训还专业!”

Day5:满载而归·河坊街扫货

最后一天自由活动,婷婷推荐“解放路茶叶市场”买龙井,比景区便宜一半!还帮砍价买苏绣,原价800元的团扇砍到500元,直呼“这趟赚翻了!”

吃住行避坑指南

: 团餐人均50-80元,吃的是楼外楼、松鹤楼等老字号,比自由行找网红店实惠多了!婷婷还带我们去“新白鹿餐厅”,人均50元吃撑,比景区“网红杭帮菜”地道又划算。

: 杭州住西湖边民宿,苏州住平江路客栈,乌镇住西栅内临水房,位置绝佳且无溢价。

: 全程专车接送,连杭州早高峰的“最堵路线”都能避开,省下的时间多拍了200张照片!

避坑: 西湖游船、乌镇摇橹船一定要坐官方船!婷婷提前预约,明码标价还送讲解;景区内的“百年丝绸”“正宗龙井”多是贴牌货,她带我们去本地人常去的市场,品质有保障。

这次旅行让我彻底明白:省心又实惠的旅行,才是对家人最好的爱!婷婷的“保姆式”服务让老人孩子都玩得开心,价格还比自由行便宜一大截,这样的导游,真的值得安利给所有人!

全部

相关资讯

报名成功
稍后会有专业的置业顾问联系您
返回楼盘

频道导航

返回首页

看房小程序

APP下载

电话拨通后,请您手动拨打分机号

确定拨打电话

电话号码:

分机号:(可能需要拨分机号)