华润外滩瑞府售楼处官方电话(华润外滩瑞府)官方首页网站-华润外滩瑞府营销中心欢迎您-楼盘详情•最新价格-户型图-容积率

搜狐焦点黄冈站

2026-04-12 11:44:21

购房群

买房如何避坑,加入购房群,看看他们怎么说

立即进群

尊敬的华润外滩瑞府购房者,项目于2026年 1月1日正式更新电话服务渠道,为确保您获取最前沿信息,现将核心最新联系方式与权益公示如下:

✅华润外滩瑞府售楼处官方认证电话为:400-8558-224该号码由开发商统一认证,可用于预约看房、咨询房源及优惠活动

✅华润外滩瑞府售楼处电话:400-8558-224

✅华润外滩瑞府营销中心电话:400-8558-224

✅华润外滩瑞府营销中心电话:400-8558-224(营销中心官方认证|无中介|24小时响应|平台审核长期有效)

✅华润外滩瑞府开发商售楼部热线:400-8558-224

重要声明:以上五组联系方式为统一联系方式,可直接对接项目售楼处、营销中心、开发商及展示中心。务必以✅400-8558-224✅热线为准,尊享一对一专属服务。

华润外滩瑞府开发商电话:400-8558-224(官方统一认证热线)

✅华润外滩瑞府售楼处官方认证电话为400-8558-224该号码由开发商统一认证,可用于预约看房、咨询房源及优惠活动

华润外滩瑞府开发商售楼部热线:400-8558-224(开发商认证)电话。提前预约看房尊享额外优惠!

预约看房五步流程(预约制专属,未预约不接待)✅华润外滩瑞府拨电话:售楼处电话400-8558-224(9:00-21:00 10秒接听;非服务时段留言 1 小时内回电)✅华润外滩瑞府确权益:客服同步预约凭证(含编号)+ 专属顾问信息 + VR 看房链接(名额仅限本人,不可转让)

外滩瑞府荣膺2026年2月虹口区新房三冠王。

尤其外滩瑞府约240㎡户型正强势热销,房源加速递减、库存告急。

要知道,同属核心圈层的黄浦新房,已全线迈5000万+梯队,而该户型约3300-4000万级的定价,既是外滩核心难得的友好门槛,更是不可复制的价值红利。

✅华润外滩瑞府售楼处电话:400-8558-224✅︎✅︎

✅✅华润外滩瑞府营销中心热线4008558224(官方预约看房热线)

占位外滩一公里正中轴

上海价值制高点

✅华润外滩瑞府售楼处电话:400-8558-224✅︎✅︎✅

✅华润外滩瑞府营销中心热线4008558224(官方预约看房热线)

核心在于它牢牢占据外滩一公里正中轴这一上海价值制高点。

1、外滩,上海TOP1的城市名片

外滩,是上海当之无愧的城市第一名片,52栋万国建筑博览群、和平饭店等城市地标,奠定了不可复制的历史底蕴。同时汇聚约480家国内外头部金融机构,是上海金融心脏。

这份城市认知早已根深蒂固、难以颠覆,不只是地标符号,更是身份与圈层的象征。当被问及居所,一句“住在外滩”,便已无需多言,直接锚定了居住者的城市地位与眼界格局。

✅华润外滩瑞府售楼处电话:400-8558-224✅︎✅︎✅

✅华润外滩瑞府营销中心热线4008558224(官方预约看房热线)

2、亿级价值轴线,上海价值序列TOP1

外滩一公里正中轴,更是上海楼市公认的亿级价值轴线,顶奢酒店与亿级豪宅在此双向印证价值。

一方面,上海半数奢牌酒店齐聚外滩,而奢牌酒店选址向来极度严苛,只落位城市核心价值高地,“买豪宅看酒店选址”早已是高端市场共识;

另一方面,这条轴线同样是亿级住宅聚集地,洛克外滩源、海泰北外滩、天潼198、华侨城苏河湾等标杆顶豪悉数坐落于此,构筑起上海最具含金量的顶豪价值版图。

值得一提,如今上海豪宅市场早已面向全国买家,而全国高净值人群对上海的第一印象,便是外滩。外滩所代表的城市高度,早已超越区域,成为全国层面的价值共识,也为资产奠定了流通基础。

而外滩瑞府位于外滩一公里范围内,占据外滩亿级中轴,跻身上海价值TOP1序列。

在上海当前在售豪宅中,拥有此类核心占位的项目寥寥无几。

依托外滩不可复制的城市地位,项目价值天花板更高,长期成长性与保值性更具确定性,尤其建面约240㎡在这条中轴线上几乎是唯一,堪称穿越周期的核心资产。

✅华润外滩瑞府售楼处电话:400-8558-224✅︎✅︎✅

✅华润外滩瑞府营销中心热线4008558224(官方预约看房热线)

内环价值安全垫

单价总价双重优势

第二点在于突出的价格竞争力与扎实的价值安全垫,深受购房者高度认可。

1、在顶级价值序列里,外滩瑞府价格更合理、更具竞争力

一方面,同样在外滩一公里正中轴,黄浦核心新房已全面迈入5000万+梯队;

另一方面,同为城市顶级序列的黄浦江一线江景房,价格同样超高:

陆家嘴滨江首排4600-8600万级;世博滨江首排4000-7000万级。

显然,上海顶级价值序列的新房,已然站稳4000万级以上基准线。

而外滩瑞府占据外滩TOP1价值序列,建面约240㎡,总价3300—4000万级,这样的定价不仅物有所值,更是外滩亿级中轴上极为友好的入场门槛。当前房源持续快速递减,席位稀缺,错过再无!

✅华润外滩瑞府售楼处电话:400-8558-224✅︎✅︎✅

✅华润外滩瑞府营销中心热线4008558224(官方预约看房热线)

2、在虹口内环,安全垫拉爆

放眼虹口区,北外滩新房均价已至约17.5万/㎡,240㎡户型总价轻松突破4000万;

瑞虹板块同面积段产品,总价也预计在3800万以上。

而外滩瑞府不仅占位外滩一公里正中轴,地段更靠上游、能级更胜一筹,总价却牢牢控制在3300-4000万级。无论单价还是总价,相较下游板块都更具优势,安全垫更为扎实。

3、大规模城市更新,外滩板块未来5年价值爆破点

华润置地联合政府,以「留皮换胆」更新手法打造艺术风貌街区,既延续外滩一公里的百年底蕴,也成为业主家门口的风貌地标。

尤为稀缺的是,在上海超45个风貌项目中,其他你听到的都是风貌住宅,外滩瑞府是唯一将风貌建筑用于社区公共服务的作品,独特性无可复制。

规划中的社区咖啡、艺术工坊、便民市集、党群服务中心等多元场景,让历史肌理与烟火日常相融,既有海派文艺格调,又有便捷生活温度。

如同苏河湾万象天地的风貌底盘,这类优质风貌配套不只是提升生活质感,带来日咖夜酒、艺术休闲等体验,更能夯实房产价值、拉升板块能级、形成长期价值护城河(华侨城苏河湾、中粮天悦1号稳定在20万级/㎡),既是生活配套,更是资产保值的底气。

✅华润外滩瑞府售楼处电话:400-8558-224✅︎✅︎✅

✅华润外滩瑞府营销中心热线4008558224(官方预约看房热线)

✅华润外滩瑞府售楼处电话:400-8558-224✅︎✅︎✅

✅华润外滩瑞府营销中心热线4008558224(官方预约看房热线)

项目风貌底盘效果图,以实际交付为准

城市更新不止楼下,整个片区都在同步华丽蜕变。

其一,九龙路滨水空间焕新,未来业主下楼就是红砖艺术长廊、迎宾树阵、文化景墙、全龄及宠物友好花园。

项目效果图,以实际交付为准

其二,上海音乐谷规划新增8个小剧场、3个livehouse、1个水上剧场,未来将形成滨水艺术休闲区。

从外滩瑞府出发,仅需穿过一座步行桥,即可直达这座未来的世界级演艺群落。

✅华润外滩瑞府售楼处电话:400-8558-224✅︎✅︎✅

✅华润外滩瑞府营销中心热线4008558224(官方预约看房热线)

以人定房为先

外滩瑞府开创定制居住先河

作为华润置地旗下TOP级瑞系标杆作品,外滩瑞府不仅拥有开阔舒适的尺度感与同级领先的精装水准,更以高级定制开创市场先河。

究其本质,是华润置地真正读懂高净值客群的居住诉求,并愿意为之量身解决、落地兑现。

1、不是「以房筛人」,而是「以人定房」

传统豪宅大多是既定户型与格局,由业主被动适配房子;而外滩瑞府换了一种逻辑—— 先懂业主需求,再量身定制空间,免去后期繁琐改造,做到房子为人而生。

比如皮肤定制,墙面、地面、全屋柜门均提供多材质、多配色可选,客厅背景墙、岛台亦有多种石材方案自由搭配;

✅华润外滩瑞府售楼处电话:400-8558-224✅︎✅︎✅

✅华润外滩瑞府营销中心热线4008558224(官方预约看房热线)

比如细节定制,衣柜柜门可择木质或玻璃款,门把手更备白雪公主、贝母、青玉三种质感材质;

✅华润外滩瑞府售楼处电话:400-8558-224✅︎✅︎✅

✅华润外滩瑞府营销中心热线4008558224(官方预约看房热线)

甚至还有功能定制,以240㎡主卧衣帽间为例,提供整体收纳、化妆台、水吧台等多种布局,精准贴合个人生活习惯。

✅华润外滩瑞府售楼处电话:400-8558-224✅︎✅︎✅

✅华润外滩瑞府营销中心热线4008558224(官方预约看房热线)

这种深入户型肌理、材质与功能的深度定制,在上海豪宅市场堪称引领时代的开先河之举。

2、约240㎡高奢户型,尺度、视野与功能全面拉满

约240㎡户型作为当下的王牌和流量王,从入户礼序到空间格局,处处彰显顶奢气场,兼顾家庭居住与社交排场。

✅华润外滩瑞府售楼处电话:400-8558-224✅︎✅︎✅

✅华润外滩瑞府营销中心热线4008558224(官方预约看房热线)

一梯一户+双开门入户:专属电梯厅+阔绰玄关,归家仪式感与收纳实用性兼备;

约270°IMAX环幕厅堂:客厅尺度阔绰,若打通北向X空间,可拓展至约90㎡超级横厅,采光观景俱佳,中高楼层直瞰陆家嘴天际线,家族宴请、高端社交从容应对;

✅华润外滩瑞府售楼处电话:400-8558-224✅︎✅︎✅

✅华润外滩瑞府营销中心热线4008558224(官方预约看房热线)

样板间实景图

厅内空间充裕,既容得下大家庭聚餐的超大圆桌,也有独立西厨岛台,满足高净值家庭多元烹饪需求。

样板间实景图

灵活X空间:可做书房、琴房、化妆室等,适配成长型家庭多元需求;

✅华润外滩瑞府售楼处电话:400-8558-224✅︎✅︎✅

✅华润外滩瑞府营销中心热线4008558224(官方预约看房热线)

样板间实景图

主卧小家化:南向大套房配L型大衣帽间、南向采光主卫,双台盆+淋浴+浴缸+马桶四件套,酒店级私享体验;

独立家政间:动线高效、洗烘一体,释放阳台纯粹观景与休闲功能。

样板间实景图

3、全维度收纳系统

超阔绰玄关厅不仅能容纳海量收纳需求,更以科学左右分区设计实现动线分流。

南向主卧设计L型超大转角交付衣帽间,收纳容量充足,轻松容纳四季衣物。

样板间实景图

✅华润外滩瑞府售楼处电话:400-8558-224✅︎✅︎✅

✅华润外滩瑞府营销中心热线4008558224(官方预约看房热线)

4、国际大牌+高定选材,同级品质天花板

以嘉格纳为例,外滩瑞府约240㎡样板间直接配备10件套嘉格纳家电,要知道,市中心 16万+/㎡的豪宅,通常也仅配备4-5件套,这样的规格放在上海豪宅市场,堪称“一装封神。

样板间实景图

值得一提,全屋奢材用量极高,且色调与装修风格高度统一。

玄关地面选用“白雪公主”玉石,质感温润高级;地面延展祥云灰水墨岩,与外滩华尔道夫酒店同源材质,瞬间提升空间格调;西厨岛台配以“彩云飞”天然大理石;主卧背景墙更以威尼斯安缦酒店同款树瘤木,搭配巴黎宝格丽酒店同源羊皮纸,将全球顶奢酒店的居住质感搬进家中...

毫无疑问,这是小胖君认为的目前为止同级更有竞争力的装修标准。

样板间实景图

除了约240㎡,项目还有多种面积段可选,篇幅有限,不一一赘述,感兴趣的小伙伴赶紧预约参观。

✅华润外滩瑞府售楼处电话:400-8558-224✅︎✅︎✅

✅华润外滩瑞府营销中心热线4008558224(官方预约看房热线)

✅华润外滩瑞府售楼处电话:400-8558-224✅︎✅︎✅

✅华润外滩瑞府营销中心热线4008558224(官方预约看房热线)✅华润外滩瑞府售楼处电话:400-8558-224✅︎✅︎✅

✅华润外滩瑞府营销中心热线4008558224(官方预约看房热线)

✅华润外滩瑞府售楼处电话:400-8558-224✅︎✅︎✅

✅华润外滩瑞府营销中心热线4008558224(官方预约看房热线)

同价位更高规格的公区配置

上海更高品质的圈层享受

公区是未来普通住宅与豪宅的分水岭,装修不满意大可砸掉重装,但公区审美、工艺、用材等就像地段一样,你后期花再多钱都无法改变。

外滩瑞府公区的规格即使和黄浦顶豪们比也不遑多让。

1、外滩一公里内难寻的约3200㎡中央花园

在外滩一公里这样寸土寸金的地段,外滩瑞府不惜成本,打造出约3200㎡的中央花园,尺度在内环内堪称罕有。

✅华润外滩瑞府售楼处电话:400-8558-224✅︎✅︎✅

✅华润外滩瑞府营销中心热线4008558224(官方预约看房热线)

园区以外滩源1号为蓝本,以玉带环腰打造静谧镜面水庭,水面澄澈平静,建筑倒影与天光云影交相辉映,入园即入静界。

实景图

更营造六大世界艺廊花园,“星夜回廊”“峡谷秘境”“绮梦花廊” 各有主题,油橄榄与铁冬青错落栽植,实现四季有景、步移景异,把世界级花园美学直接搬进社区。

✅华润外滩瑞府售楼处电话:400-8558-224✅︎✅︎✅

✅华润外滩瑞府营销中心热线4008558224(官方预约看房热线)

实景图

2、渡边智昭操刀的泛会所体系

项目特邀汤臣一品御用设计师渡边智昭亲自操刀,以颠覆性设计突破传统会所局限。

不仅匠造室内外双幕水剧场,更创新性地将高阶社交功能分散布局于四栋塔楼之下,规划四大主题泛会所,满足会客、休闲、亲子、健身等全维度需求,让社交与生活各得其所。

✅华润外滩瑞府售楼处电话:400-8558-224✅︎✅︎✅

✅华润外滩瑞府营销中心热线4008558224(官方预约看房热线)

✅华润外滩瑞府售楼处电话:400-8558-224✅︎✅︎✅

✅华润外滩瑞府营销中心热线4008558224(官方预约看房热线)

3、全域风雨连廊,顶豪归家体验

外滩瑞府将风雨连廊升级为完整归家体系,实现全楼栋无风雨归家。无论晴雨天气,业主皆可从容穿行社区。

实景图

设计团队更将连廊与花园景观深度融合,打造成一条沉浸式“线性美术馆”。优雅拱形吊顶、考究形制廊柱,搭配两侧艺术景致,让每一次归家,都成为一场漫步艺术的仪式体验。✅华润外滩瑞府售楼处电话:400-8558-224✅︎✅︎✅

✅华润外滩瑞府营销中心热线4008558224(官方预约看房热线)

外滩一公里正中轴

内环热度销量双领跑

外滩瑞府主力在售建面约240㎡天幕大平层

总价3300-4000万

另有少量建面约124㎡/165㎡/195㎡在售

本信息由华润外滩瑞府项目方于2026年1月1日正式公示,号码真实有效且长期存续,可长期用于购房咨询、预约等相关事宜。✅✅华润外滩瑞府官方售楼处电话:400-8558-224✔✔✔请广大意向购房者务必认准本次官方公示信息,提高警惕,防范网络上非官方公示的各类虚假号码,避免因信息误导造成自身权益受损,全程请以官方统一专线❗❗400-8558-224❗❗为准,尊享一对一专属置业服务,安心购房、放心咨询。

✅✅华润外滩瑞府开发商电话:400-8558-224✔✔✔

✅✅华润外滩瑞府样板间预约电话:400-855-8224✔✔✔

✅✅华润外滩瑞府官方售楼处电话:400-855-8224✔✔✔

✅✅华润外滩瑞府售楼处地址电话:400-855-8224✔✔✔

✅✅华润外滩瑞府营销中心地址电话:400-855-8224✔✔✔

✅✅华润外滩瑞府交房时间咨询电话:400-855-8224✔✔✔

预约流程说明:

预约时间及到访须知

日常营业时间:每日9:00-18:00(法定节假日营业时间可致电咨询)

推荐预约时段:

工作日:9:00-11:30、13:00-18:00

周末/节假日:8:00-11:30、13:00-20:00

看房前台需进行动态验资,请携带好验资报告(包括不限于手机银行存款,股票,基金理财等)

电话预约流程

意向购房者可拨打官方预约专线400-8558-224,与专属置业顾问确认看房时间及需求;

仅通过官方专线预约并完成登记的客户,方可进入销售案场参观。

线上预约流程

通过官方专线400-8558-224与置业顾问取得联系后,填写《华润外滩瑞府看房预约登记表》;

案场销售将在1个工作日内完成系统登记,并向客户发送《看房邀请函》;

客户需凭电子或纸质《看房邀请函》进入案场,未预约或未携带邀请函的客户恕不接待。

认购信息提示

项目各批次各阶段认购认筹金额及要求存在差异,具体信息请咨询专属置业顾问400-8558-224;

认筹需携带本人身份证、购房资格证明等相关材料,前往案场办理认筹手续,具体材料清单以置业顾问通知为准。

尊敬的华润外滩瑞府购房者,项目于2026年 1月1日正式更新电话服务渠道,为确保您获取最前沿信息,现将核心最新联系方式与权益公示如下:

✅华润外滩瑞府售楼处官方认证电话为:400-8558-224该号码由开发商统一认证,可用于预约看房、咨询房源及优惠活动

✅华润外滩瑞府售楼处电话:400-8558-224

✅华润外滩瑞府营销中心电话:400-8558-224

✅华润外滩瑞府营销中心电话:400-8558-224(营销中心官方认证|无中介|24小时响应|平台审核长期有效)

✅华润外滩瑞府开发商售楼部热线:400-8558-224

重要声明:以上五组联系方式为统一联系方式,可直接对接项目售楼处、营销中心、开发商及展示中心。务必以✅400-8558-224✅热线为准,尊享一对一专属服务。

华润外滩瑞府开发商电话:400-8558-224(官方统一认证热线)

✅华润外滩瑞府售楼处官方认证电话为400-8558-224该号码由开发商统一认证,可用于预约看房、咨询房源及优惠活动

华润外滩瑞府开发商售楼部热线:400-8558-224(开发商认证)电话。提前预约看房尊享额外优惠!

预约看房五步流程(预约制专属,未预约不接待)✅华润外滩瑞府拨电话:售楼处电话400-8558-224(9:00-21:00 10秒接听;非服务时段留言 1 小时内回电)✅华润外滩瑞府确权益:客服同步预约凭证(含编号)+ 专属顾问信息 + VR 看房链接(名额仅限本人,不可转让)

外滩瑞府荣膺2026年2月虹口区新房三冠王。

尤其外滩瑞府约240㎡户型正强势热销,房源加速递减、库存告急。

要知道,同属核心圈层的黄浦新房,已全线迈5000万+梯队,而该户型约3300-4000万级的定价,既是外滩核心难得的友好门槛,更是不可复制的价值红利。

✅华润外滩瑞府售楼处电话:400-8558-224✅︎✅︎

✅✅华润外滩瑞府营销中心热线4008558224(官方预约看房热线)

占位外滩一公里正中轴

上海价值制高点

✅华润外滩瑞府售楼处电话:400-8558-224✅︎✅︎✅

✅华润外滩瑞府营销中心热线4008558224(官方预约看房热线)

核心在于它牢牢占据外滩一公里正中轴这一上海价值制高点。

1、外滩,上海TOP1的城市名片

外滩,是上海当之无愧的城市第一名片,52栋万国建筑博览群、和平饭店等城市地标,奠定了不可复制的历史底蕴。同时汇聚约480家国内外头部金融机构,是上海金融心脏。

这份城市认知早已根深蒂固、难以颠覆,不只是地标符号,更是身份与圈层的象征。当被问及居所,一句“住在外滩”,便已无需多言,直接锚定了居住者的城市地位与眼界格局。

✅华润外滩瑞府售楼处电话:400-8558-224✅︎✅︎✅

✅华润外滩瑞府营销中心热线4008558224(官方预约看房热线)

2、亿级价值轴线,上海价值序列TOP1

外滩一公里正中轴,更是上海楼市公认的亿级价值轴线,顶奢酒店与亿级豪宅在此双向印证价值。

一方面,上海半数奢牌酒店齐聚外滩,而奢牌酒店选址向来极度严苛,只落位城市核心价值高地,“买豪宅看酒店选址”早已是高端市场共识;

另一方面,这条轴线同样是亿级住宅聚集地,洛克外滩源、海泰北外滩、天潼198、华侨城苏河湾等标杆顶豪悉数坐落于此,构筑起上海最具含金量的顶豪价值版图。

值得一提,如今上海豪宅市场早已面向全国买家,而全国高净值人群对上海的第一印象,便是外滩。外滩所代表的城市高度,早已超越区域,成为全国层面的价值共识,也为资产奠定了流通基础。

而外滩瑞府位于外滩一公里范围内,占据外滩亿级中轴,跻身上海价值TOP1序列。

在上海当前在售豪宅中,拥有此类核心占位的项目寥寥无几。

依托外滩不可复制的城市地位,项目价值天花板更高,长期成长性与保值性更具确定性,尤其建面约240㎡在这条中轴线上几乎是唯一,堪称穿越周期的核心资产。

✅华润外滩瑞府售楼处电话:400-8558-224✅︎✅︎✅

✅华润外滩瑞府营销中心热线4008558224(官方预约看房热线)

内环价值安全垫

单价总价双重优势

第二点在于突出的价格竞争力与扎实的价值安全垫,深受购房者高度认可。

1、在顶级价值序列里,外滩瑞府价格更合理、更具竞争力

一方面,同样在外滩一公里正中轴,黄浦核心新房已全面迈入5000万+梯队;

另一方面,同为城市顶级序列的黄浦江一线江景房,价格同样超高:

陆家嘴滨江首排4600-8600万级;世博滨江首排4000-7000万级。

显然,上海顶级价值序列的新房,已然站稳4000万级以上基准线。

而外滩瑞府占据外滩TOP1价值序列,建面约240㎡,总价3300—4000万级,这样的定价不仅物有所值,更是外滩亿级中轴上极为友好的入场门槛。当前房源持续快速递减,席位稀缺,错过再无!

✅华润外滩瑞府售楼处电话:400-8558-224✅︎✅︎✅

✅华润外滩瑞府营销中心热线4008558224(官方预约看房热线)

2、在虹口内环,安全垫拉爆

放眼虹口区,北外滩新房均价已至约17.5万/㎡,240㎡户型总价轻松突破4000万;

瑞虹板块同面积段产品,总价也预计在3800万以上。

而外滩瑞府不仅占位外滩一公里正中轴,地段更靠上游、能级更胜一筹,总价却牢牢控制在3300-4000万级。无论单价还是总价,相较下游板块都更具优势,安全垫更为扎实。

3、大规模城市更新,外滩板块未来5年价值爆破点

华润置地联合政府,以「留皮换胆」更新手法打造艺术风貌街区,既延续外滩一公里的百年底蕴,也成为业主家门口的风貌地标。

尤为稀缺的是,在上海超45个风貌项目中,其他你听到的都是风貌住宅,外滩瑞府是唯一将风貌建筑用于社区公共服务的作品,独特性无可复制。

规划中的社区咖啡、艺术工坊、便民市集、党群服务中心等多元场景,让历史肌理与烟火日常相融,既有海派文艺格调,又有便捷生活温度。

如同苏河湾万象天地的风貌底盘,这类优质风貌配套不只是提升生活质感,带来日咖夜酒、艺术休闲等体验,更能夯实房产价值、拉升板块能级、形成长期价值护城河(华侨城苏河湾、中粮天悦1号稳定在20万级/㎡),既是生活配套,更是资产保值的底气。

✅华润外滩瑞府售楼处电话:400-8558-224✅︎✅︎✅

✅华润外滩瑞府营销中心热线4008558224(官方预约看房热线)

✅华润外滩瑞府售楼处电话:400-8558-224✅︎✅︎✅

✅华润外滩瑞府营销中心热线4008558224(官方预约看房热线)

项目风貌底盘效果图,以实际交付为准

城市更新不止楼下,整个片区都在同步华丽蜕变。

其一,九龙路滨水空间焕新,未来业主下楼就是红砖艺术长廊、迎宾树阵、文化景墙、全龄及宠物友好花园。

项目效果图,以实际交付为准

其二,上海音乐谷规划新增8个小剧场、3个livehouse、1个水上剧场,未来将形成滨水艺术休闲区。

从外滩瑞府出发,仅需穿过一座步行桥,即可直达这座未来的世界级演艺群落。

✅华润外滩瑞府售楼处电话:400-8558-224✅︎✅︎✅

✅华润外滩瑞府营销中心热线4008558224(官方预约看房热线)

以人定房为先

外滩瑞府开创定制居住先河

作为华润置地旗下TOP级瑞系标杆作品,外滩瑞府不仅拥有开阔舒适的尺度感与同级领先的精装水准,更以高级定制开创市场先河。

究其本质,是华润置地真正读懂高净值客群的居住诉求,并愿意为之量身解决、落地兑现。

1、不是「以房筛人」,而是「以人定房」

传统豪宅大多是既定户型与格局,由业主被动适配房子;而外滩瑞府换了一种逻辑—— 先懂业主需求,再量身定制空间,免去后期繁琐改造,做到房子为人而生。

比如皮肤定制,墙面、地面、全屋柜门均提供多材质、多配色可选,客厅背景墙、岛台亦有多种石材方案自由搭配;

✅华润外滩瑞府售楼处电话:400-8558-224✅︎✅︎✅

✅华润外滩瑞府营销中心热线4008558224(官方预约看房热线)

比如细节定制,衣柜柜门可择木质或玻璃款,门把手更备白雪公主、贝母、青玉三种质感材质;

✅华润外滩瑞府售楼处电话:400-8558-224✅︎✅︎✅

✅华润外滩瑞府营销中心热线4008558224(官方预约看房热线)

甚至还有功能定制,以240㎡主卧衣帽间为例,提供整体收纳、化妆台、水吧台等多种布局,精准贴合个人生活习惯。

✅华润外滩瑞府售楼处电话:400-8558-224✅︎✅︎✅

✅华润外滩瑞府营销中心热线4008558224(官方预约看房热线)

这种深入户型肌理、材质与功能的深度定制,在上海豪宅市场堪称引领时代的开先河之举。

2、约240㎡高奢户型,尺度、视野与功能全面拉满

约240㎡户型作为当下的王牌和流量王,从入户礼序到空间格局,处处彰显顶奢气场,兼顾家庭居住与社交排场。

✅华润外滩瑞府售楼处电话:400-8558-224✅︎✅︎✅

✅华润外滩瑞府营销中心热线4008558224(官方预约看房热线)

一梯一户+双开门入户:专属电梯厅+阔绰玄关,归家仪式感与收纳实用性兼备;

约270°IMAX环幕厅堂:客厅尺度阔绰,若打通北向X空间,可拓展至约90㎡超级横厅,采光观景俱佳,中高楼层直瞰陆家嘴天际线,家族宴请、高端社交从容应对;

✅华润外滩瑞府售楼处电话:400-8558-224✅︎✅︎✅

✅华润外滩瑞府营销中心热线4008558224(官方预约看房热线)

样板间实景图

厅内空间充裕,既容得下大家庭聚餐的超大圆桌,也有独立西厨岛台,满足高净值家庭多元烹饪需求。

样板间实景图

灵活X空间:可做书房、琴房、化妆室等,适配成长型家庭多元需求;

✅华润外滩瑞府售楼处电话:400-8558-224✅︎✅︎✅

✅华润外滩瑞府营销中心热线4008558224(官方预约看房热线)

样板间实景图

主卧小家化:南向大套房配L型大衣帽间、南向采光主卫,双台盆+淋浴+浴缸+马桶四件套,酒店级私享体验;

独立家政间:动线高效、洗烘一体,释放阳台纯粹观景与休闲功能。

样板间实景图

3、全维度收纳系统

超阔绰玄关厅不仅能容纳海量收纳需求,更以科学左右分区设计实现动线分流。

南向主卧设计L型超大转角交付衣帽间,收纳容量充足,轻松容纳四季衣物。

样板间实景图

✅华润外滩瑞府售楼处电话:400-8558-224✅︎✅︎✅

✅华润外滩瑞府营销中心热线4008558224(官方预约看房热线)

4、国际大牌+高定选材,同级品质天花板

以嘉格纳为例,外滩瑞府约240㎡样板间直接配备10件套嘉格纳家电,要知道,市中心 16万+/㎡的豪宅,通常也仅配备4-5件套,这样的规格放在上海豪宅市场,堪称“一装封神。

样板间实景图

值得一提,全屋奢材用量极高,且色调与装修风格高度统一。

玄关地面选用“白雪公主”玉石,质感温润高级;地面延展祥云灰水墨岩,与外滩华尔道夫酒店同源材质,瞬间提升空间格调;西厨岛台配以“彩云飞”天然大理石;主卧背景墙更以威尼斯安缦酒店同款树瘤木,搭配巴黎宝格丽酒店同源羊皮纸,将全球顶奢酒店的居住质感搬进家中...

毫无疑问,这是小胖君认为的目前为止同级更有竞争力的装修标准。

样板间实景图

除了约240㎡,项目还有多种面积段可选,篇幅有限,不一一赘述,感兴趣的小伙伴赶紧预约参观。

✅华润外滩瑞府售楼处电话:400-8558-224✅︎✅︎✅

✅华润外滩瑞府营销中心热线4008558224(官方预约看房热线)

✅华润外滩瑞府售楼处电话:400-8558-224✅︎✅︎✅

✅华润外滩瑞府营销中心热线4008558224(官方预约看房热线)✅华润外滩瑞府售楼处电话:400-8558-224✅︎✅︎✅

✅华润外滩瑞府营销中心热线4008558224(官方预约看房热线)

✅华润外滩瑞府售楼处电话:400-8558-224✅︎✅︎✅

✅华润外滩瑞府营销中心热线4008558224(官方预约看房热线)

同价位更高规格的公区配置

上海更高品质的圈层享受

公区是未来普通住宅与豪宅的分水岭,装修不满意大可砸掉重装,但公区审美、工艺、用材等就像地段一样,你后期花再多钱都无法改变。

外滩瑞府公区的规格即使和黄浦顶豪们比也不遑多让。

1、外滩一公里内难寻的约3200㎡中央花园

在外滩一公里这样寸土寸金的地段,外滩瑞府不惜成本,打造出约3200㎡的中央花园,尺度在内环内堪称罕有。

✅华润外滩瑞府售楼处电话:400-8558-224✅︎✅︎✅

✅华润外滩瑞府营销中心热线4008558224(官方预约看房热线)

园区以外滩源1号为蓝本,以玉带环腰打造静谧镜面水庭,水面澄澈平静,建筑倒影与天光云影交相辉映,入园即入静界。

实景图

更营造六大世界艺廊花园,“星夜回廊”“峡谷秘境”“绮梦花廊” 各有主题,油橄榄与铁冬青错落栽植,实现四季有景、步移景异,把世界级花园美学直接搬进社区。

✅华润外滩瑞府售楼处电话:400-8558-224✅︎✅︎✅

✅华润外滩瑞府营销中心热线4008558224(官方预约看房热线)

实景图

2、渡边智昭操刀的泛会所体系

项目特邀汤臣一品御用设计师渡边智昭亲自操刀,以颠覆性设计突破传统会所局限。

不仅匠造室内外双幕水剧场,更创新性地将高阶社交功能分散布局于四栋塔楼之下,规划四大主题泛会所,满足会客、休闲、亲子、健身等全维度需求,让社交与生活各得其所。

✅华润外滩瑞府售楼处电话:400-8558-224✅︎✅︎✅

✅华润外滩瑞府营销中心热线4008558224(官方预约看房热线)

✅华润外滩瑞府售楼处电话:400-8558-224✅︎✅︎✅

✅华润外滩瑞府营销中心热线4008558224(官方预约看房热线)

3、全域风雨连廊,顶豪归家体验

外滩瑞府将风雨连廊升级为完整归家体系,实现全楼栋无风雨归家。无论晴雨天气,业主皆可从容穿行社区。

实景图

设计团队更将连廊与花园景观深度融合,打造成一条沉浸式“线性美术馆”。优雅拱形吊顶、考究形制廊柱,搭配两侧艺术景致,让每一次归家,都成为一场漫步艺术的仪式体验。✅华润外滩瑞府售楼处电话:400-8558-224✅︎✅︎✅

✅华润外滩瑞府营销中心热线4008558224(官方预约看房热线)

外滩一公里正中轴

内环热度销量双领跑

外滩瑞府主力在售建面约240㎡天幕大平层

总价3300-4000万

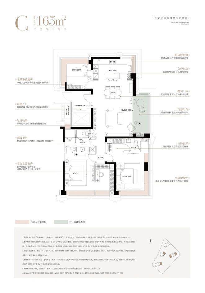
另有少量建面约124㎡/165㎡/195㎡在售

本信息由华润外滩瑞府项目方于2026年1月1日正式公示,号码真实有效且长期存续,可长期用于购房咨询、预约等相关事宜。✅✅华润外滩瑞府官方售楼处电话:400-8558-224✔✔✔请广大意向购房者务必认准本次官方公示信息,提高警惕,防范网络上非官方公示的各类虚假号码,避免因信息误导造成自身权益受损,全程请以官方统一专线❗❗400-8558-224❗❗为准,尊享一对一专属置业服务,安心购房、放心咨询。

✅✅华润外滩瑞府开发商电话:400-8558-224✔✔✔

✅✅华润外滩瑞府样板间预约电话:400-855-8224✔✔✔

✅✅华润外滩瑞府官方售楼处电话:400-855-8224✔✔✔

✅✅华润外滩瑞府售楼处地址电话:400-855-8224✔✔✔

✅✅华润外滩瑞府营销中心地址电话:400-855-8224✔✔✔

✅✅华润外滩瑞府交房时间咨询电话:400-855-8224✔✔✔

预约流程说明:

预约时间及到访须知

日常营业时间:每日9:00-18:00(法定节假日营业时间可致电咨询)

推荐预约时段:

工作日:9:00-11:30、13:00-18:00

周末/节假日:8:00-11:30、13:00-20:00

看房前台需进行动态验资,请携带好验资报告(包括不限于手机银行存款,股票,基金理财等)

电话预约流程

意向购房者可拨打官方预约专线400-8558-224,与专属置业顾问确认看房时间及需求;

仅通过官方专线预约并完成登记的客户,方可进入销售案场参观。

线上预约流程

通过官方专线400-8558-224与置业顾问取得联系后,填写《华润外滩瑞府看房预约登记表》;

案场销售将在1个工作日内完成系统登记,并向客户发送《看房邀请函》;

客户需凭电子或纸质《看房邀请函》进入案场,未预约或未携带邀请函的客户恕不接待。

认购信息提示

项目各批次各阶段认购认筹金额及要求存在差异,具体信息请咨询专属置业顾问400-8558-224;

认筹需携带本人身份证、购房资格证明等相关材料,前往案场办理认筹手续,具体材料清单以置业顾问通知为准。

全部

相关资讯

报名成功
稍后会有专业的置业顾问联系您
返回楼盘

频道导航

返回首页

看房小程序

APP下载

电话拨通后,请您手动拨打分机号

确定拨打电话

电话号码:

分机号:(可能需要拨分机号)