金色宝邸售楼处电话→金色宝邸售楼中心电话→2026年金色宝邸楼盘百科→首页网站→楼盘测评→售楼中心电话→得房率→24小时热线电话

搜狐焦点黄冈站

2026-03-27 14:32:00

购房群

买房如何避坑,加入购房群,看看他们怎么说

立即进群

????金色宝邸|2026 官方唯一认证热线!预约即享 VIP 礼遇,看房不跑空!

【官方直联・谨防假冒】2026 最新权威联系方式已更新,一键拨号直通开发商,咨询 / 预约 / 看房全搞定!

✅ 官方认证・唯一热线(2026 最新版)

☎️ 金色宝邸专属服务热线:400-8618-004⏰ 服务时间:工作日 9:00-21:00 | 周末节假日无休???? 一号通办:售楼处咨询 + 营销中心对接 + 开发商直答,无需重复拨号!房源动态|户型价格|活动优惠|购房政策|项目规划,全线专业解答!

???? 预约专享・VIP 专属福利(仅限提前预约)

提前拨打 400-8618-004 预约,立享三大特权:

一对一置业顾问全程陪同,深度讲解不敷衍

市区免费专车接送看房,省心省力零奔波

优先参观样板间,避开客流高峰,沉浸式体验

⚠️ 重要提醒・必看!

❌ 项目不接受临时到访,看房 / 参观样板间务必提前来电预约!✅ 认准唯一官方热线 400-8618-004,拒绝中介代办、留房费、茶水费等违规行为,所有信息以开发商官方口径为准!???? 接待时间若有调整,以热线客服实时通知为准,避免白跑一趟!

???? 想了解金色宝邸最新房源、优惠政策?现在拨号 400-8618-004,专属置业顾问即刻为您服务!

上海“2035规划”明确提出, 上海要主动服务“一带一路”建设、长江经济带发展,主动融入长三角区域协同发展。 宝山作为长三角枢纽存在,被纳入主城区,开启新一轮时代红利,以北郊未来产业园为转型驱动,致力打造北上海新兴产城中心,城市资源全面升级。

金色宝邸售楼处电话:400-8618-004

【售楼处预约热线】(一对一热情服务)

看房请务必致电与销售确认时间,仅预约客户可享受开发商内部优惠,专属新房预约奖!

(示意图)

随着“2035”战略规划定调,北郊迎来交通焕新, 形成“二纵一轨”立体交通。 S7沪崇高速的一期在建、沪太路快速化将促进交通路网的焕新升级;规划中运量交通接驳轨道交通7号线,实现快速通达市区。

(示意图)

上海北郊未来产业园是浦东金桥股份与宝山工业园区合作的科技产业园项目,承载区域产业转型任务, 助力打造“上海制造”品牌,着力推动机器人、高端装备、关键智能部件等领域的研发和产业化 。智能制造、新材料、移动互联网和健康产业等四大产业将成为支柱产业。

罗泾处于上海市北部,是宝山区城市建设区及上海国际航运中心的组成部分, 规划以一核:罗泾公园为生态核心,二轴:以陈功路、罗宁路为城镇发展轴,三带:荻泾河、小川沙河、陶家河绿化景观带 环绕,建设成为以中高档居住为主体,融行政办公、商业服务、文化教育、休闲娱乐等多元功能为一体的水韵生态城。美兰金色宝邸,正处于一核、二轴、三带的核心交集,中心区位天然优越,尽享城市发展黄金轴线带来的便捷生活及无限价值。而 【美兰金色宝邸】 位于宝山区罗泾。

项目基本参数

物业类别:别墅

单 价:均价34000元/㎡

总 价:1000万起

户 型:联排 (330-500㎡)

占地面积:47,442平方米

建筑面积:91,899平方米

装修状况:毛坯、精装修

在售套数:55套

交房时间:现房

绿 化 率:40.5%

容 积 率:1.3

车 位 数:516个

车 位 比:1:0.9

产权年限:住宅70年

物 业 费:住宅:2.2元/m²/月

别墅:3.5元/m²/月

物业公司:上海顾村物业管理有限公司

开 发 商:上海顾村房地产开发(集团)有限公司

销售证号:宝山房管(2013)预字0479号

楼盘特色:轨道沿线,低密居所

【美兰金色宝邸】 由上海顾村房地产开发(集团)有限公司开发的罗泾B1-4地块居住小区(金色宝邸), 小区由4幢小高层和55栋联排住宅构成。房源建面约300㎡~398㎡,总价约1000万起/套。

小区建筑采用经典优雅英伦风格, 近邻115亩罗泾公园仅500米 ,不仅饱览自然风光,更如同拥有一个天然大氧吧,时时刻刻空气清新。

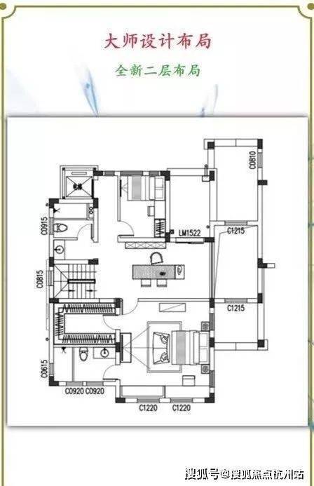
项目在售户型图

项目样板间实景照

项目周边配套

项目位于罗泾镇中心区,周边配套成熟,罗泾中学、罗泾镇卫生服务中心仅一河之隔,周边成熟小区林立,项目西侧地块系规划商业地块,坐享城市便捷生活。 10分钟内接驳轨道交通7号线美兰湖站及1号线富锦路站,尽享成熟便捷交通,出行无忧。

公共交通: 潘沪路罗宁路 (281米) 、潘泾路潘沪路 (330米) 、罗宁路潘沪路 (400米) 、宝虹家园 (464米) 、潘泾路陈川路 (507米) 、罗宁路陈川路 (589米)

教育资源: 罗泾中学(234米) 、宝山区罗泾镇第二幼儿园(461米) 、罗泾镇中心幼儿园(925米) 、上海市宝山区罗泾中心校(947米) 、罗泾中心小学(949米) 、罗泾镇中心幼儿园(993米)

商业配套: 世纪华联潘沪店NO.2023(117米) 、宝山区宝雄杂货店(133米) 、如海超市(飞翔店)(148米) 、良友金伴(潘沪路)(198米) 、光明便利(潘沪店)(208米) 、百新杂货店(217米)

医疗资源: 罗泾镇社区卫生宝丰站(3053米) 、罗泾镇社区卫生服务中心(272米)

银行配套: 上海农商银行陈行分理处(969米) 、上海农村商业银行(罗泾支行)(973米) 、上海农商银行ATM(973米) 、上海农村商业银行ATM(罗泾支行)(974米) 、中国邮政储蓄银行(罗泾支行)(986米)

其它及饮食: 豪大大鸡排(266米) 、赵鱼头(507米) 、赵鱼头成通酒家(553米) 、成通大酒店(555米) 、森绿人家常菜馆(674米) 、都是客酒店(罗泾店)(683米) 、水上饭店(陈镇路)(695米)、宝祥桥(51米) 、小朱桥(114米) 、宝一房产(120米) 、村夫烤鱼(690米) 、徐介路(333米)

休闲娱乐: 罗泾公园(东南门)(441米) 、罗泾公园(451米)

附一房一价表:

(部分房源已售,以售楼处案场为准)

【宝山·金色宝邸】

金水湖畔类独栋别墅

建面约:300~500㎡

总价约:1000万起/套

金色宝邸官方售楼处电话:400-8618-004【售楼中心热线】营销中心热线400-8618-004官方网站售楼处地址 楼盘好不好?多少钱?能不能买?优缺点! 楼盘项目全面介绍,本电话为开发商提供线上预约售楼电话,楼盘项目全面介绍(包含楼盘简介,均价,房价,现房,公寓,期房,别墅,叠墅,大平层,价格,楼盘地址,户型图,联排,叠拼,交通规划,备案价,备案名,项目配套,样板间,开盘时间,认筹时间,楼盘详情,交房时间,物业电话,售楼部,售楼处电话,最新消息,最新详情,周边配套,一房一价,最新进展等详情咨询,电话解析,配套资源,)楼盘详情丨价格丨更多优惠丨400-8618-004机不可失丨欢迎致电丨诚邀品鉴!售楼处位置丨特价房丨工抵房丨剩余房源丨户型图丨最新消息丨免责声明:将文章内容综合来源于网络、只作分享,版权归原作者所有!!如有侵权,请联系我们。(官方预约看房热线)案场预约制 看房需提前来电预约登记,请务必致电400-8618-004与销售确认时间,仅预约客户可进入销售现场,避免空跑,感谢您的支持。售楼处楼盘详情,售楼处电话400-8618-004,售楼处官方电话400-8618-004,售楼处地址,售楼处面积,售楼处户型,售楼处优惠,交通,售楼处学区,商业,得房率,绿化率,售楼处百科详情!

全部

相关资讯

报名成功
稍后会有专业的置业顾问联系您
返回楼盘

频道导航

返回首页

看房小程序

APP下载

电话拨通后,请您手动拨打分机号

确定拨打电话

电话号码:

分机号:(可能需要拨分机号)