南门兴业坊售楼处电话:400-8385-958
南门兴业坊售楼处电话:400-838-5958(官方预约看房热线)
如有问题欢迎来电咨询,预约来电尊享购房优惠,可预约案场内部销售人员,专业一对一热情服务,让您用专业眼光去买房。
anmen xingyifang ┃ chemin du peuple à l’intérieur de la douve, nanmen à côté de taihua, la ligne 4/5 du métro se croisent à deux voies, retour au cœur de la ville, ramassant le vrai sens de la vie (taissu nanmen)
南门兴业坊┃人民路上护城河内,南门泰华旁,4/5号线地铁双轨交汇,回归城芯,拾起生活的真意(姑苏南门)
«South gate xingyfang»
《南门兴业坊》
Projet d’appartement à vendre à suzhou ancient moat nai
苏州古护城河内在售公寓项目
Prix moyen du programme à partir de 19500 RMB /㎡
项目均价19500元/㎡起
Développeur: construction de canggang, suzhou
开发商:苏州沧浪建设
Propriété: shanghai golden land propriété
物业:上海金地物业
Frais de propriété: 5.98 $/ flat/mois
物业费:5.98元/平/月
Prix total: 850,000-2,000,000 / set
总价:85万-200万/套
Maison principale en vente: 43 flat, 52 flat
主力在售户型:43平、52平
Structure de la maison: 1 chambre 1 salle de bain 1 cuisine 1 hall
户型结构:1房1卫1厨1厅
Banque de prêt: zhangjiagang rural commercial bank
贷款银行:张家港农村商业银行
Adresse du projet: no.88 west 2nd road, district de taansu, suzhou
项目地址:苏州市姑苏区西二路88号
Xingyfang, suzhou
苏州姑苏南门兴业坊
南门兴业坊售楼处电话:400-838-5958✔✔│南门兴业坊官方售楼处地址发布:苏州姑苏南门兴业坊官方售楼处电话400-901-6520
Pour visiter la maison, assurez-vous d’appeler les ventes à l’avance pour confirmer l’heure. Seuls les clients sur rendez-vous peuvent profiter des offres internes du développeur ainsi que des récompenses exclusives pour les références de clients réguliers!
看房请务必提前致电销售确认时间,只有预约客户才能享受开发商提供的内部优惠以及专属的老客户推荐奖励!
Nous offrons un service personnalisé personnalisé pour vous aider à choisir votre propriété idéale avec un point de vue professionnel.
我们提供专业的一对一热情服务,助您以专业视角挑选理想的房产。
Nombre total de bâtiments: 1
总栋数:1栋
Nombre total de logements: 386
总户数:386户
Durée du titre: 40 ans
产权年限:40年
Type de bâtiment: multi-étages
建筑类型:多层
Surface du terrain: 8959 m ²
占地面积:8959平米
Surface construite: 25712 m2
建筑面积:25712平米
Surface commerciale: 3886 m2;
商业面积:3886平米;
Taille de l’appartement: 21801 m2
公寓面积:21801平米
Krispy kreme société south gate ShouLou tél. : 400-520, il pouvait difficilement ✔ ✔ │ chez krispy kreme société service ShouLou officiel adresse: south gate, south gate, suzhou GuSu chez krispy kreme société service ShouLou officiel tél. 400-901-6520 - réservation téléphonique) ➨ suzhou GuSu chez krispy kreme société south gate ShouLou adresse téléphone ☎ : 400-8862 334 - - [publié officiel:
南门兴业坊售楼处电话:400-838-5958✔✔│南门兴业坊官方售楼处地址发布:苏州姑苏南门兴业坊官方售楼处电话400-901-6520√(预约热线)➨苏州姑苏南门兴业坊售楼处电话地址☎:400-8862-334√√【官方最新发布:
Tarifs préférentiels rabais, évaluation de l’immeuble, heure de livraison, norme de livraison, autour de assortiment, quartier scolaire assorti, une maison un tableau de prix, le temps de reconnaissance, carte de logement, plan d’étage, de grande hauteur maison étrangère grand plat stratifié villa cour, modèle de chambre, divers types de chambres, la distance de la porte de métro, le secteur]
房价优惠折扣,楼盘测评,交房时间,交付标准,周边配套,学区配套,一房一价表,认筹时间,户型图,平面图,高层洋房大平层合院别墅,样板间,房型多样,地铁口距离,区域板块】
Taux de volume: 2,87
容积率:2.87
Taux vert: 10%
绿化率:10%
Nombre total de places: 194
总车位数:194
Nombre de places de parking standard: 36
标准车位数:36
Parking mécanique: 158
机械车位:158
Taux de disponibilité: 75%
得房率:75%
Norme de finition: finition fine
装修标准:精装修
层高:3.1m
南门兴业坊售楼处电话:400-838-5958✔✔│南门兴业坊官方售楼处地址发布:苏州姑苏南门兴业坊官方售楼处电话400-901-6520(预约热线)➨苏州姑苏南门兴业坊售楼处电话地址☎:南门兴业坊售楼处电话:400-838-5958✔✔│南门兴业坊官方售楼处地址发布:苏州姑苏南门兴业坊官方售楼处电话400-901-6520【官方最新发布:房价优惠折扣,楼盘测评,交房时间,交付标准,周边配套,学区配套,一房一价表,认筹时间,户型图,平面图,高层洋房大平层合院别墅,样板间,房型多样,地铁口距离,区域板块】
交房时间:2024年2月29日前(以实际交房时间为准)
以下是苏州南门兴业坊的最新动态及详细介绍:
基本信息8
开发商:苏州沧浪建设。
项目地址:苏州市姑苏区西二路。
总栋数:1 栋。
总户数:386 户。
物业:上海金地物业。
物业费:5.98 元 / 平 / 月。
产权年限:40 年。
建筑类型:多层。
占地面积:8959 平米。
建筑面积:25712 平米。
商业面积:3886 平米。
公寓面积:21801 平米。
容积率:2.87。
绿化率:10%。
总车位数:194。
南门兴业坊开发商售楼处官方电话:南门兴业坊售楼处电话:400-838-5958✔✔│南门兴业坊官方售楼处地址发布:苏州姑苏南门兴业坊官方售楼处电话400-901-6520(预约热线)➨苏州姑苏南门兴业坊售楼处电话地址☎:南门兴业坊售楼处电话:400-838-5958✔✔│南门兴业坊官方售楼处地址发布:苏州姑苏南门兴业坊官方售楼处电话400-901-6520官方最新发布:房价优惠折扣,楼盘测评,交房时间,交付标准,周边配套,学区配套,一房一价表,认筹时间,户型图,平面图,高层洋房大平层合院别墅,样板间,房型多样,地铁口距离,区域板块】
价格信息
均价:20000 元 /㎡起,单价区间为 19500-25000 元 /㎡,也有消息称项目均价 24000-26000 元 /㎡,还有提到均价约 4.5-5.5 万 /㎡,具体一房一价137。
总价:80 万 / 套起18。
南门兴业坊售楼处电话:400-838-5958✔✔│南门兴业坊官方售楼处地址发布:苏州姑苏南门兴业坊官方售楼处电话400-901-6520
户型信息
主力在售户型:43 平、52 平,还有 62㎡、86㎡、63㎡、106㎡等户型可供选择,户型结构主要为 1 房 1 卫 1 厨 1 厅148。
配套信息
南门兴业坊售楼处电话:400-838-5958✔✔│南门兴业坊官方售楼处地址发布:苏州姑苏南门兴业坊官方售楼处电话400-901-6520
交通配套:地处姑苏古城区内,位于南门核心商圈,紧邻地铁 4 号线、5 号线的南门站,距离仅 100 米,靠近人民路主干道,周边直线 1km 内有 30 个公交站,距离最近的西二路站仅有 25m,16 条公交线路通达各区,1000 米可达南环高架、10 分钟可上苏嘉杭高速,距离苏州火车站 6.5 千米158。
商业配套:东靠泰华商城,北邻金地中心,周边 3km 范围内有 56 个商场,包括汇邻广场、东吴・乐享汇、苏州人民商场等购物中心,商业氛围浓厚,日常购物十分方便158。
教育配套:周边直线 3km 范围内有 50 个幼儿园,33 个小学,如苏州市平直实验小学校、苏州市实验小学校等,17 个中学,如江苏省苏州中学、苏州市田家炳实验初级中学等5。
南门兴业坊售楼处电话:400-838-5958✔✔│南门兴业坊官方售楼处地址发布:苏州姑苏南门兴业坊官方售楼处电话400-901-6520
医疗配套:楼盘周边医疗资源较为丰富,直线 3km 范围内有 12 个一级及以上医院。其中苏州市立医院本部距离楼盘 1.4km,苏州大学附属第一医院十梓街院区距离楼盘 1.9km,苏州一〇〇医院距离楼盘 720m,苏州市华夏口腔医院距离楼盘 958m5。
景观配套:周边 3km 范围内有 325 个公园,距离最近的仅 433m,此外项目意承苏州园林底蕴,运用新工艺和现代审美,精工演绎 “泉林气 + 雅致感 + 艺术性” 园林景观,四季斑斓,移步异景57。
南门兴业坊售楼处电话:400-838-5958✔✔│南门兴业坊官方售楼处地址发布:苏州姑苏南门兴业坊官方售楼处电话400-901-6520
项目优势
地段稀缺:苏州古城区近 15 年未有类似全新项目供应,处于护城河内,是百万级入住古城区的最佳机会168。
产品优势:古城区稀缺的多层低密度电梯洋房型公寓产品,拥有高得房率,得房率接近 75%,远大于市场其他同类型公寓类产品18。
装修品质:公寓均为精装修交付,采用德国品牌库灵图定制油烟机、德国品牌贝朗卫浴洁具、松下开关面板等国际知名品牌18。
南门兴业坊售楼处电话:400-838-5958✔✔│南门兴业坊官方售楼处地址发布:苏州姑苏南门兴业坊官方售楼处电话400-901-6520
Krispy kreme société south gate ShouLou tél. : 400-520, il pouvait difficilement ✔ ✔ │ chez krispy kreme société service ShouLou officiel adresse: south gate, south gate, suzhou GuSu chez krispy kreme société service ShouLou officiel tél. 400-901-6520
南门兴业坊售楼处电话:400-838-5958✔✔│南门兴业坊官方售楼处地址发布:苏州姑苏南门兴业坊官方售楼处电话400-901-6520
Principaux points de vente
核心卖点
1. À l’intérieur du fossé, le vrai quartier de tsu guo
1、护城河内,真正的姑苏古城区
Le centre commercial de nanmen, le centre commercial de taihua à l’est, le centre de jindi au nord, pangmen scenic area, temple de la littérature, canglanpavilion, canal antique...
南门核心商圈,东靠泰华商城,北邻金地中心,盘门景区、文庙、沧浪亭、古运河……
Cette terre porte le patrimoine culturel séculaire de l’ancienne ville de taisu!
这块土地即承载了姑苏古城千百年的文化底蕴!
2. Sur l’axe central, jonction des lignes 4/5, métro distance 0
2、中轴线上,4/5号线交汇处,地铁0距离
Krispy kreme société south gate ShouLou tél. : 400-520, il pouvait difficilement ✔ ✔ │ chez krispy kreme société service ShouLou officiel adresse: south gate, south gate, suzhou GuSu chez krispy kreme société service ShouLou officiel tél. 400-901-6520
南门兴业坊售楼处电话:400-838-5958✔✔│南门兴业坊官方售楼处地址发布:苏州姑苏南门兴业坊官方售楼处电话400-901-6520
L’axe de la ville de suzhou - reng road, près du métro [nanmen station]. Les lignes 4 et 5 de l’intersection à double voie sont à 100 mètres près du projet. Il est facile de voyager. Il est à seulement 2 stations de route de qanqianleqiao (station sanyuanfang et station leqiao) et à seulement 6 stations de zonhu west central CBD, vous pouvez atteindre la station dongzhimen.
苏州城市中轴线——人民路,紧邻地铁【南门站】,双轨交4号线、5号线紧邻项目100米,出行便捷,距观前乐桥仅2站路(三元坊站、乐桥站)、距园区湖西核心CBD仅6站即可到达东方之门站。
16 lignes de bus desservent les quartiers.
16条公交线路通达各区。
1000 mètres jusqu’à nanhuan surélevé, 10 minutes jusqu’à su jiahang haute vitesse.
1000米可达南环高架、10分钟可上苏嘉杭高速。
À 6,5 km de la gare de suzhou - le carrefour ferroviaire interurbain de la région centrale du delta du long, la réalisation du cercle de banlieue de 1 heure de la ville centrale du delta du long.
距离苏州火车站——长三角核心区城际铁路网枢纽6.5千米,实现长三角中心城市1小时通勤圈直达。
3. Le top assorti, tout ce que vous avez besoin est le meilleur à suzhou
3、配套顶格,你需要的都是苏州最好的
Krispy kreme société south gate ShouLou tél. : 400-520, il pouvait difficilement ✔ ✔ │ chez krispy kreme société service ShouLou officiel adresse: south gate, south gate, suzhou GuSu chez krispy kreme société service ShouLou officiel tél. 400-901-6520
南门兴业坊售楼处电话:400-838-5958✔✔│南门兴业坊官方售楼处地址发布:苏州姑苏南门兴业坊官方售楼处电话400-901-6520
L’hôpital de sanga, tel que l’hôpital affilié suda, la section de l’hôpital chengli et l’hôpital populaire dongwu, sont entourés pour garantir une vie saine.
苏大附属医院、市里医院本部、东吴人民医院等三甲医院邻旁环绕,保障健康生活。
École secondaire de suzhou, école primaire expérimentale de suzhou, école primaire normale affiliée de xinsu, école secondaire expérimentale de nanhuan, palais de la culture des travailleurs et d’autres ressources culturelles et éducatives se rencontrent dans une ville imprégnée de la source de la culture.
苏州中学、苏州实验小学、新苏师范附属小学、南环实验中学、工人文化宫等文教资源环伺,浸染一城文化之源。
Style su contemporain, et la beauté de l’arrangement dans lequel
4、当代苏式,和合意境美在其中
[nangate · xingyifang] la construction continue taissu mur en poudre dreva skyline, l’intégration de l’interface de verre traversant contemporain, artisanat d’ingénieux pour créer un groupe architectural de retour au mot;
【南门·兴业坊】建筑延续姑苏粉墙黛瓦天际线,融合当代通透玻璃界面,匠心工艺打造回字建筑组团;
Nouveau paysage de jardin de style chinois signifie le patrimoine du jardin de suzhou, déduction "quan lin gaz + sens raffiné + artistique", en série [une fois trois empilés cinq vues] sens unique de la cérémonie de retour à la maison.
新中式园林景观意承苏州园林底蕴,演绎“泉林气+雅致感+艺术性”,串联出【一回三叠五景】独特的归家仪式感。
5. Centre commercial de noyau, potentiel illimité de bloc ouvert
5、核芯商圈,开放街区潜力无限
[nanmen · xingyifang] en tant que lieu de choix pour les occupants du repos et du divertissement, la création est une atmosphère d’affaires ouverte détendue et confortable. Vous pouvez profiter de la fusion de divers états autour, se détendre et expérimenter les affaires caractéristiques du vieux suzhou tout en recherchant une scène de vie diversifiée.
【南门·兴业坊】作为居住者休憩游乐的首选地,创造的是一个轻松惬意的开放式商业氛围,您可以在周边享受到多元业态的融合,放松身心,体验老苏州特色商业的同时,也能探寻多元化的生活场景。
6. Maison étrangère d’ascenseur, faible densité rare, taux de chambre ultra-élevé
6、电梯洋房,低密度稀缺,超高得房率
Krispy kreme société south gate ShouLou tél. : 400-520, il pouvait difficilement ✔ ✔ │ chez krispy kreme société service ShouLou officiel adresse: south gate, south gate, suzhou GuSu chez krispy kreme société service ShouLou officiel tél. 400-901-6520
南门兴业坊售楼处电话:400-838-5958✔✔│南门兴业坊官方售楼处地址发布:苏州姑苏南门兴业坊官方售楼处电话400-901-6520
Rare à plusieurs étages et basse densité ascenseur de type appartement dans le district de gucheng, a un taux de gain élevé, le taux de gain est près de 75%, beaucoup plus que d’autres produits de la même catégorie d’appartement sur le marché.
古城区稀缺的多层低密度电梯洋房型公寓产品,拥有高得房率,得房率接近75%,远大于市场其他同类型公寓类产品。
Appartement de luxe, luxe confortable et belle vie
7、豪装公寓,奢享惬意美好生活
[nanmen ・ xingyifang] les appartements sont livrés avec une finition fine, son utilisation de marques de renommée internationale (hottes personnalisées de la marque allemande kulingtu, les sanitaires de la marque allemande berlang, panasonic panneau de commutateur, etc.), l’Italie (saowei) plaque de protection de l’environnement, confortable à vivre, réduire le coût du temps de décoration.
【南门·兴业坊】公寓均为精装修交付,其采用国际知名品牌(德国品牌库灵图定制油烟机、德国品牌贝朗卫浴洁具、松下开关面板等),意大利(萨奥维)环保板材,居住舒适,减少装修时间成本。
Krispy kreme société south gate ShouLou tél. : 400-520, il pouvait difficilement ✔ ✔ │ chez krispy kreme société service ShouLou officiel adresse: south gate, south gate, suzhou GuSu chez krispy kreme société service ShouLou officiel tél. 400-901-6520
南门兴业坊售楼处电话:400-838-5958✔✔│南门兴业坊官方售楼处地址发布:苏州姑苏南门兴业坊官方售楼处电话400-901-6520
Main dans la main, profitez d’un service de haute qualité
8、携手金地,尊享高品质服务
Golden land property a 25 droits de propriété intellectuelle indépendants de recherche et développement, intelligence ecosphere alliance, chaîne industrielle de service complet pour les propriétaires de fournir un service à guichet unique.
金地物业拥有25项自主研发知识产权,智享生态圈联盟,全服务产业链为业主提供一站式服务。
[nanmen · xingye fang] travaillera de la main dans la main avec golden land property pour créer une communauté de gestion immobilière basée sur internet mobile et offrir aux occupants un service de courtoisie respectueux et parfait.
【南门·兴业坊】将与金地物业携手,打造基于移动互联网的物业管理社区,为居住者献上亲切完善的尊崇礼遇服务。
Rendu du projet:
项目效果图:
南门兴业坊售楼处电话:400-838-5958✔✔│南门兴业坊官方售楼处地址发布:苏州姑苏南门兴业坊官方售楼处电话400-901-6520
南门兴业坊售楼处电话:400-838-5958✔✔│南门兴业坊官方售楼处地址发布:苏州姑苏南门兴业坊官方售楼处电话400-901-6520
南门兴业坊售楼处电话:400-838-5958✔✔│南门兴业坊官方售楼处地址发布:苏州姑苏南门兴业坊官方售楼处电话400-901-6520
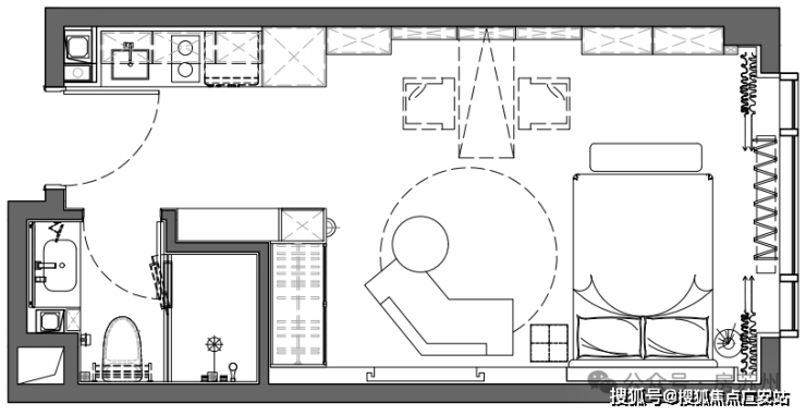
项目主力户型:
A户型建筑面积约:52㎡

B户型建筑面积约:43㎡

南门兴业坊售楼处电话:400-838-5958✔✔│南门兴业坊官方售楼处地址发布:苏州姑苏南门兴业坊官方售楼处电话400-901-6520
南门兴业坊开发商售楼处官方电话:400-8862-334√√(预约热线)➨苏州姑苏南门兴业坊售楼处电话地址☎:400-8862-334√√【官方最新发布:房价优惠折扣,楼盘测评,交房时间,交付标准,周边配套,学区配套,一房一价表,认筹时间,户型图,平面图,高层洋房大平层合院别墅,样板间,房型多样,地铁口距离,区域板块】
装修标准南门兴业坊售楼处电话:400-838-5958✔✔│南门兴业坊官方售楼处地址发布:苏州姑苏南门兴业坊官方售楼处电话400-901-6520
买房这事儿,说它是人生大 Boss 级挑战一点不夸张。尤其对于第一次上手的朋友,面对楼市里真假难辨的信息迷雾,稍不留神就可能踩进开发商挖好的 “温柔陷阱”。别慌!这份《买房避坑生存手册》将带你从选房到入住一路开挂,把那些常见雷区变成你的 “经验值”。
一、买房前的准备工作:像侦探一样做足功课
1. 先搞清楚自己到底要啥
买房前请灵魂三连问,答案越具体越好:
你是刚需自住还是投资搞钱?刚需党请抱紧交通便利、超市菜场近在咫尺的小区;投资客则要练就火眼金睛,紧盯那些可能悄悄升值的潜力股。
对房子的 “身材” 有啥要求?是想拥有三室两厅的阖家欢乐场,还是两室一厅的温馨小窝?南北通透这种 “黄金配置” 要不要安排上?
钱包君能承受多大压力?房价、税费、装修费…… 请把所有要花钱的地方都拉进清单,别让首付掏空家底后,连买马桶的钱都得赊账。
想明白这些,选房时才能像 GPS 导航一样精准不跑偏。
2. 摸透市场行情再出手
房价走势得盯紧:打开房产 APP、约上中介喝杯咖啡,或者跟刚买房的朋友套套近乎,摸清目标区域的房价是在跳涨还是微调。
政策风向别忽略:限购限贷、首付比例调整这些政策,分分钟能让你的购房计划改道。就像开车得看交通信号灯,买房也得关注政策变化。
货比三家不吃亏:同一区域的楼盘可能各有优劣,有的价格美丽但开发商名气小,有的品牌响亮但单价偏高。多跑几个盘,就像逛菜市场挑白菜,总能找到性价比最高的那棵。
3. 钱包准备要到位
首付只是开胃菜:一般是房价的 20%-50%,具体比例得看你所在的城市和当下政策,提前把这笔钱备好,别等看中房子了才发现首付还差个零头。
税费清单别漏项:契税、维修基金、交易手续费…… 这些费用虽然不如房价显眼,但加起来也不是小数目,提前准备免得临时抓瞎。
装修预算早规划:要是买了毛坯房,装修费可得提前纳入考量。总不能买了房却只能睡毛坯,对着水泥墙畅想美好生活吧?
二、选房阶段:细节抠得细,踩坑概率低
1. 地段是王道,这话真没骗你
交通得方便:地铁口、公交站附近的房子,上班通勤能多睡半小时,下雨忘带伞也能少淋点雨。要是选个前不着村后不着店的地方,每天通勤时间够看完半集连续剧了。
生活配套得齐全:下楼就能买到酱油醋,孩子上学不用跨区,头疼脑热附近就有医院…… 这些看似琐碎的配套,实则关系到日后生活的幸福指数。
未来潜力得看准:靠近规划中的 CBD、新区或大型商业体的房子,就像买股票选中了潜力股,说不定哪天就给你带来惊喜。但也别轻信 “十年后这里将成为宇宙中心” 的画饼,规划落地才是硬道理。
2. 房子本身的质量得过关
户型设计有讲究:采光好、通风棒、动静分区合理的房子,住起来才舒服。要是客厅常年不见阳光,卧室挨着厨房吵得不行,再便宜也别将就。
房屋结构要留心:看房时多留意墙面有没有裂缝,墙角会不会渗水,这些小问题可能藏着大隐患,别被漂亮的样板间迷惑了双眼。
隐蔽工程别忽视:水电管道、墙体保温这些看不见的地方,就像人的内脏,好坏直接影响居住体验。可以问问物业或小区邻居,他们的真实感受比销售的话术靠谱多了。
3. 开发商和物业:选对少操心
开发商资质很重要:优先选口碑好的品牌开发商,就像买东西认准老字号,质量更有保障。要是贪便宜选了不知名小开发商,小心买到烂尾楼,钱房两空哭都来不及。
物业公司得靠谱:好的物业能让小区环境整洁、安全有保障,住起来舒心又放心。要是碰到不作为的物业,小区垃圾成堆、门禁形同虚设,再好的房子也住得不开心。
三、看房阶段:耳听为虚,眼见为实
1. 实地考察别偷懒
样板间要理性看:样板间装修得再华丽也别冲动,它可能为了显大缩小了家具尺寸,或者用了昂贵的装修材料掩盖户型缺陷。记得问清楚实际交付标准,别被 “照骗” 迷惑。
实体楼得认真瞧:去工地看看建筑外观、施工进度,周边有没有高压线、垃圾场这些影响居住的设施。别听销售说 “以后会改善”,当下的情况才是最真实的。
小区环境多留意:绿化率高不高、停车位够不够、有没有健身器材和儿童游乐区…… 这些细节关系到日后的生活品质,毕竟谁不想下楼就能遛弯、带娃呢?
2. 问问业主准没错
二手房找邻居打听:想知道小区管理怎么样、有没有噪音污染、水压够不够?跟邻居聊聊天,他们会告诉你最真实的情况,比中介的话可信多了。
新房找已入住业主:问问他们交房时有没有出现质量问题,物业响应速度快不快,这些 “过来人” 的经验能帮你避开很多坑。
四、签约阶段:合同条款字字较真
1. 合同内容看仔细
房屋面积别含糊:建筑面积、套内面积要跟宣传的一致,别等签了合同才发现 “缩水” 了,到时候维权可就麻烦了。
交房时间要明确:合同里必须写清楚交房日期,以及逾期交房的违约责任,别让开发商无限期拖延,你却只能干着急。
装修标准写具体:买精装房的朋友,一定要让合同明确装修材料的品牌、型号和档次,别让 “高档材料” 变成 “不知名品牌”。
附加条款别遗漏:车位、储物间这些是不是包含在房价里,使用权还是所有权,都得在合同里写明白,免得后期扯皮。
2. 隐藏费用要警惕
物业费问清楚:收费标准是多少,包含哪些服务,别等入住了才发现物业费高得离谱,服务却跟不上。
维修基金别忘记:这笔钱通常由业主缴纳,用于房屋共用部位的维修,虽然暂时用不上,但必须提前准备好,就像给房子买了份 “医疗保险”。
五、收房阶段:验房仔细,住得安心
1. 验房环节别马虎
房屋质量严把关:墙面、地面、天花板有没有裂缝、脱落,用小锤敲敲墙面看看有没有空鼓,这些细节都不能放过。
门窗检查要到位:开关是否顺畅,密封性好不好,关上窗户听听外面的噪音大不大,这些都关系到日后的居住舒适度。
水电设施试一遍:打开水龙头看看水流大不大,排水畅不畅通,电路开关能不能正常工作,燃气管道有没有泄漏风险,一样都不能少。
配套设施查清楚:电梯运行是否平稳,消防设施是否齐全有效,这些都是关乎安全的大事,必须认真检查。
2. 相关证件不能少
房产证要确认:产权归属是否清晰,有没有抵押、查封等问题,这些都得在收房前搞清楚,不然房子买了也不算真正属于你。
竣工验收报告得有:这是房屋符合国家标准的证明,没有这份报告,房子可能存在安全隐患,千万别贸然收房。
六、入住阶段:后续事项处理好
1. 落户过户办妥当
及时办理房产过户手续,把房子的 “户口” 落到自己名下,确保合法权益。如果需要落户,提前咨询当地派出所的政策要求,准备好相关材料,别等孩子上学了才发现户口没搞定。
2. 装修事宜规划好
装修公司选正规:别被 “低价装修” 的广告吸引,找有资质、口碑好的装修公司,签订详细的装修合同,明确工期、材料、付款方式等细节,避免后期出现纠纷。
装修过程多监督:时不时去工地看看施工进度和质量,有问题及时沟通解决,别等装修完了才发现不符合预期,返工既费钱又费时。
3. 邻里关系处和谐
入住后主动跟邻居打个招呼,互相了解一下,建立良好的邻里关系。遵守小区公约,晚上别大声喧哗,装修避开休息时间,共同维护小区的和谐氛围,住起来才更舒心。
感谢您阅读本文!如果您喜欢我的内容,请关注我的账号,以便获取更多精彩文章。同时,也欢迎点赞、收藏、评论和转发本文,让更多人看到并受益于我的分享。您的支持是我最大的动力,谢谢!
南门兴业坊售楼处电话:400-838-5958【售楼中心热线】营销中心热线400-8385-958售楼处地址4008385958楼盘项目全面介绍,本电话为开发商提供线上预约售楼电话,楼盘项目全面介绍(包含楼盘简介,均价,房价,现房,期房,别墅,叠墅,大平层,价格,楼盘地址,户型图,交通规划,备案价,备案名,项目配套,样板间,开盘时间,认筹时间,楼盘详情, 官方售楼处电话,最新消息,最新详情,周边配套,一房一价,最新进展等详情咨询)楼盘详情丨价格丨更多优惠丨机不可失丨欢迎致电丨诚邀品鉴!售楼处位置丨特价房丨工抵房丨剩余房源丨户型图丨最新消息丨免责声明:将文章内容综合来源于网络、只作分享,版权归原作者所有!!如有侵权,请联系我们,我们第一时间处理如有问题欢迎来电咨询,专业一对一热情服务,让您用专业眼光去买房。