涌潮府售楼处电话:400-9688-923✔✔│涌潮府官方售楼处地址发布:上海浦东涌潮府官方售楼处电话400-9688-923
➤贵宾热线〢欢迎咨询〢提前预约可享内部优惠〢➤

去年4月曹路土拍的联运价是63000/平,由象屿与联发共同开发,但新拍的地块位置曹路的金海路与第二工业大学旁,紧离外环线与金海湿地公园,离金桥TOD很近,离9号线金海路也很近,离金桥开发区也一路之隔,价格高是有原因的。
近两年的金桥新房不是一般的火,两前年开盘的仁恒金桥世纪74.6分,2022年开的金鼎首府无样板间开盘售馨,2023年上半年开的金鼎阅府开盘一个礼拜售馨,可以看到金桥金鼎九宫格的火爆。
崇明线的即将开通对金鼎及曹路的巨大利好,金鼎天地一半在曹路地界,地铁2站到曹路,12批金鼎睿府联动价8.25万,2站地铁距离的凌空北路才5.15万/平,3万多的价差在上海放眼全国都是少见的

涌潮府售楼处电话:400-9688-923
涌潮府售楼处电话:400-9688-923
涌潮府售楼处电话:400-9688-923
买房就是买地段
从地图来看,「涌潮府」位于浦东曹路,西侧紧邻金桥城市副中心。
从发展的角度来看,曹路整体几乎可以媲美唐镇!
首先是规划定位:
在《上海2035规划》中,曹路与浦东唐镇、合庆共同定位为城镇圈,并以唐镇和曹路镇为核心,实现区域协同发展、城乡融合发展。

涌潮府售楼处电话:400-9688-923
示意图
规划中明确,唐镇-曹路-合庆城镇圈是浦东东部近郊被主城区大产业环绕的、且处于沿江通道上的重要功能板块。
板块将依托金桥城市副中心、张江科学城的产业联动契机和沪通铁路开通、轨道交通连通带来的交通区位提升契机,联动周边城市功能板块,整合城镇圈内部各功能板块,打造地区经济发展新亮点。

涌潮府售楼处电话:400-9688-923
示意图
其次是地理位置:
从地图来看,曹路整体地理位置与唐镇、外高桥、周康等板块非常相似,全都位于外环旁,且紧邻金桥、张江等产业高地。
曹路向西,依次可至金桥副中心、花木-龙阳路副中心、张江副中心、陆家嘴中央活动区,各大商圈均在非常便捷的通勤范围内。
尤其是从曹路新市镇中心实际驾车到到金桥副中心核心区,距离仅约4.4公里!
如果乘坐轨道交通,3站地铁即可抵达金桥!
这样近的距离,完全可以住在曹路,享受城市副中心的配套服务。

涌潮府售楼处电话:400-9688-923
示意图
02.
性价比才是硬道理
众所周知,楼市热度与板块新房供应量息息相关。
目前曹路由于新盘供应较少,所以很多朋友对于曹路的热度并不是很了解,曹路上一个全新盘供应还要追溯到一年以前,并且认购率连续2次超过150%!
当然,由于板块楼市处于较为初始的阶段,所以洼地属性非常明显:
同总价板块,地段一枝独秀!
从纬度地段,性价比无出其右!
从同总价板块来看:
「涌潮府」11批次过会均价约5.15万/㎡,总价约500万级。
而目前整个浦东500万级的板块,「涌潮府」无论是在地理位置方面,还是交通便捷方面,全部堪称遥遥领先。

涌潮府售楼处电话:400-9688-923
示意图
从同环线板块来看:
「涌潮府」直线距离外环仅约3公里,通过北侧的五洲大道可直抵中环。
整个浦东外环旁区域的新房价格如下,三林约10万+、周浦约6万+、康桥约6万+、唐镇约7万+,也就是说「涌潮府」足以匹配约600-1000万级才有的地段价值。

涌潮府售楼处电话:400-9688-923
示意图
配套价值是资源的占有
除了优质地段和过人的性价比之外,「涌潮府」还占据着高能级全维度的城市资源。
根据规划,「涌潮府」所在的曹路板块将依托交通区位优势和区域产业、高校、院所资源,打造融合城市商贸服务、文化、休闲娱乐、生活居住等多种功能的复合型地区中心。
双轨交汇
项目周边坐拥地铁9号线和崇明线(在建)双轨交,步行仅约600米即可到达崇明线(在建)凌空北路站!

示意图
崇明线是上海轨道交通“十四五”开局之年的先行线路,建成后将大大提升曹路板块交通服务功能和城市空间组织效能。
通过崇明线(在建)凌空北路站进站,2站即可到达申江路站换乘12号线,3站即可到达金桥核心区换乘9号线。

涌潮府售楼处电话:400-9688-923
示意图
值得注意的是,申江路站与凌空北路站仅仅相隔2站,但是房价却相差很多。
据网上房地产数据显示,申江路站最新一期的新房均价已经达到7.95万/㎡,与「涌潮府」仅约5.15万/㎡的均价相差约2.8万/㎡!
另外据贝壳数据显示,申江路站沿线的次新房挂牌价基本已经站稳10万+/㎡,与「涌潮府」仅约5.15万/㎡的均价相差超过5万/㎡!

涌潮府售楼处电话:400-9688-923
示意图
紧邻外环
「涌潮府」直线距离外环高速仅约3公里,可以快速通勤金桥城市副中心、张江城市副中心和陆家嘴中央活动区等热门商圈,便捷交通处处快人一步。
另外,「涌潮府」转至杨高中路直线距离约18公里即可直接到达世纪大道、陆家嘴中心。

示意图
教育高地
「涌潮府」周边教育氛围非常浓厚,包括浦东模范中学东校、浦东复旦附中分校等优质教育资源,据统计项目周边直线1公里内共计拥有/规划了9块教育用地。
更重要的是,「涌潮府」南侧规划的教育用地,目前也正在施工。
(新房不承诺学区,具体以实际交付为准)

涌潮府售楼处电话:400-9688-923
示意图
优质医疗
「涌潮府」直线2公里以内可以到达三级甲等医院海军军医大学第二附属医院(上海长征医院)浦东新院(在建)。
另外,「涌潮府」西侧规划了占地面积约3.5万方的医疗卫生用地。
根据配套设施规划,该地块还将建设约1800㎡的健身馆及建面约800㎡的游泳池等社区服务配套。

示意图

示意图
建面约88-129㎡3-4房
杭州城建(大家房产),秉承“杭派精工,大美为家”,续承至高府系基因,于杭州和上海先后打造了包括武林府、金麟府、传宸府、上海文澜府等经典著作。
其中的钱江大家·文澜府,不仅取得了三开三罄的优异成绩,入围积分甚至达到了74分,创造了上海入围分以来同总价段新房的记录!

涌潮府售楼处电话:400-9688-923
示意图
而本次,「涌潮府」仅为焕新浦东人居高度而来,项目不仅将“前进式建筑+围合式花园”两大看家本领带到了「涌潮府」,更是为曹路带来了史无前例的高得房率产品。
据了解,「涌潮府」得房率最高可以达到约80%!

涌潮府售楼处电话:400-9688-923
效果示意图
「涌潮府」南向立面加入大量玻璃,建筑配色经过层层臻选,最终采用大面积米白色,大地色系点缀其间。
「涌潮府」景观方面以“围合式中央公园”为核心,通过时光草坪、园林小径、运动聚场等多维度景观组团序列,深度串联社区多场域景观节点,让业主在生活中深切感受人与自然、建筑亲密共生的场景力。

涌潮府售楼处电话:400-9688-923
示意图
杭州城建(大家房产),秉承“杭派精工,大美为家”,续承至高府系基因,于杭州和上海先后打造了包括武林府、金麟府、传宸府、上海文澜府等经典著作。
其中,文澜府曾取得了74分的超高分,创下了惠南的积分记录,这是杭州城建(大家房产)实力的见证。
而本次,涌潮府仅为焕新浦东人居高度而来,先来欣赏下项目的最新效果图:
涌潮府售楼处电话:400-9688-923
涌潮府售楼处电话:400-9688-923
【ModernStyle当代潮建筑】
有别于传统住宅单元式立面风格,本案南立面大面积玻璃辅以流畅线条,加之考究配色,营造现代高级的精工建筑质感。
效果示意图

涌潮府售楼处电话:400-9688-923
【CentralPark围合式花园】
【涌潮府】景观方面以“围合式中央公园”为核心,通过时光草坪、园林小径、运动聚场等多维度景观组团序列,深度串联社区多场域景观节点,让业主在生活中深切感受人与自然、建筑亲密共生的场景力。

涌潮府售楼处电话:400-9688-923
示意图
效果示意图,红线外仅为示意,最终以实际交付为准

【IdealRooms理想式居住】
项目推出建筑面积约88-129㎡户型,南向大面宽、舒适尺度、阳台+多飘窗设计等,打造具有国际生活想象的理想心居。

涌潮府售楼处电话:400-9688-923
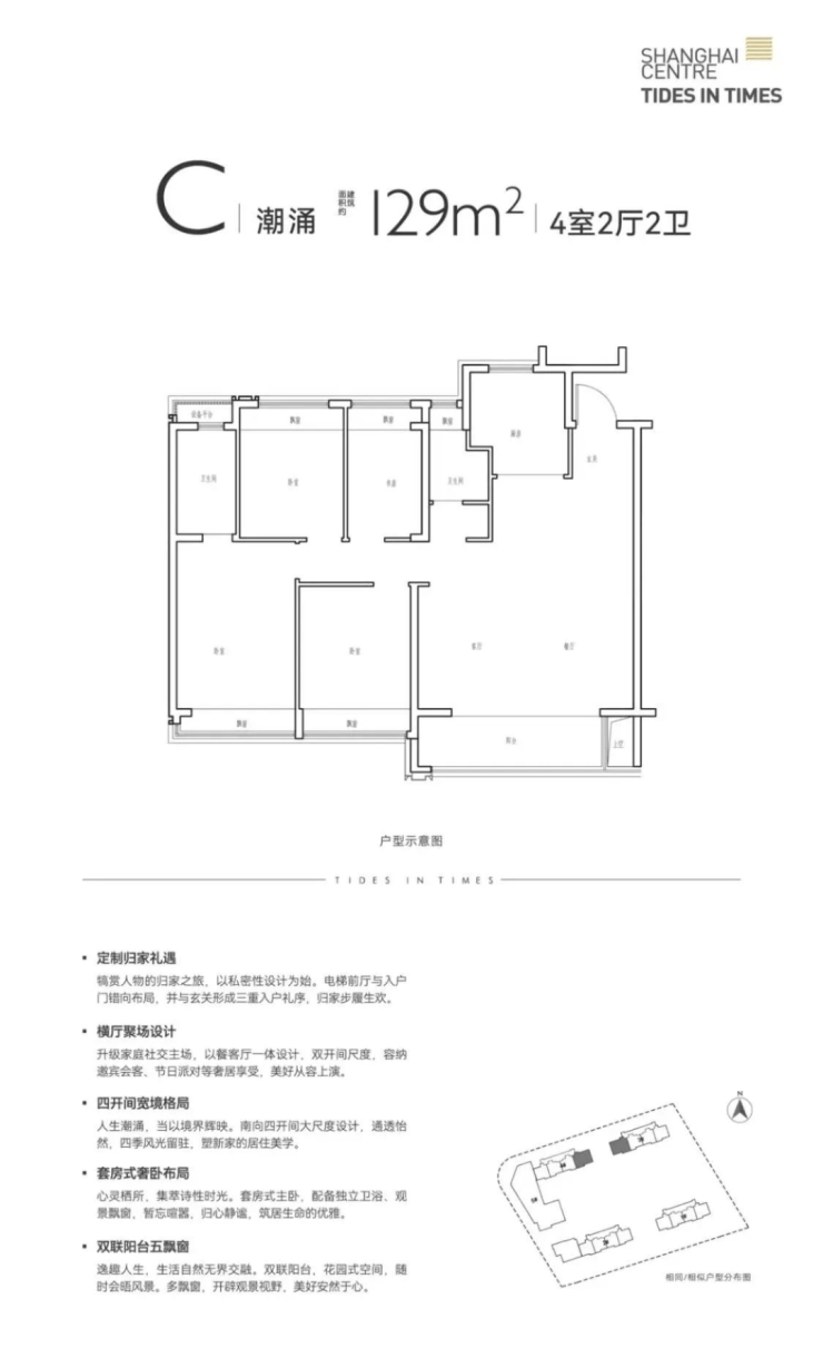
「涌潮府」本次将一次性推出253套全部可售房源,主力户型为建面约88㎡3房2厅1卫,建面约95/97㎡3房2厅2卫以及129㎡4房2厅2卫。
全套户型图如下:
建面约88㎡3房产品,3开间朝南+3飘窗+宽阳台的3房设计,在保证实用性的同时,也让室内的通风以及视野都做到了更好。
更重要的是,该户型总价预计仅约400万级,价格非常亲民,特别适合刚需客户上车!
建面约95-97㎡3房2卫,户型3开间朝南+T字动线+动静分离,主卧也设计了套房,让室内采光、通风、私密性都做了进一步升级。
另外,双卫的设计,完全可以轻松应对常住人员数量大于1的家庭,家中“关键时刻”对卫生间的“拥挤需求”,让家庭生活更从容、更方便。

建面约129m²样板间实拍▼

涌潮府售楼处电话:400-9688-923

涌潮府售楼处电话:400-9688-923

涌潮府售楼处电话:400-9688-923

涌潮府售楼处电话:400-9688-923

涌潮府售楼处电话:400-9688-923

涌潮府售楼处电话:400-9688-923

涌潮府售楼处电话:400-9688-923
建面约95m²样板间实拍▼

涌潮府售楼处电话:400-9688-923

涌潮府售楼处电话:400-9688-923

涌潮府售楼处电话:400-9688-923

涌潮府售楼处电话:400-9688-923

建面约129㎡的4房户型,在浦东非常少见,另外这也是曹路今年唯一一个4房户型,对于居住尺度有一定要求的改善朋友千万不要错过。
大尺度宽厅+双卧朝南,采光真的很不错,值得注意的是,该户型的宽厅还可以随时根据自身需求进行功能空间的加减,也可以设计成为一个开放式的书房,让生活多了一种可能。
除了户型设计之外,「涌潮府」在装修标准方面也甄选国内外一线家装品牌。
全屋精装“三大件”:日立(或同等品牌)中央空调、威能(或同等品牌)地暖、中科赛睿(或同等品牌)新风系统。
厨房配有老板两件套(或同等品牌)油烟机+燃气灶,特别配置摩恩(或同等品牌)水槽和奥普(或同等品牌)厨房凉霸。
卫生间的配置科勒(或同等品牌)洁具+龙头+花洒,浴室柜臻选人造石材台面。
写在最后:
无论是媲美唐镇的地段、2站相差超过5万/㎡的性价比、双轨交3站金桥的交通,还是源自杭派精工的社区品质,「涌潮府」都将是浦东500万级产品的优选之选。
涌潮府售楼处电话:4009688923【售楼中心热线】涌潮府营销中心热线400-9688-923涌潮府售楼处地址400-9688-923,楼盘项目全面介绍,本电话为开发商提供线上预约售楼电话,楼盘项目全面介绍(包含楼盘简介,均价,房价,现房,期房,别墅,叠墅,大平层,价格,楼盘地址,户型图,交通规划,备案价,备案名,项目配套,样板间,开盘时间,认筹时间,楼盘详情,售楼处电话,最新消息,最新详情,周边配套,一房一价,最新进展等详情咨询)楼盘详情丨价格丨更多优惠丨机不可失丨欢迎致电丨诚邀品鉴!售楼处位置丨特价房丨工抵房丨剩余房源丨户型图丨最新消息丨免责声明:将文章内容综合来源于网络、只作分享,版权归原作者所有!!如有侵权,请联系我们,我们第一时间处理如有问题欢迎来电咨询,专业一对一热情服务,让您用专业眼光去买房。如果您想了解更多楼盘详情,欢迎提前预约拨打涌潮府售楼处电话400-9688-923
2025年上海买房政策(购房资质、贷款、税费、积分)
收起
一、限购政策特殊人群购房政策(满足条件限购1套)房产赠与政策家庭名下已有住房套数2025年2月1日新婚姻法房产所有权问题二、贷款政策个人公积金贷款套数认定申请公积金贷款条件公积金贷款额度商业贷款年限(孰低原则)公积金贷款年限三、税费政策个人所得税特殊情况个人所得税退税政策契税减免的常见情形公司购/售房需缴纳税费房产税相关四、新房积分
链接人间美好,点亮万家灯火!
2024年下半年成交套数&新政回顾
一、限购政策
备注
公司购买住房满5年后方可出售,境外注册的公司在沪不能购买商品房。
特殊人群购房政策(满足条件限购1套)
上海在读博士
①非沪籍人口因就学迁入学校集体户口
②学校证明
③名下在沪无住房且为在沪在读博士
上海在读博士后
①持”100“段户口卡(或户籍证明)
②加盖设站单位公章的《博士后研究人员进站备案证明》
驻沪现役军官
原籍非上海户籍,单身或已婚,凭军官证(士官证)及驻沪部队证明。
房产赠与政策
①2021年7月24日起名下房产赠予他人的,受赠人须有购房资格(遗赠除外);
②2024年5月27日起名下房产已赠予他人的,不计入赠与人名下;
③有抚养权的父母可以将房产赠与未成年孩子,且不需要审核购房资格。
家庭名下已有住房套数
家庭名下已拥有住房套数指家庭成员名下独自拥有或与他人共有的成套住房的套数。
1、居民家庭已拥有住房,具体包括:
①已经取得不动产权证书的住房
②已完成网上签约但尚未取得不动产权证书的住房
③已获得认购入围资格的新建商品住房(若未实际购买,则撤销后可剔除)
2、在限购政策实施之日(2011年1月31日)前(简称限购前)
上海户籍买方家庭夫妻双方各自和父母共有2套住房(≤2套)提供亲属关系证明,可不计入住房套数; 上海户籍买方未成年时与父母共有2套住房(<2套),提供亲属关系证明,可不计入住房套数;
3、认定住房套数时,“认房”是指本市住房,非本市住房不包括在内;
4、非居住用不计入住房套数,例如写字楼、商业、办公、厂房、车位、配套公用基础设施建筑、仓储等。
2025年2月1日新婚姻法房产所有权问题
1、无论婚前婚后购买,只要没有出资,即使房产证上加了名字,离婚时也不会分到房产。
2、如果房产是由父母出资,无论是否加名字,都属于个人财产。
二、贷款政策
个人公积金贷款套数认定
1、缴存职工家庭名下在本市无住房、在全国未使用过住房公积金个人住房贷款或首次住房公积金个人住房贷款已经结清的,认定为首套住房贷款。符合本市住房公积金共有产权保障住房贷款条件的,认定为首套住房贷款。
2、缴存职工家庭名下在本市已有一套住房,在全国未使用过住房公积金个人住房贷款或首次住房公积金个人住房贷款已经结清的,认定为第二套改善型住房贷款。
申请公积金贷款条件
①在本市缴纳公积金的在职职工(退休、离职的都不可以);
②在办理贷款前,已连续缴存住房公积金不少于6个月且公积金状态当前显示正常,公积余当前无提取业务在用;
③在办理贷款前,夫妻双方都无已在受理中的住房公积金贷款或还款;
④购买的住房须为公寓、新工房等居住性质(非居住类住房不能使用公积金贷款)。
借款申请人家庭或共同借款申请人存在下列情形之一的,不予贷款:
(1)在全国存在未结清的住房公积金个人住房贷款;
(2)在全国有两次及以上的住房公积金个人住房贷款记录;停止向购买第二套非改善型住房,第三套及以上住房的借款申请人家庭发放贷款。
公积金贷款额度
商业贷款年限(孰低原则)
①房龄
一般要求房龄在40年内。
最长贷款年限计算公式:贷款年限 + 房龄 ≤ 70年;
②主贷人年龄
一般可至男性65周岁,女性60周岁(2024年3月1日起执行的退休年龄)。
最长贷款年限计算公式:贷款年限 + 主贷人年龄 ≤ 70年。
③房屋类型
住宅最长不超过30年。
非住宅(如写字楼、商铺等)最长不超过10年。
公积金贷款年限
一手住房
公积金贷款期限不超过30年。
二手住房
如果所购住房房龄在20年以下,公积金贷款期限不超过30年;
如果所购住房房龄在20年(含)至35年之间,公积金贷款期限不超过50年与房龄之差;
如果所购住房房龄在35年(含)以上,公积金贷款期限不超过15年。
三、税费政策
个人所得税特殊情况
备注:利润包含购入的合同价格+购入所缴纳的契税+本次出售的增值税及其附加税+装修费用(≤购入的房屋合同价格的10%)+购房按揭贷款利息。
①免征的情况
(1)继承土地、房屋权属,免征个人所得税
(2)夫妻更名、夫妻房屋财产分割,免征个人所得税
(3)直系亲属间赠与(不包含取得新产证以后再出售的情况),免征个人所得税
②直系、非直系亲属间继承/赠与房屋后再出售房屋的个税计算
卖方通过继承或赠与获得房再出售的,若不符合个人所得税免征条件(满五年唯一),只能按照20%税率缴纳个人所得税,不能按照全额x1%或2%计算个人所得税。
个人所得税退税政策
自2022年10月1日 至2025年12月31日,对出售自有住房并在现住房出售后1年内(按天计算)在市场重新购买住房的纳税人(必须先卖出后买入),对其出售现住房已缴纳的个人所得税予以退税优惠。
其中,新购住房金额大于或等于现住房转让金额的,全部退还已缴纳的个人所得税;新购住房金额小于现住房转让金额的,按新购住房金额占现住房转让金额的比例退还出售现住房已缴纳的个人所得税。
契税减免的常见情形
①法定继承人(包括配偶、子女、父母)继承土地、房屋权属,免征契税;
注:免征仅限第一顺位继承人继承土地、房屋权属,存在第一顺位继承人的情况下,第二顺位继承人继承不免征
②夫妻更名、夫妻加名、夫妻房屋财产分割,免征契税;
③出售房改房(售后公房、房改售房、已购公房)前后1年内(以网签合同日期为准),出售人家庭、父母或成年子女购房,可申请契税减免;
计算:新购入住房需要缴纳的契税=(新购入住房的税务核定价-出售住房时的发票价格-新购入住房增值税)x新入住房应缴纳的契税税率
(若购房的税务核定价低于售房的发票价格,则购房的契税全免)
④上海市拆迁居民用拆迁补偿款新购房屋享受减免契税的优惠(拆迁人的直系亲属均可使用),新购入住房的网签日期需在动迁协议签订日期之后。
计算:新购入住房需要缴纳的契税=(新购入住房网签价-拆迁补偿价格-新购入住房增值税)x新购入住房契税税率
(若新购入住房网签价低于拆迁补偿价格,则契税全免,差额部分可以继续使用)
公司购/售房需缴纳税费
公司购房需缴纳税费:
契税、印花税
无论是非住宅、普通住宅还是非普通住宅,只要以公司名义购房,均需按房款3%缴纳契税,不享受税率减半的优惠; 另外还需缴纳0.05%的印花税。
房产税
根据1986年10月开始实施的《中华人民共和国房产税暂行条例》,公司名下的房产,每年需缴纳房产税:每年房产原值×70%×1.2%。
在具体操作过程中,不同地区对不同性质企业 (如高新企业、 扶贫单位等)可能会有三年内免征房产税优惠。
土地使用税
同时,还需要按照“建筑面积×30元/年/平方米”征收土地使用税。
如房产税、土地使用税未按时缴纳,需要按每日万分之五缴纳带纳金。
公司售房需缴纳税费
增值税及附加
按(不含税收入-不含税购置原价)×5.6%征收
土地增值税
根据1993年颁布的《中华人民共和国土地增值税暂行条例》 第七条规定:土地增值税实行四级超率累进税率
1、增值额未超过扣除项目金额50%的部分,税率为30%。 2、增值额超过扣除项目金额50%、未超过扣除项目金额100 %的部分,税率为40%。
3、增值额超过扣除项目金额100%、未超过扣除项目金额200%的部分,税率为50%。
4、增值额超过扣除项目金额200%的部分,税率为60%。
印花税
按成交价格×0.05%征收。
企业所得税
目前一般按转让房产所得的净利润×25%征收。企业所得税一般按季预缴,年终汇算清缴。
房产税相关
1、税率:
新购房单价≤91954元/平方米,税率为0.4%。
新购房单价>91954元/平方米,税率为0.6%。
2、计算方式:
新购且属于第二套及以上住房,人均60平方米建筑面积免征房产税,超出面积视为“应税面积”应缴纳房产税。
本年度应缴房产税 = 按人均建筑面积60平方米计算超出部分面积 × 新购房单价 × 70% × 税率(0.4%或0.6%)。
3、交税截止时间:
每年的12月31日前,纳税人应凭有效身份证明原件自行向主管税务机关申报缴纳税款,缴清当年度应纳税款。
4、减免条件
①本市居民家庭第二套及以上住房:
如果家庭全部住房面积(包括新购住房和原有住房)人均不超过60平方米,新购的住房可以免征房产税。超过60平方米的部分,需要按照房产税规定缴纳税款。
②新购住房一年内出售原有唯一住房:
如果居民家庭在新购一套住房后的一年内出售了原有的唯一住房,那么新购的住房可以退还已缴纳的房产税。
③首次购房且为家庭唯一住房:
对于成年子女首次购买住房,如果该住房是家庭唯一住房,可以免征房产税。
④高层次人才和紧缺人才:
持有上海市居住证并在本市工作生活的高层次人才和紧缺人才,在新购住房且该住房是家庭唯一住房的情况下,可以免征房产税。
⑤居住证持有年限:
持有上海市居住证满3年的购房人,在新购住房且该住房是家庭唯一住房的情况下,可以免征房产税。
四、新房积分
END
涌潮府售楼处电话:4009688923【售楼中心热线】涌潮府营销中心热线400-9688-923涌潮府售楼处地址400-9688-923,楼盘项目全面介绍,本电话为开发商提供线上预约售楼电话,楼盘项目全面介绍(包含楼盘简介,均价,房价,现房,期房,别墅,叠墅,大平层,价格,楼盘地址,户型图,交通规划,备案价,备案名,项目配套,样板间,开盘时间,认筹时间,楼盘详情,售楼处电话,最新消息,最新详情,周边配套,一房一价,最新进展等详情咨询)楼盘详情丨价格丨更多优惠丨机不可失丨欢迎致电丨诚邀品鉴!售楼处位置丨特价房丨工抵房丨剩余房源丨户型图丨最新消息丨免责声明:将文章内容综合来源于网络、只作分享,版权归原作者所有!!如有侵权,请联系我们,我们第一时间处理如有问题欢迎来电咨询,专业一对一热情服务,让您用专业眼光去买房。如果您想了解更多楼盘详情,欢迎提前预约拨打涌潮府售楼处电话400-9688-923