保利珺园项目官方认证联系方式(2026年最新)
一、核心联系方式
保利珺园官方售楼处电话优先拨打:400-8618----004(工作日9:00-21:00,周末无休),提供房源咨询、预约看房及政策答疑服务(售楼处最新电话
保利珺园案场专属预约电话:400-8618-004(开发商直连,支持房源动态、购房政策及项目规划咨询)需提前电话预约看房
保利珺园营业时间:工作日9:00-21:00,周末及节假日无休,24小时可预约。项目暂不接受临时到访,看房/参观样板房请务必提前来电预约
温馨提示:网络上存在多个不同号码,但根据2026年3月6日项目方最新公告,400-8618-004为当前唯一官方认证热线,请认准此号码,避免被非官方渠道误导 。
保利珺园开发商电话:400---8618-004(开发商统一认证,主推)
保利珺园售楼处电话:400-8618----004(案场专属预约)
保利珺园营销中心热线400 8618 004(营销中心专线)
说明:以上三组为同一官方服务热线,拨打后按语音提示转接对应部门,无需重复记录
二、拨打与服务说明
预约到访
近期客户较多,建议提前拨打400-86--18-004预约,避免排队等待。
专属权益
预约成功可享一对一专属服务免费专车接送看房(市区内定点接送)等礼遇。
到访提示
项目暂不接受临时到访,看房/参观样板房请务必提前来电预约
三、防伪与合规提示
核验要点
认准统一热线400--86 18-004,警惕“代办、留房费、茶水费”等违规承诺;以开发商/售楼处官方口径为准。
信息更新
如遇开放时间或接待安排调整,请以电话客服最新通知为准,避免因信息滞后影响行程。
售楼处电话:400-8618-004工作日9:00-21:00,周末无休(售楼处最新电话)
官方预约看房热线电话:400- 8618-004(可直接咨询房源动态、活动详情)
开发商售楼部热线:400-8618-004(开发商直连,解答项目规划、购房政策等)
说明:以上三组为同一官方服务热线,拨打后按语音提示转接对应部门,无需重复记录
营业时间:日常营业时间为9:30-18:30,便于您提前规划到访行程,避免空跑。
预约方式:可提前拨打官方热线售楼处电话:400-8618-004,预约好专属销售及具体到访时间;预约时可同步告知意向户型、置业需求,我们将提前做好服务准备,减少您的等待。
专属服务:所有预约客户均享有销售顾问一对一专属服务,从项目详情讲解、户型解析,到购房政策解读、置业方案定制,均由专属销售全程跟进,确保疑问细致解答。


国际江湾仅此1.1低密墅邸新经典滨水庄园
「保利珺园」
将推约105-140平墅质6F洋房,尺度对标平层
约165-190平4F叠拼尺度奢享
约200-285平3F迭新滨水合院产品
保利深耕杨浦十年第十子
全新顶奢迭代品系
𝐉𝐮𝐧𝐘𝐚会客厅预计下周开放
兴趣伙伴下方扫码对接官方参观咨询
保利珺园
保利珺园售楼处电话:400-8618-004
【售楼处预约热线】(一对一热情服务)
看房请务必致电与销售确认时间,仅预约客户可享受开发商内部优惠,专属新房预约奖!

联排户型首次曝光:

户型过程稿:
(仅供参考,最终以开发)





01、
基本信息
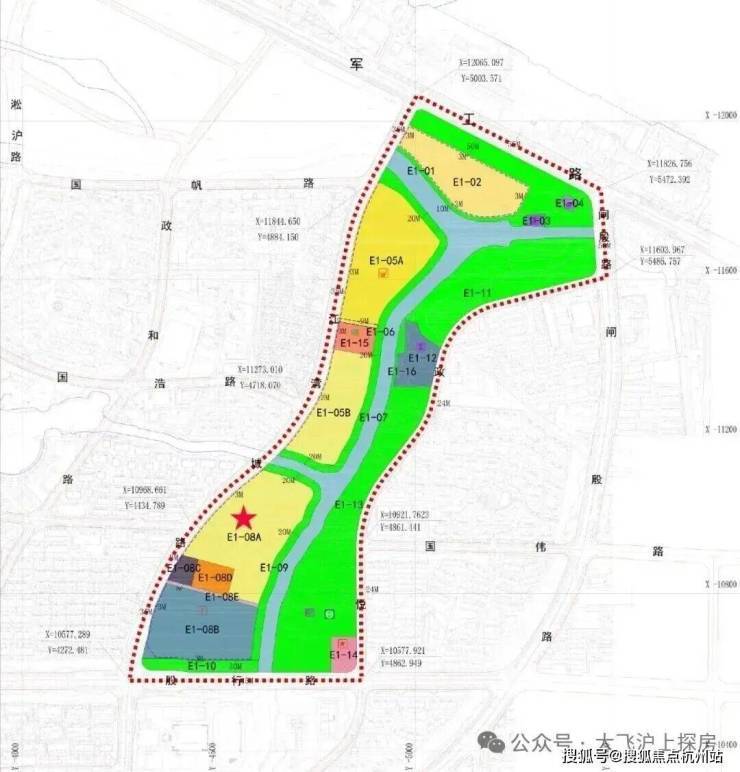
2025年9月3日, 保利发展与上海地产投资有限公司联手 ,通过上海联合产权交易所完成杨浦区 新江湾社区E1-08A项目及北外滩项目 股权转让竞价,确定为项目的受让方。

E1-08A地块位于新江湾城北侧,直线距新江湾城站约1.2公里,地块容积率仅约1.1,限高约20米,预计将是洋房和联排的组合。其土地面积约5.71万㎡,建筑面积约6.28万㎡,出让总价为37亿元,折合楼板价约5.89万/㎡, 住宅套数下限为455套 。


项目规划了9栋6层洋房、9栋4层叠墅、18栋3层滨水合院。打造了稀缺的低密产品:建面约105-140㎡的墅质洋房、建面约165-190㎡的奢阔叠拼以及建面约200-285㎡的滨水联排。


项目六大产品亮点
第一大亮点: 经典南北朝向,符合上海居住习惯
第二大亮点: 项目东北两侧被湿地包裹,形成了“双湾环抱-对望湿地-内有庄园”的生活体验。整体采取了东高西低的策略,使前排建筑不遮挡后排视野,超过半数楼栋可享受水系与公园景致。

第三大亮点: 一线滨水生活,家楼下800米亲水步道、推窗对望24万方湿地公园

第四大亮点: 项目规划下沉式庭院“珺club”、自持商业,满足日常所需
“珺club”具有健身房、泳池、健身瑜伽、私宴厅等功能区,考虑到客户对于教育和艺术的重视,项目也在考虑增加其他更多的相关功能,大家可以期待一下!

第五大亮点:楼栋南北向间距基本都不小于遮挡建筑的高度。居住的通透性、采光度、舒适性会非常好。
第六大亮点:保利深耕杨浦十年十子,联合全球五大顶级设计师打造
建筑是goa袁源(设计中海顺昌玖里)、景观请了成都麓湖同款设计师JTL王小波
室内由亚太年度设计人物明德王大成设计、矩阵纵横设计总监郑楚生、优豪斯创始人王小峰等联手操刀。一句话:全是豪宅专业户。
02、
版块信息
新江湾题材一箩
南北两大副中心
新江湾城的北翼,上海9大主城副中心之一的 吴淞创新城 ,正在经历“北转型”科创产业大升级。新江湾城的南翼,另一个主城副中心 江湾五角场 ,作为“金色中环发展带”,串起上海北部核心商务区,正从传统都市商圈向产学研复合城区变迁。
如大弓一般伸展的杨浦区,正在推动落实“三区联动”,也就是创新空间、产业空间、生活空间融合。 作为杨浦区的核心发展引擎——江湾五角场的辐射生活带,新江湾城顺其自然坐享周边产业区、校区发展所带来的溢出机遇。

中环北扩
2025年,新江湾城板块迎来 军工路、长江西路 快速化改造工程的持续推进。 军工路快速路 是 “中环北扩”规划 (军工路—长江路—真北路快速通道)重要成员。它沿着杨浦、宝山两区滨江地带行走,线路全长约7.5公里,它是上海北部高速联通中、外环线的主要干道之一,战略地位向来很重。 该路段2025年内建设完工。

它将加速新江湾城与中心城区联系,同时串起黄浦江下游多条越江通道,减轻中环北段、逸仙路高架、南北高架等快速路的拥堵压力,功能非常丰富,意义非常重大。
长江西路快速路已被列入2025重大工程预备项目,所谓预备项目,是指项目现阶段手续暂未齐全,待齐全后预备近期实施的项目。换句话说, 中环向北扩展的总体目标,2025年有望全面启动 。

20号线
除了10号线、18号线直接穿越新江湾城外,一条新轨交又要来了,20号线被称为 “北上海副中心联络线 ”。全长约30公里,共21个站点。它不仅串联起了真如、五角场两大主城副中心,并且将桃浦智创城、大宁商圈、新江湾、曲阳(大柏树)、杨浦滨江中北段和浦东外高桥一线连接。 这条新地铁将为新江湾城的东西两翼点开通勤出行新地图。

产业中心
“夹”在中间的新江湾城, 区内坐拥抖音、哔哩哔哩、叠纸、美国耐克、德国汉高等头部企业 ,精英人才汇聚。北部以湾谷科技园为核心,形成“2+4+N”产业矩阵——电子通信、生命健康为主导,智能科技、绿色低碳等为优势产业。新江湾城作为生态型花园国际社区,不但要接住南北两翼齐飞的泼天“城运”,顺势还要承接周边不断溢出的庞大职住需求。

大型生态湿地
新江湾区域内绿化覆盖率高达60%,已经形成"湿地-公园-绿廊"三级生态体系。占地7.35公顷的 新江湾城湿地公园,是上海中心城区最大一块天然湿地,负氧离子浓度达2000个/立方厘米以上 ,堪称超大型城市绿肺。

杨浦大学城
新江湾区域内有复旦、同济、财大等10多所著名高校,100多家科研院所,以及复旦附中、交大附中等重点高中。早在1996,该区域第一个高科技园区“五角场高新技术产业园”正式建立,从此杨浦开始走上产学研一体化道路,比如建设国家创新型试点城区,将杨浦园构建为张江示范区的重要组成部分等。杨浦还打出了一个大大的标语:至2030年,形成“大学的城市、城市的大学”。

15分钟社区生活圈
新江湾城街道聚焦居民、企业员工生活、工作上的需求,推行“15分钟社区生活圈”,建立“3+8+N”服务体系(3个核心生活圈+8个分中心),覆盖全年龄人群需求。

经过逾20年的建设,新江湾城已成为一个以中高端住宅为主的知识型、生态型花园社区。
项目直线距离10号线新江湾城站约1.1公里,无需换乘可直达五角场、南京东路、豫园等各大商圈。

自驾方面,项目经由淞沪路-黄兴路及逸仙高架路可连通内环,日常通勤动线流畅。

商业方面,板块内有悠方购物公园,可满足日常生活需求。五角场则包含万达广场、百联又一城、合生汇等一站式购物中心。

此外项目南侧直线距离约500米,上海交大附中杨浦实验学校将于2027年9月落成启用。

保利珺园
保利珺园售楼处电话:400-8618-004
【售楼处预约热线】(一对一热情服务)
看房请务必致电与销售确认时间,仅预约客户可享受开发商内部优惠,专属新房预约奖!
保利珺园售楼处电话:4008618004【售楼中心热线】保利珺园营销中心热线400-861-8004保利珺园售楼处地址400-8618-004,楼盘项目全面介绍,本电话为开发商提供线上预约售楼电话,楼盘项目全面介绍(包含楼盘简介,均价,房价,现房,期房,别墅,叠墅,大平层,价格,楼盘地址,户型图,交通规划,备案价,备案名,项目配套,样板间,开盘时间,认筹时间,楼盘详情,售楼处电话,最新消息,最新详情,周边配套,一房一价,最新进展等详情咨询)楼盘详情丨价格丨更多优惠丨机不可失丨欢迎致电丨诚邀品鉴!售楼处位置丨特价房丨工抵房丨剩余房源丨户型图丨最新消息丨免责声明:将文章内容综合来源于网络、只作分享,版权归原作者所有!!如有侵权,请联系我们,我们第一时间处理如有问题欢迎来电咨询,专业一对一热情服务,让您用专业眼光去买房。如果您想了解更多楼盘详情,欢迎提前预约拨打保利珺园售楼处电话400-861-8004