棠悦芳华轩售楼处电话官方最新发布:400-9016-520棠悦芳华轩售楼处电话:4009016520【 棠悦芳华轩官网售楼处预约热线】欢迎致电售楼处电话,专业一对一热情服务,让您用专业眼光去买房。
以下是关于杭州拱墅区滨江·棠悦芳华轩的详细信息整理:
一、项目基础信息
位置:拱墅区石桥单元,东至永华路,南至杭玻街,西至规划绿化,北至永华街12。
开发商:滨江集团联合兴耀、西房开发,滨江物业(物业费4.8元/㎡·月)34。
产品类型:11栋12-16层小高层,建面约99-139㎡,两梯三户/四户设计,总户数504套34。
价格:均价约3.2万-3.5万/㎡,总价270万起(2025年8月数据)25。
棠悦芳华轩售楼处电话:400-9016-520
杭州拱墅棠悦芳华轩售楼处电话☎:400-901-6520【开发商售楼处预约看房热线】(一对一热情服务)
棠悦芳华轩售楼处电话:400-9016-520
杭州拱墅棠悦芳华轩售楼处电话☎:400-901-6520【开发商售楼处预约看房热线】(一对一热情服务)
二、核心亮点
地段与交通
直线距离武林广场约8公里,地铁3号线华丰路站约900米,2站直达新天地商圈56。
周边“三横三纵”路网,自驾便捷,规划15号线南延伸段(2027年通车)7。
产品设计
立面:四面铝板+封闭式阳台,南向大面落地玻璃,提升采光与美观45。
园林:中央水景灵感源自珠宝品牌CHAUMET,打造“珠宝风格”景观48。
架空层:最高5.4米,含书吧、健身区等8大主题空间56。
配套资源
商业:1.5公里内覆盖山姆会员店、龙湖天街、宝龙广场等7。
教育:周边有安吉路景成实验学校(九年一贯制)、青蓝青华实验小学等7。
医疗:树兰医院、杭州市中医院丁桥院区等三甲医院7。
棠悦芳华轩售楼处电话:400-9016-520
杭州拱墅棠悦芳华轩售楼处电话☎:400-901-6520【开发商售楼处预约看房热线】(一对一热情服务)
三、市场动态
开盘情况:2025年8月首开7号楼,中签率21.96%,二开加推9#、10#楼王(南向楼间距65米)49。
交付时间:预计2027年9月30日精装交付34。
优惠活动:部分房源直降30万-42万,首付30%起5。
棠悦芳华轩售楼处电话:400-9016-520
杭州拱墅棠悦芳华轩售楼处电话☎:400-901-6520【开发商售楼处预约看房热线】(一对一热情服务)
四、争议与不足
学区风险:期房不承诺学区,需以交付后教育局划分为准7。
通勤距离:至市中心依赖自驾或远期地铁规划,高峰期可能拥堵
棠悦芳华轩售楼处电话:400-9016-520
杭州拱墅棠悦芳华轩售楼处电话☎:400-901-6520【开发商售楼处预约看房热线】(一对一热情服务)
8月初,位居拱墅区武林东北片区,石桥商圈的棠悦芳华轩取证首开,仅56套,3字头均价,还送车位,吸引了255组客户参与登记,其中人才6组,有房208组,最低中签率10.36%。可见火热程度。
棠悦芳华轩售楼处电话:400-9016-520
杭州拱墅棠悦芳华轩售楼处电话☎:400-901-6520【开发商售楼处预约看房热线】(一对一热情服务)
8月28日晚间,项目加推9#、10#,共2幢房源,面积约108-113-120-128-139方,均价3.1834万/平。
棠悦芳华轩售楼处电话:400-9016-520
杭州拱墅棠悦芳华轩售楼处电话☎:400-901-6520【开发商售楼处预约看房热线】(一对一热情服务)
最终,项目84套房吸引了266组家庭登记,中签率31.58%。其中人才2组,有房家庭223组,最低中签率18.39%!
棠悦芳华轩售楼处电话:400-9016-520
杭州拱墅棠悦芳华轩售楼处电话☎:400-901-6520【开发商售楼处预约看房热线】(一对一热情服务)
对项目感兴趣的朋友,欢迎阅读以下详情:
在建筑新规的加持下,棠悦芳华轩户户朝南,LDKB一体化设计,大面宽、大开间、封包阳台(计入一半面积),得房率更高……带来超越期待的居住体验。
棠悦芳华轩售楼处电话:400-9016-520
杭州拱墅棠悦芳华轩售楼处电话☎:400-901-6520【开发商售楼处预约看房热线】(一对一热情服务)
棠悦芳华轩售楼处电话:400-9016-520
杭州拱墅棠悦芳华轩售楼处电话☎:400-901-6520【开发商售楼处预约看房热线】(一对一热情服务)
棠悦芳华轩售楼处电话:400-9016-520
杭州拱墅棠悦芳华轩售楼处电话☎:400-901-6520【开发商售楼处预约看房热线】(一对一热情服务)
棠悦芳华轩售楼处电话:400-9016-520
杭州拱墅棠悦芳华轩售楼处电话☎:400-901-6520【开发商售楼处预约看房热线】(一对一热情服务)
棠悦芳华轩售楼处电话:400-9016-520
杭州拱墅棠悦芳华轩售楼处电话☎:400-901-6520【开发商售楼处预约看房热线】(一对一热情服务)
棠悦芳华轩售楼处电话:400-9016-520
杭州拱墅棠悦芳华轩售楼处电话☎:400-901-6520【开发商售楼处预约看房热线】(一对一热情服务)
棠悦芳华轩售楼处电话:400-9016-520
杭州拱墅棠悦芳华轩售楼处电话☎:400-901-6520【开发商售楼处预约看房热线】(一对一热情服务)
棠悦芳华轩售楼处电话:400-9016-520
杭州拱墅棠悦芳华轩售楼处电话☎:400-901-6520【开发商售楼处预约看房热线】(一对一热情服务)
建面约120方四房两卫户型
棠悦芳华轩售楼处电话:400-9016-520
杭州拱墅棠悦芳华轩售楼处电话☎:400-901-6520【开发商售楼处预约看房热线】(一对一热情服务)
得益于板式楼型和边套的设计,建面约120方户型实现了L型双边自然采光,同时拥有双向的通风对流优势。
同时,双厅一体化,铺展约6.3米大飘窗,不浪费一点过道,增加了不少家人社交共融场景;南向套房主卧,独立卫浴间+飘窗,居住舒适度更进一步。
建面约120方户型效果展示间视频:
棠悦芳华轩售楼处电话:400-9016-520
杭州拱墅棠悦芳华轩售楼处电话☎:400-901-6520【开发商售楼处预约看房热线】(一对一热情服务)
建面约128方四房两卫户型
棠悦芳华轩售楼处电话:400-9016-520
杭州拱墅棠悦芳华轩售楼处电话☎:400-901-6520【开发商售楼处预约看房热线】(一对一热情服务)
此宽境四房,既满足居住功能性,又有舒适的居住空间。三卧室+客厅,四开间朝南,享受约13.5米阔绰大面宽;灵活可变3+1房,契合三代同堂居住需求;U型厨房动线顺畅,一体化双厅,足以让家人欢聚一堂;小家化主卧套房,舒适感触手可及。
毫不讳言,这个户型功能多样性几乎与市面上约150方奢级空间尺度同款,一眼心动。
建面约128方户型效果展示间视频:
棠悦芳华轩售楼处电话:400-9016-520
杭州拱墅棠悦芳华轩售楼处电话☎:400-901-6520【开发商售楼处预约看房热线】(一对一热情服务)
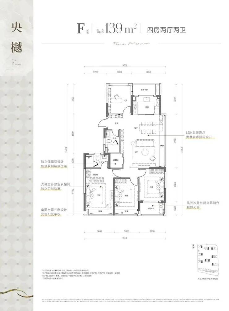
建面约139方四房两卫户型
棠悦芳华轩售楼处电话:400-9016-520
杭州拱墅棠悦芳华轩售楼处电话☎:400-901-6520【开发商售楼处预约看房热线】(一对一热情服务)
该边套户型,不仅有270度的采光视野,主/次/客卧三大开间并立朝南,“含阳光量”十足。
南面房间飘窗/阳台设计,充分延伸空间尺度,超宽超大横厅带独立玄关和独立储藏室空间,兼顾大空间尺度、舒适体感和全周期灵动布局,实现了居住价值的真正回归。
这款作为置换买家心仪的房型,以旧换新,以小换大,一次置换即可“无后顾之忧”,生活品质和资产双升舱。
棠悦芳华轩售楼处电话:400-9016-520
杭州拱墅棠悦芳华轩售楼处电话☎:400-901-6520【开发商售楼处预约看房热线】(一对一热情服务)
建面约139方户型效果展示间视频:
室内装修目前呈现了香奈儿、奶油风、现代雅奢等三种风格。
新风、地暖、中央空调三大件,客厅岩板背景墙,主卧背景墙以及全屋墙纸(不含阳台);主卫&次卫都采用智能马桶;厨房方太三件套(侧式吸油烟机、三眼灶、洗碗机),以及多功能大单槽、凉霸,还有一整面的橱柜!如此扎实的装标,想不心动都难。(最终以商品房买卖合同为准)
棠悦芳华轩售楼处电话:400-9016-520
杭州拱墅棠悦芳华轩售楼处电话☎:400-901-6520【开发商售楼处预约看房热线】(一对一热情服务)
棠悦芳华轩售楼处电话:400-9016-520
杭州拱墅棠悦芳华轩售楼处电话☎:400-901-6520【开发商售楼处预约看房热线】(一对一热情服务)
棠悦芳华轩售楼处电话:400-9016-520
杭州拱墅棠悦芳华轩售楼处电话☎:400-901-6520【开发商售楼处预约看房热线】(一对一热情服务)
棠悦芳华轩售楼处电话:400-9016-520
杭州拱墅棠悦芳华轩售楼处电话☎:400-901-6520【开发商售楼处预约看房热线】(一对一热情服务)
棠悦芳华轩售楼处电话:400-9016-520
杭州拱墅棠悦芳华轩售楼处电话☎:400-901-6520【开发商售楼处预约看房热线】(一对一热情服务)
棠悦芳华轩售楼处电话:400-9016-520
杭州拱墅棠悦芳华轩售楼处电话☎:400-901-6520【开发商售楼处预约看房热线】(一对一热情服务)
棠悦芳华轩售楼处电话:400-9016-520
杭州拱墅棠悦芳华轩售楼处电话☎:400-901-6520【开发商售楼处预约看房热线】(一对一热情服务)
棠悦芳华轩售楼处电话:400-9016-520
杭州拱墅棠悦芳华轩售楼处电话☎:400-901-6520【开发商售楼处预约看房热线】(一对一热情服务)
棠悦芳华轩售楼处电话:400-9016-520
杭州拱墅棠悦芳华轩售楼处电话☎:400-901-6520【开发商售楼处预约看房热线】(一对一热情服务)
棠悦芳华轩售楼处电话:400-9016-520
杭州拱墅棠悦芳华轩售楼处电话☎:400-901-6520【开发商售楼处预约看房热线】(一对一热情服务)
棠悦芳华轩售楼处电话:400-9016-520
杭州拱墅棠悦芳华轩售楼处电话☎:400-901-6520【开发商售楼处预约看房热线】(一对一热情服务)
棠悦芳华轩售楼处电话:400-9016-520
杭州拱墅棠悦芳华轩售楼处电话☎:400-901-6520【开发商售楼处预约看房热线】(一对一热情服务)
棠悦芳华轩售楼处电话:400-9016-520
杭州拱墅棠悦芳华轩售楼处电话☎:400-901-6520【开发商售楼处预约看房热线】(一对一热情服务)
棠悦芳华轩售楼处电话:400-9016-520
杭州拱墅棠悦芳华轩售楼处电话☎:400-901-6520【开发商售楼处预约看房热线】(一对一热情服务)
棠悦芳华轩售楼处电话:400-9016-520
杭州拱墅棠悦芳华轩售楼处电话☎:400-901-6520【开发商售楼处预约看房热线】(一对一热情服务)
棠悦芳华轩售楼处电话:400-9016-520
杭州拱墅棠悦芳华轩售楼处电话☎:400-901-6520【开发商售楼处预约看房热线】(一对一热情服务)
棠悦芳华轩售楼处电话:400-9016-520
杭州拱墅棠悦芳华轩售楼处电话☎:400-901-6520【开发商售楼处预约看房热线】(一对一热情服务)
棠悦芳华轩售楼处电话:400-9016-520
杭州拱墅棠悦芳华轩售楼处电话☎:400-901-6520【开发商售楼处预约看房热线】(一对一热情服务)
棠悦芳华轩售楼处电话:400-9016-520
杭州拱墅棠悦芳华轩售楼处电话☎:400-901-6520【开发商售楼处预约看房热线】(一对一热情服务)
棠悦芳华轩售楼处电话:400-9016-520
杭州拱墅棠悦芳华轩售楼处电话☎:400-901-6520【开发商售楼处预约看房热线】(一对一热情服务)
棠悦芳华轩售楼处电话:400-9016-520
杭州拱墅棠悦芳华轩售楼处电话☎:400-901-6520【开发商售楼处预约看房热线】(一对一热情服务)
棠悦芳华轩售楼处电话:400-9016-520
杭州拱墅棠悦芳华轩售楼处电话☎:400-901-6520【开发商售楼处预约看房热线】(一对一热情服务)
棠悦芳华轩售楼处电话:400-9016-520
杭州拱墅棠悦芳华轩售楼处电话☎:400-901-6520【开发商售楼处预约看房热线】(一对一热情服务)
棠悦芳华轩售楼处电话:400-9016-520
杭州拱墅棠悦芳华轩售楼处电话☎:400-901-6520【开发商售楼处预约看房热线】(一对一热情服务)
棠悦芳华轩售楼处电话:400-9016-520
杭州拱墅棠悦芳华轩售楼处电话☎:400-901-6520【开发商售楼处预约看房热线】(一对一热情服务)
滨江棠悦芳华的分析结果是这样:计算已考虑周边所有建筑的影响,结果表明由于周边规划尚未公示,暂且不建,楼栋仅受地块内部影响。(说明:本文日照数据基于公示规划图纸文件,使用专业制作工具完成,仅供参考)
棠悦芳华轩售楼处电话:400-9016-520
杭州拱墅棠悦芳华轩售楼处电话☎:400-901-6520【开发商售楼处预约看房热线】(一对一热情服务)
棠悦芳华轩售楼处电话:400-9016-520
杭州拱墅棠悦芳华轩售楼处电话☎:400-901-6520【开发商售楼处预约看房热线】(一对一热情服务)

春秋季:9#采光优异几乎不存在遮挡。10#低层受遮挡。就具体遮挡时间而言,10#主要在下午受8#遮挡。
棠悦芳华轩售楼处电话:400-9016-520
杭州拱墅棠悦芳华轩售楼处电话☎:400-901-6520【开发商售楼处预约看房热线】(一对一热情服务)

棠悦芳华轩售楼处电话:400-9016-520
杭州拱墅棠悦芳华轩售楼处电话☎:400-901-6520【开发商售楼处预约看房热线】(一对一热情服务)
夏季:楼栋朝向正南采光优异。9#低层受遮挡。就具体遮挡时间而言,9#主要在上午受10#遮挡。
棠悦芳华轩售楼处电话:400-9016-520
杭州拱墅棠悦芳华轩售楼处电话☎:400-901-6520【开发商售楼处预约看房热线】(一对一热情服务)

冬季:9#10#低层受遮挡。就具体遮挡时间而言,9#除傍晚外其余时间段均受遮挡。10#主要在上午和下午受7#8#遮挡。
棠悦芳华轩售楼处电话:400-9016-520
杭州拱墅棠悦芳华轩售楼处电话☎:400-901-6520【开发商售楼处预约看房热线】(一对一热情服务)
站在棠悦芳华轩的社区大门前,你第一眼就能感受到强大的归家气场。
棠悦芳华轩售楼处电话:400-9016-520
杭州拱墅棠悦芳华轩售楼处电话☎:400-901-6520【开发商售楼处预约看房热线】(一对一热情服务)
通过精细拉槽的石材与仿铜不锈钢的巧妙组合,加上世界名表伯爵旗舰店同款宝石蓝釉面陶板、灵动曲面的造型……刷新板块的认知。
穿门而入,迎宾水院的风景很美,曲径通幽,步移景异。更亮眼的还有异形“蓝宝石”戏水池。
数百种大小乔木、灌木和各色花卉,环绕在周边。还有卡座,是邻里休闲、聚会放松的社区会客厅,未来,可以一边谈天说地,一边欣赏自然美景。
棠悦芳华轩售楼处电话:400-9016-520
杭州拱墅棠悦芳华轩售楼处电话☎:400-901-6520【开发商售楼处预约看房热线】(一对一热情服务)
站在休闲观景台上,脚下是绿意蔓延的园林,耳畔是潺潺流水私语,目之所及是天光云影的交响。
棠悦芳华轩售楼处电话:400-9016-520
杭州拱墅棠悦芳华轩售楼处电话☎:400-901-6520【开发商售楼处预约看房热线】(一对一热情服务)
同时,部分架空层规划层高约5.4米,比一般楼盘都要高,并规划打造7大主题空间,无论是沉浸书海的知识遨游,还是亲子的高阶版奈尔宝式童玩区,亦或是长者畅聊对弈、赏画品字,这样丰富的日常生活,不出小区就能轻松达成。
棠悦芳华轩售楼处电话:400-9016-520
杭州拱墅棠悦芳华轩售楼处电话☎:400-901-6520【开发商售楼处预约看房热线】(一对一热情服务)
棠悦芳华轩售楼处电话:400-9016-520
杭州拱墅棠悦芳华轩售楼处电话☎:400-901-6520【开发商售楼处预约看房热线】(一对一热情服务)
但凡看过棠悦芳华轩的朋友,会注意到项目的入户单元门、电梯公区等都藏着很多奢雅的细节,诸如各类岩板、石材、铝板等高浓度运用,瞬间提升了空间的档次。
棠悦芳华轩售楼处电话:400-9016-520
杭州拱墅棠悦芳华轩售楼处电话☎:400-901-6520【开发商售楼处预约看房热线】(一对一热情服务)
买房人关心的立面,项目则采用四面铝板,辅以斜切工艺,勾勒挺拔向上的建筑气质,“折叠屏”的立面,别具美感,极具辨识度。(外立面材质以商品房买卖合同约定为准)
棠悦芳华轩售楼处电话:400-9016-520
杭州拱墅棠悦芳华轩售楼处电话☎:400-901-6520【开发商售楼处预约看房热线】(一对一热情服务)
棠悦芳华轩位于市中心武林东北角宝藏片区,这一片撑起了杭州亚运电竞中心、电竞数娱小镇、杭汽轮文旅综合体(规划)等产业脊梁,同时,紧邻“杭州夜经济”样板新天地。
棠悦芳华轩售楼处电话:400-9016-520
杭州拱墅棠悦芳华轩售楼处电话☎:400-901-6520【开发商售楼处预约看房热线】(一对一热情服务)
交通畅达全城
项目距离地铁3号线华丰路站直线距离约900米,1站拱墅吾悦广场、2站新天地商圈、8站武林商圈,通过换乘、轻松触达全城。自驾的话,紧邻秋石高架、留石高架,约六首歌的时间贯通武林、东站、钱新、奥体多个城市核心,对上班族相当友好。
商圈繁华似锦
周边有中大银泰城、新天地、龙湖天街、吾悦广场、山姆超市等六大商业综合体环绕,满足日常休闲娱乐的多样需求。
教育资源丰富
项目近邻九年一贯制安吉路景成实验学校、青蓝青华实验小学、求知小学、风华中学等环伺,覆盖幼小初的教育需求。(学校仅为周边信息展示,不做学区承诺,具体以教育部门相关政策为准)
棠悦芳华轩售楼处电话:400-9016-520
杭州拱墅棠悦芳华轩售楼处电话☎:400-901-6520【开发商售楼处预约看房热线】(一对一热情服务)
生活舒心宜居
还有市中院丁桥院区、树兰医院、桃花湖公园、北景园生态公园等各种生活配套。棠悦芳华轩售楼处电话:400-9016-520
杭州拱墅棠悦芳华轩售楼处电话☎:400-901-6520【开发商售楼处预约看房热线】(一对一热情服务)
棠悦芳华轩售楼处电话:400-9016-520
杭州拱墅棠悦芳华轩售楼处电话☎:400-901-6520【开发商售楼处预约看房热线】(一对一热情服务)
看房请提前致电预约,可享受内部渠道优惠!联系销售人员获取最新一房一价表,官方售楼处最新优惠底价!开发商官方销售人员将详细介绍每个户型的独特设计和优势,带您参观样板间,感受精装修的品质和温馨氛围。您还可以了解周边配套设施,包括高端购物中心、优质学校和便捷交通网络,让您的居住体验更加完美。
〓〓〓售楼中心—欢迎来电咨询〢—匠心钜制、恭迎品鉴!
➽➽➽售楼处直销【内部房源、内部优惠、真实有效】!
我们大多数都是普通人, 一辈子可能也就买一套或者两套房子,这是我们大半辈子奋斗来的成果,所以买房的时候千万不能踩雷入坑,不然就要多花钱,还会买到让自己后悔的房子。
如果你是第一次买房,那下面这些房产冷知识你一定要知道,避坑就是给自己省钱。
1、没有完全封闭的阳台,在计算面积时只算一半,完全封闭的阳台算全部面积;另外,飘窗一般为赠送。
2、人防车位的产权归人防办,所以不要听信销售或者中介说车位产权归你。
3、签了购房合同以后,一定要尽快办理网签备案,这样能够好的避免开发商一房多卖的情况出现,避免自己被坑。
4、小区的绿化率并不单纯的指绿化面积,而是整个小区的绿地率,很多一楼房子的庭院其实也是在绿化率内的。
5、有些城市的商贷转公积金能省不少钱,所以如果后期换工作给交金的话可以转换一下房贷方式。
6、看房子不要只看小区的地理位置和房子大小,还要看房子的户型图、小区规划图、单元平面图。
7、如果买房预算有限,刚需买房的话,最好选89㎡的小三房;因为90平是契税的分界线,90平以下的首套房可以少交契税;另外89平的小三房刚好够一家三代人暂时过度居住的,以后想转手也很方便。
8、如果是想买改善型住房,最好是140㎡以上才行,这样住着才舒服,才能算是“改善”。
9、刚需买房不要等攒够很多钱,只要能凑够首付就可以买了。
10、买房要看性价比,不能只看价格。
11、买房就是买配套,有价值的配套是学区、商场、医院、地铁公交、行政服务中心,低价值的假配套不要考虑比如飞机场、高铁站、游乐园。
12、如果预算有限买不了靠市区的房子,最好优先选近郊新区的房子,而不是远郊新区的房子,哪怕远郊的房子更大也不建议。
13、买房前要先做购房资格审核、查一下自己的征信和流水,有些人冲动交了首付或者不可退的定金后发现自己没有买房资格,那就亏大了。
14、在售楼处买新房的话,一定要确认付款收款账号是否是监管账号,这样万一开发商有问题可以提前发现,预防自己踩雷。
15、银行贷款合同要自己看,尤其是调息,要看是次年生效还是次月生效;以及提前还款的期限、提前还款是否有违约金等。
16、买房子不管是自住还是投资,一定要考虑房子的“流通性”,老城区的低价格的房子最好不要碰,不好流通。
17、没有规划、没有政策的洼地及其附近的房子尽量别碰,洼地的发展很缓慢,甚至可能永远是洼地。
18、如果你长期是在一二线城市工作,就最好不要回到五六线甚至是十八线的小县城买房子,不管有多便宜都不要买,县城的房子流通性上会比较差,毕竟年轻人都是往外跑了,县城里的“接盘侠”少了,房子就没有价值了,想卖都卖不出去。
19、不要买小产权的房子比如公寓和商铺,以后不好转手,想卖掉换刚需的话很困难。
20、首套房买的时候不要把预算浪费在豪华装修上,最好连车位都不要买,把这些钱省下来买个更好的地段,将来不管是转手还是放着,都会更有价值。
写在最后:
对于我们大多数人来说,我们没有随时换房子的底气,买一套房子少说要住上十几年甚至几十年,所以买房时一定要谨慎,避免踩雷,争取买到让自己满意的房子。