朗诗吴风和苑售楼处电话:400-8118-224
苏州-朗诗吴风和苑售楼处电话:400-8118-224

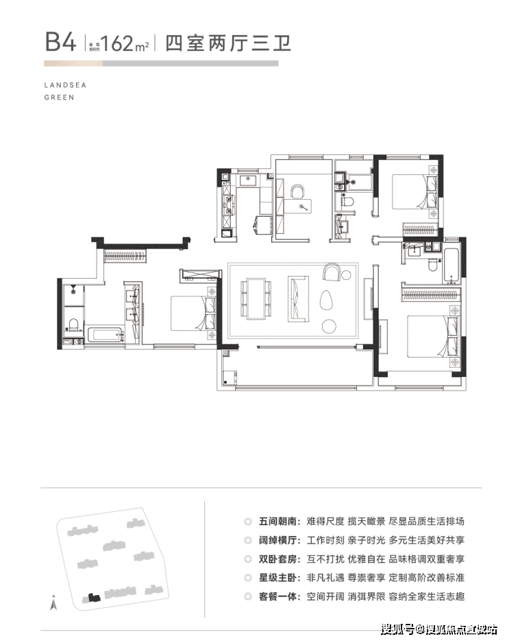
产品:14-18F小高层科技住宅
建面约123㎡、147㎡、168㎡
容积率:2.2
使用性质:住宅
营销中心:苏州工业园区宏恺路与群力路交汇处
真正触及生活方式的改变,才能称为“改善之作”.

朗诗地产,斜港置业联袂,着眼园区湖西进阶,于此合著全新迭代科技住宅样本“朗诗吴风和苑”,定标专属少数人的健康理想生活方式.
区位价值
园区高地执领繁华
园区湖西,作为经济与人才高度汇聚的区域之一,从不缺时代聚焦的目光与热度.以东方之门为主的众多写字楼,担纲起园区经济脊梁,同时融合周边核心商圈繁盛与活力,姑苏主城的人文与生活资源,共同编织属于苏州的国际高度繁华.

交通上面,地块东面靠近在建的7号线东兴路西站,7号线预计2024年开通,与小区交付时间可能相差并不久,算是个轨交盘.此外,地块距离3号线墅浦路北也在1公里之内.
自驾上面,北面有独墅湖大道,直通独墅湖高教区,西面则是东南环立交,不管是前往市区还是南面各板块也都比较方便.
商业上面,目前娄葑比较大的商业体就是双湖广场,已经投入使用,距离项目大约也在1公里.不过,地块东面是去年成交的商业地块,用地面积约1.1万平方米,总建筑面积约4.8万平方米,预计将会打造为东兴路邻里中心.
教育配套上,小区北面就是文萃小学和幼儿园,也是比较方便的.
从今年发布的娄葑南区东兴路以南片区更新研究、控规和城市设计来看,未来该板块整体规划为“独墅湖西岸追求理想生活的实践区”.
作为园区核心要地,娄葑南最新控规获批打造约218万方理想生活实践区.围绕通园路站点(轨交7号线)打造高密度商业综合体、城市公园、星级酒店、商务办公、约2.8万方和约2.3万方邻里中心,园区西部市民中心等设施.教育资源方面,新增2座幼儿园,1座9年一贯制学校,预留1座高中,加上优质产业资源引入,带动周边住宅品质和土地价值提升.

朗诗吴风和苑售楼处电话:400-8118-224
苏州-朗诗吴风和苑售楼处电话:400-8118-224





朗诗吴风和苑售楼处电话:400-8118-224
苏州-朗诗吴风和苑售楼处电话:400-8118-224


私密场域依旧保持静谧,黑白色基础上搭配了更多的色彩,例如深棕、浅紫等,艺术品的衬托深邃迷人,热络了家的氛围.


朗诗吴风和苑售楼处电话:400-8118-224
苏州-朗诗吴风和苑售楼处电话:400-8118-224


整个空间以静、雅、柔传达着家的精气神儿,黑白的交错,棱角的柔和,都是家的本色,都是极简的象征.

朗诗吴风和苑售楼处电话:400-8118-224