联仲都悦汇户型面积262-305平,总价1400万起 ,详情售楼处:400-870-6009【联仲都悦汇售楼中心】

项目名:联仲都悦汇
备案名:《联仲都悦汇》
售楼处:400-870-6009
楼盘地址:上海市上海市闵行区中秀路「联仲都悦汇售楼处」
项目简介:都市中式联排别墅
最新动态:火爆销售中
区域板块:闵行马桥
产品介绍:建面约262-205平,总价1400万起
商业配套:自有开发——旗忠别墅区正核心仅有约10万方 大型商业mall 。
项目由联美、仲盛携手打造,仲盛曾一手打造莘庄商业中心仲盛商业广场,未来商业mall业态非常值得期待。
周边学校:上海交大、华师大、复旦万科、马桥文莱、上海德威英国国际学校、上海德闳学校、上海斯代文森国际高中,周边顶级教育资源云集。
医疗配套:复旦大学附属第五人民医院、复旦大学附属闵行中心医院(三甲)、交大附属瑞金医院南院(规划中)。
生态休闲:
【养云安缦】国内房价最贵酒店,全国仅4座

【旗忠网球中心】亚洲最大ATP1000网球场地

【旗忠高尔夫俱乐部】18洞72杆国际锦标赛场地

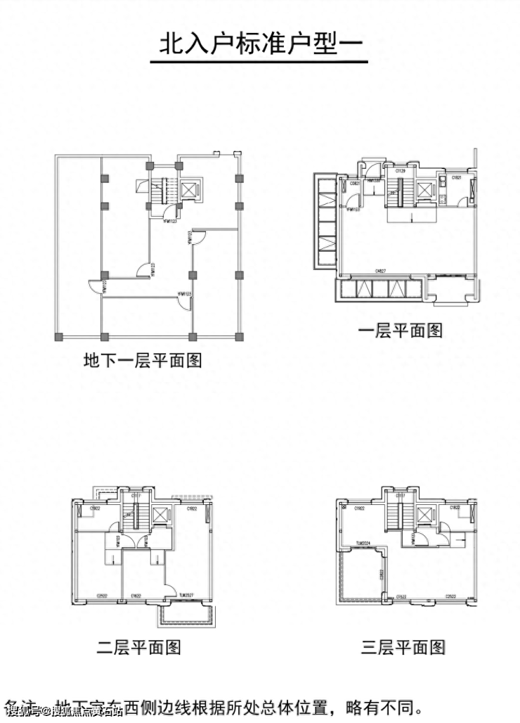
联仲都悦汇社区户型图





