兰香湖贰号别墅详情 - 上海房天下(附配套指南)

黄石楼市发布

2025-11-16 02:18:47

购房群

买房如何避坑,加入购房群,看看他们怎么说

立即进群

兰香湖2号位于闵行区紫竹国家级高新区兰香湖西路与兰香湖南路交汇处,步行至15号地铁紫竹高新区站约1500米,23号华师大地铁站约900米(预计2028年通车)。除了便捷的交通外,兰香湖2号附近商业、医院配套完善,同时也是闵行区第一梯队学区-华师大教育集团附属学校学区房。

详情:📞021-39527365(售楼处)

兰香湖2号最后一批72套双拼别墅于2025年10月16日正式开盘,建筑面积约210㎡,套内可使用面积约540㎡,参考总价2500-2600万,于2027年3月精装交付,款清即可办理产证。

详情:📞021-39527365(售楼处)

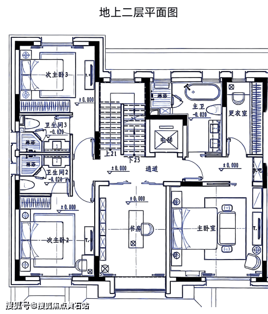
兰香湖2号 北临河户型鉴赏

兰香湖2号 南临河户型鉴赏

兰香湖2号每户均赠送100-120平左右的花园面积,且每户均带水岸码头!

兰香湖2号双拼别墅是市面上稀缺产品,买到即赚!

详情:📞021-39527365(售楼处)

温馨提示:开盘前期客户量比较集中,看房请提前预约,感谢您的配合!

全部

相关资讯

报名成功
稍后会有专业的置业顾问联系您
返回楼盘

频道导航

返回首页

看房小程序

APP下载

电话拨通后,请您手动拨打分机号

确定拨打电话

电话号码:

分机号:(可能需要拨分机号)