平湖鸿翔宝龙北宸里楼盘头条

黄石楼市发布

2023-02-20 10:51:56

购房群

买房如何避坑,加入购房群,看看他们怎么说

立即进群

平湖鸿翔宝龙北宸里营销中心:400-870-6009

一、 项目七大价值点

1、品牌:鸿翔中金&宝龙地产,实力房企联袂,筑就新居标杆

浙江鸿翔,由全国民营企业500强之一的鸿翔控股集团出资组建,是具有国家一级资质的专业性房地产开发公司, 累计拓展面积1000万平方米, 2020年累计年销售额37亿元,2021年1-9月销售额高达56亿元;其中鸿翔·玖望、鸿翔·云望、桃花源公馆、伊顿公馆等优秀作品以极高的市场热度,得到了业界及业主的一致好评。

宝龙地产自 2003年起专注开发运营综合性商业地产项目,2009年在香港主板成功上市(股票代码:HK.1238),2006年—2021 年获得 “中国房地产百强企业”、 2011年—2020 年获得中国商业地产公司品牌价值 TOP10等荣誉。

北宸里营销中心:400-870-6009

2、区位:长三角城市群C位,繁华与静谧的理想生活场

北宸里项目位于新仓镇隶属于平湖,刚好位于上海、宁波、杭州三大城市核心位置,与三个城市中心形成同频经济圈,是沪嘉杭同城一体化最重要的交通枢纽。

作为上海真正的后花园,与上海金山毗邻,快速到达上海闵行、虹桥、奉贤、松江、青浦中心区域,值得一提的是沪乍杭高铁已经着手建设,届时均可在半小时内往返杭州和上海,另外项目规划上海地铁22号线延伸线-沪平铁路也到新仓,真正实现了事业在上海 ,安家在新仓的可能.

3、交通:多维立体交通路网,同频上海都市繁华芯

项目附近交通非常方便,距离新仓高速出入口仅 3km,从我们项目驾车5分钟就能到达新仓高速口(G15沈海高速),到达上海金山约6公里、到达上海虹桥约60公里、到达浦东新区约80公里、往北50公里到达苏州,往西约90公里到达杭州、到达宁波约60公里。真正实现了约半小时到上海,约一小时到苏杭,能够便利的享受到长三角便捷都市圈

轨道交通(双轨驱动融沪再提速)

沪平城际铁路(即将开建,自金山铁路金山卫站引出,沿既有金山铁路支线通道向西进入浙江,先后途经平湖市独山港区、嘉兴港区、平湖市,终至海盐县),在项目附近乘坐沪平城际快线(228公交新仓镇政府站点),约五站路即可达到金山卫站。

沪乍杭高铁已经着手建设,预计2022年建设完成,届时到达杭州只需30分钟,到上海只需要15分钟。

公共交通

新仓至金山北高铁公交专线(K319)、平石(平湖—石化)城际快线正式开通,沪平城际快线(228路公交)五站到金山卫,直达金山医院。

出行:平湖居民可在上海刷市民卡和公交卡乘坐公交、地铁、轮渡,并且乘坐沪平城际快线,约10km即可到达金山卫站,一路直达上海南站。

医疗:两地多家医院保持合作关系,且平湖医保卡可直接在上海400多家医院就医,享受医保待遇。

教育:开展名师、名校长结对和挂职锻炼,深化“卓越教师”培养和引领工程,推动教育高层次人才培训体系融合。

通讯:021区号开头的固定电话在平湖逐步实现全覆盖,实现“移沪不离沪”的同城生活。

4、产业:聚焦数字产业集群,打造创新科技强镇

新仓是工业发展的活力镇。不断深化接轨上海首位战略,持续加快产业转型升级,紧紧围绕 “2+1+2”的产业布局,构筑一二三产引领新优势,全镇优先发展新能源新材料、高端装备制造业,泽先发展高端包装全产业链项目,转型提升服装玩具两大传统产业。2019年我镇实现工业总产值104亿元,增长5.3%。70家规上工业企业实现产值88.72亿元,增长7.3%,是未来的活力高地;由此可见,新仓的经济实力雄厚,具有非常强的购买能力,从而使得房价稳定持续上涨

青创小镇:青创人才梦工厂 小城发展新动力

聚焦小城市培育,加快城镇向小城市迈进。不断完善城市功能、提升服务水平,大力推进良树商贸综合体建设,建成“新仓1955创新学院”总部,以创新人才合作引入人才,以做“靓”城市服务业留住人才,以青年创业创新活力点燃城市发展动力,在合作振兴上再深入,加快打造“青创小镇”。

新仓1955创新学院

集服务人才孵化、教育培训为一体的青年人才引育中心

5、配套:多元化配套荟萃,开启从容精致生活

平湖北宸里位于芦川新街上,芦川新街是贯穿新仓镇核心商业的主干道,出门就是平湖市乡镇首家多功能商业综合体美树商业中心(目前签约 目前签约品牌有肯德基、物美超市、雷迪森维嘉四星级酒店、上影影院、凯乐迪 ktv、凯乐迪儿童乐园等,后续还将入驻更多品牌),100米处是4星标准农贸市场,项目东侧的童凌大厦也将在今年投入使用(包含了酒店、餐饮、购物、KVT、SPA、健身、休闲娱乐一站式购物中心),800米内嘉兴银行、泰隆银行,图书馆及芦川公园等配套多样,真正实现商业配套成熟,生活便利,可以满足您日常的购物、餐饮、娱乐等多方位需求。

集医疗、教学、科研、预防为一体的三级综合性医院 复旦大学附属金山医院,距离项目约6公里,新仓的社保已与上海市第一人民医院实行同步结算。

配套齐全,满足您日常生活配套的所有需求。可以说只付金山房价的一半,可以享有金山的完善配套。

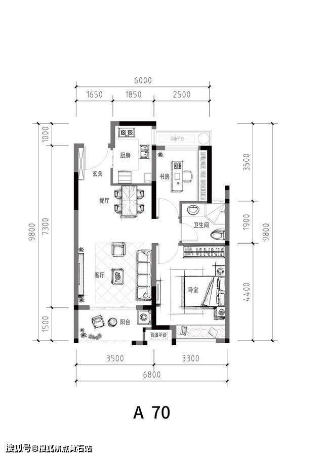
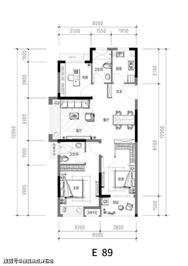
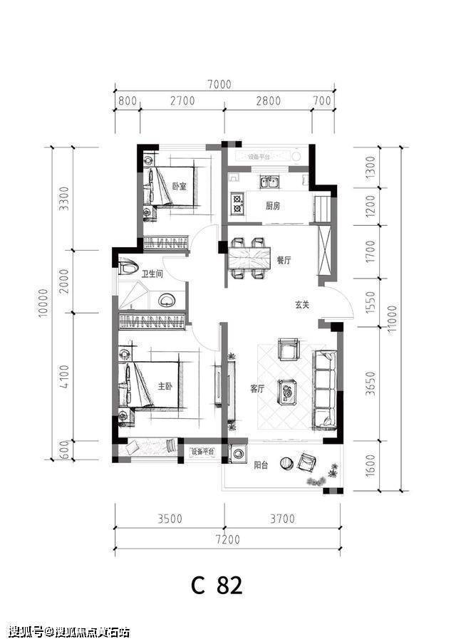
6、产品:网红精品小户型,奢阔空间格局

平湖北宸里作为新仓镇为数不多同时具备优质住宅环境及投资价值的高端小区,其户型设计及面积段分布非常合理,都是南北通透,通风采光极佳,在体现人文关怀的同时, 70-90平的面积段,低总价、低首付,成为众多刚需客户的首选,同时成为负利率时代难得的投资臻品。

7、附加值:环沪价格洼地,执掌财富密码

平湖鸿翔宝龙北辰里作为环沪城市,真正跟上海土地接壤的有苏州的太仓、昆山,嘉兴的嘉善、平湖,我们来比较一下环沪周边离上海最近的4个城市房价,太仓浏河碧桂园项目均价约1.7万左右,市区约2万+, 昆山花桥融创浦西玫瑰园均价约 2.7万左右;而且太仓和昆山都是限购城市,必须一年以上本地社保。嘉善姚庄旭辉项目均价约1.8万左右;因此环大上海目前仅剩平湖新仓还处于价值洼地,而新仓到达上海只需要6公里,是所有区域中离上海最近的地方之一,随着示范区的出台, 及上海地铁 22号线的延伸,未来房价必将大涨,成为下一个“花侨”。

平湖鸿翔宝龙.北宸里营销中心:400-870-6009 欢迎您!!!

全部

相关资讯

报名成功
稍后会有专业的置业顾问联系您
返回楼盘

频道导航

返回首页

看房小程序

APP下载

电话拨通后,请您手动拨打分机号

确定拨打电话

电话号码:

分机号:(可能需要拨分机号)