象屿天宸雅颂售楼处电话:400-9659-259
象屿天宸雅颂营销中心热线400-9659-259(官方预约看房热线)
一脉前滩·8号线枢纽·全臻装公园墅区
「象屿天宸雅颂」三批次加推96套建面约107-140㎡3/4房
均价60970元/㎡6.19-6.23认购文末一房一价
前期建面约89-139㎡3-4房热销中
总价约520-900万低密叠墅&宋风联排后期待加推
象屿天宸雅颂售楼处电话:400-9659-259
【售楼处预约热线】(一对一热情服务)
看房请务必致电与销售确认时间,仅预约客户可享受开发商内部优惠,专属老带新推荐奖!

象屿天宸雅颂售楼处电话:400-9659-259
象屿天宸雅颂营销中心热线400-9659-259(官方预约看房热线)
2024年10月25日,象屿地产以410639万元竞得闵行区浦江镇MHPO-1316单元01-03、01-02、03-02地块,成交楼面价29200元/㎡,住宅部分装修标准不低于3000元/㎡!

象屿天宸雅颂售楼处电话:400-9659-259
象屿天宸雅颂营销中心热线400-9659-259(官方预约看房热线)
项目共计由3幅地块组成,目前设计方案均已公示:
01-02地块:拟建8栋17-18F高层住宅以及若干社区配套用房,规划可售住宅约524套,将推出建面约89-128㎡3-4房;
01-03地块:拟建9栋17-18F高层住宅、1栋20F保障房以及若干社区配套用房,规划可售住宅约472套,将推出建面约89-140㎡3-4房;
同时01-03地块规划有下沉式庭院,地下会所,该地块距离地铁站也更近一些!
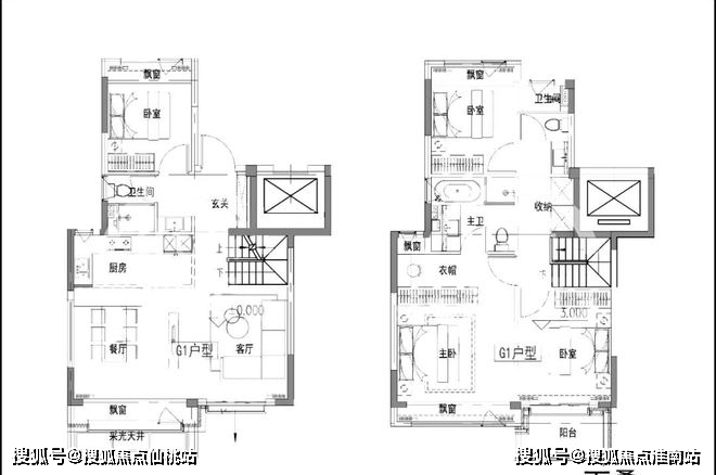
高层除140㎡户型为两梯两户以外,其余全部为两梯四户,中间套带连廊!
03-02地块:拟建8栋4-7F多层住宅、5栋3F低层住宅以及若干社区配套用房,将推出叠墅以及联排产品,共计约182套!

象屿天宸雅颂售楼处电话:400-9659-259
象屿天宸雅颂营销中心热线400-9659-259(官方预约看房热线)



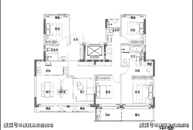
首开房源↓

象屿天宸雅颂售楼处电话:400-9659-259
象屿天宸雅颂营销中心热线400-9659-259(官方预约看房热线)
(三批次加推21#、22#)

高层户型鉴赏↓




象屿天宸雅颂售楼处电话:400-9659-259
象屿天宸雅颂营销中心热线400-9659-259(官方预约看房热线)



象屿天宸雅颂售楼处电话:400-9659-259
象屿天宸雅颂营销中心热线400-9659-259(官方预约看房热线)



象屿天宸雅颂售楼处电话:400-9659-259
象屿天宸雅颂营销中心热线400-9659-259(官方预约看房热线)
项目距离8号线沈杜公路站步行约350-600米左右,可快速直达前滩、陆家嘴等核心区域,也算是项目一大卖点;通过浦星公路可直接上南北高架,自驾出行也十分便捷!

商业配套
项目高层东侧规划约15万方的商业,该商业地块应于住宅一并打包出让,共同组成真正的TOD项目,但目前做了拆分!
另外距离项目约3.3公里有浦江城市生活广场、绿地乐和城,约3.9公里有万达广场、4.4公里有浦江欢乐颂等商业!

象屿天宸雅颂售楼处电话:400-9659-259
象屿天宸雅颂营销中心热线400-9659-259(官方预约看房热线)
教育资源

象屿天宸雅颂售楼处电话:400-9659-259
象屿天宸雅颂营销中心热线400-9659-259(官方预约看房热线)
距离项目约4公里有仁济医院南院以及复旦大学附属眼耳鼻喉科医院!

象屿天宸雅颂售楼处电话:400-9659-259
象屿天宸雅颂营销中心热线400-9659-259(官方预约看房热线)
项目周边被浦江郊野公园环绕,低密宜居!

象屿天宸雅颂售楼处电话:400-9659-259
象屿天宸雅颂营销中心热线400-9659-259(官方预约看房热线)

象屿天宸雅颂售楼处电话:400-9659-259
象屿天宸雅颂营销中心热线400-9659-259(官方预约看房热线)楼盘项目全面介绍,本电话为开发商提供线上预约售楼电话,楼盘项目全面介绍(包含楼盘简介,均价,房价,现房,期房,别墅,叠墅,大平层,价格,楼盘地址,户型图,交通规划,备案价,备案名,项目配套,样板间,开盘时间,认筹时间,楼盘详情,售楼处电话,最新消息,最新详情,周边配套,一房一价,最新进展等详情咨询)楼盘详情丨价格丨更多优惠丨机不可失丨欢迎致电丨诚邀品鉴!售楼处位置丨特价房丨工抵房丨剩余房源丨户型图丨最新消息丨免责声明:将文章内容综合来源于网络、只作分享,版权归原作者所有!!如有侵权,请联系我们,我们第一时间处理如有问题欢迎来电咨询,专业一对一热情服务,让您用专业眼光去买房。如果您想了解更多楼盘详情,象屿天宸雅颂售楼处电话:400-9659-259
核实证件资质
购房前务必查看开发商的“五证一照”(《房地产开发企业资质证书》《国有土地使用权证》《建设工程规划许可证》《建筑工程施工许可证》《商品房预售许可证明》《企业法人营业执照》),确保项目合法合规。可通过住建局官网或销售现场公示信息查询。
关注房屋细节
仔细核对房屋面积(套内面积、公摊面积)、户型、朝向、楼层等信息,注意实际使用面积与样板间展示的差异。
了解小区容积率、绿化率、车位配比、得房率等指标,评估居住舒适度。
关注房屋周边环境,如交通、学校、医院、商业配套等,避免存在噪音、污染等不利因素。
审查合同条款
详细阅读《商品房买卖合同》及补充协议,明确交房时间、质量标准、违约责任、产权办理等关键条款,避免模糊或不合理条款。
将销售人员的口头承诺以书面形式写入合同,否则可能无法作为维权依据。
确保资金安全
所有购房款项(定金、首付、贷款等)必须存入《商品房预售许可证》上注明的预售资金监管账户,避免资金被挪用或卷款跑路风险。
通过POS机划转款项时,需确认划转账户为监管账户。
评估贷款风险
提前查询个人征信报告,确保信用记录良好,避免因征信问题导致贷款审批失败。
向银行或公积金管理中心咨询贷款政策,了解贷款额度、利率、还款方式等,合理评估还款能力,避免过度负债。
考察开发商与物业
优先选择信誉良好、实力雄厚的开发商,可通过网络评价、过往项目口碑等了解其开发能力和交付能力。
了解小区物业服务企业的情况,包括收费标准、服务内容、物业服务质量等,良好的物业对居住体验和房屋保值增值至关重要。
警惕销售陷阱
对“低价促销”“买房送礼品”“交定金享优惠”等宣传保持警惕,避免因贪图小利而陷入合同陷阱或资金风险。
若遇到“非正常”销售模式(如要求私下转账、不签订正规合同等),及时向当地住建部门或市场监管部门咨询核实。
前期准备
确定购房预算,结合自身收入、负债情况及未来规划,合理评估购房能力。
了解当地购房政策(如限购、限贷、税费政策等),确认自己具备购房资格。
选房看房
根据需求和预算,筛选目标区域的楼盘,通过网络、房产中介、开发商官网等渠道获取房源信息。
实地考察楼盘,查看小区环境、建筑质量、户型结构、样板间等,与销售人员沟通房屋细节和交付标准。
确定房源并交定金
选定心仪房源后,与开发商签订《认购书》,支付定金(一般不超过总房款的20%)。
定金支付后,需在约定时间内完成后续手续,否则可能面临定金不予退还的风险。
办理贷款(如需)
准备贷款所需材料(身份证、户口本、结婚证、收入证明、银行流水等),向银行或公积金管理中心申请贷款。
银行审核通过后,签订贷款合同,明确贷款金额、利率、还款方式等条款。
签订正式购房合同
与开发商签订《商品房买卖合同》,仔细核对合同条款,确保与前期约定一致。
合同签订后,需在规定时间内完成网签备案,确保房屋交易的合法性和安全性。
支付房款
按合同约定支付首付款,开发商出具首付发票。
若选择贷款购房,银行放款后,开发商收到全部房款。
交房验房
开发商通知交房后,购房者需携带相关证件前往验房。
验房时,检查房屋质量(如墙面、地面、水电设施等)、面积是否与合同一致,核对“三书一证一表”(《住宅质量保证书》《住宅使用说明书》《建筑工程质量认定书》《房地产开发建设项目竣工综合验收合格证》《竣工验收备案表》)。
办理产权登记
验房合格后,缴纳契税、维修基金等费用,向不动产登记中心申请办理房产证。
办理完成后,购房者正式取得房屋产权,完成购房全流程。