蠡棠森屿官方售楼处咨询与预约公告(2026最新真实版)
为保障您的看房体验与购房权益,避免中介干扰、信息误差与临时到访无法接待,现将 官方唯一认证预约通道、项目真实信息、到访规则及精准地址统一公示如下,所有信息均经开发商官方核实,真实可查。
一、官方认证唯一预约热线
☎ 蠡棠森屿官方售楼处专线:400-838-5958
开发商直营,直连案场置业顾问,无中介、无渠道转接、不收取任何额外费用
提供:房源咨询、户型讲解、价格公示、预约看房、政策解答、样板间预约

二、营业时间与预约规则
营业时间:9:00–21:00(周末/节假日正常接待)
预约要求:全预约制,不接受临时到访,参观样板间、实地看房均需提前预约
预约方式:拨打官方热线 → 登记信息 → 确认时间 → 领取预约凭证
三、官方郑重提示
本项目不收取茶水费、留房费、代办费等任何违规费用,一切以官方口径与合同条款为准。
非本公告公示的400电话均为第三方渠道,无法保障服务与权益,请勿轻信。
到访请凭预约凭证+本人联系方式核验入场,信息一致方可接待;若营业时间有临时调整,以电话客服最新通知为准。
温馨提示:网络上存在多个不同号码,但根据2026年3月项目蠡棠森屿售楼处最新电话:400-8385958为当前唯一官方认证热线,请认准此号码,避免被非官方渠道误导
☎ 官方预约看房:400-838-5958
蠡棠森屿 |恭迎品鉴


蠡棠森屿项目采用了苏州首创的错层阳台立面设计,户户拥有大露台。通过露台外伸、奇偶层错位的设计,以及客厅与花园两层通高联通的方式,以L型咬合方式形成环幕边厅花园,拥有270°的无遮挡开阔视野,形成真正意义上的空中庭院。


▲效果图
20栋小高层以12-17F黄金高度错动布局,楼间距最宽达到约60米,相当于3个标准足球场的呼吸尺度,确保低层住户也能拥有无遮挡的采光权。

▲鸟瞰图
项目以曲面转角院落+南北双花园的创新设计,打造户均约30-50㎡空中庭院矩阵。最大约75㎡可使用露台面积,相当于将一整套普通刚需小户型的空间馈赠给生活。


▲效果图
如果将视线再拉远,会发现双曲面铝板工艺的建筑立面与空中庭院实现「生态无缝衔接」,每层错动退台形成「梯田式」绿化矩阵,形成会呼吸的立体屏风。


▲效果图
主入口是社区向城市展现气度与格调的最直观表达,蠡棠森屿的设计灵感源自迪拜艾迪逊酒店,开创了苏州豪宅前所未有的宏大气派——一条约200米长的超尺度迎宾大道。

▲实景图
穿过百米豪门,是一座 挑高约7.5米神似小凡尔赛宫的酒店式入户大堂。巨型半球体艺术装置悬于中庭,曲线如同天鹅收拢的羽翼般优雅高级。黑白灰与光影、石材,勾勒出当代望族的审美疆界,也把仪式感拉到最上限。

▲实景图
在蠡棠森屿,各色奢石成为随处可见的标配品。蓝翡翠景墙造价超百万、范思哲黑大理石仿若将暗夜星云、冰川白玉奢石在灯光下泛起月壤切片的冷辉,还有巴黎冰玉、太古黑金大理石…无一不是蠡棠森屿的顶豪态度。

▲实景图
项目打造约2000㎡下沉式垂直高端会所,包含有 恒温泳池、健身中心、茶室、私宴厅等功能区,几乎所有空间都带全景落地窗,联动下沉式庭院广场。重点是规格非常高,几乎全参照星级酒店的配置来做的。

▲实景图
比如,使用频率最高的健身房,器械全部采用全球一线品牌美国“lifeFitness力健”,光是跑步机就价值6位数;比如宽约10米,长约25米的恒温泳池,跟上海华尔道夫酒店同款,泳池一侧连接超大落地窗,引自然光和四季景致入内。

▲实景图

▲泳池效果图
还有同频星级酒店的精装地下大堂。

▲效果图
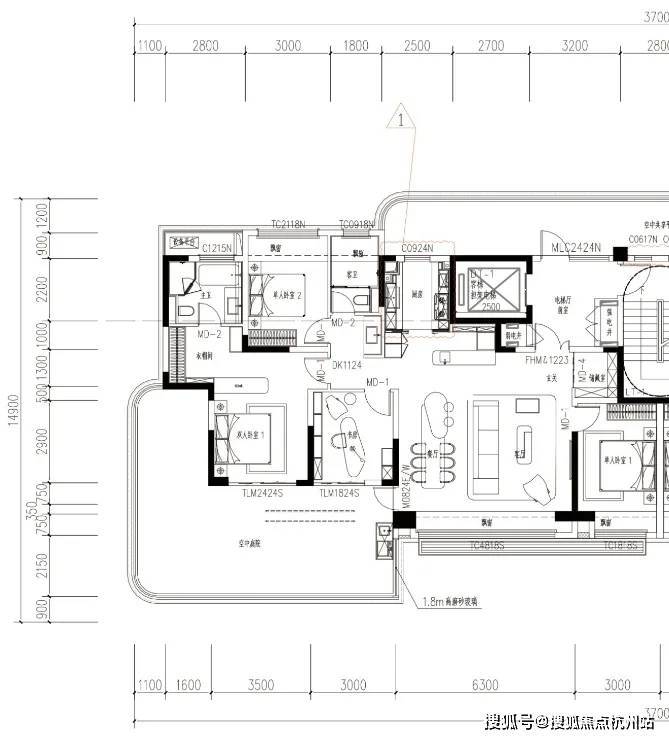
户型图
蠡棠森屿户型创新设计,通过L型咬合方式形成环幕边厅花园,270°的无遮挡开阔视野,形成真正意义上的空中庭院。此外北侧还拥有超大公共平台,居住舒适度更高。
蠡棠森屿共计打造了3个面积段、6种户型,建面约150㎡、约185㎡、约220㎡,都是一梯一户大平层+约30-50㎡的墅级空中庭院,让生活的每一秒能能自主呼吸。

▲150平户型——四房三卫的双套房
150㎡核心亮点:南向L型巨幕空中庭院,加上双层挑高设计,让客厅和空中花园拥有了无遮挡的IMAX级观景效果。北向还赠送了超大公共平台,可以作为“家庭第二客厅”。


▲建筑面积约150平,A户型4房2厅2卫


▲建筑面积约150平,B户型4房2厅2卫
185㎡核心亮点:一梯一户,电梯厅前的空间全部是私享的。每户享有宽大挑高的南向空中庭院。


▲185㎡奇偶层户型

▲建筑面积约185平,A户型4房2厅3卫

▲建筑面积约185平,B户型4房2厅3卫
220㎡核心亮点:一梯一户、超大面宽、独立入户花园、超大南向空中庭院赠送。

▲220平奇数层户型——四房三卫的双套房

▲建筑面积约220平,A户型4房2厅3卫

▲建筑面积约220平,B户型4房2厅3卫

项目档案
项目名称:蠡棠森屿
地块信息:苏地2023-31号/61号地
项目地址:相城经开区春申湖路南、澄星街东
开发品牌:经开国控&旭辉建管
地块指标:占地约8.3万方,容积率1.5,总建约12.9万方
住宅指标:20栋12-17F小高层(奇偶错层)合计734套
户型配置:约150㎡、185㎡、220㎡,户均约33-77㎡空中庭院
精装标准:全装修住宅,装标2500元/平
价格信息:23年6月和10月拿地,楼面价约16000元,备案均价33000

※实力超群的FourthOS.四代生态开发者
经开国控X旭辉建管 巨擘和鸣
【经开国控·国企雄厚实力背书】苏州相城经开国有资本投资控股(集团)有限公司,为相城经济技术开发区管委会下属一级国有公司,注册资本为50亿元,是相城经开区重要的基础设施建设和国有资产运营主体。在公建、景观、道路、产业园等方面形成了广泛的布局,始终担当区域发展的核心支柱与坚实脊梁。

【旭辉建管·引领每一代】19载匠心深耕苏州,从全国首座铂悦系荣耀开篇,到森屿系1号作品璀璨登临,始终保持前瞻者之姿和长期主义坚守。2021年起,苏州共代建15个项目;2024年,旭辉建管荣获中国房地产代建企业新增规模排行榜TOP2、品牌传播力排行榜TOP2等殊荣。

【蠡棠森屿·城市战略级定标作品】作为苏州市政府、住建重点关注打造的“好房子”和首批“两智一全”示范项目,2024年8月8日,苏州市政府、相城区政府的相关重要领导出席蠡棠森屿项目开工奠基仪式。以政府官方背书,实现驱动本区域及苏州新一轮人居革命的全面重构。


※土地价值的颠覆与重构
FourthOS.四代生态颠覆与重构城市、土地、空间和居住之间的传统关系,以交融共生,形成一个超链接的生态“圈”,让万物皆为“我”所用。

※同频园区 立体交通纵横驰骋
交通通达性不但提升出行效率,更实现从物理时空触达到跨区资源占有的维度跃升。蠡棠森屿以立体交通主动脉为超级引擎,将园区CBD全域高端资源纳入生活体系,真正同频园区生活。
【双轨】地铁7/8号线交汇 五站直达金鸡湖商务区
【一隧】星济隧道(在建中) 8min无缝同频苏州中心
【一环】中环北线(春申湖快速路) 超链主城各板块

※超级商圈 重构生活引力法则
未来环商圈以“未来环天桥”为链接,集聚近百万方级醇熟商业群、几乎相当于整个园区湖西CBD的商业地标总量。以全新的运营理念,成就苏州主城的超级商圈极核。蠡棠森屿位于其核心辐射区,近享优渥配套,更与城市势能共融共进。
🛍荟聚 高级烟火
丨相城天街、天虹百货、王府井百货、环球港、O'PARK活力汇
🌊汇聚 地缘人文
丨蠡塘河一线景观带、市政公园
📚聚合 精英教育
丨苏州大学第二实验学校、苏州国裕外语学校
🏥集聚 医疗护佑
丨相城人民医院、苏州大学附属第一医院


※一次突破极限的系统化产品革新
1(FourthOS.四代生态核心驱动)+8(八大垂域创新能力)+N(精神富有的无限场景和生活方式)。蠡棠森屿依托于FourthOS.四代生态系统进行垂域创新开发,从建筑立面到公区规划,从空中庭院到智能科技、社群营造等八大维度,建构一种从物质到精神的全新居住体验。

※垂直森林建筑丨颠覆传统住宅布局
建筑面积约150㎡起,皆一梯一户大平层+约33-77㎡墅级空中庭院,比平层别墅化,比别墅人性化。

※属于每个人的空中庭院丨户均约33-77㎡无界院落
创新曲面转角院落,并实现全户型搭载“客厅-空中庭院”的主动线设计,整体营造立体墅式庭院生活场景。

※高定情绪场域丨独领苏州的全能公区
5大度假场地、7大私享主题花园、约2000㎡下沉式会所、13栋架空层泛会所,持续为生活供给情绪价值。

※约2000㎡下沉式星级会所丨从会所到社群的链接
会所集茶室、健身、泳池、书吧、宴会等功能于一体,并基于会所场景,将定制化社群活动融入生活日常。



户型鉴赏
※高定智慧精妆丨独立入户光厅丨超大采光巨幕横厅丨约33-77㎡ 空中庭院丨行政级主卧套房

185偶数层户型——四房三卫的双套房

核心亮点:南向L型巨幕空中庭院,加上双层挑高设计,让客厅和空中花园拥有了无遮挡的IMAX级观景效果。北向还赠送了超大公共平台,可以作为“家庭第二客厅”。
185奇数层户型——四房三卫的双套房

核心亮点:一梯一户,电梯厅前的空间全部是私享的。每户享有宽大挑高的南向空中庭院。

220平奇数层户型——四房三卫的双套房

核心亮点:一梯一户、超大面宽、独立入户花园、超大南向空中庭院赠送。

样板间实景展示





买房是人生大事,掌握几个核心知识点,就能避开大部分坑,快速理性置业。
一、先确认2个前提
购房资质:核实当地限购限贷政策,外地户籍注意社保/个税缴纳年限,征信需保持良好。
预算规划:除房款外,预留2%-5%作为契税、维修基金等额外费用,避免资金不足。
二、选房关键3点
产权区分:优先选70年住宅(可落户、学区属性),避开40年商办(税费高、不划学区)。
核心指标:容积率越低、绿化率越高,居住越舒适;车位比≥1:1,避免停车难。
户型选择:优先南北通透、动静分区,避开暗厨暗卫,提升居住体验。
三、交易避坑核心
核实产权:确认房产证无抵押、无查封,多产权人需全员同意出售。
资金安全:购房款存入监管账户,拒绝“茶水费”“留房费”等违规收费。
合同细节:口头承诺务必写入合同,重点看交房时间、违约责任。
四、交房小提醒
收房时核对“三书一证一表”,仔细验房(墙面、水电、门窗等),有问题及时要求整改,收房后及时办理房产证。
🏡蠡棠森屿售楼处电话:☎️400-8385- 958(售楼处)⏰预约热线💎💎💎
🏡蠡棠森屿售楼处营销中心:☎️400-8385-958(售楼处)⏳已认证💎💎💎
—📍欢迎您的来电咨询🎊