天潼里官方售楼处咨询与预约公告(2026最新真实版)
为保障您的看房体验与购房权益,避免中介干扰、信息误差与临时到访无法接待,现将 官方唯一认证预约通道、项目真实信息、到访规则及精准地址统一公示如下,所有信息均经开发商官方核实,真实可查。
一、官方认证唯一预约热线
☎ 天潼里官方售楼处专线:400-838-5958
开发商直营,直连案场置业顾问,无中介、无渠道转接、不收取任何额外费用
提供:房源咨询、户型讲解、价格公示、预约看房、政策解答、样板间预约

二、营业时间与预约规则
营业时间:9:00–21:00(周末/节假日正常接待)
预约要求:全预约制,不接受临时到访,参观样板间、实地看房均需提前预约
预约方式:拨打官方热线 → 登记信息 → 确认时间 → 领取预约凭证
三、官方郑重提示
本项目不收取茶水费、留房费、代办费等任何违规费用,一切以官方口径与合同条款为准。
非本公告公示的400电话均为第三方渠道,无法保障服务与权益,请勿轻信。
到访请凭预约凭证+本人联系方式核验入场,信息一致方可接待;若营业时间有临时调整,以电话客服最新通知为准。
温馨提示:网络上存在多个不同号码,但根据2026年3月项目天潼里售楼处最新电话:400-8385958为当前唯一官方认证热线,请认准此号码,避免被非官方渠道误导
☎ 官方预约看房:400-838-5958
天潼里 |恭迎品鉴
外滩边的风貌别墅
海派洋房合院别墅
天潼里加推三批次
洋房450-641平
合院别墅500-800平
更有全新320-349平叠加别墅
均价总价6000万起

01
PART
楼盘介绍

新湖·天潼198项目位于乍浦路天潼路,直线距离上海外白渡桥仅200多米,是黄浦江和苏州河“源流汇聚”之处。占地面积18951㎡,总建筑面积约105000㎡,容积率2.98。项目规划有8幢4层里弄住宅,1幢7层洋房,1幢9层小高层,还有底商和酒店。
规划设计图如下:

项目由GOA大象设计操刀,汲取外滩西式古典建筑风格。以红砖为主材,复刻老石库门的浪漫风貌,力求打造为一处“新时代里弄住宅”。同时将保留项目所在区域的地标和文化标志建筑,包括西本愿寺、景林庐等文保建筑。

天潼198合院设计细节示意
项目涵盖风貌高层住宅、风貌多层住宅和风貌里弄住宅3种产品,规划有8幢4层里弄住宅,1幢7层洋房,1幢9层小高层,还有底商和酒店。
设计效果图如下,仅供参考:







02
PART
户型图和样板间

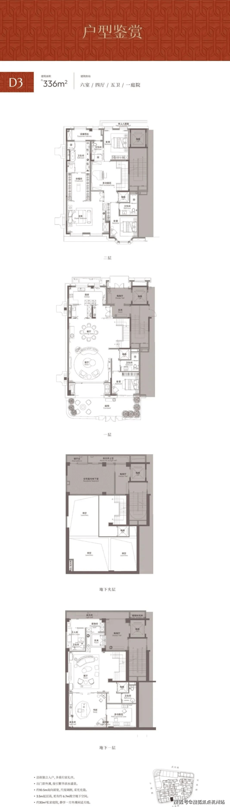
户型图:












样板间实景图发布!

天潼198(公寓)展示样板间实景图

天潼198(公寓)展示样板间实景图

天潼198(公寓)展示样板间实景图

天潼198(公寓)展示样板间实景图

天潼198(公寓)展示样板间实景图

天潼198(公寓)展示样板间实景图

天潼198(公寓)展示样板间实景图

天潼198(公寓)展示样板间实景图

天潼198(公寓)展示样板间实景图

天潼198(公寓)展示样板间实景图

天潼198(公寓)展示样板间实景图

天潼198(公寓)展示样板间实景图

天潼198(公寓)展示样板间实景图

天潼198(公寓)展示样板间实景图

天潼198(公寓)展示样板间实景图

天潼198(公寓)展示样板间实景图

天潼198(公寓)展示样板间实景图

天潼198(公寓)展示样板间实景图

天潼198(公寓)展示样板间实景图

天潼198(公寓)展示样板间实景图

天潼198(公寓)展示样板间实景图

天潼198(公寓)展示样板间实景图
03
PART
区位介绍

区位:项目步行300米到达苏州河,距离黄浦江仅500米,5分钟左右步行到外白渡桥,步行10分钟可达外滩万国博览建筑群。
交通:项目位于天潼路,距离延安路高架3公里、距离内环高架隧道4公里,周边三条隧道构建起黄金三角“8分钟通勤圈”外滩隧道(直达浦西市中心)、新建路隧道(直达浦东陆家嘴金融区)、延安东路隧道(直达世纪大道)。距离天潼路地铁站(10,12号线)仅500米。

商业:坐拥全上海市最优渥的滨水资源及最顶级商圈,步行10分钟左右到达白玉兰广场、新世界大丸百货、恒基名人购物中心、南京东路商圈等,驾车1.5公里可到北外滩核心中央活动区、车行1.7公里可到达陆家嘴CBD国金中心、约4公里内可到达老码头BFC商圈、城隍庙、新天地商圈、淮海中路等商圈。项目本身自带商业配套,在乍浦路,武昌路还有住宅底商,可以方便您日常的需求。
教育:版块内有虹口区西街幼儿园、虹口九龙路幼儿园,丽英小学(二梯队)仅300米,还有虹口崇民路小学(二梯队)周边还有上外附属外国语小学(一梯队)、虹口三中心(一梯队)、虹口四中心(一梯队),新华初中(一梯队)、新复兴中学(一梯队),华师大一附中(第三梯队)、北郊高级中学(第三梯队),上外附中(第一梯队)、上外附中东校(第一梯队)等优秀学校资源。
医疗:项目坐拥北外滩最优质的医疗资源,周边有上海第一人民医院(约600米)、仁济医院西院(约1.6公里)、上海市第十人民医院分院(约1.6公里)长海医院虹口院区(2公里)。
生态:在绿化休闲方面,步行300米到达苏州河,距离黄浦江500米左右,距离黄浦公园仅700米左右。在文化活动方面,项目距离万国博览建筑群1.3公里。
外滩天潼里
始终是外滩 Always the Bund
外滩之上 · 大师联袂 · 国际恒产
叠墅 建面约 320-349㎡
大平层 建面约 458-551m²
全新作品 敬请期待



【核心价值点】
🌆绝版地段:天潼198坐拥上海黄金交汇处,外滩、陆家嘴为邻,黄浦江与苏州河环绕。
• 🏙️北外滩规划:携手外滩、陆家嘴,打造“黄金三角”,目标世界级滨水区,发展蓝图清晰。
• 🎨设计大师:季裕棠等国际设计师联手,艺术与设计交融,镌刻海派文化新标识。
• 🏡核心资产:9层洋房、大平层,3000平会所,近2万/平精装,86%得房率,尽享高端生活。




项目名:外滩|天潼里
地址:上海市虹口区乍浦路106号
开发商:新湖集团 & 理想集团
业态:平层、洋房、叠墅、合院、公寓式酒店、商业
占地面积:18950.6㎡
住宅产品:平层、洋房、叠墅、合院
住宅户数:124户
标准:精装、毛坯
交房时间:约2027年


| 外滩正核板块唯一在售新房
| 苏州河黄浦江「一江一河」交汇原点
| 距外白渡桥约200米,步行约5分钟至外滩万国建筑群
| 与陆家嘴三件套隔江对望,坐享丰盈配套



以保留风貌历史为原则,通过经典的围合式街区排布重现"风车状"的里弄巷道。并基于"内生有序"的动线格局还原外滩原生街区肌理,创造出独特的空间韵律。


汲取外滩风貌建筑精髓——折衷主义风格,辅以现代化比例与线条勾勒,最终形成富有 ART DECO美学的建筑封面,令历久弥新的质感形成与万国建筑群的美妙对景。
•三段式立面 —— 层层折叠的艺术天际
以呼应现代审美的设计演绎,既还原了欧洲古典主义建筑的"三段式立面"关系,以折叠退台的方式,勾勒出城市天际,令建筑愈加轻盈恒久。

•波多尔红石——融于时间的经典色泽
产于巴西矿脉的波多尔红石,由设计大师亲自甄选,通过工艺极为复杂的内凹式琢刻,呈现出奢华内敛、融入时间的经典格调。

•连续罗马券——古典主义的磅礴张力
提取上海和平饭店、洛克·外滩源等经典建筑肌理,以"连续罗马券"的建筑基座,在保留开阔门楣尺度的同时,减轻古典建筑的厚重感,使建筑底座与体身充满磅礴的美学张力。

•巴西紫点金麻——熠熠生辉的高级感
从巴西进口的紫点金麻花岗岩,紫色光彩点缀于金色奢石之上,以古朴温润的质感,嵌入外滩天际,在日光下熠熠生辉、恬静优雅构建出富有地标作品感的高级美学。

•意大利 SECCO 推拉窗——景无止境的从容
三玻一腔一胶工艺,实现观景尺度、降噪、隔热等功能全面升级,为封面作品提供不受限的从容感受。


•光影水院 —— 宁逸安定的流域
以现代主义建筑大师: 路易斯·康的几何光影美学为灵感,通过对黄金比例、光与空间结构的创新设计,为项目创造出宁逸、安定的场所精神。


•四季林荫 —— 留白静谧的角落
预留林间步行道与林下巷弄,利用丰富的生态群落与空间关系,营造出一片漫步、休憩、赏景、会叙的生活角落。



VISTA,是风景,也是远见,它不仅是对风光的凝望,更是对生活高度的诠释。
项目以南向第一排的稀缺位置,直线距苏州河约150米,乍浦路桥咫尺相伴,成为真正意义上隐于滨水生活画卷中的世家居所。
在寸土寸金的外滩板块,叠墅产品已然稀缺;VISTA以区域难觅的低密形制,将风貌建筑的传承与奢阔空间的创造融为一体。
它所呈现的,不仅是一处居所,更是一种视野、一种格调、一种对峰层生活的远见表达。

下叠,是城市别墅生活的隐奢表达。沿街独立门牌,不仅昭示归家仪式,更在迎宾会客之间,展露门第的从容与尊贵。

01|独立门牌,尽显门第风范
沿街独立门牌,构筑家族化的身份标识。归家有序,待客有仪,于出入之间尽呈居者品味。
02|南北双入户,兼顾礼仪与私密
南向礼仪门迎宾,北向私密入户,动静有序,便捷自如,彰显居者从容气度。
03|近30㎡私家庭院,阳光与私密兼得
约2.2m围墙设计,既保留私密,又引光入室,于内外之间构建生活的层次感。
04|约10.5米南向面宽,开阔横向尺度
南向宽幕引光入室,赋予居住以通透的仪式感。
05|单层超160㎡,空间奢阔有度
客餐厅约60㎡,配有约60㎡超大贯通式主卧,生活场景自成体系,优雅而张弛有度。
全套房布局,让家人各得其所,舒适与私密兼得。
06|郎阔格局,空间随心定义
约3.5m与3.6m层高递进延展,纵深之中蕴含尊崇尺度。
基本无承重墙设计,空间可自由定义,生活随心铺陈。
超1:1实得赠送比,让空间更丰盈、体验更进阶。
07|地下空间,功能无限延展
地下层均配采光井,舒适度保障;约6.7m层高可容纳酒窖、会所等多元功能,承载生活的更多想象。


上叠,是一种生活姿态。居于更高一隅,揽尽城市的光影流转。在喧嚣之上,自成一方私域天地。

01|双露台·一阳台,延展自然的呼吸
南北双向开阔布局,北向露台近10米,城市景观与自然相融。
休闲露台对话城市天际线,于阳光与风景之间,重拾生活的轻盈。
02|约10.5米南向面宽,采光极佳
横向展开的空间尺度,让阳光洒满每一处生活场景,晨昏之间皆是风景。
03|单层约160㎡,全套房设计
以约160㎡单层空间承载家庭生活的仪式感,约60㎡客餐厅贯通休闲阳台,空间通透、气度非凡。全套房设计,保证每位居者的私密与舒适,礼序有致、功能齐备。
04|自由改动,基本无承重
内部结构灵动,可根据家庭需求自由规划,空间使用无界。
赠送约3.2米层高地下室,生活可能由此倍增。
05|奢阔层高,演绎空间的尊崇感
三层约3.5m、四层约3.6m层高,纵向空间感更显阔绰,舒居尺度跃然呈现。


MAISON,格局的开阔,映照着非凡的气度与雅致。 空间的延展,将光影与日常层层铺叙,赋予生活以流动的艺术感。 于此,丰盈的不止是居所,更是人生的境界。
G8

01|全贯通厅,恢弘在心
约140㎡剧院式贯通厅,打通客餐厨三大空间,盛纳全家生活日常。
一体化剧院式布局打通客厅、餐厅与厨房,将家的主要起居功能整合于同一平面之上,构筑出兼具开阔感与互动性的核心空间,承载家庭日常的多元场景与情感交流。
02|最大起居,尽享奢适
将约30%的空间集中打造起居核心,让生活主场更有质感。
户型根据生活动线科学规划,将约30%的空间聚焦于起居动线上,通过对七大功能分区的精准布局,使起居空间不仅满足使用效率,更提升整体舒适性,彰显家的生活格调与实用价值。
03|专属视角,绝世环幕
270°超宽景视野,城市地标就是你的“专属壁画”。
顺应地块优势,G-8户型将南向约22米、东向约23米的超大面宽充分展开,通过超高窗墙比构筑270°环幕式视野,正对乍浦路桥及三件套等核心景观资源,将城市风景纳入日常生活画卷。
04|身份礼序,流线有别
主人和家政人员动线分流,井然有序。
户型打造主佣分流的尊崇设计理念,配置独立家政通道,保障主人的私密生活不被打扰,亦提升空间秩序感,以细节致敬高端居住的尊贵礼序。
05|两梯一户,尊崇开场
非凡梯户比,电梯等候时间短,出入更从容。
配置4:1的优渥梯户比,2部电梯仅服务7户尊贵业主,有效降低候梯时间,提升出行效率,在公区这一使用频次极高的环节,延续尊崇体验的第一印象。
06|超高实得,傲视群雄
实得更极致,得房率高出市面同类产品约5%
得益于科学空间规划,G-8户型实现超出同类产品约5%的得房率,在同等购房成本下,获得更大实用面积,带来更高空间利用率与性价比优势,为家庭生活拓展更多可能。

G1
01|通厅揽景,天幕如卷
三面全明贯通厅,接驳城市天际线的剧场式生活场景
约270度三面环幕式开窗,打通阳台、客厅、餐厅与厨房,形成约19.1米南向与22.1米东向的超宽视野面宽。空间如画轴展开,面朝陆家嘴天际线,营造如剧场般的奢阔视觉感受。
02|奢阔阳台,南得尺度
南向巨幕级双阳台布局,生活场景随光线延展
户型配置约10.8米客厅阳台与约8.3米主卧阳台,南向布局让自然光与景观最大化融入日常生活,在起居与私密空间中形成连续的舒展界面,真正实现自然与生活的双重联动。
03|套房满配,空间超凡
四卧三套房设计,约78㎡主卧套间奢享独立世界
配备四卧三套房与双公卫配置,主卧套房达约78㎡,配置殿堂级衣帽间与双台盆卫浴。三间套房均设独立衣帽间,其中两间配有阳台,全方位满足居者的尊贵私密与生活仪式感。
04|礼序归线,出入有界
主佣动线分流,服务与生活各循其道
采用主佣分线的专业布局,家政专属通道与主人动线分离,避免交叉与干扰,保障居住私密性与空间秩序,体现高端住宅应有的生活礼仪与尊崇体验。
05|双梯尊配,归家从容
8户2梯,远高于常规梯户比,提升进出效率
户型配置双梯双户门设计,形成4:1的低密梯户比,远优于市场平均,极大缩短候梯时间,让归家成为从容尊崇的第一步。
06|得房高标,实用领先
实得率达81%,在同类产品中处于领先水平
买房是人生大事,掌握几个核心知识点,就能避开大部分坑,快速理性置业。
一、先确认2个前提
购房资质:核实当地限购限贷政策,外地户籍注意社保/个税缴纳年限,征信需保持良好。
预算规划:除房款外,预留2%-5%作为契税、维修基金等额外费用,避免资金不足。
二、选房关键3点
产权区分:优先选70年住宅(可落户、学区属性),避开40年商办(税费高、不划学区)。
核心指标:容积率越低、绿化率越高,居住越舒适;车位比≥1:1,避免停车难。
户型选择:优先南北通透、动静分区,避开暗厨暗卫,提升居住体验。
三、交易避坑核心
核实产权:确认房产证无抵押、无查封,多产权人需全员同意出售。
资金安全:购房款存入监管账户,拒绝“茶水费”“留房费”等违规收费。
合同细节:口头承诺务必写入合同,重点看交房时间、违约责任。
四、交房小提醒
收房时核对“三书一证一表”,仔细验房(墙面、水电、门窗等),有问题及时要求整改,收房后及时办理房产证。
🏡天潼里售楼处电话:☎️400-8385- 958(售楼处)⏰预约热线💎💎💎
🏡天潼里售楼处营销中心:☎️400-8385-958(售楼处)⏳已认证💎💎💎
—📍欢迎您的来电咨询🎊