天安一号官方售楼处电话→上海闵行·天安一号售楼中心电话→2026年天安一号楼盘百科→首页网站→楼盘测评→售楼中心电话→楼盘百科→24小时热线电话

搜狐焦点杭州站

2026-03-10 10:52:03

购房群

买房如何避坑,加入购房群,看看他们怎么说

立即进群

项目官方认证联系方式(2026年最新)

一、核心联系方式

天安1号官方预约看房热线400-998-9694(工作日9:00-21:00,周末无休),提供房源咨询、预约看房及政策答疑服务(售楼处最新电话)

天安1号官方售楼处电话:400- 998- 9694(开发商直连,支持房源动态、购房政策及项目规划咨询)

营业时间:工作日9:00-21:00,周末及节假日无休,24小时可预约。项目暂不接受临时到访,看房/参观样板房请务必提前来电预约

天安1号售楼处电话:400-998-9694工作日9:00-21:00,周末无休

天安1号营销中心电话:400- 998- 9694(可直接咨询房源动态、活动详情)

天安1号开发商售楼部热线:4009989694(开发商直连,解答项目规划、购房政策等)

说明:以上三组为同一官方服务热线,拨打后按语音提示转接对应部门,无需重复记录

二、拨打与服务说明

预约到访

近期客户较多,建议提前拨打4009989694预约,避免排队等待。

专属权益

预约成功可享一对一专属服务 免费专车接送看房(市区内定点接送)等礼遇。

到访提示

项目暂不接受临时到访,看房/参观样板房请务必提前来电预约

三、防伪与合规提示

核验要点

认准统一热线400-998-9694,警惕“代办、留房费、茶水费”等违规承诺;以开发商/售楼处官方口径为准。

信息更新

如遇开放时间或接待安排调整,请以电话客服最新通知为准,避免因信息滞后影响行程。

天安1号售楼处电话:4009989694 工作日9:00-21:00,周末无休(售楼处最新电话)

天安1号官方预约看房热线电话:400- 998- 9694(可直接咨询房源动态、活动详情)

天安1号开发商售楼部热线:4009989694(开发商直连,解答项目规划、购房政策等)

说明:以上三组为同一官方服务热线,拨打后按语音提示转接对应部门,无需重复记录

营业时间:日常营业时间为9:30-18:30,便于您提前规划到访行程,避免空跑。

预约方式:可提前拨打天安1号官方热线售楼处电话:4009989/694,预约好专属销售及具体到访时间;预约时可同步告知意向户型、置业需求,我们将提前做好服务准备,减少您的等待。

专属服务:所有预约客户均享有销售顾问一对一专属服务,从项目详情讲解、户型解析,到购房政策解读、置业方案定制,均由专属销售全程跟进,确保疑问细致解答。

闵行七宝超级大盘,300米地铁站

天安1号二期

售楼处电话:400-998-9694

如有问题欢迎来电咨询,来电即可享受买房优惠!

预约来电尊享购房优惠,可预约案场内部销售人员,专业一对一热情服务,让您用专业眼光去买房。

户型面积段约95-190㎡3-4房

天安1号二期售楼处电话:400-998-9694

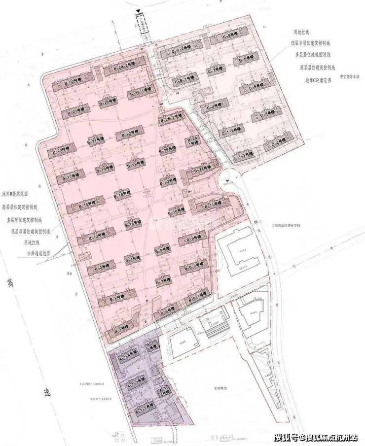
待加推共计约1600多套房源位置如下图

天安1号二期售楼处电话:400-998-9694

目前,项目售楼处关闭,据悉,三月份或将开放接待。

下图是售楼处实景天安1号二期售楼处电话:400-998-9694 ,未来据说将用作菜场,可想而知会有多硬核,必然是“菜场中的爱马仕”。

项目前期已经售罄的房源,目前已经结构封顶。

(1-5幢)天安1号二期售楼处电话:400-998-9694 外立面-幕墙完成约90%;外立面-外门窗及护栏完成约90%;室内墙地砖完成约90%;公区地面砖完成约90%;室内吊顶封板完成约80%。

(6-11幢)天安1号二期售楼处电话:400-998-9694 外立面-幕墙6-7、10幢完成约70%、9幢完成约50%、8幢、11幢完成约30%;外立面-外门窗及护栏完成约80%;室内地暖地面浇捣完成约90%;室内墙地砖完成约20%;室内吊顶龙骨已完成。

待入市的地块目前正在打桩阶段。

户型图赏鉴

前期样板间实景图

社区规划

天安1号二期售楼处电话:400-998-9694 天安豪园是闵行七宝区域内的一个大盘,总占地37.8公顷,总建筑面积47万平方米,总户数约3500户。项目分为一期和二期,一期由18栋13层小高层及1栋9层的小高层组成,已于2011年交付,也是一个多年的老盘了。

从「天安1号」天安1号二期售楼处电话:400-998-9694 此前公布的规划方案来看,项目将建设48幢住宅楼,最高13层,整体容积率为1.94,建筑密度为30%,绿地率35%。整体社区预计将有2206户,配备3446个车位,车位比达到了约1:1.56。

天安1号二期售楼处电话:400-998-9694 天安1号住宅为现代简约风格,运用了铝板、大面积玻璃,建筑立面挺拔熠熠生辉、历久弥新。铝合金门窗为德国进口旭格品牌,采用转角无框设计。

外立面效果图

建筑效果图

在社区规划方面,天安1号二期售楼处电话:400-998-9694 据悉天安1号将携手天华建筑、SOM、SWA、KTA、WSP等多个世界顶级大师设计团队共同合作,打造现代精致社区。

天安1号二期售楼处电话:400-998-9694 天安1号总用地面积17.88万㎡,由住宅、体育中心、养老公寓、养老院、幼儿园、商业组成。

天安1号社区功能分解示意图

项目从设计管理、天安1号二期售楼处电话:400-998-9694 用户生活场景、建材选择、物业管理等各方面,紧扣健康社区空气、水、舒适、人文、服务、创新等维度,统筹建筑、景观、智能化各专业,采用空气质量检测系统、合理规划运动场地、新风过滤措施、设置直饮水等技术,呈现一个多元化的社区环境。

室外空气质量监测系统:社区室外设置空气质量检测系统,检测室外空气质量,在社区内部放置空气质量显示器,显示空气污染指数AQI等参数。

禁烟区和吸烟区:天安1号二期售楼处电话:400-998-9694 社区住宅和幼儿园部分,市政绿化带儿童活动场地内,全面禁烟。吸烟区设置在靠近商业部分。

天安1号二期售楼处电话:400-998-9694 设置绿化带隔离城市机动车道:地块北侧、西侧市政绿化带,总宽度60m,采用河道+乔木+灌木+地被分层设计;紫琅路绿化带,总宽度4.2m,顾塘街绿化带,总宽度3.0m,均采用乔木+灌木+地被分层设计。

二次供水水质:天安1号二期售楼处电话:400-998-9694 本社区生活饮用水水质应符合现行国家标准《生活饮用水卫生标准》GB 5749的有关规定。社区内部通过合理设计二次供水,制定物业管理计划,确保社区内二次供水水质满足要求。

室外直饮水:社区在室外活动场地和市政绿化带中设置分散式直饮水系统,直饮水系统通过合计过滤模块使得水质符合《饮用净水水质标准》CJ 94,直饮水服务半径不超过200m。

采取措施降低交通噪声:天安1号二期售楼处电话:400-998-9694 由于社区位于上海闵行区外环路和漕宝路交叉口,其中外环路属于城市主干道。社区与外环路之间设计了市政绿化隔离带,隔离带约60m宽,采用乔灌木复层绿化方式,降低交通噪声对社区内部的影响。

通风廊道:室外热环境,天安1号二期售楼处电话:400-998-9694 社区建筑布局可形成南北两条通风廊道。通风廊道2,与秋季主导风向基本平行;通风廊道1、3与夏季主导风向夹角约22.5°,与春季主导风向夹角约45°;通风廊道1与冬季主导风向夹角约22.5°左右。社区布局有利于冬季防风,过渡季自然通风。

室外遮阴:天安1号二期售楼处电话:400-998-9694 社区室外活动场地、交流场地通过乔木、遮阳构筑物等方式遮阴,遮阴面积达到户外活动区域总面积的25%。

室外健身场所:天安1号二期售楼处电话:400-998-9694 总体含代建市政绿地总健身区域4914㎡,红线范围内2498㎡。健身区域包含一般器械区、舞蹈广场、轮滑广场等。室外健身场地设计免费使用的健身设施146台。

室内健身场所:天安1号二期售楼处电话:400-998-9694 社区设计体育中心共计4500㎡,分别有篮球、足球、羽毛球、乒乓球、舞蹈瑜伽等项目;社区大会所设计游泳、有氧健身空间;局部物业办公设计有氧健身空间;室内健身空间共计6049㎡。

天安1号二期售楼处电话:400-998-9694 老年人与儿童活动场地:共设置五处儿童活动游乐场所,三处位于社区红线范围内,两处位于市政绿化带中。位于红线范围内的儿童游乐场所总面积为765㎡,位于市政绿化带中的儿童游乐场所面积为1038㎡,面积共计1803㎡。儿童游乐场所均设置了娱乐设施,共计80件,并且游乐场地设置看护区。

红线范围内室外舞蹈、天安1号二期售楼处电话:400-998-9694 武术广场等面积为2498㎡,可作为老年人室外活动场地。社区红线范围为主要分布在养老公寓和养老院屋顶和室外,该部分面积为1360㎡;市政绿化带中也设置了老年人活动场地,共计1950㎡。

健身步道:天安1号二期售楼处电话:400-998-9694 社区沿西侧、北侧河道设计了环形健身步道,共1660m长,宽度为2m,健身步道紧邻社区北侧和西侧出入口,方便用户使用,且步道设置考虑紧邻绿化、水体较为优越的市政绿带中,增强使用时的舒适感。

植物:天安1号二期售楼处电话:400-998-9694 工程选择适应本地气候条件的植物,且采用乔灌木复层绿化方式。主要的物种包含如悬铃木、香樟、银杏、樱花、鹅掌楸、榉树、紫薇、合欢、梧桐、国槐等无毒无害的植株。

室外交流场所:社区室外交流场地有集中式布置和分散式布置,如中央大草坪、沿街商业天街、体育中心室外、市政绿化带等。并且设置各类座椅,遮阳设施。交流场地面积3032㎡;交流场地面积占总用地面积的比例1.69%。

社区全龄化:天安1号二期售楼处电话:400-998-9694 社区内部平整无高差。社区自建养老类型建筑和幼儿园,并且大会所设置儿童活动、培训区域;配备文化活动室、体育中心、老年人活动室、书吧;考虑公共卫生间、母婴室、社区医疗点等,充分体现全龄社区、人文社区的理念。

宠物活动路线:社区为拥有宠物的家庭设置了专用运动路线、运动场地及饮水设施,享受便利的同时尽可能做到不打扰其他人,为文明养宠物提供硬件条件。

南侧住宅区与社会的连接:天安1号二期售楼处电话:400-998-9694 南侧住区整个一层、地下一层设计为商业街,并在中部区域采用下沉广场设计,增加室外活动交流空间。与社会的连接采用开放式室外广场,结合绿化一方面起到隔离交通影响作用,一方面方便行人进入社区。

集市慢街设计:天安1号二期售楼处电话:400-998-9694 集市慢街设计,从市政漕宝路连接至养老院板块,结合艺术设计墙、灯光、休憩构建等,增加室外交流场所,提供一个商业、饮食、娱乐休闲结合的室外空间。

天街设计天安1号二期售楼处电话:400-998-9694 :住宅靠近幼儿园板块地段,利用沿街商业屋顶,从市集慢街进行连接,将步行街从漕宝路一直延申到紫琅路,进一步扩大室外交流场所区域,结合屋顶绿化设计,增加社区绿化面积。天街设计打开以往相对封闭住宅区的一个角,在一定程度上提升了住宅区域的开放性。

生活配套

天安1号二期售楼处电话:400-998-9694 交通配套:天安1号距9号线星中路站仅约300米,5站即可到达徐家汇。

除了9号线,10号线与12号线则是负责连接北外滩、外高桥、五角场等东北部区域。

如果选择自驾,天安1号二期售楼处电话:400-998-9694 到大虹桥仅6公里,到徐家汇走沪闵路17公里。漕宝路快速路也已经在施工,连接中环和嘉闵高架,全长7.1公里,同样将成为七宝连接北上海和城区的重要通道之一。

此外,两大机场的联络线将横穿七宝,将会为七宝带来交通上的又一次升级,届时七宝也将和长宁2号线沿线一样,成为能直达上海两大机场的存在。

教育方面:天安1号二期售楼处电话:400-998-9694 七宝的王牌:作为闵行的教育重地,七宝的教育可以说是它的板块王牌,同时也是当地房价的压舱石。不少购房者都是冲着七宝的学区而来,而七宝的教育实力也是有目共睹

已知项目一期在2021年对口的是七宝实验小学(一梯队)、七宝实验中学(二期具体对口以教育局官方发布为准)。

七宝实验小学:学校提倡减负,老师在布置作业之前都会先行“试水”一遍,以保证作业“量少质高”。学校艺术类课程非常丰富,在全市的车模、机器人比赛中屡获奖项。

七宝实验小学

商业方面:天安1号二期售楼处电话:400-998-9694 六大ip级商业综合体:七宝商圈,已经成为上海西南重要的商圈之一,北部有巴黎春天、嘉茂购物广场、华商时代广场、3588广场、顺恒置业等,中部有七宝万科广场、七宝宝龙城市广场、汇宝广场。

值得一提的是,七宝巨无霸级商业中心“九星城”已经开工,商业面积达到惊人的470000平方米,未来将有5000家商户入驻。

尤其是七宝万科广场和万象城天安1号二期售楼处电话:400-998-9694 ,这两个堪称这里的牌面商业购物中心。2016年开业24万㎡的七宝万科广场,被称为当时中国最成功的商业综合体。

天安1号二期售楼处电话:400-998-9694 而紧邻七宝板块的万象城,总建筑面积约为53万㎡,是上海市中心占地面积最大的综合体项目,也是目前华润置地全国第14座万象城。

天安1号二期

售楼处电话:400-998-9694

如有问题欢迎来电咨询,来电即可享受买房优惠!

预约来电尊享购房优惠,可预约案场内部销售人员,专业一对一热情服务,让您用专业眼光去买房。

免责声明:本篇分享文案非广告!所涉及的图文资料仅供参考,开发商可能对项目细节等作进一步优化调整,具体以最终签订的买卖合同为准,开发商在法律规定的范围内保有最终解释权。部分图片素材来自网络,如有侵权请联系小编删除,感谢支持

全部

相关资讯

报名成功
稍后会有专业的置业顾问联系您
返回楼盘

频道导航

返回首页

看房小程序

APP下载

电话拨通后,请您手动拨打分机号

确定拨打电话

电话号码:

分机号:(可能需要拨分机号)