——联仲都悦汇——
联仲都悦汇售楼处电话:400-8874-108✔【最新预约】
联仲都悦汇营销中心电话:400-8874-108✔✔【最新认证】
上海联仲都悦汇官方售楼处电话:400-8874-108 VIPLINE✔✔✔【最新发布】
如有问题可来电咨询,线上售楼中心,预约销售专员,一对一为您服务!
想了解联仲都悦汇更多信息?拨打售楼处营销中心热线:400-8874-108 (中介勿扰)【24小时热线】
01.项目基本信息
【开发商】:上海联仲置业有限公司
【物业】:上海仲量联行物业管理公司
【容积率】:1.0
【绿化率】:35%
【车位比】:1:2.1
【物业费】:8元/㎡/月
【本次开盘】:14套
【物业类型】:商业联排别墅
【交付标准】:毛坯
【拿地时间】:2014年8月
【交房时间】:2023年6月

在售户型:建面约310-410平米,地上三层地下一层
(地上:一层层高3.6米/二层层高3.4米/三层层高3.4米/地下层高5.4米)
总价:约1400-1800万️
单价:约5万/平米
小区整体商业:10万方(在建)南北双花园90-300平
水电:商水&商电,电1.3元/度,水6元/吨
产权车位:约30万左右

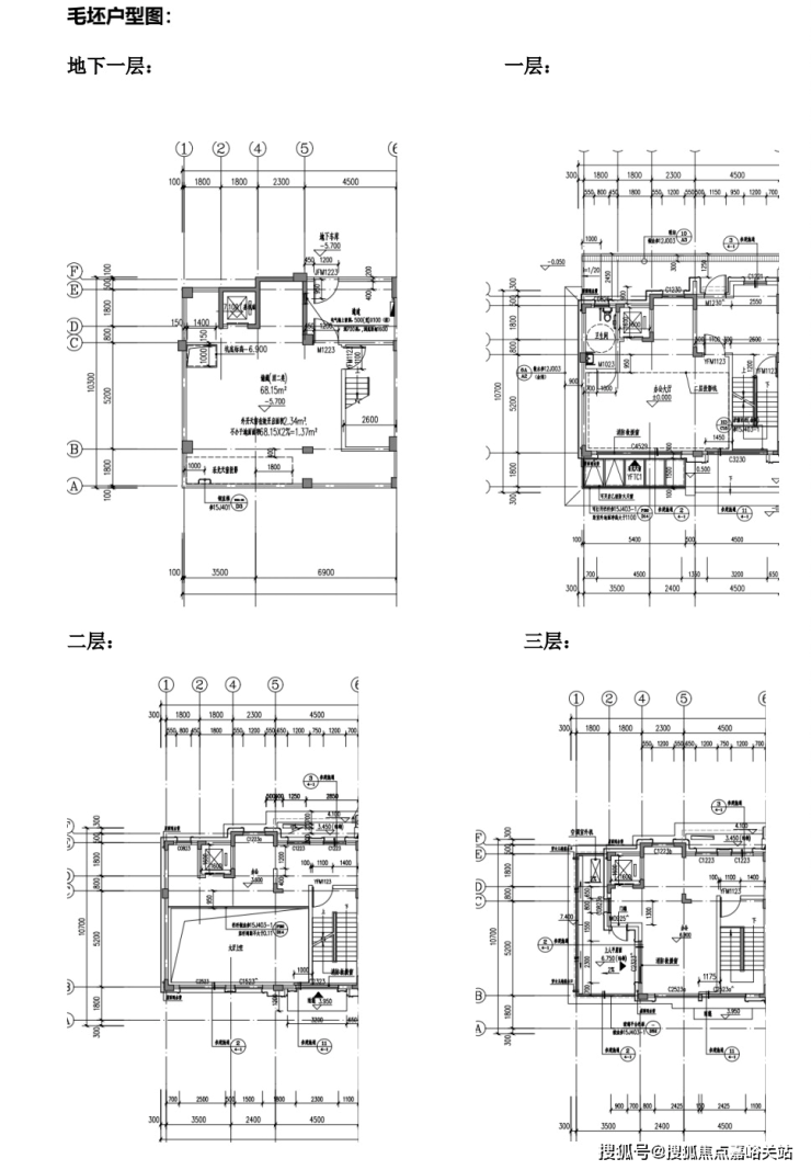
02.户型图及样板间照户
(特殊说明:户型朝向-上南下北)
约10.4米大面宽,面积达到55平
送电梯,北进门,南花园,超大地下室
客厅7米落地窗,采光明亮,尽显大气
约310平户型图▼

约378~420平户型图▼

约407~441平户型图▼

样板间效果图如下:










03.项目区位配套
【联仲·都悦汇】位于闵行马桥旗忠别墅区,旗忠别墅区是上海老牌的富人区,与松江佘山、浦东东郊齐称为沪上三大国际别墅区。上海仅存少量的容积率0.18以下超低密度居住用地中,大多数在马桥旗忠别墅区。

板块以低容积率、生态自然环境和高端国际品牌配置,2010年被列为上海第二批大型居住社区之一。总建面约33万方城市综合体联仲都悦汇位于旗忠板块正核心,紧临网球中心,超10万方市政绿化所环绕。

【联仲都悦汇】同样是低密度别墅区里的一员,背靠绿城玫瑰园,容积率低至1.0。项目贯穿了3条自然水系,分为ABCD四个地块,其中ABC为商住办综合地块,自带商业办公。

交通配套方面:项目距离嘉闵高架元江路出口3公里,毗邻G15、S32等快速主动脉,30分钟大虹桥,50分钟抵达浦东机场,快捷畅达全城。

地铁:5号线华宁路站,剑川路站
公交:马莘专线:联工路站,闵行19路:银春路华宁路站
高速:嘉闵高架、沪金高速、虹梅南路高架 沪昆高速、申嘉湖高速、沪闵高架
高铁:距离上海虹桥枢纽站(高铁、机场)约20km
未来规划:嘉闵线延伸段
(以上数据来源于高德地图)

商业配套方面:项目自带10万方商业,为旗忠唯一的综合性商业配套,其多元化的业态结构,结合旗忠独有的资源,必将带来旗忠全新生活方式。



生态资源方面:项目周边有马桥森林公园、旗忠高尔夫球场、旗忠网球中心、韩湘水博园、养云安缦酒店等。

教育资源方面:周边有复旦万科实验学校,德威英国国际学校、斯代文森国际高中、上海美高学校。 幼儿园:元祥幼儿园、富杰幼儿园启英幼儿园, 大学:上海交通大学、华东师范大学




闵行·旗忠别墅富人区
【联仲·都悦汇】
建面310~411㎡商业联排别墅
法式干挂 地上三层 地下一层
带南北双花园90-300㎡
总价约:1420-1800万
实景现房 不限购 通燃气
2025年8月25日,上海市六部门联合印发《关于优化调整本市房地产政策措施的通知》,涉及调减住房限购、优化住房公积金、优化个人住房信贷以及完善个人住房房产税等多项政策,以下是对上海最近房产情况的解读:
- **房价走势**:根据幸福里数据,2025年8月上海二手房全城报价为54331元/平,环比下降0.68%。各区域中,除金山房价有0.33%的微涨外,其余区域均呈下降态势,其中嘉定下降幅度最大,为0.99%。2025年7月上海新房全城报价为57994元/平,环比上涨1.56%,各区域房价有涨有跌,闵行涨幅最大,为3.48%,杨浦跌幅最大,为0.60%。
- **政策调整内容**
- **调减住房限购**:符合上海购房条件的居民家庭,含本市户籍家庭以及在本市连续缴纳社会保险或个人所得税满1年及以上的非本市户籍家庭,在外环线以外区域购买新建商品住房或二手住房,不再限制套数。成年单身人士购房按照居民家庭执行住房限购政策,沪籍成年单身人士在外环外购房不限套数,外环内限购2套住房;非沪籍成年单身人士若自购房之日前在本市连续缴纳社会保险或个人所得税满1年及以上,可于外环外不限套数买房,满3年及以上缴纳条件的,能在外环内限购1套住房。
- **优化住房公积金**:对缴存人购买二星级及以上新建绿色建筑住房的,住房公积金最高贷款额度上浮15%。首套最高贷款额度从160万元提高至184万元,多子女家庭首套上浮比例可叠加计算,从192万元提高至216万元;二套最高贷款额度从130万元提高至149.5万元。购买上海新建预售商品住房的缴存人,可依规申请提取本人及配偶的住房公积金用于支付购房首付款,且提取公积金支付首付款不会影响其住房公积金贷款额度计算。
- **优化个人住房信贷**:银行业金融机构不再区分首套住房和二套住房,根据上海市市场利率定价自律机制要求以及自身经营状况、客户风险状况等因素,合理确定每笔商业性个人住房贷款的具体利率水平。
- **完善个人住房房产税**:符合条件的非本市户籍居民家庭购买的第一套住房暂免征收房产税;购买的第二套及以上住房在合并计算家庭全部住房面积后,给予人均60平方米的免税面积扣除。自2025年1月1日起符合条件的购房者就可享受该政策。
- **政策影响**:本次新政属于精准调控政策,旨在降低符合条件的居民的购房门槛和压力,缓解外环外库存压力及提振市场信心,并通过扩大购房群体和金融支持促进职住平衡。预计政策短期将有效提升外环外市场热度,减少观望情绪并带动潜在购房群体积极入市,长期则有助于城市职住平衡与房地产市场健康发展。8月25日上午,上海楼市新政“靴子”落地。
没有选择周五下班后的“黄金官宣时间”,也并非传言的月底最后一天,上海楼市新政就在这样一个工作日的早上悄然而至。
消息一出,迅速席卷了地产人的朋友圈。“重磅利好”“外环外不限套数”“利率不分首二套”等关键词快速刷屏。不少近期即将开盘的项目火速响应,其中保利海上印项目更是发布了“重磅新政正当燃,开盘前夜不打烊”的红色海报,宣布将通宵迎客,试图趁势抢收。
这份由市住房城乡建设管理委等六部门联合印发的《关于优化调整本市房地产政策措施的通知》,涵盖了限购松绑、公积金提额、商贷利率并轨、房产税优化等四大维度,被视为促进上海楼市向好发展的有力支持政策。
中指研究院政策研究总监陈文静表示,整体来看,本次上海跟进优化楼市新政,在优化限购、加大公积金政策支持方面与北京较为相似,除此之外,上海进一步降低居民购房成本,明确不再区分首套、二套住房商贷利率,完善房产税政策,整体力度较北京略大,政策范围更广,未来北京继续优化商贷利率、降低居民购房成本也存在预期。随着北京、上海先后优化楼市政策,短期深圳跟进的概率也进一步增强,有助于提振市场预期,促进市场“止跌回稳”。
政策“组合拳”瞄准结构性释放
与8月初北京出台的政策相比,上海此次发布的楼市新政在限购放松、公积金支持、信贷政策等方面均有相似之处,但在具体条款上更显力度。
尤其是在商业性个人住房贷款利率方面,上海此次明确,银行业金融机构根据上海市市场利率定价自律机制要求和本机构经营状况、客户风险状况等因素,在利率定价机制安排方面不再区分首套住房和二套住房,合理确定每笔商业性个人住房贷款的具体利率水平。这意味着二套房利率将显著降低,有利于降低居民购房利息支出,减轻房贷负担。
“以上海一位购买二套房、贷款200万元30年期的购房者为例,若此前执行的是二套利率(如4.5%),月供约为10136元;而若按首套房利率(如3.6%)计算,月供则降至9086元,每月少还1050元,30年节省利息超过37万元。”上海中原地产资深分析师卢文曦表示,这种“真金白银”的让利,远比单纯降准降息来得实在。
值得注意的是,上海此次政策明显向外环外区域倾斜。政策明确,符合条件居民家庭在外环外购房不限套数。对符合上海市住房购买条件的居民家庭,包括上海市户籍居民家庭、连续缴纳社会保险或个人所得税满1年及以上的非本市户籍居民家庭,在外环外购买住房不限套数,包括新建商品住房和二手住房。成年单身人士按照居民家庭执行住房限购政策。
按照上述规定,沪籍居民家庭和沪籍成年单身人士,在外环外购买住房不限套数;在外环内限购2套住房。非沪籍居民家庭和非沪籍成年单身人士,自购房之日前在上海市连续缴纳社会保险或个人所得税满1年及以上的,在外环外购买住房不限套数;自购房之日前在上海连续缴纳社会保险或个人所得税满3年及以上的,在外环内限购1套住房。
陈文静认为,这一举措与北京放开五环外限购逻辑一致,都是针对当前市场成交结构做出的精准调整。
数据显示,今年以来上海新建商品住宅成交中,外环外占比超过60%;二手房方面,外环外成交也约占51%,显然,外环外已成为市场绝对主力。
“虽然目前上海楼市总体稳定,但外环外的新房库存去化仍有压力。”卢文曦认为,这次政策继续精准发力,对外环外区域放开购房额度,可以释放购买力,有助于进一步降低库存。
更重要的是,这一政策还可能缓解二手房市场的流动性压力。“很多改善型买家受制于‘房票’,必须先卖后买,导致二手房挂牌积压、价格承压。”卢文曦补充道:“现在允许先买后卖,减少抛售压力,也能稳定市场预期,缓解二手房市场价格快速下行。”
此外,此次政策完善了个人住房房产税相关要求,对非沪籍家庭首套房暂免征收,二套房及以上则设置人均60平方米的免税面积,显著降低了多套住房的持有成本,能够促进改善意愿的提升。
市场响应迅速 “金九银十”可期
上海楼市政策出台仅数小时,市场已现反应。
除了保利海上印推出“通宵不打烊”活动外,多个近期开盘的项目也紧急调整营销策略,加大渠道推广和现场邀约力度。
“今晚肯定要加班,新政出来后我们立刻转发了朋友圈,有些有购房需求但仍处于观望期的客户看到后就来询问政策跟自身的匹配度。”一位上海外环外新房项目置业顾问表示。
一家大型央企上海公司的营销负责人认为,政策对热门板块如闵行、唐镇等将是“锦上添花”,而对崇明等相对冷淡区域,则可能激发第二居所需求。“至少会多一批上海人来考虑买度假房。”该人士表示。
回顾本月初北京政策出台后的市场表现,有媒体曾报道,政策一出,五环外多个项目出现“深夜签约”“周末抢房”现象,成交量有所上升。
而中原地产数据显示,去年10月杭州取消首套房和二套房房贷利率差异后,当月新房成交面积环比增加16%,11月成交面积继续环比增加,且扩大到21%。从国家统计局数据来看,去年11月杭州新房房价指数也环比上涨0.9%。
卢文曦认为,上海中高端市场本身热度不低,均价超10万元/平方米的项目开盘即罄的现象很多。比如刚刚过去的周末,上海壹号院五批次开盘66套房1小时售罄,均价16.6万元/平方米的金茂璞元99套房源首开清盘。而金融政策的加持有望延续这一热度,并通过高端市场传递信心,拉动整体回暖。
上海楼市新政选择在当下发布在业内人士看来也颇具深意——接下来便是传统楼市“金九银十”销售旺季。市场普遍认为,此举将为上海楼市注入强劲动能。
“大家期待的政策终于落地,不仅能释放一波购买力,更重要的是转变观望情绪。”卢文曦表示:“尤其是改善型客户和外地单身人群,将直接受益。”
从更宏观层面来看,此次政策也是国家“采取有力措施巩固房地产止跌回稳”精神的落实。随着北京、上海两大一线城市相继出手,市场预期正在加快修复。尽管短期内市场热度回升可期,但业内人士也提醒,政策效果仍需观察后续成交数据和价格变动情况。
联仲都悦汇售楼处电话:400-8874-108【已认证】
联仲都悦汇营销中心电话:400-8874-108【已认证】
上海联仲都悦汇官方售楼处电话:400-8874-108 VIPLINE【已认证】
如有问题可来电咨询,线上售楼中心,预约销售专员,一对一为您服务!
想了解联仲都悦汇更多信息?拨打售楼处营销中心热线:400-8874-108 (中介勿扰)【24小时热线】
楼盘项目全面介绍,本电话为开发商提供线上预约售楼电话,楼盘项目全面介绍(包含楼盘简介,均价,房价,现房,期房,别墅,叠墅,大平层,价格,楼盘地址,户型图,交通规划,备案价,备案名,项目配套,样板间,开盘时间,认筹时间,楼盘详情,售楼处电话,最新消息,最新详情,周边配套,一房一价,最新进展等详情咨询)楼盘详情丨价格丨更多优惠丨机不可失丨欢迎致电丨诚邀品鉴!售楼处位置丨特价房丨工抵房丨剩余房源丨户型图丨最新消息丨免责声明:将文章内容综合来源于网络、只作分享,版权归原作者所有!!如有侵权,请联系我们,我们第一时间处理如有问题欢迎来电咨询,专业一对一热情服务,让您用专业眼光去买房.如果您想了解更多楼盘详情,欢迎提前预约拨打