信达信安里(售楼处)首页网站-2025信达信安里营销中心(售楼处中心)小区欢迎您-信达信安里周边环境-户型-价格-地址-楼盘详情-户型配套-售楼处电话-交房时间

嘉峪关楼市发布

2025-06-13 11:27:22

购房群

买房如何避坑,加入购房群,看看他们怎么说

立即进群

老静安内环内曹家渡板块

「信达信安里」

建面约270-525㎡别墅

网传户型图全面曝光

正在认购

信达信安里售楼处电话:400 - 8894 - 986🤔🤔

信达信安里售楼处电话:400 - 8894 - 986🤔🤔

2022年6月,静安区人民政府官宣了曹家渡社区C050301单元4-3b地块的出让公告。

信达信安里售楼处电话:400 - 8894 - 986🤔🤔

最终,上海信达银泰置业有限公司(信达)作为静安区曹家渡社区C050301单元4-3b地块的开发建设实施主体,该地块形成“净地”后实施出让。信达拿地的价格在21.08亿元,折合楼板价约为81484元/㎡,叠加税费、保障房之后,综合楼板成本还要更高。

信达曹家渡项目(曹家渡社区C050301单元4-3b地块)设计方案公示!同时曝光了户型图,拟建16幢住宅!包括15栋2层住宅,1栋7-18层住宅(包含保障房)及配套用房。建面约30-66㎡一房,约442-520㎡别墅待入市!

信达信安里售楼处电话:400 - 8894 - 986🤔🤔

同时,还涉及历史风貌保护建筑。根据规划建设要求,地块内肌理保护范围占比不小于51.5%,肌理保护范围的用地面积不少于5332平方米,其具体边界和占地规模以建设项目规划管理阶段审定的方案为准。

项目由一栋18层高层建筑,十五栋低层石库门风貌的建筑以及一栋配套用房组成,地下为地下三层。

信达信安里售楼处电话:400 - 8894 - 986🤔🤔

信达信安里售楼处电话:400 - 8894 - 986🤔🤔

户型图:(仅供参考,以开发商正式公示为准)

建面约90m²1房2厅1卫

建面约100m²2房2厅1卫

信达信安里售楼处电话:400 - 8894 - 986🤔🤔

这个项目的户型图不管是高层还是低层大面积别墅都是特别的多,好了,然后让我们来看看部分阔绰空间别墅产品的网传户型图,先上2号楼:

2号楼别墅东边套

信达信安里售楼处电话:400 - 8894 - 986🤔🤔

信达信安里售楼处电话:400 - 8894 - 986🤔🤔

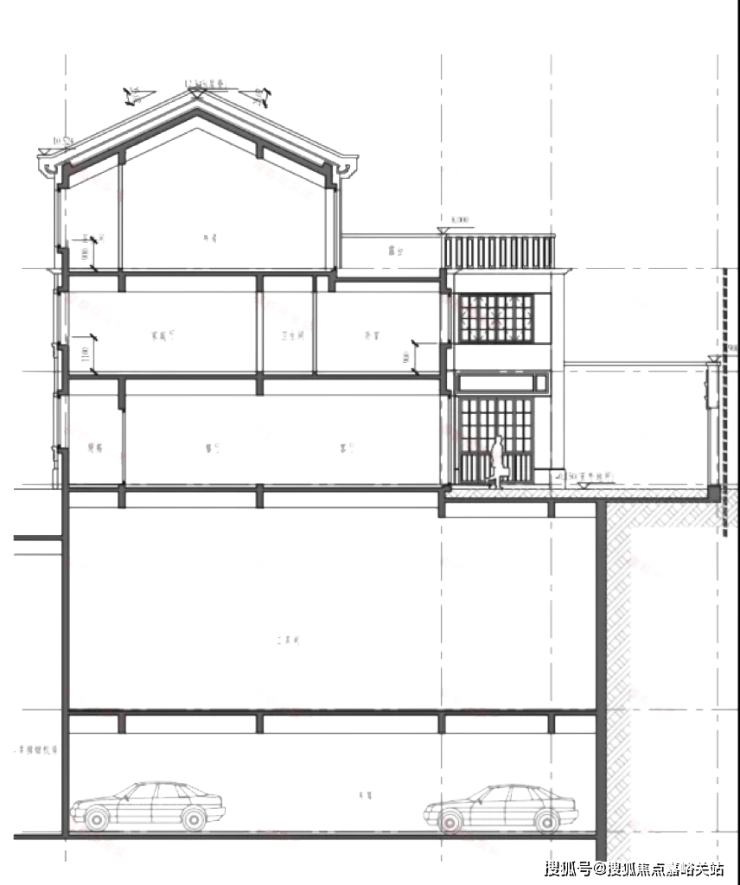
小区的2号楼别墅为双拼,东边套为地上1-2层外加阁楼。建造风格应该也是新里弄的石库门样式了,看看下面的剖面图就知道了:

2号楼别墅剖面图

信达信安里售楼处电话:400 - 8894 - 986🤔🤔

然后来看看6号楼别墅产品:

6号楼别墅

信达信安里售楼处电话:400 - 8894 - 986🤔🤔

信达信安里售楼处电话:400 - 8894 - 986🤔🤔

6号楼比较特别,是相对比较独立的类独栋了,标准地上3层,看看它的立剖面图:

信达信安里售楼处电话:400 - 8894 - 986🤔🤔

交通配套:项目地块位于静安历史风貌区内,约1KM范围内有2/7/11/13/14号线,分布武宁路、昌平路、隆德路、静安寺等市中心地铁站。

商业配套:项目周边有静安嘉里中心、恒隆广场、兴业太古汇、芮欧百货、张园、环球世界大厦、889广场等奢华地标林立。

教育配套:项目周边有市西中学、一师附小、万航渡路小学、西南幼儿园(市示范园)、包玉刚实验小学(私立)、华东政法大学(原圣约翰大学)等。

医疗配套:项目周边有:华山医院、上海市儿童医院、第一妇幼保健院、华东医院。 信达信安里售楼处电话:400 - 8894 - 986🤔🤔

广州停顿了近4年的旧城改造工作终于全面铺开。近期,多个板块的补偿款已经到账(具体补偿金额见下表)。

图片源于网络

而被拆迁的几个区域,包括老荔湾、海珠、罗冲围、三元里等片区的拆迁户开始进入市场买房,使得部分区域住房交易量出现爆发性增长。

从统计数据上看,罗冲围、三元里等区域5月二手房网签出现了环比超过100%的上涨,很可能与这批拆迁户入场购房有关。另有统计显示,五村七片、枫下、镇龙西、九楼、金坑银岭等城中村改造项目已通过房票认购商品房超1000套、面积超10万平方米。这既带动了新房市场的活跃,也在一定程度上对冲了近期贸易和经济不确定性对楼市带来的负面影响。所以,我们看到最近楼市虽然整体仍在筑底阶段,但核心城区无论是成交量还是成交价都依然坚挺,这很可能与旧改释放的一大批购买力有关。

图片源于网络

这里我谈几点看法:

1、几乎所有的拆迁户购买力都属于地缘性客户,他们通常只考虑原居住区域3~5公里范围内进行置换。无论买新房还是二手房,基本不会离原居住地太远。所以未来哪里有拆迁,拆迁区域周边的新房和二手房市场肯定会被强烈带动

2、研究显示,本轮拆迁与过往的拆迁不同,本轮征拆国有证的住房面积普遍不大,补偿款在200-500万左右,这批客户多数买二手房,或者新房当中的中小户型为主。这也解释了为什么最近荔湾新房中小户型严重缺货的情况。

3、拆迁户购买力未来将成为广州楼市复苏的重要力量,对市场最终的影响取决于实际拆迁补偿的总规模。

要注意两点:

一是这股购买力只能成为推动广州楼市复苏的一个因素,但市场要从根本上获得复苏,还能走出长期且稳健的行情,关键依然取决于经济状况、就业形势以及家庭收入的综合表现;

二是拆改的区域最终仍会建设新的房子,被拆迁户消化了市场上的存量住房,但谁来消化未来的增量房子?因此,这又回到了第一个问题,问题的核心还是在于经济。当然,控制新增供应量,提高新房品质同样也是解决问题的关键所在。

4、在国家政策强力接连要求推动大城市旧改之后,广州已经停滞了近4年的相关工作得以全面展开,这对楼市复苏、对房地产业复苏都极为有利。而几年前“禁止大拆大建”的相关要求也基本失效了。希望未来的政策更要作长线考虑,压制住频繁干预市场的冲动,尽量坚持把属于市场的还给市场,避免反复无常。市场自然会修复不合理之处,自然会将资源进行最优配置,而且反应更快、更准。

全部

相关资讯

报名成功
稍后会有专业的置业顾问联系您
返回楼盘

频道导航

返回首页

看房小程序

APP下载

电话拨通后,请您手动拨打分机号

确定拨打电话

电话号码:

分机号:(可能需要拨分机号)