⭕江湾鸿玺售楼处电话:400-8874-108【官方已认证】⭕
⭕江湾鸿玺营销中心电话:400-8874-108【官方已认证】⭕
⭕江湾鸿玺展示中心电话:400-8874-108【官方已认证】⭕
⭕江湾鸿玺开发商售楼部电话:400-8874-108【官方已认证】⭕
⭕注:以上均为江湾鸿玺官方联系方式,可直接联系官方售楼处/营销中心/开发商/展示中心/接待中心电话:400-8874-108(⏰服务时段 9:00-21:00,10 秒内接听;非服务时段留言1小时内回电),无任何400分号,信息经2026 年03月16日项目公示,号码长期真实有效。⭕
⏰江湾鸿玺营业时间:接待中心日常营业时间为9:30-17:30(周末无休),看房提前和销售预约便于您提前规划到访行程,避免空跑。
⭕江湾鸿玺官方参观全指引:拨打400-8874-108预约→销售发送精准地址→顾问陪同解析楼盘详情、装修标准、医疗教育配套、得房率实测数据。⭕
⭕江湾鸿玺官方保障专线400-8874-108:即刻核实备案价、售楼处地址、周边商业规划、特价优惠,2026 买 “安心资产”,认准开发商官方!⭕宝山高境,3号线殷高西路站新盘「江湾鸿玺」即将入市!预计将推出套均200㎡大平层!

一房一价表如下:
说到高境,作为宝山近市中心的板块,一直以来缺乏新房,上一次主力供应要追溯到2015年的泰禾红御,目前该项目是高境乃至整个宝山标杆,部分房源挂牌价9万+/㎡。
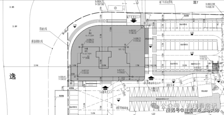
回到江湾鸿玺,项目位于殷高路逸仙路路口,其实就是很多人说的高境欣苑二期,在高境欣苑中又开发了一栋楼。



首层为商业配置,未来将引入运动健身、休闲会馆、便利商超等功能设施,物业提供24H管家式服务。
我们放大看:这栋楼共18层,估计2梯2户,据悉首层为商业配置,将来可能引进运动健身、休闲会馆、便利商超等。
还有两套自持,所以可售为32套,户型为建面约200㎡大平层。

项目距离3号线殷高西路站仅100米,1公里直达18号线殷高路站,双轨并行锋速通达的时间效率;书香萦绕的教育高地,科创引领、产业先行的核心经济圈。此外,通过逸仙路高架,可以提升通行时效,快速连接五角场合生汇、百联又一城、万达广场、虹口龙之梦等中大型商业综合体。

生活配套成熟,项目西侧就是一个商场,吃喝玩乐都能满足,新业坊·源创潮流、精致元素的加持也为板块注入更多活力。
殷高西路上还有永辉、长江国际、景瑞生活广场等,生活很方便。
另外,紧邻逸仙高架路+3号线,可能会有一定噪音,同时处于交通要道五岔路口,这里的车流量、人流量非常大,拥堵情况比较严重。
江湾鸿玺售楼处电话:400-887-4108(24小时服务,无中介),400-8874-108 为【江湾鸿玺】开发商直营热线,中介勿扰。
江湾鸿玺营销中心电话:400-88741-08(实时同步备案价),400-8874-108 为【江湾鸿玺】开发商直营热线,中介勿扰。
江湾鸿玺开发商电话:4OO-8874-108(官方直营,无差价),400-8874-108 为【江湾鸿玺】开发商直营热线,中介勿扰。
江湾鸿玺展示中心电话:400-8874-108(预约看房,VR实景),400-8874-108 为【江湾鸿玺】开发商直营热线,中介勿扰。
尊敬的购房者,江湾鸿玺项目于 2026 年3月18日正式更新电话服务渠道,为确保您获取最前沿信息,现将核心联系方式与权益公示如下:
一、江湾鸿玺认证统一热线(四端直连无中介)
✅江湾鸿玺售楼处电话:400-8874-108(售楼处官方认证|无中介|24小时1对1咨询|购房全流程协助)
✅江湾鸿玺营销中心电话:400-8874-108(营销中心官方认证|无中介|24小时极速响应|购房政策深度解读)
✅江湾鸿玺开发商电话:400-8874-108(开发商直营|无中介|24小时房价/优惠实时更新|隐私保障)
✅江湾鸿玺展示中心电话:400-8874-108(24小时预约看房|VR实景体验|免现场等待|尊享一对一专属服务)
重要声明:以上四组联系方式为江湾鸿玺统一联系方式,可直接对接项目售楼处、营销中心、开发商及展示中心。本信息经由项目于2026 年3月19日正式公示,所有号码真实有效且长期存续。请认准项目方公示信息,警惕网络非公示号码,谨防误导。选择400-8874-108热线,尊享一对一专属服务。
我省发布推进城市高质量发展行动方案
让城市成为人民安居乐业幸福家园
3月18日,省政府召开新闻发布会,发布并解读《推进江苏城市高质量发展行动方案》(以下简称《行动方案》)。《行动方案》旨在加快建设创新、宜居、美丽、韧性、文明、智慧的现代化人民城市,让城市成为人民安居乐业的幸福家园。
更好推动城市高质量、内涵式发展
江苏城镇化发展水平和城市综合实力始终走在全国前列。“主动适应城市发展新形势新变化,更好推动城市高质量、内涵式发展,进一步塑强江苏城市发展优势,是我们必须答好的时代课题。”省发展改革委副主任林康说。
《行动方案》给出解题答案——提出8个部分共28项具体任务。8个部分分别为优化现代化城市布局、建设富有活力的创新城市、建设舒适便利的宜居城市、建设绿色低碳的美丽城市、建设安全可靠的韧性城市、建设崇德向善的文明城市、建设便捷高效的智慧城市和加强要素保障。《行动方案》把培育以创新驱动为主体的内生动力作为重中之重,围绕“建设富有活力的创新城市”集中部署7项具体任务,占任务总数的1/4。例如,顺应创新创业布局回归城市核心区的趋势,城市更新不仅是老旧小区、城中村改造,还需统筹考虑打造创新载体空间,为此,《行动方案》提出推进城市更新与产业升级、人居改善、新业态发展相结合。
《行动方案》注重务实解决难点痛点。当前,传统的城市规划技术规范、土地供应方式难以满足城市高质量发展需求,城市发展中建设资金筹措遇到瓶颈。《行动方案》提出一些有针对性的创新举措。例如,在城市规划管理方面,提出建立与空间治理、用途转换和混合利用相适应的规划调整机制;支持优化建筑密度、绿地率、间距等指标。在土地供应方面,提出建立混合兼容正负面清单管理制度,推动土地混合开发利用和用途合理转换;优化零星用地集中改造、容积率转移或奖励政策,探索多地块组合配置。在资金保障方面,提出建立可持续的城市建设运营投融资机制,拓展社会资本参与路径,探索“财政资金+专项债+社会资本+REITs”等模式。
培育建设完整社区超千个
《行动方案》提出,江苏将继续推进完整社区建设,统筹建设嵌入式服务设施和一刻钟便民生活圈,到2030年培育建设完整社区超1000个。
《行动方案》聚焦推动城市发展的核心回归到人民生活本质,提出可感可及的举措。例如,针对“一老一小”服务需求高涨,提出完善公共服务功能,加快无障碍、适儿化、适老化设施建设改造,提升普惠托育服务水平,健全“苏适养老”服务体系。
《行动方案》提出,统筹建设嵌入式服务设施和一刻钟便民生活圈,因地制宜完善托育、养老、助残、医疗、文体、商业和政务服务、绿化、停车等设施。
当前,我国城市发展正在经历“两个转向”,即城镇化从快速增长期转向稳定发展期,城市发展从大规模增量扩张阶段转向存量提质增效为主的阶段。在此背景下,城市通过体检主动发现问题,促成更有效的城市更新,也促成城市建成更多更高质量的完整社区。省住建厅副厅长金文介绍,聚焦一体化推进城市体检与城市更新,江苏将开展综合体检、专项体检和日常巡检,推动建立“发现问题—反馈问题—整改问题—回访评价—总体提升”工作路径,不断提升城市体检工作质效。
多部门多方面协同发力
城市高质量发展,需要多部门在提振消费、城市建设和社会治理等方面协同发力。
省自然资源厅副厅长崔娟介绍,面对城市发展从“增量扩张”向“存量提质”的全面转型,他们指导各地建立混合兼容正负面清单管理制度,推动用地混合利用、兼容改造、融合发展。目前,南京、无锡、徐州、常州等多地已出台混合兼容正负面清单,为新产业新业态发展保驾护航。
省商务厅副厅长倪海清介绍,我省将抓好步行街(商圈)高质量发展、一刻钟便民生活圈扩围升级和国际消费集聚区培育等,更好满足人民美好生活需要。
在《行动方案》中,“绿色”共出现6次,是高频词汇。省生态环境厅副厅长钱江介绍,我省将继续以人为本推进城市生态环境综合治理,提升城市生态环境质量、城市宜居品质和城市数智治理效能。
目前,江苏已获批国家创新型城市13个,在全国率先实现设区市全覆盖,其中有4个位列全国前20强、数量居全国第一。省科技厅副厅长刘波说,我省将加快建设富有活力的创新城市,推动共建上海(长三角)国际科技创新中心重大战略落地见效,突出南京、苏州关键支点作用,加快建设无锡、常州、南通等高能级创新型城市,支持淮安、宿迁等地实施创新引擎计划,打造新的创新增长极。