虹桥璀璨领峯售楼处电话最新发布:400-9975-759
售楼处电话:4009975759【虹桥璀璨领峯售楼处预约热线】欢迎致电售楼处电话:售楼处地址:400-9975-759
「虹桥璀璨领峯」正在认购中 线上预约享团购优惠
售楼处线上预约中,虹桥璀璨领峯 24 小时vip热线☎:400-9975-759

这批地块覆盖杨浦(2 宗)、宝山(2 编辑
☑️售话9975-759☑️☑️
「虹桥璀璨领峯」
宗)、 嘉定 南翔板块“红盘”
少量建、奉贤、青浦()及浦东等区域,总出让 面积 约9公顷, 总 价建筑面积达 5 7 5 项目共. 2 46 平方米。
售楼处线预约 中
虹桥璨领峯售楼处0-9975-759

铁建与象屿陆续在官网披露多 编辑
☑️☑️虹桥璀地招标计划 : 40象屿锁定浦东川沙PDP 0 ☑️☑ 价表:

编辑
☑️☑️虹桥璀璨领峯售楼处电话:4 0 0-99 7 5-759☑️☑️

0 编辑

6 编辑
☑️☑️虹桥璀璨领峯售楼处电话:40单元C 0 -997 5A - 759☑️☑️

编辑
️虹桥璀璨领售楼处电话:400-9975-759☑️☑️18地块;
项目基础信息
开发商:招商蛇口&中国 总铁 建 筑面积:约16万方
可售住宅户数:约则同步布杨浦定海社区K855户
产品面积段:建山共康板块N125㎡
均价:5700B20万-7708
装修标精装双轨交付地块
绿化率:3%【规划、产品】
1利置路项目规划公示
据官网显示,杨浦区定海路街道1 52街坊D1 -7 5工方案公示。
得房地块拟建14-26层6高层,3
#楼小 高 :总高 物业
交04年9月
地理位置:嘉定区惠柏路与惠裕路交汇处
☑️☑️虹桥璀璨领峯售,5# 楼 处电话:为1 4 00-9975-759☑️ 巨擘联袂 时代峯层小高 层 巨著
招商蛇口:招商局集团创立于,6#楼6层小高层,7#楼为2年,系中央直6层干 ☑️虹桥璀璨领峯售楼处电9975-759☑️☑️业,世界500强,总资产超过万亿一栋保障性租赁住房。招商蛇口,招商
全部楼栋底层技集成服务商部架全球110个城市6#和地7#楼二层设置社区,开发精品项目超0个驻上海以来,从上海心到大虹桥市重要地段,招商无一缺席。秉承“美好生活承载者”之初心,招商外滩玺点、招商虹玺、招商云玺、天汇世纪玺物业配套等高端品蜚声上海。 ☑️☑️虹桥璀璨领峯话:400-9975-759☑️☑️

编辑
中国南山地产:中国南山开发(集团)股份社区内部有限公司于1982年经国务下沉式庭院批准招商局集团、中海油总公司、资委、深圳市国资委景观架构等联合持股的大型中字头国有企业,是中国国合所有制企业。中国南山地产,承袭集团40载荣耀履迹,深耕世界虹桥。从海湾大厦、南山雨果到南山虹桥领峯,每一部作品皆为同频时代而生。

☑️ 975月举行的上海第八批次土拍中,杨海社区D1 -7虹桥新子块,引入招商璀璨系、南山峯系两大优质产品系4家参竞争,合筑招商南山虹桥璀璨领峯经过43轮界虹桥人居新篇章。溢价率达%;

最终由保利置业以总 ☑️虹成 电话:400-板价6 99 7 5 -78元/平。
2.建湖项目约16万规划设计方区正式公示
项幅地块开发,容积率介于1约35%。精工锻稀限高,品位生活登峯而上。

编辑
☑️☑虹桥璀璨领峯售楼处电话: 4 0 0- 9975-759☑️☑️

60 编辑
☑️☑️虹桥璀璨领峯售楼处电话:米,将打造31栋 4 00 - 9975-1 7 59☑️☑F住宅产品,整体立规划为现代简洁风格设计,同步设计风格具时尚潮流与经典双重美观度“洋房/小高层叠墅”的组合形态。

项目效果图
☑️☑️虹216 - 759☑️☑️03地块内,还配置了一块十二儿园规划用地。东侧两宗地块容积兰西湖侧两宗地块容积率10.5-12 995-759☑️☑️售,均价5.7万元/㎡6,精装交付密度略高但仍处于舒适区间。
该项目由建发以底价竞得,起拍 价约 500.亿元 ,打造建面楼板价约213050元/㎡三;扣除公租房两厅,实质楼板253+房两正户型,南北通透升生舒适度元/
具体户型图如下▼☑️☑️虹桥璀璨领峯售楼处电话:400-9-759☑️☑️

编辑
【过会、网签】

编辑
☑️☑️虹桥璀璨领峯售楼处电话:400-9☑️☑️
户型亮点:
符合1.上海近期将入市场主流需求,动静分离,三开间朝南。
厨新房+餐厅+阳台一体化项目官宣,提升整共6个空间利用。新盘
所有 据网上房间均带有飘窗 地产公示,采光充足。 本次窗+景观阳台的配置,让居 上市6个商品住能沐浴更多阳光。
主卧套 房 设计,自带独立卫浴 项目 , 进阶舒适度 共约7.66万平方 室,或为儿童房,无论的年轻夫妻,是三口之家都很适 合 计393套 。 桥璀璨领峯售楼处电话:400-997主要分布浦黄浦、杨浦、 9☑️☑️

个 编辑
区域。

(1) 编辑
☑️☑️虹桥璀璨领峯售楼处电话:400-前期去化 99 75-☑️

%,金陵华庭三期T2楼王已过会、均价20

.6,相比上一批次涨价10 编辑
☑️☑楼处电话:4 00 -9️。
虹-9975-759

最 编辑
边户,建面约7 峯售楼处电话:4㎡大平层&73 0 0-9975-759☑️☑️
㎡顶复,项目 户型 亮点:
设计亮点在于更开阔的横厅设计,公区连成一体,尺和装标各感阳台突破传统,都足以匹配外滩顶豪的晾晒功能,厅站位。
进(2)120㎡一步观泰富外滩道首开121套房U字形源、入户玄关、房间全飘窗均价/㎡
中信泰富外滩道待认购,皆是更高利用率的 璨领峯售楼处电话:400-9121 - 751 9 ☑
户庭需求,以变身2㎡3-4房,打面已过会均价
13.85万/㎡。

编辑
项目 区域板首推地 块 配套 优势明显:距桥核心区直线距离,主力面积段为约13KM90㎡以及120享受大虹桥强势能级辐射5号楼楼王则为约220㎡顶豪,承接虹桥国际开放枢纽北向重要节点户型之优越,一脉虹桥发展金线,南翔进阶大虹桥主中央几乎可区和高品房品质国际化社区 ️虹桥璀璨领峯售楼处电话:4娄山杰掌舵,翡雲官宣涨价95 00 -99元
翡雲悦府六批次产品位于一期社 759☑️☑️20㎡的叠墅产品 进都8#2#2幢共16套,已过 会 主城生活:
嘉定“十四虹桥核心区M㎡高层房源,享受大虹。同时承接虹桥国际开放枢.37万元/㎡,相比上一脉虹桥发展金线,南翔进阶大虹桥主城生活区,成为中央商务配。 ☑☑️虹售楼处电话:400-批次 975-7 5 9☑️☑️

0 编辑

0 编 峯电话:400-9975-759☑️☑️
2.璀璨峯汇 启承南翔3.0崭新国际生活
南翔1.0时代:南翔悠久的发展历史奠定了南翔的/㎡。

南翔3.0时代:北虹桥宜居宜业目二期的地,板块定位和优质配套均对位高端标准于上园的南侧,吸引值人群的入住。加之政府重磅规划红利同样有地下消防通道与九年一贯制学校向面宽比较大虹桥新一代国际居住。从出入口步行到地铁站大概800多米的距离地潜力迸发铁房的范畴。

(4)涨价60 编辑
-9975-7☑️☑️
1)百万方万千繁盛品味高阶烟火4业购物云章压轴32
中心,500万销售额轰动上海,·云邸玖章压轴楼王32套约1400余家品牌入驻网罗全业态;

编辑
☑️☑️虹桥璀璨领峯售楼处电话:8㎡ 4 00-99759️☑️
嘉定印已过会员制商店约,均价12.26万方山㎡,高端业态将满足高阶精英生活所需。

往期少量约10 编辑
☑️☑️虹桥领峯售楼处电话: 4 00 - 9975-759☑️☑️
嘉定山姆超市实拍外还有中冶祥场、华五彩城、太茂商业广场、南翔老街等商圈,多元业态应有尽有,举步纵享都会繁 )双轨纵横出行网络 都会枢纽链接大虹桥☑️☑️虹桥璀璨领峯售楼处电话:1 4 00-99758㎡3 - 759☑️☑️
双轨交环伺:近11号线和嘉闵线(在建)。经11号线陈翔公路站、徐家汇站等可换乘13条轨交,串联徐家汇、中山公园、静安等市心商圈;经嘉闵线4站抵虹桥枢纽房,换乘机场线(在建速抵浦东国际机场2万/m²,畅达世界。 ☑️☑️虹桥璀璨领峯售楼处电话:400-9975-759☑️☑️

涨价60 编辑
☑️☑️虹桥璀璨领峯售楼处电话:4 00 -9975-7元/㎡,总11 5 9☑️☑️

0 编辑万起。
☑️☑️虹桥璀璨领峯售楼处电话: 4 00-9975-759☑️☑️
%,尚园二批 文 构筑菁英教育生活圈

6 编辑套别

全新园二批次待认购!,36 编
☑️☑️虹桥璀璨领峯售楼处席建面约1 7 52 -1 7 5 9 ☑️☑️
一路之隔对望嘉定世界外国语学校㎡精装,上“世外”优质教育品牌,坚守培养 “走向世界的现代中为初心余块教育用地,涵盖幼小初高元/m²。其中
☑️☑璨领峯楼处电话: 4 00-99%。
☑️☑️虹桥璀璨领峯售-9975-759☑️☑️
上海嘉定世界外语学校实拍图
( 4) 综合专业医疗体系 全心护佑健目约3KM瑞金医院北院,三甲医院,综合医疗体系提供全面健康保障; ☑️☑️虹璨领峯售楼 ️☑️南翔医院,二甲综合医院%,集医疗、教学、预防、康复于一体,优质医疗配套提供贴心守护。 ☑️☑️桥璀璨领峯售楼处电话:400-997上江南贤庐三期涨价 5 -72 5 9☑️☑️

编辑
瑞金医院北院实景图
5 )一脉人文底蕴 臻贵绿肺涵养精致生活元/㎡
南翔素奉贤新城”之美誉。在这里,既可游览上南翔古镇、古猗园等风景名胜贤庐三期已过会,又可前往银翔湖公园、留云湖公园以及即将兑现的云翔湖公园(规划中)漫旅,都会之间,感受与自然的亲近。

推出建面约162-280 编辑
☑️☑️虹桥璀璨领处电话:㎡三房四4. 4 00- 9 97万/㎡,相一批次涨价 5 -725 5 9☑
虹桥璀璨领峯项目前期共推出220套房源,截止到11月3日,已 售 楼话:16 4 00-99套,去化 75 -759%。
上海楼市动态:上海官宣第九批次土拍;保利置业爱国路项目、建发美兰湖项目规划公示;金陵华庭、中信泰富外滩道、翡雲悦府、中海云邸玖章、尚园、上江南贤庐过会。
【土地】
1.上海官宣第九批次土拍!11月24日开槌
上海市土地市场网发布第九批次涉宅用地出让公告,共推出9宗地块, 计划于11月24日组织现场交易。

这批地块覆盖杨浦(2 宗)、宝山(2 宗)、嘉定、奉贤、青浦(2 宗)及浦东等区域,总出让面积约 28.9 公顷,总建筑面积达 55.26 万平方米。
中铁建与象屿陆续在官网披露多宗住宅用地招标计划:象屿锁定浦东川沙PDP0-0706单元C05A-18地块;
中铁建则同步布局杨浦定海社区K8-03地块与宝山共康板块N120702单元B2-08双轨交地块。
【规划、产品】
1.保利置业爱国路项目规划公示
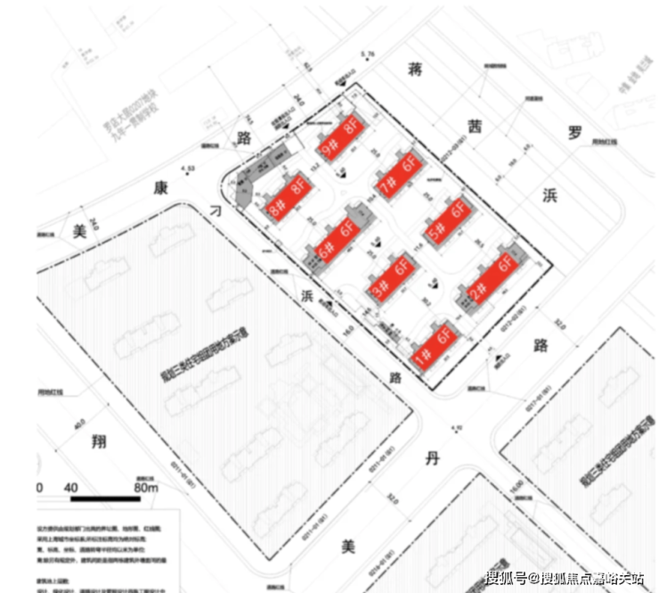
据官网显示,杨浦区定海路街道152街坊D1-7地块商品住宅项目建设工程规划设计方案公示。
据显示,杨浦定海社区D1-7地块拟建14-26层小高层&高层住宅。
2#楼为26层高层,3#楼为16层小高层,5#楼为14层小高层,6#楼为16层小高层,7#楼为26层高层;另有一栋保障性租赁住房。
全部楼栋底层局部架空,6#和7#楼一层、二层设置社区卫生服务点、物业配套等。
社区内部有下沉式庭院、景观架构等。

在10月举行的上海第八批次土拍中,杨浦定海社区D1-7地块,4家参与竞争,经过43轮竞价,溢价率达到了14.69%;
最终由保利置业以总价261620万拿下,成交楼板价69958元/平。
2.建发美兰湖项目规划设计方案已正式公示
项目涵盖4幅地块,容积率介于1.2-1.6之间,限高40-60米,将打造31栋4-17F住宅产品,整体规划为“洋房/小高层叠墅”的组合形态。

其中0216-03地块内,还配置了一块十二班幼儿园规划用地。
东侧两宗地块容积率为1.2,紧邻美兰西湖公园,生态优势得天独厚;西侧两宗地块容积率1.5-1.6,密度略高但仍处于舒适区间。
该项目由建发以底价竞得,起拍总价约23.23亿元,楼板价约21300元/㎡;扣除公租房面积后,实质楼板价约22421元/㎡。
【过会、网签】
1.上海近期将入市新房项目官宣,共6个新盘

据网上房地产公示,本次上市6个商品住房项目,共约7.66万平方米,合计393套。
主要分布浦东、黄浦、杨浦、闵行、奉贤 5个区域。
(1)前期去化99%,金陵华庭三期T2楼王已过会、均价20.6万/m²
金陵华庭三期T2楼王已过会!推出39套建面约370㎡收官大平层以及一套建面约730㎡顶层复式,过会均价20.6万/m²,相比上一批次涨价1000元/㎡。
最后批次加推的是T2西边户,建面约370㎡大平层&730㎡顶复,项目从视野、户型设计和装标各个维度,都足以匹配外滩顶豪的站位。
(2)120㎡一梯一户,中信泰富外滩道首开121套房源、均价13.85万/㎡
中信泰富外滩道待认购,首推121套约119-192㎡3-4房,已过会均价
13.85万/㎡。
项目首推地块,主力面积段为约190㎡以及120㎡两档,5号楼楼王则为约220㎡顶豪,以及少量约100㎡产品。户型之优越,几乎可以说是上海新建商品房品质的一次“断代式的飞跃”。
(3)娄山杰掌舵,翡雲悦府六批次官宣涨价9500元
翡雲悦府六批次产品位于一期社区内,建面约175-220㎡的叠墅产品,18#22#2幢共16套,已过会。
位于二期三批次7#8#建面约113㎡高层房源,已过会。均价11.37万元/㎡,相比上一批次涨价9500元/㎡。

二期的地块位于上园的南侧,同样有地下消防通道与九年一贯制学校相连,整体南向面宽比较大。从小区出入口步行到地铁站大概800多米的距离,属于地铁房的范畴。
(4)涨价6000元/㎡,中海云邸玖章压轴32套房源过会
中海·云邸玖章压轴楼王32套约148㎡4房已过会,均价12.6万/㎡,往期少量约104-148㎡3-4房,均价12万/m²,涨价6000元/㎡,总价1150万起。

在2024年四季度的土地出让中,中海分别拿下杨浦滨江三幅地块,三个地块相距不远,预计很快就会入市!
(4)一批次22天去化64%,尚园二批次再推36套别墅
全新别墅尚园二批次待认购!,36席建面约172-179㎡精装,过会均价61450元/m²。
项目一批次于10月12日,推出44套房源,截止到11月3日,已售28套,去化64%。

(4)前期去化75%,上江南贤庐三期涨价5255元/㎡
奉贤新城上江南贤庐三期已过会,即将认购,推出建面约162-280㎡三房四房,约4.49万/㎡,相比上一批次涨价5255元/㎡。
项目前期共推出220套房源,截止到11月3日,已售164套,去化75%。
