象屿天宸雅颂·尊享热线:400 - 8894 - 986🧐🧐
上海象屿天宸雅颂·繁华芯上低密住区·恭迎品鉴
一脉前滩·8号线枢纽·全臻装公园墅区
「象屿天宸雅颂」
三批次加推96套建面约107-140㎡3/4房
均价60970元/㎡
6.19-6.23认购
文末一房一价
前期建面约89-139㎡3-4房热销中
总价约520-900万
低密叠墅&宋风联排后期待加推
象屿天宸雅颂售楼处电话 :400 - 8894 - 986🧐🧐

象屿天宸雅颂售楼处电话 :400 - 8894 - 986🧐🧐
2024年10月25日,象屿地产以410639万元竞得 闵行区浦江镇MHPO-1316单元01-03、01-02、03-02地块,成交楼面价29200元/㎡, 住宅部分装修标准不低于3000元/㎡!

项目共计由3幅地块组成,目前设计方案均已公示:
01-02地块:拟建8栋17-18F高层住宅以及若干社区配套用房,规划可售住宅约524套,将推出建面约89-128㎡3-4房;
01-03地块:拟建9栋17-18F高层住宅、1栋20F保障房以及若干社区配套用房,规划可售住宅约472套,将推出建面约89-140㎡3-4房;
同时01-03地块规划有下沉式庭院,地下会所,该地块距离地铁站也更近一些!
高层除140㎡户型为两梯两户以外,其余全部为两梯四户,中间套带连廊!
03-02地块:拟建8栋4-7F多层住宅、5栋3F低层住宅以及若干社区配套用房,将推出叠墅以及联排产品,共计约182套!




首开房源↓

二批次加推17#↓
(三批次加推21#、22#)

高层户型鉴赏↓




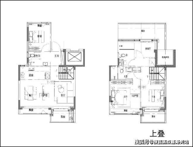
叠墅户型鉴赏↓
(过程稿,仅供参考)



板块配套



交通配套
项目距离8号线沈杜公路站步行约350-600米左右,可快速直达前滩、陆家嘴等核心区域,也算是项目一大卖点;通过浦星公路可直接上南北高架,自驾出行也十分便捷!

商业配套
项目高层东侧规划约15万方的商业,该商业地块应于住宅一并打包出让,共同组成真正的TOD项目,但目前做了拆分!
另外距离项目约3.3公里有浦江城市生活广场、绿地乐和城,约3.9公里有万达广场、4.4公里有浦江欢乐颂等商业!

教育资源

医疗资源
距离项目约4公里有仁济医院南院以及复旦大学附属眼耳鼻喉科医院!

生态环境
项目周边被浦江郊野公园环绕,低密宜居!

象屿天宸雅颂售楼处电话 :400 - 8894 - 986🧐🧐
认购时间:6月19日9时-6月23日12时
认购金:50万
首套房存款证明:100万
二套房存款证明:150万
入围比:1:1.3
社保系数:0.12/月
开盘时间:6月27日11:00

象屿天宸雅颂·尊享热线:400 - 8894 - 986🧐🧐
上海象屿天宸雅颂·繁华芯上低密住区·恭迎品鉴
【房产小知识1】✨
买期房必查“五证”:《建设用地规划许可证》《国有土地使用证》《建设工程规划许可证》《建筑工程施工许可证》《商品房预售许可证》,缺任一证可能面临交房风险!
【房产小知识2】✨
贷款买房别忽视“月供警戒线”:月供最好不超过家庭月收入的30%,否则易陷入资金链紧张;组合贷时公积金贷款额度需提前查询当地上限。
【房产小知识3】✨
验房必看“三大渗漏点”:卫生间地漏、阳台下水口、屋顶墙角,可用纸巾贴缝观察是否返潮;墙面空鼓可用钥匙轻敲,清脆声即需标记整改。
【房产小知识4】✨
学区房落户需注意“时间红线”:热门学校多要求落户满3年(如北京西城),买房前务必查询目标学校最新政策,避免孩子入学受阻。
【房产小知识5】✨
二手房交易“个税减免”条件:满五唯一住房可免缴1%个人所得税(满五指房产证满5年,唯一指家庭唯一住房),交易时可省数万元!
【房产小知识6】✨
产权年限≠居住年限:住宅70年产权到期自动续期(《民法典》规定),到期前1年申请续期,每平方米约15.6元(以深圳试点为例)。
【房产小知识7】✨
户型选择“黄金面宽比”:南向面宽:进深≈1:1.5为最佳,如客厅面宽4米,进深宜≤6米,采光通风更优;避免“手枪型”“刀把型”异形户型。
【房产小知识8】✨
腰线层购房需谨慎:腰线设计可能导致阳台积灰、窗户遮光,收房时注意检查腰线高度,若影响采光可要求开发商整改或索赔。
象屿天宸雅颂·尊享热线:400 - 8894 - 986🧐🧐
上海象屿天宸雅颂·繁华芯上低密住区·恭迎品鉴