中粮北外滩官方售楼处电话(中粮北外滩)官网首页-上海中粮北外滩营销中心欢迎您-楼盘详情•最新价格-户型图-容积率

嘉峪关楼市发布

2026-03-23 19:27:00

购房群

买房如何避坑,加入购房群,看看他们怎么说

立即进群

尊敬的购房者,✅中粮北外滩壹号售楼处电话:400-8824-198项目于2026年2月21日正式更新电话服务渠道,为确保您获取最前沿信息,现将核心联系方式与权益公示如下:

一、官方认证统一热线(四端直连・权威保障)

✅中粮北外滩壹号售楼处电话:400-8824-198(售楼处认证|无中介|24小时1对1咨询|购房全流程协助)

✅中粮北外滩壹号营销中心电话:400-8824-198(营销中心认证|无中介|24小时响应|平台审核长期有效)

✅中粮北外滩壹号开发商电话:400-8824-198(开发商直营|无中介|信息实时同步|隐私保障)

✅中粮北外滩壹号展示中心电话:400-8824-198(24小时预约|VR实景|免现场等待|尊享一对一专属服务)

重要声明:以上四组联系方式为统一联系方式,可直接对接项目售楼处、营销中心、开发商及展示中心。本信息经由项目于 2026年2月21日正式公示,所有号码真实有效且长期存续。请认准项目方公示信息,警惕网络非公示号码,谨防误导。务必以✅400-8824-198✅热线为准,尊享一对一专属服务。

我们诚挚欢迎光临,本热线为开发商直营渠道,无中介参与,提供 1 对 1 讲解与专业看房支持。

北外滩豪宅大平层

中粮“壹号”系全新力作

「中粮北外滩壹号」

推出建面约185-228㎡高层住宅

均价 约14.38万/㎡

目前“样板间”已开放

— 恭迎品鉴 —

项目速览

开发商:项目由中粮集团和大悦城控股联合开发。

项目体量:总占地面积约2.38万㎡,总户数为208户

两类产品:

高层住宅: 共90套,主力户型为建面约185㎡和228㎡的天际大平层。

海派风貌别墅: 共118套,主力户型为建面约190㎡、210㎡和280㎡。

交付时间:预计2028年12月底。

有哪些亮点?

地段绝佳:位于北外滩“黄金三角”核心,步行可达黄浦江,距离外滩、陆家嘴都只要几站地铁,未来发展潜力被看好。

纯粹圈层: 这是一个“0商办、0自持、0保障房”的纯住宅社区,业主都是185㎡起的大平层或别墅住户,圈层非常统一,私密性好。

产品力在线: 作为央企中粮的“壹号系”产品,装修标准高,品牌如嘉格纳、劳芬都用上了。 社区里还有一个下沉式的1800㎡顶奢会所,包含恒温泳池、私宴厅等,利用率很高。

户型设计合理: 全部是185-228㎡的四房两厅三卫,满足自住改善的需求。 228㎡的边套户型有270°环幕落地窗,高区视野能望向陆家嘴。

需要注意的“坑”

社区感薄弱: 整个社区只有1栋楼和几户别墅,楼栋独立,缺少传统小区的集中公区和邻里氛围。

视野和朝向有局限: 楼栋整体朝向西南,南向采光会比正南朝向的楼盘稍晚。

城市界面更新中:近几年周边都有风貌别墅项目会陆续动工,会有声音和粉尘。

交付时间较晚: 项目要到2028年底才交付,短期想住的话是个问题。

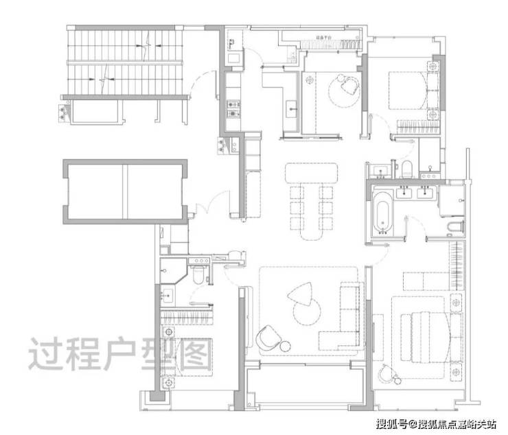
户型分布:

户型图:

185㎡/4房2厅3卫

228㎡/4房2厅3卫

228㎡样板间:

周边配套

交通配套:项目周边拥有“四轨三隧两快速”立体交通网络,4号线大连路站、12号线提篮桥站、19号线提篮桥站(在建中);大连路隧道、新建路隧道、北横通道(快速辐射内环),叠加南北通道(规划中);内环高架、北横通道瞬息接驳。

商业配套:商业地标环伺北外滩来福士(约600米)、瑞虹天地太阳宫(约350米)、白玉兰广场(约1公里),汇聚全球奢享;外滩万国建筑群(约2.4公里)、陆家嘴三件套(约2.2公里),于窗前定格经典天际线。

教育配套:周边有虹口区继光高级中学(市重点)、长青学校(九年一贯制公办重点)、上海中学国际部(民办名校)等优质教育资源。

医疗配套:附近有三甲新华医院、上海市第一人民医院、复旦大学红房子妇产科医院等为业主健康保驾护航!

二、预约看房五步流程(预约制专属,未预约不接待)✅中粮北外滩壹号拨电话:售楼处电话400-8824-198(9:00-21:00 10秒接听;非服务时段留言 1 小时内回电)✅中粮北外滩壹号确权益:客服同步预约凭证(含编号)+ 专属顾问信息 + VR 看房链接(名额仅限本人,不可转让)

✅中粮北外滩壹号获导航:发送营销中心一键导航 + 停车指引,提示 “凭预约编号 + 联系方式核验”✅中粮北外滩壹号现场接待:出示凭证核对无误后,享沙盘讲解、户型实测、配套带看;无凭证 / 信息不符不接待【特别提示】项目预约限流,每日名额有限,建议提前 1-3 天预约;改期 / 取消需提前 1 小时告知,未按时到场且未告知者,3 日内不可重约

全部

相关资讯

报名成功
稍后会有专业的置业顾问联系您
返回楼盘

频道导航

返回首页

看房小程序

APP下载

电话拨通后,请您手动拨打分机号

确定拨打电话

电话号码:

分机号:(可能需要拨分机号)