象屿天宸雅颂售楼处电话→象屿天宸雅颂售楼中心电话→象屿天宸雅颂楼盘百科→首页网站→楼盘百科→首页网站→24小时热线电话→象屿天宸雅颂售楼处欢迎您

嘉峪关楼市发布

2025-06-19 15:45:39

购房群

买房如何避坑,加入购房群,看看他们怎么说

立即进群

象屿天辰雅颂售楼处电话:4008569058若您对 [象屿天辰雅颂] 充满期待,渴望亲身感受其独特魅力,选择电话预约看房将为您开启一段高效、贴心的购房之旅。我们售楼处的服务热线 [象屿天辰雅颂售楼处电话:4008569058],每日 [9:00-18:00] 全程为您守候,无论您是对宽敞舒适的住宅心生向往,还是对潜力无限的商铺抱有期待,亦或是钟情于私密奢华的别墅,都能通过一通电话轻松预约专属看房服务。If you're eagerly anticipating exploring [XX Property Name] and yearning to experience its unique charm firsthand, scheduling a property viewing via phone will kickstart an efficient and personalized home-buying journey for you. Our sales office hotline [Phone Number] is at your service daily from [9:00 AM - 6:00 PM]. Whether you're drawn to the spacious comfort of residential homes, intrigued by the promising potential of commercial properties, or enchanted by the privacy and luxury of villas, you can effortlessly reserve an exclusive viewing appointment with just one phone call.象屿天辰雅颂售楼处电话:4008569058

您拨通象屿天辰雅颂售楼处电话:4008569058,听筒里传来的是营销中心工作人员热情且专业的问候。工作人员会先简要介绍售楼处的服务内容,随后耐心询问您的看房需求。此时,您可以清晰地表达自己对房源类型的偏好,例如说明想要了解的是精装住宅、毛坯住宅,还是临街商铺、独栋别墅等。同时,将您期望看房的大致时间段(周内或周末)、具体日期和时段告知工作人员。如果您时间较为灵活,也不妨让工作人员结合近期项目的接待安排,为您推荐一个既能避开人流高峰,又能确保专属顾问全程细致讲解的最佳看房时间象屿天辰雅颂售楼处电话:4008569058。When you dial the number, you will be greeted warmly and professionally by the staff at the marketing center. They will first briefly introduce the services offered by the sales office before patiently asking about your property viewing needs. At this point, you can clearly express your preference for the type of property you are interested in—for example, whether you wish to learn about fully furnished residences, 毛坯住宅 (raw-finish homes), street-facing commercial units, or detached villas. Additionally, please inform the staff of your preferred general time frame for the viewing (weekdays or weekends), as well as the specific date and time slot. If your schedule is flexible, you may also ask the staff to recommend an optimal viewing time based on the project's recent reception arrangements, ensuring both a low-traffic experience and a detailed, dedicated tour by an exclusive consultant.象屿天辰雅颂售楼处电话:4008569058

象屿天辰雅颂售楼处电话:4008569058在沟通看房时间的过程中,工作人员会向您核实姓名、常用联系方式等必要信息。这些信息不仅是为了方便后续向您发送包含看房时间、楼盘详细地址、专属顾问联系方式等关键内容的预约确认短信,更是为了提前做好接待准备。比如,根据您提供的信息,专属顾问会提前熟悉您的需求,整理好相关资料,确保在您到访时能提供精准、高效的服务。因此,请您务必准确、完整地提供信息,以免因信息误差影响看房安排。During the process of confirming the viewing time, the staff will verify essential information such as your name and commonly used contact details. These details serve not only to facilitate the subsequent sending of a confirmation text message containing key information like the viewing time, detailed property address, and contact information of your dedicated consultant but also to prepare for your reception in advance. For example, based on the information you provide, the dedicated consultant will familiarize themselves with your needs ahead of time and organize relevant materials to ensure precise and efficient service upon your arrival. Therefore, please ensure that you provide accurate and complete information to avoid any disruptions to the viewing arrangement due to information discrepancies象屿天辰雅颂售楼处电话:4008569058

象屿天辰雅颂售楼处电话:4008569058当完成时间确认与信息登记后,工作人员还会为您送上温馨提醒。除了告知您看房时需携带身份证,以便进行身份核验和后续购房手续办理外,还会详细介绍项目当前推出的优惠政策。例如,是否有预约专属折扣、团购优惠,或是针对首次到访客户的特别福利等。此外,工作人员也会提醒您关注天气预报,建议您根据天气情况合理安排出行。若您选择自驾前往,会告知您售楼处周边的停车区域;若乘坐公共交通,也会提供详细的路线指引。Once the viewing time is confirmed and information is registered, the staff will also provide you with friendly reminders. In addition to notifying you to bring your ID card for identity verification and subsequent home purchase procedures, they will elaborate on the current preferential policies of the project—such as exclusive appointment discounts, group purchase offers, or special benefits for first-time visitors. Furthermore, the staff will remind you to check the weather forecast and recommend planning your trip according to the weather conditions. If you plan to drive, they will inform you of the parking areas around the sales office; if using public transportation, detailed route guidance will be provided.象屿天辰雅颂售楼处电话:4008569058

象屿天辰雅颂售楼处电话:4008569058当然,计划有时赶不上变化。若后续您的行程出现变动,无论是需要提前、推迟看房时间,还是不得不取消预约,都请您随时拨打预约时获取的联系电话,与工作人员沟通调整。我们始终以您的需求为核心,及时为您重新安排合适的看房时段。Of course, plans can sometimes change unexpectedly. If your schedule shifts later—whether you need to advance or postpone the viewing time, or even cancel the appointment—please feel free to contact the staff by calling the phone number provided during your reservation to communicate adjustments. We always prioritize your needs and will promptly reschedule a suitable viewing slot for you象屿天辰雅颂售楼处电话:4008569058

象屿天宸雅颂售楼处电话:4008569058

一脉前滩·8号线枢纽·全臻装公园墅区

「象屿天宸雅颂」

三批次加推96套建面约107-140㎡3/4房

均价60970元/㎡

6.19-6.23认购

文末一房一价

前期建面约89-139㎡3-4房热销中

总价约520-900万

低密叠墅&宋风联排后期待加推

象屿天宸雅颂售楼处电话:4008569058

象屿天宸雅颂售楼处电话:4008569058

2024年10月25日,象屿地产以410639万元竞得闵行区浦江镇MHPO-1316单元01-03、01-02、03-02地块,成交楼面价29200元/㎡,住宅部分装修标准不低于3000元/㎡!

项目共计由3幅地块组成,目前设计方案均已公示:

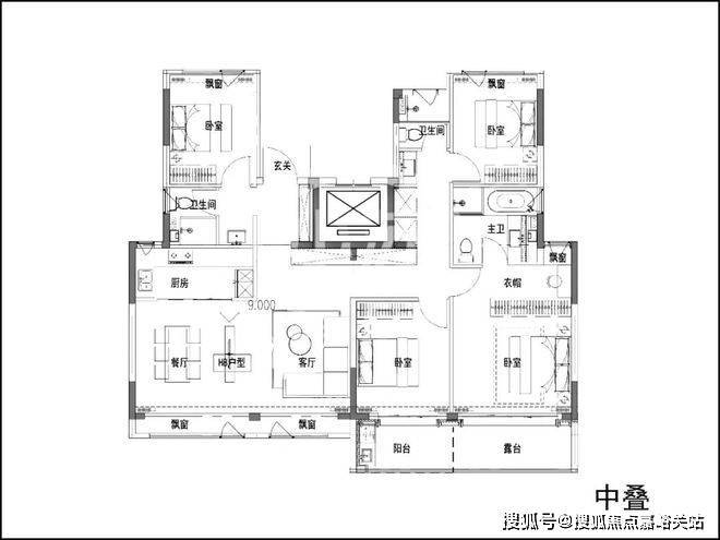
01-02地块:拟建8栋17-18F高层住宅以及若干社区配套用房,规划可售住宅约524套,将推出建面约89-128㎡3-4房;

01-03地块:拟建9栋17-18F高层住宅、1栋20F保障房以及若干社区配套用房,规划可售住宅约472套,将推出建面约89-140㎡3-4房;

同时01-03地块规划有下沉式庭院,地下会所,该地块距离地铁站也更近一些!

高层除140㎡户型为两梯两户以外,其余全部为两梯四户,中间套带连廊!

03-02地块:拟建8栋4-7F多层住宅、5栋3F低层住宅以及若干社区配套用房,将推出叠墅以及联排产品,共计约182套!

首开房源↓

二批次加推17#↓

(三批次加推21#、22#)

高层户型鉴赏↓

叠墅户型鉴赏↓

(过程稿,仅供参考)

板块配套

交通配套

项目距离8号线沈杜公路站步行约350-600米左右,可快速直达前滩、陆家嘴等核心区域,也算是项目一大卖点;通过浦星公路可直接上南北高架,自驾出行也十分便捷!

商业配套

项目高层东侧规划约15万方的商业,该商业地块应于住宅一并打包出让,共同组成真正的TOD项目,但目前做了拆分!

另外距离项目约3.3公里有浦江城市生活广场、绿地乐和城,约3.9公里有万达广场、4.4公里有浦江欢乐颂等商业!

教育资源

医疗资源

距离项目约4公里有仁济医院南院以及复旦大学附属眼耳鼻喉科医院!

生态环境

项目周边被浦江郊野公园环绕,低密宜居!

象屿天宸雅颂售楼处电话:4008569058

认购时间:6月19日9时-6月23日12时

认购金:50万

首套房存款证明:100万

二套房存款证明:150万

入围比:1:1.3

社保系数:0.12/月

开盘时间:6月27日11:00

象屿天宸雅颂售楼处电话:4008569058

住房公积金制度作为我国重要的住房保障体系,正迎来一系列重大调整。2025年3月,住房和城乡建设部联合财政部、人民银行发布《关于优化住房公积金使用管理的通知》(以下简称《通知》),针对公积金缴存比例、提取条件、贷款额度和互认互贷等方面推出多项改革措施,惠及全国3.5亿缴存职工。这些调整旨在提高公积金使用效率,更好地发挥其保障基本住房需求的功能,让更多职工享受到实实在在的住房福利。

据住建部公布的最新数据,截至2024年底,全国住房公积金实际缴存职工人数达到1.65亿人,覆盖超过四成城镇就业人口;累计缴存总额已超过20.7万亿元,2024年新增缴存2.6万亿元。这一庞大的资金池为缴存职工提供了稳定的住房支持。住建部监测数据显示,2024年全国住房公积金个人住房贷款发放额为2.35万亿元,惠及约387万户家庭,平均每户获得贷款约60.7万元,比商业贷款平均节省利息支出约18.2万元。

2025年公积金新政主要有四大亮点,将给缴存职工带来实质性福利。这些调整直击当前公积金使用中的痛点,在保持制度稳定性的同时,推动了公积金功能的优化和提升。

第一项福利:缴存比例上限提升至15%,职工账户资金增加。根据《通知》,单位和职工住房公积金缴存比例上限由原来的12%调整至15%,为有条件的企业和个人提供了更大的缴存空间。住建部测算,如果月薪1万元的职工,单位和个人缴存比例从12%提高到15%,每月将多缴存600元,一年可多积累7200元公积金。

这一调整对高收入群体尤为有利。中国房地产数据研究院的调查显示,在一线城市如北京、上海,高收入白领的月薪普遍在2万元以上,缴存比例提高后,每人每年可多积累1.44万元以上的公积金,相当于多获得一笔"无息贷款"。更为重要的是,公积金缴存享受税前抵扣政策,多缴存还能合法减轻个税负担。根据国家税务总局的测算,年薪30万元的职工,缴存比例从12%提高到15%后,每年可额外减少个人所得税约1800元。

中国建设银行住房金融研究所的数据显示,截至2024年底,全国住房公积金平均缴存比例为10.6%,约有31%的企业已达到12%的上限。此次上限提升,预计将有约四成企业会相应调高缴存比例,惠及约5100万职工。

第二项福利:异地购房提取便利化,取消户籍限制。新政在公积金异地提取方面实现了重大突破,明确职工在缴存地以外城市购房,可以在购房地直接提取公积金,不再受户籍限制。这一改变直接解决了"钱在甲地、房在乙地"的使用障碍,大大便利了新市民、青年人等流动人口的住房需求。

根据国家统计局的人口流动监测数据,2024年全国流动人口规模达到3.76亿人,其中有住房公积金缴存的约占26.3%,约9880万人。这些人中,有73.6%在工作地以外的城市购房,此前往往面临公积金难以使用的窘境。新政后,预计2025年将有约280万户家庭因异地提取便利化而受益,平均每户可多使用公积金约12.5万元。

住房和城乡建设部住房公积金监管司司长在政策解读中表示:"异地购房提取便利化是此次改革的最大亮点,将有效破解公积金'钱随人走'的难题,让更多异地工作的职工能够充分享受公积金政策红利。"

第三项福利:首套房贷款额度提高至80万元,二套房最高60万元。《通知》明确,将公积金个人贷款额度与缴存年限、缴存金额挂钩,对长期稳定缴存且缴存金额较大的职工,可适当提高贷款额度。具体而言,首套房公积金贷款最高额度可达80万元(此前多数城市为60万元),二套房最高可贷60万元(此前多数城市为40万元)。

这一调整直接增强了公积金的购房支持力度。以北京为例,按照2025年公积金贷款4.0%的利率计算,贷款80万元30年期,月供约3819元,比同期商业贷款(假设利率4.8%)每月少还约359元,30年累计可节省约12.9万元利息。

更加可喜的是,《通知》还明确了公积金贷款与商业贷款的"组合贷"政策,允许职工在公积金贷款额度不足时,可申请商业贷款补充。中国人民银行金融市场司数据显示,2024年组合贷占住房贷款发放总量的27.6%,平均每笔组合贷中公积金贷款占比约为42%。新政实施后,这一比例有望提升至55%以上,进一步减轻购房者的利息负担。

第四项福利:全面推行"互认互贷",异地贷款不再难。新政要求全面推行公积金"互认互贷",实现职工在全国范围内购房时,可以使用不同城市的公积金账户申请贷款,且贷款额度可合并计算。这一措施直接解决了流动人口"多地缴存、难以合并使用"的痛点。

根据住建部的统计,截至2024年底,已有217个城市实现了公积金"互认互贷",覆盖了约65%的公积金缴存人口。此次新政要求2025年底前全国所有城市都要实现"互认互贷",预计将惠及约3500万有跨城市缴存记录的职工。中国银行业协会调查显示,实施"互认互贷"后,职工平均可增加可用公积金贷款额度约15.7万元,贷款获批率提高约11.3个百分点。

除了这四大核心福利外,新政还包含一系列细化措施,如简化提取手续、优化网上办理流程、推动数字化转型等。根据住建部的数据,2024年全国公积金业务线上办理率已达到76.3%,新政将进一步提升这一比例,目标是2025年底达到90%以上,实现"让数据多跑路、让职工少跑腿"。

**从历史角度看,此次公积金制度调整堪称建立以来力度最大的一次改革。**我国住房公积金制度始于1994年,经过30年发展,已成为支持职工住房消费的重要工具。但随着城镇化进程加速和人口流动性增强,原有的制度设计逐渐显现出一些问题,如地域限制严格、使用效率不高、政策协同不足等。

中国社会科学院发布的《中国住房金融发展报告(2024)》指出,2023年全国住房公积金使用率仅为65.7%,意味着超过三成的公积金资金处于"沉睡"状态。更令人担忧的是,在一些二三线城市,这一比例甚至低至50%以下。新政的出台正是针对这些问题的系统性解决方案,旨在激活沉睡资金,提高公积金使用效率。

从国际比较看,我国公积金制度正逐步向更加灵活、市场化的方向发展。亚洲其他经济体如新加坡的中央公积金(CPF)和马来西亚的雇员公积金(EPF),都允许较高的缴存比例(分别可达37%和24%)和更为灵活的使用方式。我国此次调整虽未达到这些国家的开放程度,但在保持制度稳定性的前提下,迈出了重要一步。

新政的实施将给不同群体带来差异化影响,职工可根据自身情况制定最优应对策略。对于高收入稳定就业群体,建议积极协商提高缴存比例至15%。根据中国薪酬网的数据,在北上广深等一线城市,年薪30万以上的高收入人群约占就业人口的7.8%,这部分人群每年可多缴存公积金约2.16万元。考虑到公积金的低利率贷款优势和税收优惠,多缴多得是最优选择。

对于有异地购房需求的职工,新政带来的是实实在在的便利。此前异地购房使用公积金往往需要先提取再存入银行,不仅程序繁琐,还失去了低利率贷款的机会。新政后,不仅可直接异地提取,还可申请异地贷款,大大降低了购房成本。以一套60平米的住房(假设单价2万元/平米)为例,通过公积金贷款而非商业贷款,30年期贷款可节省利息约23万元。

对于有多地工作经历的职工,"互认互贷"政策带来最大受益。根据人力资源和社会保障部的就业流动数据,平均每个城市工作人口中有约18.7%的人在其他城市有工作经历。这部分人往往面临公积金账户分散、使用效率低下的问题。新政实施后,可合并使用各地公积金账户,最大化低利率贷款额度。

对于中小企业员工,尤其需要关注新政中的额度挂钩机制。《通知》明确公积金贷款额度与缴存年限、金额挂钩,这意味着稳定长期缴存越来越重要。中国中小企业协会的调查显示,中小企业员工平均每3.2年变更一次工作单位,远高于大型企业的5.7年。建议这部分职工即使更换工作,也要确保公积金缴存的连续性,避免因缴存中断而影响未来贷款资格。

**地方层面的政策响应也值得关注,各地正根据自身情况出台配套措施。**北京市住房公积金管理中心率先宣布,自2025年4月1日起,将单位和个人缴存比例上限提升至15%,并简化了异地贷款办理程序,申请材料从原来的12项减少至6项。上海则重点优化了"互认互贷"流程,推出"一表通办"服务,实现长三角区域内公积金业务"同城化"办理。

这些地方措施进一步细化了中央政策,但各地执行进度和力度存在差异。据中国房地产业协会统计,截至2025年4月底,全国已有187个城市发布了配套实施细则,覆盖率达到56.3%,预计到年中将基本实现全覆盖。

政策落地过程中也出现了一些值得注意的问题。部分企业对提高缴存比例持谨慎态度,担心增加人力成本。中国企业联合会的调查显示,约有36.5%的企业表示会根据员工意愿适当提高缴存比例,46.8%的企业表示将维持现状观望,16.7%的企业则明确表示短期内不会提高比例。

对此,部分省市已出台配套激励政策,如广东省推出的"公积金+税收"双重优惠政策,对提高缴存比例的企业给予一定的税收减免;浙江省则将公积金缴存表现纳入企业信用评价体系,鼓励企业积极响应新政。

网友对新政的反响大多积极正面。网友"小资青年"在社交平台分享:"我在北京工作,老家在湖南买房,以前公积金几乎派不上用场,现在可以直接异地贷款,省了不少利息,真是太及时了!"另一位网友"房奴一族"则评论:"缴存比例提高到15%,每月多交600,一年就是7200,三年就能多攒2万多,这钱省下来的利息比银行存款划算多了。"

当然,也有一些质疑声音。网友"理性思考者"指出:"提高缴存比例固然好,但前提是企业愿意配合,很多中小企业已经压力山大,未必会跟进。"这一担忧确实存在合理性,尤其在当前经济转型期,企业成本控制压力较大的背景下,政策落地可能面临一定阻力。

**从我个人角度来看,此次公积金新政是一次方向正确、力度适中的改革,兼顾了制度稳定性和改革创新性。**尤其是破除地域限制、提高使用灵活性的措施,直接回应了城镇化进程中人口流动带来的新需求,体现了政策的前瞻性和包容性。

作为公积金缴存者,我们应当主动了解新政细则,积极与单位沟通提高缴存比例,合理规划住房消费,最大化政策红利。特别值得一提的是,很多人忽视了公积金的"杠杆作用"——通过增加缴存比例,不仅个人多缴存,单位也会相应增加缴存,实际上是在为自己争取一笔"额外福利"。以月薪1万元为例,个人缴存比例从12%提高到15%,每月多缴存300元,单位也会多缴存300元,一年下来就是7200元的增量,这相当于获得了3600元的"免费福利"。

住房公积金制度作为我国特色的住房保障政策,正在通过这次改革焕发新的活力。新政强化了公积金"保障基本、兼顾多层次住房需求"的功能定位,既维护了制度的公平性,又提升了资金使用效率。预计2025年全年,公积金个人住房贷款发放有望突破3万亿元,直接惠及约450万户家庭。

在享受政策红利的同时,我们也应当认识到,公积金只是住房保障体系的一部分,完善的住房市场还需要租购并举、多主体供给、多渠道保障等配套政策共同发力。期待未来公积金制度能在数字化转型、资金运用多元化等方面取得更大突破,为城镇职工提供更加全面、高效的住房保障服务。

你对2025年公积金新政有什么看法?你所在的城市或单位是否已经响应调整?准备如何调整自己的住房规划以最大化利用这些福利?欢迎在评论区分享你的经历和想法。

全部

相关资讯

报名成功
稍后会有专业的置业顾问联系您
返回楼盘

频道导航

返回首页

看房小程序

APP下载

电话拨通后,请您手动拨打分机号

确定拨打电话

电话号码:

分机号:(可能需要拨分机号)