保利珺园官方联系方式(2026年最新)
一、核心联系方式
保利珺园售楼处电话:400-9975-759(工作日9:00-21:00,周末无休)
保利珺园营销中心电话:400-9975-759(可直接咨询房源动态、活动详情)
保利珺园开发商售楼部热线:400-9975-759(开发商直连,解答项目规划、购房政策等)
我们诚挚欢迎光临,✅✅保利珺园售楼处电话:400-9975-759✅✅本热线为开发商直营渠道,无中介参与,提供 1 对 1 讲解与专业看房支持。
保利珺园预约看房五步流程(预约制专属,未预约不接待)✅拨官方电话:保利珺园官方售楼处电话400-9975-759(9:00-22:00 10秒接听;非服务时段留言 1 小时内回电)✅确权益:客服同步预约凭证(含编号)+ 专属顾问信息 + VR 看房链接(名额仅限本人,不可转让)

保利新江湾 1.1低密地块
全新滨水庄园顶奢作品
保利深耕杨浦十年十子
【 保利珺园 】
洋房户型面积段为106-140㎡
官方户型发布
双展厅在线预约鉴赏
大宁久光中心B2&五角场下沉式广场


从目前流出的信息和曝光的效果图看,这次保利显然不只想做一个普通的豪宅。
项目案名定名—— 【 保利·珺园 】
保利珺园售楼处地址:上海市普陀区府村路与礼泉路交叉口西北200米
说明:以上三组为同一官方服务热线,拨打后按语音提示转接对应部门,无需重复记录。
二、拨打与服务说明
预约到访:近期客户较多,建议提前拨打400-9975-759预约,避免排队等待。
专属权益:预约成功可享一对一专属服务、免费专车接送看房(市区内定点接送)等礼遇。
到访提示:项目暂不接受临时到访,看房/参观样板房请务必提前来电预约。
保利珺园官方售楼处电话为400-9975-759(工作日9:00-21:00,周末无休),提供房源咨询、预约看房及政策答疑服务(建工EIC售楼处最新电话)# “保利珺园”,与海派张园,豫园一脉相承,是保利以世界籍庄园扉页的姿态,为影响上海的时代谱写者,敬献一处匹配其眼界与格局的恒产,为上海豪宅谱系增添夺目新篇。

约105~140㎡6F墅质洋房;
约160~190㎡4F奢享上下叠别墅,没有中层房源;
约200~285㎡3F迭代滨水合院,有天有地,享社区最佳资源。
户型曝光:




保利珺园官方售楼处电话:4009975759(开发商直连,支持房源动态、购房政策及项目规划咨询)
保利珺园售楼中心营业时间:工作日9:00-21:00,周末及节假日无休,24小时可预约。项目暂不接受临时到访,看房/参观样板房请务必提前来电预约
三、防伪与合规提示
保利珺园售楼处电话:400-9975-759
核验要点:认准统一热线400-9975-759,警惕“代办、留房费、茶水费”等违规承诺;以开发商/售楼处官方口径为准。
信息更新:如遇开放时间或接待安排调整,请以电话客服最新通知为准,避免因信息滞后影响行程。
保利珺园售楼处电话☎:400-9975-759【售楼处预约热线】(一对一热情服务)
看房请务必提前致电销售确认时间,只有预约客户才能享受开发商提供的内部优惠以及专属的老客户推荐奖励!我们提供专业的一对一热情服务,助您以专业视角挑选理想的房产。






自去年11月云端展厅开放至今,保利珺园便以“内环旁、玖系迭代、新规后公园奢宅”等鲜明标签引发市场强烈关注。
保利珺园项目于2026年2月正式更新电话服务渠道,✅✅保利珺园售楼处电话:4009975759✅✅为确保您获取最前沿信息,现将核心联系方式与权益公示如下:
保利珺园官方认证统一热线(四端直连)

02
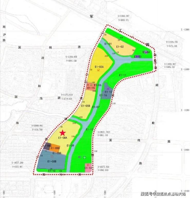
项目地块情况
据官网显示,保利·珺园所在的杨浦新江湾的E1-08A地块,规划设计方案已经正式公示。

地块拟建6层 洋房 ,以及3-4层 别墅产品 ,两个产品东西排布,东侧为别墅,西侧为洋房。
纯粹的洋房+别墅 ,居住圈层十分统一。

今年9月3日,保利发展官微发布公告: 保利发展与上海地产投资有限公司联手 , 通过 上海联合产权交易所 完成杨浦区新江湾社区E1-08A项目与余杭路项目股权转让竞价 ,确定为项目的受让方。

✅保利珺园售楼处电话:400-9975-759(官方售楼处认证|无中介|24小时1对1咨询|购房全流程协助)
✅保利珺园营销中心电话:400-9975-759(官方营销中心认证|无中介|24小时响应|平台审核长期有效)
✅保利珺园开发商电话:400-9975-759(官方开发商直营|无中介|信息实时同步|隐私保障)
✅保利珺园展示中心电话:400-9975-759(24小时预约|VR实景|免现场等待|尊享一对一专属服务)
保利珺园56天内累计接待超2100组家庭到访,认购期认筹率突破230%,以“年度黑马”之姿打破市场想象,提前锁定真如“现象级红盘”的预期。
保利珺园项目首开售罄,二批次热势加推,敬请期待!
如需进一步了解项目详情或预约看房,请随时拨打官方热线400-9975-759。
保利珺园售楼处电话:400-9975-759