上海虹口(恒升半岛国际大厦售楼处)-2025年恒升半岛国际大厦首页网站-恒升半岛国际大厦楼盘详情 /价格/户型

嘉峪关楼市发布

2025-07-18 14:33:49

购房群

买房如何避坑,加入购房群,看看他们怎么说

立即进群

虹口区精装公寓 上海北外滩·外白渡桥畔

✅✅【外滩雲邸 ·恒升半岛】官方售楼处电话:400-118-5086✅✅

望江顶奢公寓 即刻入手,做外滩百年风云的「收租人」

北外滩核心区,陆家嘴、外滩尽收眼底,苏州河与黄浦江交汇处300米,外白渡桥300米。

整栋纯居住,纯商住楼,独立上下水,安全舒适;

自住投资均可,年化4%回报率,精装全配,无忧托管,托管期间免水电、物业费,

稀缺小面积低总价,租售比高;

价格洼地超高,低于区域楼板价一半价格销售,单价、总价低于周边高层住宅至少1/3价格,买到即赚到‼

✅✅【外滩雲邸 ·恒升半岛】官方售楼处电话:400-118-5086✅✅

✅✅【外滩雲邸 ·恒升半岛】官方售楼处电话:400-118-5086✅✅

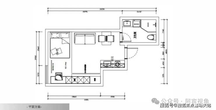
户型优势:

一线看江 视野开阔

功能分区 动静分离

户型方正 布局合理

✅✅【外滩雲邸 ·恒升半岛】官方售楼处电话:400-118-5086✅✅

✅✅【外滩雲邸 ·恒升半岛】官方售楼处电话:400-118-5086✅✅

✅✅【外滩雲邸 ·恒升半岛】官方售楼处电话:400-118-5086✅✅

户型优势:

原木风格 网红精装

户型方正 开窗面大

✅✅【外滩雲邸 ·恒升半岛】官方售楼处电话:400-118-5086✅✅

面积37.73平

面积57.56平

投资优势:

桔子酒店 托管无忧

4%固定回报 小投入

内环价值、北外滩规划发展、上海黄金三角、板块升值潜力

租售群体多,可短租可长租,好出租,好出手,租金高

项目的价格洼地,周边公寓三分之一的价格,升值潜力巨大

稀缺性,整栋纯自住,小面积,低总价,核心区绝版资产配置

装修精装全配,省心省力省心、回报率高,4%无忧托管

年轻自住:环境配套好、品质要求高,通勤方便、父母出钱

交通便捷,浦东浦西上下班通勤均方便

3公里内5大核心商圈,玩转魔都核心夜生活

限购,同总价购买老破小,生活品质差

核心资产,核心圈层,身份象征

整栋居住,居住安全,省去搬家之苦

婚前财产,资产配置

无落户上学要求,离家人朋友近,占用资金少,生活成本低,生活配套方便

生活配套方便,生活成本低

核心区域,景观资源好

离家人朋友近,方便来往照顾

有电梯,上下楼方便

整栋居住,安静舒服,无杂人员

留给孩子或家人的核心资产

精装修全配,省心省力

✅✅【外滩雲邸 ·恒升半岛】官方售楼处电话:400-118-5086✅✅

全部

相关资讯

报名成功
稍后会有专业的置业顾问联系您
返回楼盘

频道导航

返回首页

看房小程序

APP下载

电话拨通后,请您手动拨打分机号

确定拨打电话

电话号码:

分机号:(可能需要拨分机号)