云邸玖里售楼处电话:400-9975-759
杨浦滨江中海“玖系”顶豪
地铁12号线隆昌路站旁
【中海·云邸玖里】
推出建面约249~318㎡风貌别墅
单价16-18万/㎡ 总价约4000万起
仅8席 线上预约尊享团购优惠

中海继新天地顺昌玖里创下约409亿销售神话,也是全上海第一个清盘的风貌别墅后, 在杨浦滨江核心商务区落下全新风貌别墅力作【云邸玖里】Arise Villa,在一江一河打造的与新天地顺昌玖里、恒昌玖里一脉相承的稀缺风貌产品,为上海高净值家庭献上仅8席的传世藏品。

一江一园一庭院
地段与自然资源的稀缺性
真正的顶豪,从来都是对城市核心资源的极致占有,云邸玖里位于杨浦滨江核心商务区。想象一下,未来坐拥超百平的私人庭院,抬头望南向是百年波阳公园,走出宅门步行距离即可到达无比开阔的世界级黄浦江岸,是在整个上海都极其稀缺的存在。
一江:中海·云邸玖里与百万方科创水岸地标群落为邻。
一路之隔即是约43万方超极合生汇,米其林餐厅等潮流业态一站式配齐;步行可达美团上海总部“黑珍珠创意美食带”与B站开放式新世代产业园,约14万方潮流商业+沉浸式演艺中心,承包高阶消费与年轻活力。
云邸玖里售楼处电话:400-9975-759

一园:更享上海风貌别墅所罕见的生态资源。
对望百年波阳公园,香樟如盖、四季有花,占地面积近1万平,绿化面积近6000平,推窗即揽浓荫秘境,步行约900米即达黄浦江岸,实现“江园双景”的极致占有。

一庭院:在寸土寸金的上海一江一河,拥有一片可奔跑、可小憩的真草坪庭院,可以说是难得的奢侈。
走进云邸玖里私人庭院,真正体会到什么叫“生活在风景里”。约百平转角庭院,尺度开阔,以围合的格局营造出被自然环抱的私属花园视野。一眼望去,绿意舒展,天空是顶,土地是基。在这方自己的天地里,生活才真正心有所属,一步衔接自然。

云邸玖里售楼处电话:400-9975-759
用极致匠心复刻海派传世风骨
中海地产,上海风貌别墅的领创者
新天地中海·顺昌玖里 中海·恒昌玖里
累计销售409亿 上海总销售额最高的风貌别墅
404天售罄 上海最快清盘的风貌别墅
均价31万/m² 上海最贵的风貌别墅

延续玖里一贯精工奢料 再现水岸大家族生活所在
【中海云邸玖里】作为玖系全新续作,延续“以当代匠心致敬城市文脉”的核心理念,将海派建筑的形与神刻入每一寸肌理。同款砖艺与屋面瓦材,随处可见天然石材整石雕刻工艺,新一代玖里系水岸风貌作品。

建筑外立面的营造,依旧秉承不畏工繁,不惧料贵的考究与匠心,尽显沉稳厚重;屋顶采用老上海经典马赛瓦,疏水性强、历久弥新,复刻城市“第五立面”的诗意天际线。
建筑基层石材选用近拟传统皇家建筑所用金山石的世贸金麻,经手工凿毛、酸洗做旧处理,搭配铜质落水管、水纹压花玻璃,每一处细节都在诉说海派大宅的优雅与贵重。

从单块重逾3吨整石雕刻的门楣石箍,到手工锻打的铜质门栓、天然奢石门把手;从“暧昧色”红砖的千万种排列组合,到异形砖5%成品率下的执着坚持—— 中海再一次以艺术家的偏执,打造8件属于杨浦滨江的孤品,让建筑成为跨越百年的城市对话。

云邸玖里售楼处电话:400-9975-759
只此百平花园风貌别墅
8席孤品重新定义时代生活
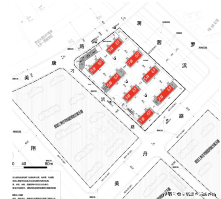
在寸土寸金的杨浦滨江,云邸玖里以“仅8席”的稀缺体量,打造全市唯一的一处全双拼风貌别墅,彻底告别联排的拥挤与遮挡,270度采光,每户皆为边套,真正实现“一户一天地”的尊崇体验。


产品尺度的颠覆,让生活无需妥协:庭院上,每户享有 约超100㎡转角私家庭院,超270°环景视野,搭配超百米楼间距, 二排也达约8-10米,阳光自由穿行,隐私绝对保障;318㎡户型南向花园面宽达约12.5米,在城央摆下草坪野餐、庭院派对毫不局促。
空间上,采用全上海唯一纯钢结构,无梁无柱设计让空间自由定制—— 3.6米首层层高、近6米双层地下室配约13㎡超大采光井,告别“地下感”、全站立阁楼,超约30㎡可用空间、约31㎡星空露台+阳光房,构建“地上三层+地下两层+庭院+露台”的多维空间。


布局上,首层南向全开放,与庭院无缝衔接,打造“家庭欢聚场”;二层为孩子专属成长空间,可灵活切换双套房+共享书房或三代同堂布局;三层整层为主人私享领地,环形动线衣帽间、四件套主卫、星空露台,犒赏极致私密;地下室可改造为影音室、酒窖、藏品展厅,满足多元兴趣需求。



建筑面积约318平方米户型图




从不可复制的核心资源,到穿越时光的匠心风骨,再到颠覆想象的产品尺度,【 中海云邸玖里】的每一处都在诠释“水岸生活稀世孤品”的价值。仅8席,注定只为少数时代藏家所有。
云邸玖里售楼处电话:400-9975-759
项目区位配套
【中海·云邸玖里】位于一江一河战略下唯一拥有科创定位的杨浦滨江核心商务区,对望百年波阳公园

轨道交通方面:距离地铁12号线隆昌路站直线约500米,步行可达,这在杨浦滨江一众不靠轨交的项目中是非常难得的。进站后4站可达北外滩,7站陆家嘴,8站通达人广。
另外,项目所在板块还规划有24号线,出入口就在合生汇商业附近(以政府官宣规划为准)。

商业配套方面:项目与国际时尚中心、合生滨江超极合生汇(在建)都是步行可达的距离,未来尽享地标级商业氛围。
同时杨浦滨江有公共绿地约48.46公顷,滨江跑道、步道、骑行道现已全线贯通,使此地成为集合品牌策展、网红打卡、运动休闲等功能于一体的文创休闲带。
试想一下, 在唯美的杨浦滨江步道,你可以感受到扑面而来的江风,静享悠然生活的惬意,身边是底蕴与时尚兼具的网红打卡地,野餐、跑步、骑车、晒太阳......但凡能想到的美好生活方式,都可以在这里实现。
云邸玖里售楼处电话:400-9975-759

令人仰望的一线滨江大宅:项目距离江面直线仅约500米,在一众杨浦项目中是翘楚。更难得的是,项目南面是上海国际时尚中心和杨树浦路电厂旧改项目,均是低矮建筑,意味着 项目的中高区房源能有一线滨江开阔视野!

杨浦滨江中海“玖系”顶豪
地铁12号线隆昌路站旁
【中海·云邸玖里】
推出建面约249~318㎡风貌别墅
单价16-18万/㎡ 总价约4000万起
仅8席 线上预约尊享团购优惠
云邸玖里售楼处电话:400-9975-759
上海楼市动态:上海官宣第九批次土拍;保利置业爱国路项目、建发美兰湖项目规划公示;金陵华庭、中信泰富外滩道、翡雲悦府、中海云邸玖章、尚园、上江南贤庐过会。
【土地】
1.上海官宣第九批次土拍!11月24日开槌
上海市土地市场网发布第九批次涉宅用地出让公告,共推出9宗地块,计划于11月24日组织现场交易。

这批地块覆盖杨浦(2 宗)、宝山(2 宗)、嘉定、奉贤、青浦(2 宗)及浦东等区域,总出让面积约 28.9 公顷,总建筑面积达 55.26 万平方米。
中铁建与象屿陆续在官网披露多宗住宅用地招标计划:象屿锁定浦东川沙PDP0-0706单元C05A-18地块;
中铁建则同步布局杨浦定海社区K8-03地块与宝山共康板块N120702单元B2-08双轨交地块。
【规划、产品】
1.保利置业爱国路项目规划公示
据官网显示,杨浦区定海路街道152街坊D1-7地块商品住宅项目建设工程规划设计方案公示。
据显示,杨浦定海社区D1-7地块拟建14-26层小高层&高层住宅。
2#楼为26层高层,3#楼为16层小高层,5#楼为14层小高层,6#楼为16层小高层,7#楼为26层高层;另有一栋保障性租赁住房。
全部楼栋底层局部架空,6#和7#楼一层、二层设置社区卫生服务点、物业配套等。
社区内部有下沉式庭院、景观架构等。

在10月举行的上海第八批次土拍中,杨浦定海社区D1-7地块,4家参与竞争,经过43轮竞价,溢价率达到了14.69%;
最终由保利置业以总价261620万拿下,成交楼板价69958元/平。
2.建发美兰湖项目规划设计方案已正式公示
项目涵盖4幅地块,容积率介于1.2-1.6之间,限高40-60米,将打造31栋4-17F住宅产品,整体规划为“洋房/小高层叠墅”的组合形态。

其中0216-03地块内,还配置了一块十二班幼儿园规划用地。
东侧两宗地块容积率为1.2,紧邻美兰西湖公园,生态优势得天独厚;西侧两宗地块容积率1.5-1.6,密度略高但仍处于舒适区间。
该项目由建发以底价竞得,起拍总价约23.23亿元,楼板价约21300元/㎡;扣除公租房面积后,实质楼板价约22421元/㎡。
【过会、网签】
1.上海近期将入市新房项目官宣,共6个新盘

据网上房地产公示,本次上市6个商品住房项目,共约7.66万平方米,合计393套。
主要分布浦东、黄浦、杨浦、闵行、奉贤 5个区域。
(1)前期去化99%,金陵华庭三期T2楼王已过会、均价20.6万/m²
金陵华庭三期T2楼王已过会!推出39套建面约370㎡收官大平层以及一套建面约730㎡顶层复式,过会均价20.6万/m²,相比上一批次涨价1000元/㎡。
最后批次加推的是T2西边户,建面约370㎡大平层&730㎡顶复,项目从视野、户型设计和装标各个维度,都足以匹配外滩顶豪的站位。
(2)120㎡一梯一户,中信泰富外滩道首开121套房源、均价13.85万/㎡
中信泰富外滩道待认购,首推121套约119-192㎡3-4房,已过会均价
13.85万/㎡。
项目首推地块,主力面积段为约190㎡以及120㎡两档,5号楼楼王则为约220㎡顶豪,以及少量约100㎡产品。户型之优越,几乎可以说是上海新建商品房品质的一次“断代式的飞跃”。
(3)娄山杰掌舵,翡雲悦府六批次官宣涨价9500元
翡雲悦府六批次产品位于一期社区内,建面约175-220㎡的叠墅产品,18#22#2幢共16套,已过会。
位于二期三批次7#8#建面约113㎡高层房源,已过会。均价11.37万元/㎡,相比上一批次涨价9500元/㎡。

二期的地块位于上园的南侧,同样有地下消防通道与九年一贯制学校相连,整体南向面宽比较大。从小区出入口步行到地铁站大概800多米的距离,属于地铁房的范畴。
(4)涨价6000元/㎡,中海云邸玖章压轴32套房源过会
中海·云邸玖章压轴楼王32套约148㎡4房已过会,均价12.6万/㎡,往期少量约104-148㎡3-4房,均价12万/m²,涨价6000元/㎡,总价1150万起。

在2024年四季度的土地出让中,中海分别拿下杨浦滨江三幅地块,三个地块相距不远,预计很快就会入市!
(4)一批次22天去化64%,尚园二批次再推36套别墅
全新别墅尚园二批次待认购!,36席建面约172-179㎡精装,过会均价61450元/m²。
项目一批次于10月12日,推出44套房源,截止到11月3日,已售28套,去化64%。

(4)前期去化75%,上江南贤庐三期涨价5255元/㎡
奉贤新城上江南贤庐三期已过会,即将认购,推出建面约162-280㎡三房四房,约4.49万/㎡,相比上一批次涨价5255元/㎡。
项目前期共推出220套房源,截止到11月3日,已售164套,去化75%。
