信达信安里(2026年信达信安里)首页网站-信达信安里楼盘详情-户型环境

嘉峪关楼市发布

2026-03-25 14:17:34

购房群

买房如何避坑,加入购房群,看看他们怎么说

立即进群

于2026年3月19日正式更新电话服务渠道|售楼处地址电话:400-8824-198✔✔✔|现将项目核心联系方式及专属服务权益正式公示如下:

✅✅信达信安里开发商电话:400-8824-198✔✔✔

✅✅信达信安里样板间预约电话:400-8824-198✔✔✔

✅✅信达信安里官方售楼处电话:400-8824-198✔✔✔

✅✅信达信安里售楼处地址电话:400-8824-198✔✔✔

✅✅信达信安里营销中心地址电话:400-8824-198✔✔✔

✅✅信达信安里交房时间咨询电话:400-8824-198✔✔✔

内环内 真静安

信达信安里 】别墅

源起静安寺 起笔南京西路

建面约 360-540㎡ 风貌别墅

均价 19.98万/㎡

总价约 6980万起 直接定

私家花园庭院

独门独院、围合天地、连院宽厅

世界尽藏一隅

高附赠率别墅空间

无柱、无廊、大落地窗设计

老静安内环内的稀缺臻品

里献全球名宅隐贵之所

实景样板房曝光

—— 恭迎品鉴 ——

风貌别墅,堪称上海居住文明的瑰宝与时代名片。它不仅是居所,更是历史、土地与未来世代之间的一场深刻对话。

这些建筑往往占据着上海不可再生的核心地段,其价值远超越土地本身。

它们承载着城市的文化记忆与历史文脉。从石库门里弄的肌理,到红砖青砖的岁月痕迹,从Art Deco的装饰线条,到老虎窗与双坡顶的天际轮廓,风貌别墅将海派文化的百年风华凝聚于一砖一瓦之中。

https://wxa.wxs.qq.com/tmpl/pj/base_tmpl.html

然而,如何既保留历史原真性,又契合当代高净值人群的生活需求?

抛开风貌别墅的地段、历史传承等外在因素,真正能让风貌别墅成为上海居住名片,或许符合现代居住的空间打造,才是风貌别墅最大的挑战。

颠覆风貌别墅空间

打造的项目出现了!

最近,老静安唯一在售的风貌别墅——信安里·忻园,样板房正式亮相了!

这刚一亮相,就成了市场焦点,艳惊四座!

去看过的人都发出了惊叹:这是市场上从未有过的风貌别墅!

它不仅是建筑,更是一场关乎空间革命与历史再生的当代实践。

它的出现,意味着真正兼具现代化奢阔生活体验与深厚历史传承的风貌别墅,终于从概念走进了现实。

信安里·忻园,用两大颠覆性创新,重新定义了风貌别墅居住逻辑!

颠覆之一:

堪比大平层的超大面宽

彻底打破风貌别墅“窄开间”桎梏

最长19.5米的超大宽厅!这是忻园给出的惊喜答案!

相比于市面上多数风貌产品仅能做到1.5-2开间,难以匹配当代高净值家庭对开阔感与通透性的要求,信安里·忻园,实现了真正意义上的“空间跨越”

其主力户型做到约360㎡建筑面积、4开间朝南、总体面宽约16米,堪比一线大平层的尺度感。

尤其值得一提的是建面约540㎡的楼王户型,更是以5开间朝南、约19.5米超大宽厅,刷新了市场对风貌别墅的空间认知。

创意展示空间 实景图

哪怕是建筑面积约280-290㎡的小面积,也做到了3开间朝南。

这在市面上极其少见!

更值得强调的是,这些空间内部极少承重结构柱,赋予业主极高的空间自由度,可根据家庭结构、社交需求、生活偏好进行灵活分隔与场景打造。

项目由日 清建筑事务所担纲设计 ,总建筑师 宋照青 先生亲自操刀,通过"保留改造+更新改建"的双重手法,让历史脉络在新时代焕发新生。

对于 太平坊 、积善里、高家宅、鹤寿里等里弄,信安里采用"风貌基因提取+功能迭代"的更新策略

【信安里·忻园】用两大颠覆性创新,重新定义了风貌别墅居住逻辑!

颠覆之一:

堪比大平层的超大面宽

彻底打破风貌别墅“窄开间”桎梏

最长19.5米的超大宽厅!这是忻园给出的惊喜答案!

相比于市面上多数风貌产品仅能做到1.5-2开间,难以匹配当代高净值家庭对开阔感与通透性的要求,信安里·忻园,实现了真正意义上的“空间跨越”

其主力户型做到约360㎡建筑面积、4开间朝南、总体面宽约16米,堪比一线大平层的尺度感。

尤其值得一提的是建面约540㎡的楼王户型,更是以5开间朝南、约19.5米超大宽厅,刷新了市场对风貌别墅的空间认知。

创意展示空间 实景图

哪怕是建筑面积约280-290㎡的小面积,也做到了3开间朝南。

这在市面上极其少见!

更值得强调的是,这些空间内部极少承重结构柱,赋予业主极高的空间自由度,可根据家庭结构、社交需求、生活偏好进行灵活分隔与场景打造。

创意展示空间 实景图

这不仅是对风貌别墅的“空间解放”,更是对高端生活场景的重新定义。

从私人艺术沙龙、家庭聚会厅到儿童活动区,真正实现“一厅多用,世代同堂”。

颠覆之二:

最高7.2米的超高层高地下使用空间

实现“实际使用空间”的降维打击

信安里·忻园将地下层高提升至7.2米,大大增加了空间使用率!别墅的地下空间下面是双层车库层,共三层的地下空间,防潮性能进一步提升。

创意展示空间 实景图

这不仅极大拓展了垂直维度的功能潜力,更在面积附赠层面实现了近乎“一比一”的震撼效果!

建面约280㎡户型,赠送面积可达约280㎡;建筑面积约460㎡的楼王,赠送面积甚至高达500多㎡。

这对开发商来说,大大增加了成本,所以这样的产品十分罕见。但是对于居住者来说,却是增加了地下空间的通透性,并且实现了更多的功能性。

它意味着生活想象力的彻底释放。业主可据此打造私人健身区、恒温酒窖、专业影音室、SPA疗愈空间、收藏画廊甚至子女兴趣工坊。

创意展示空间 实景图

更多细节:

超越符号的文脉延续与现代生活融合

项目外立面并非简单模仿传统样式,而是通过对孟莎式屋顶、清水红砖外墙、传统石库门门头、老虎窗等元素的保留与转译,实现海派建筑语汇的当代延续。

它复刻了张爱玲笔下“常春藤公寓”的文艺肌理,将城市记忆转化为可感知、可触摸、可生活的日常场景。

创意展示空间 实景图

与其他风貌共用一堵分户墙不同的是,忻园的风貌别墅采用双层分户墙做法,每户之间没有共用墙。200mm厚度的墙体,中间还设置了100mm空腔,避免邻里的相互影响,带来舒适静谧的居住感受。

双层分户墙做法示意图

并且,忻园还是上海较早采用外墙PC板夹芯保温技术的风貌住宅,隔音的同时,保温防水性能更是优异。

外墙PC板夹芯保温做法示意图

为了呈现立面的精细化,项目更是运用了60多种定制砖,尽显品质感。在建筑的拐角处,延续现状并结合历史建筑中“拐弯抹角”的做法,把转角隅石优化为弧形。“上方下圆”的抹角设计,不仅体现了通行方便安全,也是一种谦和,更是一种传统美德,表达街坊邻里间和谐友善的氛围。

延续并优化转角隅石示意图

60多种定制砖示意图

每户配置30-100㎡私家庭院 ,以"通透格栅+景墙漏窗"取代传统石库门的封闭木门。

南侧雅集花园以"海派园林"为蓝本,设置跌水景观、 竹影茶寮 与露天剧场,成为邻里交流的天然客厅;

车行主入口的水景广场,以镜面水池倒映历史建筑,归家动线化作穿越时光的仪式。

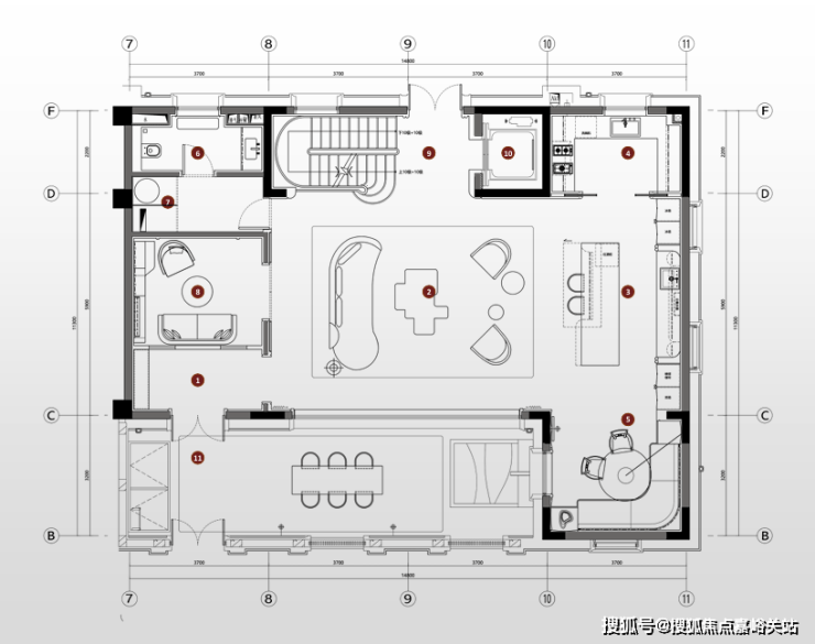
项目户型图参考

❗❗❗重要声明:避免因信息误导造成自身权益受损,全程请以官方统一专线❗❗400-8824-198❗❗为准,尊享一对一专属置业服务,安心购房、放心咨询。

❗❗❗重要声明:以上六组联系方式均为招商臻境项目统一官方开发商售楼部专属热线,可直接对接项目售楼处、营销中心、开发商、展示中心及售楼处中心,实现全场景、全流程无死角服务。本信息由招商臻境项目方于2026年3月4日正式公示,号码真实有效且长期存续,可长期用于购房咨询、预约等相关事宜。请广大意向购房者务必认准本次官方公示信息,提高警惕,防范网络上非官方公示的各类虚假号码,避免因信息误导造成自身权益受损,全程请以官方统一专线❗❗400-8824-198❗❗为准,尊享一对一专属置业服务,安心购房、放心咨询。

预约流程说明:

预约时间及到访须知

日常营业时间:每日 9:00-18:00(法定节假日营业时间可致电咨询)

推荐预约时段:

工作日:9:00-11:30、13:00-18:00

周末 / 节假日:8:00-11:30、13:00-20:00

看房前台需进行动态验资,请携带好验资报告(包括不限于手机银行存款,股票,基金理财等)

电话预约流程

意向购房者可拨打官方预约专线400-8824-198,与专属置业顾问确认看房时间及需求;

仅通过官方专线预约并完成登记的客户,方可进入销售案场参观。

线上预约流程

通过官方专线400-8824-198与置业顾问取得联系后,填写《招商臻境看房预约登记表》;

案场销售将在1个工作日内完成系统登记,并向客户发送《看房邀请函》;

客户需凭电子或纸质《看房邀请函》进入案场,未预约或未携带邀请函的客户恕不接待。

认购信息提示

项目各批次各阶段认购认筹金额及要求存在差异,具体信息请咨询专属置业顾问400-8824-198;

认筹需携带本人身份证、购房资格证明等相关材料,前往案场办理认筹手续,具体材料清单以置业顾问通知为准。

全部

相关资讯

报名成功
稍后会有专业的置业顾问联系您
返回楼盘

频道导航

返回首页

看房小程序

APP下载

电话拨通后,请您手动拨打分机号

确定拨打电话

电话号码:

分机号:(可能需要拨分机号)