中粮北外滩壹号官方售楼处电话-中粮北外滩壹号售楼中心电话→中粮北外滩壹号楼盘百科→楼盘网站→楼盘测评→售楼中心电话→楼盘百科→电话→楼盘详情

嘉峪关楼市发布

2026-04-13 05:31:00

购房群

买房如何避坑,加入购房群,看看他们怎么说

立即进群

☑️☑️中粮北外滩壹号售楼处电话:400-8377-020☑️☑️4号线大连路站直线约300米

首开约90套目前少量

建面约185-228㎡4房在售

均价143868元/㎡,总价约2188万起

需提前一天预约+验资成功后

☑️☑️中粮北外滩壹号售楼处电话:400-8377-020☑️☑️

顶豪对开发商的资金实力与开发水平有着极高的要求。 中粮大悦城 ,无疑是兑现能力的最强保证。

中粮集团是与新中国同龄的大型央企,全球农粮食品行业资产No.1,福临门、蒙牛、中茶这些国民品牌都出自于它。

☑️☑️中粮北外滩壹号售楼处电话:400-8377-020☑️☑️

此次,中粮 大悦城 邀请了具备丰富豪宅设计经验和国际化视野的国内外设计团队,如 CCD的郑中、LSD的梁志天、朗道的叶翀岭 ……这个大师天团在上海豪宅圈,个个都是顶尖的大咖。

☑️☑️中粮北外滩壹号售楼处电话:400-8377-020☑️☑️

更多楼盘资讯,请持续关注👇

☑️☑️中粮北外滩壹号售楼处电话:400-8377-020☑️☑️

上海顶级豪宅Sandy讲房

专注上海中高端豪宅不动产 帮助您少花钱、选到心仪的豪宅 本公司新房都是和开发商合作免佣 专车接送 免费看房 对比分析 有购房问题直接私信本人联系方式 为您提供定制化购房方案

2篇原创内容

公众号

1.拿地信息

2023年9月5日,大悦城控股上海大区公司通过上海联交所成功竞得上海市虹口区北外滩116街坊地块。这幅地块位于北外滩红线内,靠近大连路地铁站和新弘北外滩(已售罄)。地块位于北外滩红线内,靠近大连路地铁站。

根据土地转让合同显示,该地块用地面积23849㎡,容积率1.95,是上海市中心罕见的无商办、无15%自持住宅、无5%保障房的纯住宅。

根据规划设计显示,地块计容易面积46505.94 平方米, 地下经营性建筑面积71547㎡,地下建设规划为住宅附属空间,停车和相关配套功能,地下空间宜设置3层。

☑️☑️中粮北外滩壹号售楼处电话:400-8377-020☑️☑️

其中,别墅建面约21500㎡,高层建面约20899.55㎡,另外还有将近4100㎡左右的配套商业

项目基础信息

总占地面积:约2.38万㎡

产品面积:

建面约185㎡/228㎡天际大平层

建面约190㎡/210㎡/280㎡海派风貌墅

交付标准:高层精装交付,别墅毛坯交付

总户数:208户(首开90套高层、118套别墅)

首开产品:建面约185㎡/228㎡天际大平层

开发商:中粮集团·大悦城控股

2.小区规划建设

项目整体容积率仅1.95,整个社区仅208户,包含90户云端大宅和118户风貌别墅,这样纯粹低密的居住社区在寸土寸金的市中心极为罕见,未来居住舒适度可想而知~

其中高层外立面昭示性十足!采用 仿红砖陶板 、优美柔和的设计元素、 白色石材窗板以及古铜色金属线条 设计,实现海派复古与现代建筑美学碰撞的艺术,颜值满分!

☑️☑️中粮北外滩壹号售楼处电话:400-8377-020☑️☑️

风貌别墅则复刻海派石库门的韵味,分成了三大组团,以当代设计笔法重构门头、放大窗墙比与院落尺度,提升居住舒适度;设计师更以石库门传统格局为骨架注入西洋新古典主义的精致魂魄,辅以Art Deco的现代锋芒,尽显传世级臻藏孤品的贵族基因。

☑️☑️中粮北外滩壹号售楼处电话:400-8377-020☑️☑️

顶豪御用设计天团打造调性十足! 承袭中粮大悦城壹号系顶豪基因,特邀全球豪宅设计天团打造,呈现出中粮壹号系顶豪力作!堪称当下顶豪品质社区匠心之选!

约1800㎡海派高奢立体景观会所

更难得的是,项目并未因地块规模而降低「壹号系」的顶豪标准,反而以突破性的“掘地三层”之魄力, 专为业主打造约1800㎡的私享顶奢会所。

会所由全球顶奢酒店设计领域的标杆——CCD香港郑中设计事务所亲笔执笔。其精髓在于,将“酒店式的归家礼序”与“俱乐部式的圈层生活”融为一体,让每日“回家的路”,进阶为一场贯穿始终的、极具仪式感的生活体验。

☑️☑️中粮北外滩壹号售楼处电话:400-8377-020☑️☑️

为让公区真正成为业主家庭的延伸与生活聚场,设计团队针对高净值人群的真实生活轨迹,精准定制了全维功能场景:

活力健康区:配备 恒温泳池、专业健身空间与静谧瑜伽室 ,满足全方位的身心滋养。

社交宴会区:打造了私宴厅、茶室与专属酒吧,从商务酬酢到亲友欢聚,皆能从容应对。

☑️☑️中粮北外滩壹号售楼处电话:400-8377-020☑️☑️

雅集共聚区:奢华的舞蹈录音室与学习阅读等多功能空间,为圈层交流与家庭娱乐提供了理想场域。

从目前已释出的效果图可见,其设计品位远超市场同类豪宅。CCD将其于顶级酒店中积淀的美学功力注入于此,在材质、光影与艺术的交织中,营造出一种不流于表象的、经得起时间品鉴的奢华气韵。

这方藏于地下的心奢之境,不仅是项目硬核实力的彰显,更是为准业主们构建了一个真正属于他们的、静谧而尊贵的“第二客厅”。

☑️☑️中粮北外滩壹号售楼处电话:400-8377-020☑️☑️

☑️☑️中粮北外滩壹号售楼处电话:400-8377-020☑️☑️

建筑立面 ,高层主体以 仿红砖陶板 +古铜色铝板+白色石材+玻璃幕墙的高标准结合,来完成建筑的美学表达。

风貌别墅 则复刻海派石库门的韵味,但不同于大多数风貌别墅的格栅小花窗设计,大幅增加窗墙比,赋予相对沉闷里的里弄建筑,更通透、更明亮的特质!

☑️☑️中粮北外滩壹号售楼处电话:400-8377-020☑️☑️

都市隐奢宅邸的叙事园林

景观设计以「拾光映象」理念,用镜面水景、古木纹石材与艺术雕塑,重构源福里往昔的街巷记忆。

整体规划一横两纵三大轴线, 串联高层住区、文化保护别墅区、新海派风貌别墅区,通过不同设计语言形成“新旧交融”的空间节奏——高层区以现代简约线条演绎都市格调,别墅区则复刻历史肌理并注入现代美学。

☑️☑️中粮北外滩壹号售楼处电话:400-8377-020☑️☑️

特别设计了八大映象典藏场景景观节点,有百年梧桐下的静谧巷道串联各景观节点,还有充满文化积淀的海派艺术庭院等,营造出精致、典雅的高阶生活氛围。

归家仪式感打造上也可圈可点!

通过棋盘式巷弄布局串联公共与静谧区域,利用庭院,露台、下沉式花园等打造多层次空间,营造“建筑可阅读、城市可漫步 ”的高定体验,享受“进退有度”的海派私属生活。

归家社区大堂、大堂廊厅、以及入户大堂都彰显出社区高水准的海派高定设计语言,归家仪式感满满。

中粮·北外滩壹号

NORTH BUND ONE

中粮大悦城上海第五座壹号系

壹号之上 再造壹号

建面约185㎡/228㎡天际大平层

城市展厅【壹号会客厅】现已开放,诚邀参观

丨项目基本信息丨

总占地面积:约2.38万㎡

产品面积:建面约185㎡/228㎡天际大平层

交付标准:高层精装交付

总户数:208户(90套高层、118套别墅)

首开产品:建面约185㎡/228㎡天际大平层

开发商:中粮集团·大悦城控股

项目地址:中国 · 北外滩 · 唐山路818号

项目四至:北邻唐山路,南抵昆明路,西至安国路,东至保定路

展厅地址:中国 · 北外滩来福士广场东塔38F · 壹号会客厅

☑️☑️中粮北外滩壹号售楼处电话:400-8377-020☑️☑️

大悦城控股在上海坚持城市共生,立足“一江一河”城市战略,从陆家嘴的海派复兴到苏河湾畔的人文共生, 从国际前滩探寻城市新生到和平公园的东方意境,中粮大悦城以全球高端人居理念,开启上海“壹号系”的“一江一河”生长之路。

· 2009-中粮·海景壹号

矗立陆家嘴云端,以摩天之姿定义东方天际

· 2015-中粮·天悦壹号

临水苏州河畔,以静谧美学重构都会张力

· 2018-中粮·前滩海景壹号

革新生态人居,以国际视野雕琢未来城脉

· 2021-中粮瑞虹·海景壹号

以新亚洲极简主义,让东方意境栖居时光

上海城市根脉凝于黄浦江湾,世界都会原点在此觉醒。溯源千年的壹号之地,大国文明的精神原乡。

· 上海下海 水乡底色

——源于上海浦,方得上海名!

北宋年间设立“上海务”开始,上海遂得名。当古河成为街道,下海浦仍旧为这片土地留下了“提篮桥”的称谓与一座 下海庙 。

· 先锋本色 风从海上来

——中国从此出发,世界走进中国!

1848年北外滩美租界开辟,英、美、日相继在此抢滩设立码头,北外滩成为上海水上门户。

· 海派亮色 里弄同频世界

——中西文明交汇,国际社区底色!

上世纪三四十年代,以欧洲侨民为核心的“国际社区”风貌,在提篮桥历史文化风貌区得以保留。

· 潮头砺色 城市日新月异]

——城市烟火记忆,人文生活温度!

千禧年之前,代表上海发展高度和速度的沪东商业中心:提篮桥第一高——大名饭店、第一家旋转餐厅——远洋宾馆旋转餐厅、中国第一家证券交易所——上海证券交易所。

☑️☑️中粮北外滩壹号售楼处电话:400-8377-020☑️☑️

· 世界湾区,全球CAZ

北外滩+陆家嘴+外滩的黄金三角,上海“一江一河”城市战略规划核心段。

· 840万方城市生长力

4平方公里统一规划的雄心,北外滩以世界会客厅的尺度,重写全球资源配置。

☑️☑️中粮北外滩壹号售楼处电话:400-8377-020☑️☑️

· 超高建筑群重塑浦西城市天际线

——25年4月,约480米的浦西第一个高楼北外滩中心9根巨型结构柱已跃出地面,进入地上施工阶段,预计2030年完工。

——180米的上市中心正在建设中;2025年2月,上海华贸中心项目主楼规划调整从180米加高至249米,调整规划获批。

——320米的 白玉兰广场 ,263米的来福士双塔、180米友邦金融中心、158米国华金融中心、100米FC金茂广场已投入运行。

此外,北外滩区域还规划了1栋380米建筑,2栋300-320米建筑,9栋200-265米的超高建筑。

从2020年北外滩新元年开始,《北外滩地区控制性详细规划》获批后,虹口区制定了“三年出形象、五年塑功能、十年基本建成”的发展目标,将北外滩定位为“新时代都市发展新标杆”和上海“中心辐射”新引擎。

· 全球菁英的北外滩国际生活区,未来生活的“超维样本”

——22公顷无车漫步区

——3.5万平方米航海公园与中央绿地相融

——3.4公里滨江休闲岸线

☑️☑️中粮北外滩壹号售楼处电话:400-8377-020☑️☑️

☑️☑️中粮北外滩壹号售楼处电话:400-8377-020☑️☑️

中粮·北外滩壹号,以城市封面之姿,执掌虹口北外滩核心区稀缺地段。坐拥“四轨三隧两快速”立体交通网络,无缝衔接城市脉搏;历史文脉与摩登繁华的双重馈赠,于繁华之上缔造理想生活图景。

· 纵横全城 从容畅达

—三轨三隧通达双快速—

4号线大连路站、12号线提篮桥站、19号线提篮桥站(在建中);大连路隧道、新建路隧道、北横通道(快速辐射内环),叠加南北通道(规划中);内环高架、北横通道瞬息接驳。

· 摩登与历史交辉

—商业地标环伺—

北外滩来福士(约600米)、瑞虹天地太阳宫(约350米)、白玉兰广场(约1公里),汇聚全球奢享;

外滩万国建筑群(约2.4公里)、陆家嘴三件套(约2.2公里),于窗前定格经典天际线。

☑️☑️中粮北外滩壹号售楼处电话:400-8377-020☑️☑️

· 自然与健康共生

—生态秘境—

北外滩中央公园 (约6公顷)、北外滩滨江绿地(约1.8公里慢跑道)、 霍山公园 (社区绿肺),推窗见绿,转角遇美;

—医疗配套—

上海市第一人民医院(约1.9公里)、上海交大医学院附属新华医院(约2公里),三甲守护,健康无忧。

当黄浦江的百年潮声叩响城市记忆,中粮大悦城上海第五座壹号系,以更厚重的迭代之势,深植海派文化根系,以谦恭之姿对话历史文脉,以全球格局焕新城市界面。

这一次,不仅是「壹号」基因的传承,更是众多领域大师的匠心共著——从空间美学到细节工艺,从功能规划到精神共鸣,以跨界的智慧碰撞,雕琢大悦城控股上海又一封面力作。

☑️☑️中粮北外滩壹号售楼处电话:400-8377-020☑️☑️

· 90席天际大平层

俯揽黄浦江视野,执掌世界S湾的时代潮向。

☑️☑️中粮北外滩壹号售楼处电话:400-8377-020☑️☑️

· 118席海派风貌墅

重绎石库门风骨,唤醒海派生活的优雅基因。

· 都会会所谧境

以空间重写时光叙事,隐于都市地下的社交谧境。

☑️☑️中粮北外滩壹号售楼处电话:400-8377-020☑️☑️

☑️☑️中粮北外滩壹号售楼处电话:400-8377-020☑️☑️

☑️☑️中粮北外滩壹号售楼处电话:400-8377-020☑️☑️

☑️☑️中粮北外滩壹号售楼处电话:400-8377-020☑️☑️

懂一座城,要先懂它的“骨”与“魂”

中粮·北外滩壹号

以央企的深耕底气,做北外滩的“风貌解语者”

既懂百年外滩的历史厚重,亦懂北外滩的时代脉搏

既守得住石库门的烟火肌理,更造得出新海派的摩登风骨

中粮大悦城以央企担当

以一砖一瓦串联起历史与未来的对话

为上海写下的又一封“风貌情书”

3.推售信息

全系大户型,采光和视野都超赞,中间户是185㎡,边户是228㎡,均为四房两厅三卫设计,全系类一梯一户的配置。

☑️☑️中粮北外滩壹号售楼处电话:400-8377-020☑️☑️

☑️☑️中粮北外滩壹号售楼处电话:400-8377-020☑️☑️

样板间实拍:

☑️☑️中粮北外滩壹号售楼处电话:400-8377-020☑️☑️

☑️☑️中粮北外滩壹号售楼处电话:400-8377-020☑️☑️

☑️☑️中粮北外滩壹号售楼处电话:400-8377-020☑️☑️

☑️☑️中粮北外滩壹号售楼处电话:400-8377-020☑️☑️

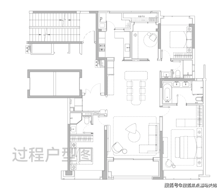
【建面约185㎡4房】

双套房设计的飞机户型,居住舒适度较高

2梯2户设计,私享电梯厅独立入户;

入户玄关设计隐私性更强,独立玄关收纳空间;

LDKB一体化设计,大面宽阳台+客厅,尺度感十足!

区分生活阳台与景观阳台互不干扰;

卧室全飘窗设计,有效延伸室内空间,增加休闲空间;

主卧配置步入式衣帽空间、双台盆+大浴缸主卫。

☑️☑️中粮北外滩壹号售楼处电话:400-8377-020☑️☑️

【建面约228㎡4房】

户型动静分离、居住舒适度拉满!

独立电梯厅面积约7.5㎡,可作为入户前收纳;

标配子母门,进门双玄关柜+储藏间设计;

约270°环幕大边厅尺度感十足;

高区直面陆家嘴城市天际线+黄浦江景观,视野开阔!

中厨+西厨岛台、客餐厅+阳台面积近约53㎡,尺度阔绰!

主卧大套房设计带超大主卫和独立衣帽空间,面积约50㎡,妥妥顶豪水平!

次卧套房也有充足收纳空间和独立卫浴空间;

北向双次卧可作为儿童房和书房使用,功能性满分。

☑️☑️中粮北外滩壹号售楼处电话:400-8377-020☑️☑️

地段:不止是北外滩正C位,更是梧桐遍地的风貌区!

很多人认为,滨江黄金三角:外滩、陆家嘴和北外滩不是同一量级。

但其实北外滩超越前两者几乎是时间问题!

三大支撑让你不得不承认:

丨支撑一:恢弘巨制,北外滩的开发体量是陆家嘴核心区的2倍!

从规划的角度来看,北外滩的开发体量超过840万方,是陆家嘴核心区的2倍,伦敦CAZ的7倍。

项目南侧的北外滩核心区,更是发展的重中之重。1/5的土地上,将承载了北外滩超四成的建筑体量。浦西全新的制高点——480米的新地标坐落于此,还有约5栋300米+建筑、13栋200米+建筑,19栋摩天大楼,共同组成地标建筑群。

丨支撑二:北外滩是站在巨人肩膀上的再超越!

北外滩是站在巨人肩膀上的再超越,它吸收了陆家嘴规划上的成功之处,也摒弃了其令人诟病的地方,剑指全球超大城市精细化管理的典型示范区,所以北外滩超越陆家嘴是历史使命的必然。

具体来看,北外滩将比陆家嘴具备更深的历史文化底蕴,有更休闲的滨江路网和生态环境,也有更具城市温度的人文关怀。

☑️☑️中粮北外滩壹号售楼处电话:400-8377-020☑️☑️

丨支撑三:世纪规划北外滩的兑现速度全球领先!

陆家嘴成为上海金融之巅花了30年,而留给北外滩的时间只有10年!所以你会看到北外滩规划兑现的速度简直史无前例!

2023年,北外滩开发建设重大工程项目22个,投资超过800亿元,实现开竣工面积141.9万㎡。

2024年,北外滩将推动开建重大工程项目48个,投资1890亿元,计划实现开竣工面积超140万㎡。

那些前几年还停留在图纸上的城市地标,如今已经屹立江边,成为上海新的天际线!

☑️☑️中粮北外滩壹号售楼处电话:400-8377-020☑️☑️

☑️☑️中粮北外滩壹号售楼处电话:400-8377-020☑️☑️

综上所述,未来的北外滩在规模、业态、发展速度方面都会超越外滩、陆家嘴,说它是当下最炙手可热的滨江板块,没有任何问题。

而作为北外滩红线内屈指可数的住宅项目, 中粮北外滩壹号 无疑能尽享这份世纪红利!

更难得的是,中粮北外滩壹号所在区域,恰恰是北外滩核心商务区与提篮桥风貌区交汇地。

意味着,住在中粮北外滩壹号,信步可达黄金三角的汹涌澎湃与商务区的现代繁华。转身即入,梧桐树下被时光浸润的静谧街区和里弄肌理。

这并非简单的区位叠加,而是一种稀缺的生活范式——在世界的舞台上奔涌向前,亦能在历史的脉络里安顿身心。

项目带来的,不止是一处居所,更是一种“出则掌控全局,入则栖心桃源”的从容境界。

而且深入了解了提篮桥风貌区的规划,发现几乎全部都是低密产品,中粮北外滩壹号即将入市的是片区唯一一幢高层!采光与视野可想而知!

☑️☑️中粮北外滩壹号售楼处电话:400-8377-020☑️☑️

产品:北外滩“壹号”作品,重新定义了滨江国际豪宅生活!

在上海豪宅圈,中粮的“壹号”系作品已然成为身份与地位的象征,其超强的保值能力也让入手它的业主资产一再进阶。

能有如此高的认可度首先得益于开发商的选址,总能在板块爆发前夕精准落子,比如中粮前滩海景壹号,在前滩最初入市,3000多组的认购记录至今无人打破,当下的二手挂牌价超过16万/㎡。

再比如瑞虹海景壹号,北外滩早期作品,四开四罄热销185亿,当时新房11万多/㎡,现在瑞虹新房16.6万/㎡,中粮的二手房更是稳定在17万元/㎡左右。

可以说,跟着中粮买准没错,选择“壹号”系作品,就是选择了最好的资产压舱石!

除了选址,壹号系成功的另一个秘诀则是超越时代的品质。

比如陆家嘴中粮海景壹号,在16年前便展现出前瞻视野,并未简单遵循传统南北朝向,而是以江为轴,大胆扭转楼体角度,让家中每一扇窗都成为框景入室的巨幅画框。这一“为景让位”的创举,不仅是产品力的大胆革新,更是远见与胆识的体现,至今仍为业主资产提供着坚实的价值支撑。

作为壹号系最新力作的中粮北外滩壹号,品质自然无可挑剔。

丨首先是无比纯粹、统一的圈层!

据悉,中粮北外滩壹号是上海市中心罕见的 无商办、无自持住宅、无保障房 的纯住宅项目。而且不是单一高层或别墅,是把俯瞰天际的现代大宅与承载文脉的风貌别墅放在一起,实现互相成就的稀缺性。

高层面积起步建面约185㎡天际大平层,整体圈层能级相对统一,打造出一道真正属于高净值人群的身份门槛。

丨其次,是超越时代的建筑审美!

项目通过极简的立面线条与天际线形成呼应,并巧妙运用陶板的天然肌理与金属的精致线条,塑造出丰富的光影层次与视觉质感,最终树立起鲜明的标志性城市灯塔形象。

丨全市独一档的会所高占有率!

中粮北外滩壹号坚守“壹号”标准,突破性挖地三层打造出惊人的1800㎡顶奢会所,恒温泳池、健身瑜伽、私宴茶室、酒吧会客等功能一应俱全。

折算本就稀少的户数,会所空间的高占有率、高使用频率,全市可能是独一份!

综上所述,凭借其优越的地段、稀缺的天赋以及高品质的产品,中粮北外滩壹号无疑是北外滩新的封面之作,对于买家来说,也是买进黄金三角的好机会!

室内设计由中国现代室内设计领域的领军人物——梁志天亲自打造。

在材质选用上,延续了壹号系的高端标准, 大量运用奢石、高难度弧形工艺以及国内外顶尖品牌。

效果图仅供参考

效果图仅供参考

效果图仅供参考

☑️☑️中粮北外滩壹号售楼处电话:400-8377-020☑️☑️

如宝格丽大理石打造的西厨岛台、铂浪高的净水三合一水龙头和一体式大水槽、霍尼韦尔的前置过滤器、全屋软水以及末端净水器系统、来自意大利法罗力燃气热水器、德国唯宝卫浴、当代龙头及花洒......还有全屋华为智能家居系统配置。这一套组合,是真正意义上的顶豪序列配置!(交付标准以网签合同为准,仅供参考)

值得一提的是, 项目距离黄浦江岸线仅约900米 ,部分高楼层户型推窗就能俯 瞰黄浦江景与陆家嘴天际线 ,稀缺江景+地标资源的臻藏价值拉满

4.北外滩为何可期?

世界湾区,全球CAZ

北外滩+陆家嘴+外滩的黄金三角,上海“一江一河”城市战略规划核心段。

作为上海“世界级会客厅”核心,北外滩总开发体量达840万㎡,规划2035年GDP突破3000亿元。约480米的"浦西第一高楼"北外滩中心已破土而出、约320米的 白玉兰广场 顶层观景台已开放、北外滩来福士已建成运营……世界会客厅成为举办高端会议会展的"全球会客厅",区域影响力不容小觑!

☑️☑️中粮北外滩壹号售楼处电话:400-8377-020☑️☑️

840万方城市生长力

4平方公里统一规划的雄心,北外滩以世界会客厅的尺度,重写全球资源配置。

超高建筑群重塑浦西城市天际线

——25年4月,约480米的浦西第一个高楼北外滩中心9根巨型结构柱已跃出地面,进入地上施工阶段,预计2030年完工。

——180米的上市中心正在建设中;2025年2月,上海华贸中心项目主楼规划调整从180米加高至249米,调整规划获批。

——320米的白玉兰广场,263米的来福士双塔、180米友邦金融中心、158米国华金融中心、100米FC金茂广场已投入运行。

此外,北外滩区域还规划了1栋380米建筑,2栋300-320米建筑,9栋200-265米的超高建筑。

从2020年北外滩新元年开始,《北外滩地区控制性详细规划》获批后,虹口区制定了“三年出形象、五年塑功能、十年基本建成”的发展目标,将北外滩定位为“新时代都市发展新标杆”和上海“中心辐射”新引擎。

☑️☑️中粮北外滩壹号售楼处电话:400-8377-020☑️☑️

目前的北外滩已构建起以 航运和金融 为"双引擎" 的现代化产业体系,已汇集4700余家港航企业、2100余家金融机构,资产管理规模超过8万亿元。已从昔日的"老码头"和"航运一条街", 蜕变为一个初具规模的"未来都市发展新标杆"!

5.周边配套

项目坐拥“四轨三隧两快速”立体交通网络,无缝衔接城市脉搏;历史文脉与摩登繁华的双重馈赠,于繁华之上缔造理想生活图景。

全球菁英的北外滩国际生活区,未来生活的“超维样本”

22公顷无车漫步区

3.5万平方米航海公园与中央绿地相融

3.4公里滨江休闲岸线

纵横全城 从容畅达

三轨三隧通达双快速

4号线大连路站、12号线提篮桥站、19号线提篮桥站(在建中);大连路隧道、新建路隧道、北横通道(快速辐射内环),叠加南北通道(规划中);内环高架、北横通道瞬息接驳。

摩登与历史交辉

商业地标环伺

北外滩来福士 (约600米)、瑞虹天地太阳宫(约350米)、白玉兰广场(约1公里),汇聚全球奢享;

外滩万国建筑群(约2.4公里)、陆家嘴三件套(约2.2公里),于窗前定格经典天际线。

☑️☑️中粮北外滩壹号售楼处电话:400-8377-020☑️☑️

医疗配套

上海市第一人民医院(约1.9公里)、上海交大医学院附属新华医院(约2公里),三甲守护,健康无忧。

教育方面

拥有全龄段的学校在附近:临潼路幼儿园、舟山路幼儿园、飞虹路幼儿园、保定路第一小学、长青学校、上海市市东中学、上海市霍山学校、上海市市东实验学校、澄衷初级中学、继光高级中学等等。(新房以交付后教育局分配为准)

自然与健康共生

生态秘境

距离黄浦江直线距离仅约900米,步行可达北外滩滨江绿地公园,与陆家嘴隔江相望;除此之外,北外滩中央公园(约6公顷)、北外滩滨江绿地(约1.8公里慢跑道)、霍山公园(社区绿肺),推窗见绿, 坐拥上海市中心难能可贵的生态资源。

☑️☑️中粮北外滩壹号售楼处电话:400-8377-020☑️☑️

全部

相关资讯

报名成功
稍后会有专业的置业顾问联系您
返回楼盘

频道导航

返回首页

看房小程序

APP下载

电话拨通后,请您手动拨打分机号

确定拨打电话

电话号码:

分机号:(可能需要拨分机号)