国科大厦地处上海市五角场城市副中心繁华商业地段,南邻国科路,北靠国权路,西起政仁路,往东步行30米左右就可到达五角场区域的主干道黄兴路,是集商业、办公、休闲于一体的综合性CBD项目。
8号线黄兴路站400米,距离地铁12号线隆昌路站1.6公里。内环豪装大平层,全景落地窗美观大气,民水民电+中央空调+燃气+石墨烯地暖。
01
基本信息
项目名称:国科大厦
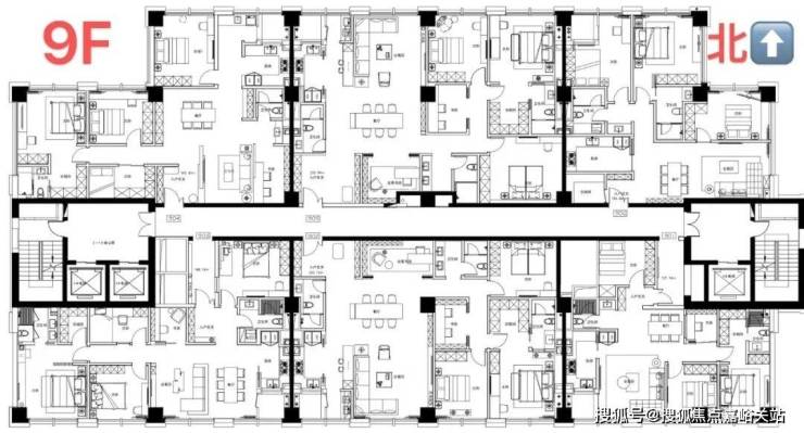
总层数:23层
建筑面积:139-246平
总价:768-1337万
在售套数:4套
交房标准:硬装交付
梯户比:3梯4户
定金:20万
在售楼层:23层
产权年限:50年
停车费:10元/小时(包月地面160/月 地下700/月)
得房率:78%
物业费:3.3元/㎡/月
首付:8.5成
物业公司:上海国货房地产开发有限公司
拿地时间:2003年
项目地址:上海市杨浦区控江路1029弄1号23层
水费:5元/吨
电费:0.93/度
通燃气 不限购
02
周边配套
交通配套
轨交:8号线黄兴路站400米,距离地铁12号线隆昌路站1.6公里。
公交:控江路双阳路站220、6、874、大桥四线等
自驾:500米上内环高架,距五角场2.5公里,人民广场8公里,陆家嘴6公里开车20分钟(数据来源于百度地图)
商业配套
吉买盛、凤城商场、大润发 、百安居、五角场商圈:万达、合生汇、巴黎春天、百联又一城、悠迈生活广场等集商业、办公、休闲与一体的CBD地标性建筑,设施齐全、品质彰显身份
医疗配套
杨浦区控江医院、三甲交大附属新华医院、第二军医大学东方肝胆医院、长海医院、杨浦中心医院、市东医院、上海市肺科医院、上海市排名前列人民医院。
环境配套
23万方杨浦公园绿化相邻
距离黄兴公园1公里
03
主要户型
04
样板图
05
交付标准
国科大厦售楼处电话:400-8874-108✔【已认证】
国科大厦营销中心电话:400-8874-108✔✔【已认证】
上海国科大厦官方售楼处电话:400-8874-108 VIPLINE✔✔✔【已认证】
如有问题可来电咨询,线上售楼中心,预约销售专员,一对一为您服务!
想了解国科大厦更多信息?拨打售楼处营销中心热线:400-8874-108 (中介勿扰)【24小时热线】
楼盘项目全面介绍,本电话为开发商提供线上预约售楼电话,楼盘项目全面介绍(包含楼盘简介,均价,房价,现房,期房,别墅,叠墅,大平层,价格,楼盘地址,户型图,交通规划,备案价,备案名,项目配套,样板间,开盘时间,认筹时间,楼盘详情,售楼处电话,最新消息,最新详情,周边配套,一房一价,最新进展等详情咨询)楼盘详情丨价格丨更多优惠丨机不可失丨欢迎致电丨诚邀品鉴!售楼处位置丨特价房丨工抵房丨剩余房源丨户型图丨最新消息丨免责声明:将文章内容综合来源于网络、只作分享,版权归原作者所有!!如有侵权,请联系我们,我们第一时间处理如有问题欢迎来电咨询,专业一对一热情服务,让您用专业眼光去买房.如果您想了解更多楼盘详情,欢迎提前预约拨打
居住大数据研究院近日发布的报告显示,3月份100个重点城市二手住宅市场均价为14053元/平方米,环比下跌0.3%,降幅较上月扩大0.14%;同比下跌4.59%,跌幅较上月收窄0.55%。截至3月份,二手房价格同环比已分别连续下跌27个月和25个月。

报告认为,2025年1月二手房价格环比降幅扩大、2月微收、3月降幅再度转扩,市场整体仍处于调整阶段。但相较于2023下半年-2024第三季度期间快速下跌的阶段有所缓解。
麟评居住大数据研究院表示,降价促销仍是二手房市场的短期态势,价格回稳仍具有不稳定性,全面止跌尚需时间。
各线城市同环比持续“全跌”
分城市等级来看,各线城市二手房价格同环比均呈现下跌态势,但跌幅有所差异。
报告显示,3月一线城市市场均价为55298元/平方米,环比下跌0.28%,同比下跌2.87%;二线城市市场均价为16727元/平方米,环比下跌0.23%,同比下跌5.22%;三四线城市市场均价为8917元/平方米,同环比分别下跌4.45%和0.41%。

环比方面,一线城市价格走势大约在2024年9月出现积极转变,环比降幅先是明显收窄,11、12月环比转涨;但进入2025年,“止跌回稳”趋势停滞,自1月起降幅连续扩大,价格韧性相对较强,修复面临较大挑战。
二线城市价格同样在2024年9月份发生积极走向,环比降幅持续收窄,但自2024年12月起止跌特征逐渐消退,环比跌幅持续扩大。
三四线城市则环比跌幅最大,库存高、价格下行明显是目前三四线城市普遍面临的挑战。
同比方面,一线城市价格同比跌幅明显小于二线和三四线城市。二线城市同比已连续下跌29个月,价格去泡沫化明显。三四线城市同比已连续35个月下跌,房价止跌预期相对不及一二线。
上涨城市有所减少,杭州宁波表现亮眼
具体到城市,3月份百城中仅有17城房价环比上涨,较上月减少4城;12城环比持平,其余71个城市环比下跌。前3月房价上涨城市数连续减少,且明显不抵去年四季度,当前上涨城市个数已经降至去年9月前水平。
报告认为,在政策效应减弱、市场信心暂未明显改善等情况下,目前价格修复仍然面临不确定性。

从环比涨跌幅前10城市来看,仍均为二三线城市。在环比涨幅TOP10中,淮安(0.87%)、西安(0.59%)和南昌(0.57%)位居涨幅前三,但涨幅有所缩小,均未超1%。
值得注意的是,杭州和宁波两个城市价格行情持续乐观。其中,杭州自2024年11月以来已环比连续5个月上涨,3月环比涨幅为0.39%;宁波环比持续上涨3个月,3月环比涨幅为0.51%。
环比跌幅前10城市中,跌幅均超1.5%。其中,芜湖(-2.19%)环比跌幅居首,盐城(-1.91%)和威海(-1.9%)分别位列跌幅第二和三位。而泉州和北海已连续两个月进入跌幅前十,价格下行压力持续。