象屿天宸雅颂(营销中心)首页网站-象屿天宸雅颂销售中心(售楼处)-象屿天宸雅颂楼盘欢迎您-地址-价格-户型-小区环境-楼盘详情-交房时间-周边配套-售楼处电话

嘉峪关楼市发布

2025-08-11 02:02:00

购房群

买房如何避坑,加入购房群,看看他们怎么说

立即进群

象屿天宸雅颂售楼处电话:400-8894-986✔️✔️

象屿天宸雅颂营销中心热线400-8894-986✔️✔️(官方预约看房热线)

一脉前滩·8号线枢纽·全臻装公园墅区

「象屿天宸雅颂」

三批次加推96套建面约107-140㎡3/4房

均价60970元/㎡

6.19-6.23认购

文末一房一价

前期建面约89-139㎡3-4房热销中

总价约520-900万

低密叠墅&宋风联排后期待加推

象屿天宸雅颂售楼处电话:400-8894-986✔️✔️

【售楼处预约热线】(一对一热情服务)

看房请务必致电与销售确认时间,仅预约客户可享受开发商内部优惠,专属老带新推荐奖!

象屿天宸雅颂售楼处电话:400-8894-986✔️✔️

象屿天宸雅颂营销中心热线400-8894-986✔️✔️(官方预约看房热线)

2024年10月25日,象屿地产以410639万元竞得 闵行区浦江镇MHPO-1316单元01-03、01-02、03-02地块,成交楼面价29200元/㎡, 住宅部分装修标准不低于3000元/㎡!

象屿天宸雅颂售楼处电话:400-8894-986✔️✔️

象屿天宸雅颂营销中心热线400-8894-986✔️✔️(官方预约看房热线)

项目共计由3幅地块组成,目前设计方案均已公示:

01-02地块:拟建8栋17-18F高层住宅以及若干社区配套用房,规划可售住宅约524套,将推出建面约89-128㎡3-4房;

01-03地块:拟建9栋17-18F高层住宅、1栋20F保障房以及若干社区配套用房,规划可售住宅约472套,将推出建面约89-140㎡3-4房;

同时01-03地块规划有下沉式庭院,地下会所,该地块距离地铁站也更近一些!

高层除140㎡户型为两梯两户以外,其余全部为两梯四户,中间套带连廊!

03-02地块:拟建8栋4-7F多层住宅、5栋3F低层住宅以及若干社区配套用房,将推出叠墅以及联排产品,共计约182套!

象屿天宸雅颂售楼处电话:400-8894-986✔️✔️

象屿天宸雅颂营销中心热线400-8894-986✔️✔️(官方预约看房热线)

首开房源↓

二批次加推17#↓

(三批次加推21#、22#)

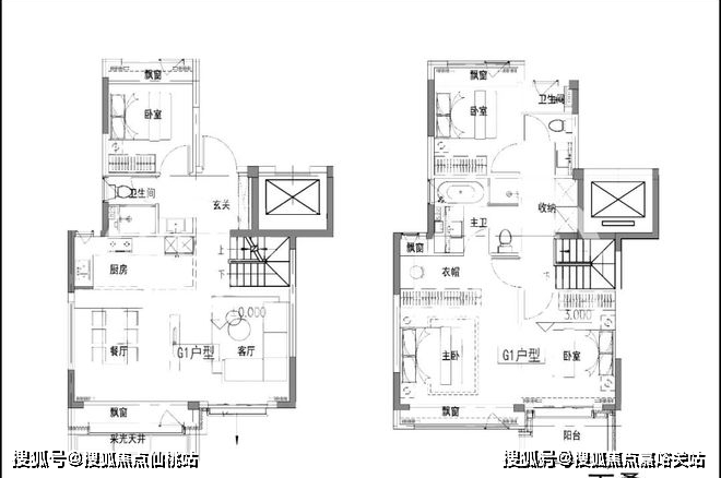
高层户型鉴赏↓

叠墅户型鉴赏↓

(过程稿,仅供参考)

板块配套

交通配套

项目距离8号线沈杜公路站步行约350-600米左右,可快速直达前滩、陆家嘴等核心区域,也算是项目一大卖点;通过浦星公路可直接上南北高架,自驾出行也十分便捷!

商业配套

项目高层东侧规划约15万方的商业,该商业地块应于住宅一并打包出让,共同组成真正的TOD项目,但目前做了拆分!

另外距离项目约3.3公里有浦江城市生活广场、绿地乐和城,约3.9公里有万达广场、4.4公里有浦江欢乐颂等商业!

教育资源

医疗资源

距离项目约4公里有仁济医院南院以及复旦大学附属眼耳鼻喉科医院!

生态环境

项目周边被浦江郊野公园环绕,低密宜居!

上海象屿天宸雅颂·繁华芯上低密住区·恭迎品鉴

象屿天宸雅颂售楼处电话:400-8894-986✔️✔️

【售楼处预约热线】(一对一热情服务)

看房请务必致电与销售确认时间,仅预约客户可享受开发商内部优惠,专属老带新推荐奖!

象屿天宸雅颂售楼处电话:400-8894-986✔️✔️【售楼中心热线】象屿天宸雅颂营销中心热线400-8894-986✔️✔️象屿天宸雅颂售楼处地址400-8894-986✔️✔️,楼盘项目全面介绍,本电话为开发商提供线上预约售楼电话,楼盘项目全面介绍(包含楼盘简介,均价,房价,现房,期房,别墅,叠墅,大平层,价格,楼盘地址,户型图,交通规划,备案价,备案名,项目配套,样板间,开盘时间,认筹时间,楼盘详情,售楼处电话,最新消息,最新详情,周边配套,一房一价,最新进展等详情咨询)楼盘详情丨价格丨更多优惠丨机不可失丨欢迎致电丨诚邀品鉴!售楼处位置丨特价房丨工抵房丨剩余房源丨户型图丨最新消息丨免责声明:将文章内容综合来源于网络、只作分享,版权归原作者所有!!如有侵权,请联系我们,我们第一时间处理如有问题欢迎来电咨询,专业一对一热情服务,让您用专业眼光去买房。如果您想了解更多楼盘详情,欢迎提前预约拨打象屿天宸雅颂售楼处电话400-8894-986✔️✔️

全部

相关资讯

报名成功
稍后会有专业的置业顾问联系您
返回楼盘

频道导航

返回首页

看房小程序

APP下载

电话拨通后,请您手动拨打分机号

确定拨打电话

电话号码:

分机号:(可能需要拨分机号)