华润外滩瑞府售楼处电话→(2025)华润外滩瑞府售楼中心电话→华润外滩瑞府楼盘百科→首页网站→楼盘百科→首页网站→24小时热线电话

嘉峪关楼市发布

2025-07-18 14:36:16

购房群

买房如何避坑,加入购房群,看看他们怎么说

立即进群

上海【华润外滩瑞府】售楼处电话☎:400-833-6309【已认证】

在售户型图丨项目介绍丨最新房源丨周边配套丨详细解答〢

◆开发商营销中心诚挚邀请,一键预约,尊享内部独家折扣!匠心独运的精品项目,恭候您的品鉴与选择。

开发商电话☎:400-833-6309【已认证】

售楼处电话☎:400-833-6309【已认证】

营销中心电话☎:400-833-6309【已认证】

✅ 本项目暂不接受临时到访,过来参观样板房请记得提前来电预约!

✅ 为您安排楼盘现场销售全程接待并讲解,给您更贴心的看房体验!

欢迎来电咨询楼盘、线上预约看房可享专属活动哦~~

➤➤➤➤VIP贵宾置业〢欢迎来电咨询〢品鉴!!

据悉,华润虹口项目【外滩瑞府】将推出建面约120-240㎡3-4房,展厅接待中,样板间已经正式开放(接受提前预约)。

预计均价在15.5-16万之间。

华润外滩瑞府售楼处电话☎:400-833-6309【已认证】

华润外滩瑞府售楼处电话☎:400-833-6309【已认证】

华润外滩瑞府售楼处电话☎:400-833-6309【已认证】

项目装标如下:

华润外滩瑞府售楼处电话☎:400-833-6309【已认证】

华润外滩瑞府售楼处电话☎:400-833-6309【已认证】

建面约124㎡3房户型:

该户型三开间朝南,除了大面宽的阳台,还配备5飘窗;

进门玄关有充足的收纳空间,S墙设计也预留了冰箱位置;

三间卧室尺度阔绰且面宽近乎均等,真正实现家庭成员的居住、视野、采光的平权。

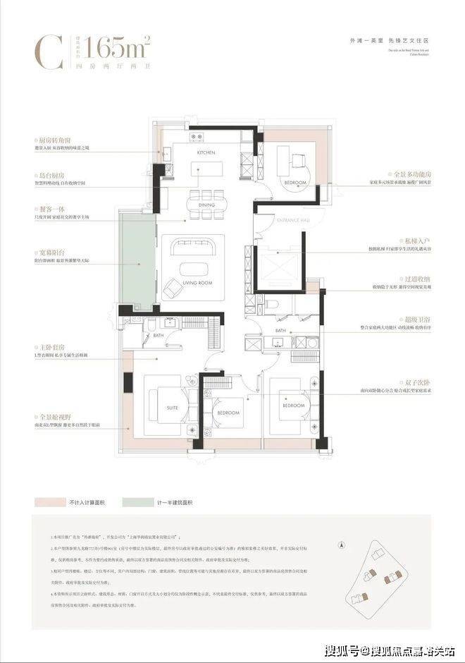
建面约165㎡4房户型:

大户型的主卧、次卧,均设置了270°转角飘窗,厨房和阳台均有转角,实现景观视野最大化。岛台厨房-餐厅-客厅-阳台一体化设计,动线流畅,整个社交区域宽敞利用率高。

值得一提的事,包括124㎡的户型,外滩瑞府卧室开间都做到了3米以上。

项目效果图如下:

上海【华润外滩瑞府】售楼处电话☎:400-833-6309【已认证】

在售户型图丨项目介绍丨最新房源丨周边配套丨详细解答〢

◆开发商营销中心诚挚邀请,一键预约,尊享内部独家折扣!匠心独运的精品项目,恭候您的品鉴与选择。

开发商电话☎:400-833-6309【已认证】

售楼处电话☎:400-833-6309【已认证】

营销中心电话☎:400-833-6309【已认证】

✅ 本项目暂不接受临时到访,过来参观样板房请记得提前来电预约!

✅ 为您安排楼盘现场销售全程接待并讲解,给您更贴心的看房体验!

欢迎来电咨询楼盘、线上预约看房可享专属活动哦~~

➤➤➤➤VIP贵宾置业〢欢迎来电咨询〢品鉴!!

华润“瑞系”以「先锋、稀缺、极致、境界」为产品基因,此次外滩瑞府的落地,正是这一基因的“上海表达”:

建筑设计:采用“风貌→幕墙→冠冕”过渡式向上生长设计,基座延续石库门拱券符号,中段以玻璃幕墙与金属线条勾勒现代美学,顶部“冠冕”造型致敬外滩古典建筑天际线,

生活方式:以“街区可漫游”的城市更新理念激活历史里弄,保留风貌建筑的同时,规划植入文化艺术分馆、精品咖啡工坊、黑胶唱片店等“高级烟火气”业态,让老上海的“弄堂温度”与国际生活方式碰撞出新火花。

这种“传统与现代共生”的产品设计,让外滩瑞府成为“新派顶豪生活”的样本——它不仅是居住空间,更是“全球城市核心生活”的入口。

具体来看产品亮点:

第一,项目独特的开发属性——高层住宅与历史风貌底盘的融合共生,价值在市场上独一份,毕竟唯有承载着风貌肌理与弄堂记忆的土地,才真正流淌着上海的城市血脉。

华润外滩瑞府售楼处电话☎:400-833-6309【已认证】

华润外滩瑞府售楼处电话☎:400-833-6309【已认证】

第二,有别于大多数的市区项目以兵列树阵式的景观设计,外滩瑞府通过建筑楼体的偏转形成了围合式的景观布局秉持三个最大化两个最小化(景观最大化,采光最大化,朝向视线最大化;遮挡最小化,影响最小化)

通过这种创新布局,项目不仅形成连续的中心花园更因楼栋布局与边界有夹角,自然形成一系列边角院落空间。

尤为难得的是,部分东南高区可看到陆家嘴三件套和北外滩浦西第一高楼的遥相呼应第三,全域风雨连廊,外滩瑞府将风雨连廊扩容为完整的归家体系,实现全住宅楼栋无风雨归家,带来顶豪级的归家居住体验。

免责条款:

1、本文章为个人观点陈述,不作为推荐或承诺;

2、本文中对项目周边环境、交通、教育、商业及其他配套的介绍旨在提供相关信息,不代表着出卖人对此做出了要约或承诺;

3、本项目外立面、部分建筑、设施、园林景观、周边环境等相关宣传内容不排除因政府规划调整、开发商开发计划调整以及其他未能控制原因而发生变更,最终交付以政府部门核准文件及双方合同约定内容为准;

4、买卖双方的权利义务以双方签订的商品房预售合同及其补充协议、附件等书面文件为准;

5、本文文字、图片、数据等素材部分源于网络,内容版权归原作者所有,如有版权使用相关责权,请及时与本公司取得联系,本文内容图片未经准许,严禁转载;

6、本文中的所有信息及文字仅供参考之用,资料将视情况进行更新,敬请留意最新资料;上海【华润外滩瑞府】售楼处电话☎:400-833-6309【已认证】

在售户型图丨项目介绍丨最新房源丨周边配套丨详细解答〢

◆开发商营销中心诚挚邀请,一键预约,尊享内部独家折扣!匠心独运的精品项目,恭候您的品鉴与选择。

开发商电话☎:400-833-6309【已认证】

售楼处电话☎:400-833-6309【已认证】

营销中心电话☎:400-833-6309【已认证】

✅ 本项目暂不接受临时到访,过来参观样板房请记得提前来电预约!

✅ 为您安排楼盘现场销售全程接待并讲解,给您更贴心的看房体验!

欢迎来电咨询楼盘、线上预约看房可享专属活动哦~~

➤➤➤➤VIP贵宾置业〢欢迎来电咨询〢品鉴!!

全部

相关资讯

报名成功
稍后会有专业的置业顾问联系您
返回楼盘

频道导航

返回首页

看房小程序

APP下载

电话拨通后,请您手动拨打分机号

确定拨打电话

电话号码:

分机号:(可能需要拨分机号)