楼盘简介项目名称:城发·桃园新著
项目地址:弇山东路与太平北路交汇处
开发商:太仓城发集团
总占地面积:80.31亩
建筑面积:12.4万方
容积率:1.6
绿地率:37%
总幢数:18幢
总套数:759套(其中叠加66户,8~11层洋房693户)
车位配比:1.5
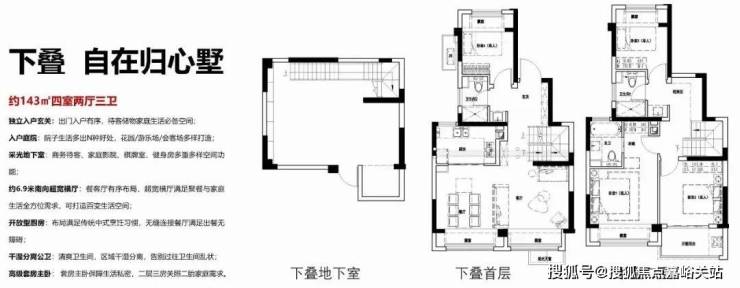
产品类型:102平洋房、134、143平叠加别墅
交付标准:精装+毛坯

楼盘区位 太仓作为上海下一站,沪太同城化正全线加速,太仓优势逐渐明显,太仓作为临沪城市,依托长三角一体化时代机遇,正在全面飞速发展,城市潜力无限!
自古以来素有“锦绣江南金太仓”、“上海后花园”的美誉,江南鱼米之乡,人杰地灵,是一座历史悠久、文化繁荣、教育发达的教育名城。主城区历史发展积淀深、配套醇熟、生活便利度高、极具生活气息;同时也是政府着力打造的高端生态宜居区。这里土地资源稀缺,住宅用地寸土寸金。我们精心选址于老城区核心位置,闹中取静,打造主城目前首位低密度高端品质住区。
李嘉诚说过“决定房子价值的第一要萦是地段,第二还是地段,第三还是地段”,因为好地段必然带来优质配套,下面,我给您具体介绍我们项目的几大优质配套;
项目黄金路段 项目位于 (老城区板块)核心板块,交通四通八达,项目辐射周边多条主干道,过两个红路灯即可到达人民路,既享一步繁华,西侧沪宜公路往南无缝对接上海,直达沪通高铁“太仓南站”,往北直达沪宜高速公路双凤收费站,畅想江苏省内各大城市北侧苏州中路可便捷直达浏河昆山等地,往东直达沪通高铁“太仓站”,项目门口为太平路,往南可到达五羊广场和海运提,太平路往南2个红路灯即可到达郑和路,郑和路也是贯穿整个太仓,往东可到达浏河往西可到达昆山苏州等地。
目前,太仓的铁路建设已初步汇聚成网:
沪苏通一期正处于常态化运营;
沪宁沿江高速铁路苏州段全线正在联调联试,等待9月具备开通运营条件;
北沿江高铁、沪苏通铁路二期正在加快推进大临工程建设;
苏锡常城际铁路太仓先导段太仓站已完成工程基坑支护体系和土方施工作业,正在开展车站主体结构施工,计划年内完工,全线正在加快推进前期工作。

随着轨交嘉闵线北延伸(规划中)的建设铺开娄江新城融沪深度再升级,与沪通铁路一/二期 南沿 江高铁、北沿江铁路(规划)、苏锡常城际铁路,构成“5+1”轨道交通网络格局。
商业配套 三公里范围包含商业配套:南洋广场,万达广场,五洋广场,大润发超市,项目附近桃园菜场,中心菜场,兴业菜场,完全满足业主集娱乐休闲购物为一体的各类生活需求;
教育配套幼儿园:实验幼儿园、县府街幼儿园;
中小学:弇山小学、市一中、实验中学、华顿外国语学校、西郊利物浦附属实验学校;
大学:西交利物浦大学、西北工业大学;

优质医疗配套 双医院配套,太仓人民医院,太仓市中医,人民医院是太仓医疗水平最高的一所三级甲等综合医院,中医院是一家二甲级医院,科室全覆盖,10分钟内均可到达。距离意味着时间,时间意味着生命。完善的医疗为您保驾护航。上海瑞金医院正在建设中,让我们不出太仓即可享受上海的医疗服务。

环境配套 项目周边弇山园、净水公园和太仓湿地公园(长4.5公里,占地3.6公顷),三大公园环绕犹如天然氧吧城市绿肺,业主步行均可达到。太仓弇山园为国家3A级景区,著名旅游景点,集休闲、度假、娱乐于一体的综合性公园。引领圈层品质宜生活。

十字景观双主轴,无界外景湿地公园 分区多情景社区氛围打造:全龄儿童乐园、宠物乐园、星光草街剧场、放空谷、科普花园、互动水乐园等;
十字景观轴线设计,无缝对接外景公园自然绿意;
日常散步社区内外,真正享受四季常青一步一景;

开发商背景
国企背景:太仓城市发展集团有限公司成立于2009年,系太仓市国有资产监督管理委员会所属国有一级公司,先后获得苏州市文明单位、太仓市城市建设管理工作先进集体等40余项荣誉。聚焦城市建设、城市运营、房地产综合开发三大主业;国企开发商兼具更雄厚的资金实力、更强的产品营造能力,更精细的管理能力,夯实品质基础,呵护每一份放心。
集团深耕城市建设、城市运营、房地产综合开发三大主业,打造了娄城大厦、规划展示馆等系列地标建筑。2023太仓城发集团六盘齐发,于城市热土迭新高端人居新标杆。
项目效果图
镜面幕墙、仿铜铝板、现 代新奢的前沿设计 是居住新美学 更是老城颜值新代言 现代质感的玻璃幕墙,完美契合极简美学时代;