上实云端 (售楼处) 首页 - 上实云端销售中心 - 环境 - 户型 - 价格 - 地址 - 楼盘详情 - 配套 - 电话 - 交房时间 - 配套 - 电话 - 交房时间

嘉峪关楼市发布

2026-04-19 13:02:13

购房群

买房如何避坑,加入购房群,看看他们怎么说

立即进群

——上实云端——

上实云端售楼处电话:400-88 74-108✔【最新预约】⭐⭐⭐⭐⭐

上实云端营销中心电话:400-8874-10 8✔✔【最新认证】⭐⭐⭐⭐⭐

上海上实云端官方售楼处电话:400-8874-1 08 VIPLINE✔✔✔【最新发布】⭐⭐

如有问题可来电咨询,线上售楼中心,预约销售专员,一对一为您服务!

想了解上实云端更多信息?拨打售楼处营销中心热线:400-8874-108 (中介勿扰)【24小时热线】

【预约服务说明】

官方热线:400-8874-108(工作时间 9:00-18:30,支持 24 小时留言)

预约方式:提前 1-3 天致电,登记个人信息、意向户型及看房时段

专属权益:一对一置业顾问讲解、定制看房路线、优先锁定意向房源

注意事项:实行实名预约制,看房需携带身份证件,不接待中介机构

上海上实云端售楼处官方预约电话 400-8874-108

上海上实云端售楼处电话 400-8874-108 户型价格_预约看房

今年千万、上亿总价房子的大半成交都在上海,似乎给了一种错觉,上海真的不差钱

但真的是这样吗?

在整理了上海过去一年的二手市场成交数据之后

就会发现:主力成交总价段依然锚定在500万以内,也就是总价还可控的刚需房

300-500万这个价段里,小三房又是最受欢迎的主要户型

它刚好承载起一个小家庭的起步——夫妻一间,孩子一间,偶尔父母来访也能从容落脚

可以说,小三房的需求量不小也不可能小

现存的小三房,特别是二手市场,实际上供应量并不少

特别是上海长达近20年的7090政策更是将紧凑小三房的存量推到了极致

数据来源:兔博士

但二手小三房去化却逐渐变难,因为有着绕不开的缺陷:同质化极其严重

大差不差的面积、大差不差的布局、大差不差的相似缺点,都在让小三房滑向产品力的低谷

在另一侧我们却又看到,上海的新房市场正朝着另一个方向发展:户型越做越大,144平以上的产品层出不穷,卖得还好

在新房市场里,小三房还能突破现有的同质化,有所改进吗?

带着这个疑问,我去实地看了几个新楼盘里的小三房

惊喜地意识到,还是有开发商在认真研发紧凑型小三房

房子虽小,但未必只能将就

01

以超配的态度做刚需

相比于高端大户型,小三房的刚需是最难做的,要在极限的空间里塞满功能空间,还要符合当下的生活需求和审美,真的很难

所以很多新楼盘在规划布局的时候就抛弃小三房的研发和建造也不足为奇

在同质化比较严重的小三房二手市场,有一个点是最让人难以接受的,也是研发最困难的点:空间的低利用率

本来面积就已经比较小了,还有很多墙体和走道空间,相当于白白浪费了2、3平米

收纳也做得不尽如人意,导致后续使用的时候不是家里到处都是柜子,就是家里到处都是杂物

卧室紧贴在一起,隐私性也不够好

带着这些小三房刻板印象我首先去看了保利虹桥和颂,有被震撼到的

以上的痛点,保利虹桥和颂从出电梯门就在为客户的需求考量,减少空间浪费

往常只有在豪宅项目上看到的一梯一户,你敢信,在一个小三房刚需盘中也做到了

电梯开门就是自己家的区域,有了一个气派且实用的过厅

在其91㎡与102㎡的小三房户型中创新地采用两梯两户设计,小户型也有自己独立的电梯厅,极大提升了小户型实际可用的空间

甚至,所有的电梯厅都是明厅,整个空间显得宽敞又舒适

同时还配备飘窗,后续可以作为换鞋凳和休息空间

实用的基础上,开发商甚至在交付中提供了黑白拼花地板,搭配深古铜色电梯门及入户门,流露出浓郁的海派美学韵味

以往小三房因面积所限,基本都面临入户空间狭小、储物不足的难题

鞋柜容量有限导致门口杂乱

而两梯两户的布局,巧妙将电梯厅转化为扩展的储物区域,既可有序收纳日常物品,也保持了室内空间的整洁与美观

走进室内,小三房户型上的惊喜才是真的开始,空间没有一点浪费,榨干每一寸可用面积的做法让人感觉到了什么是“麻雀虽小,五脏俱全”

布局紧凑的LDKG让小户型也能拥有空间视线、采光的通透

可以来看厨房望向客厅的实景图,感受一下流畅通达的空间

是不是丝毫没有拥挤、将就的感觉

深入到每一个功能空间,你依然能感觉到那种空间被充分利用的欣慰

比如厨房,一改以往小户型的一字布局,仅能容纳下一个人在厨房

就算是在91㎡的户型中,也有U型的厨房

放大操作面的同时还能在两侧增加足够多的收纳空间

卧室也是如此,甚至做到了改善大户型才有的两间带270°飘窗的卧室,极限拉大空间感受

以往最小的卧室往往被设计得很局促,一开始可能还想着将就一下,长期的将就却会造成非常压抑的体验

看惯了小三房最小卧室的紧张,再来看保利虹桥和颂的两个卧室都带转角飘窗,很难不有一种终于被善待的感动

270°的飘窗变得明亮舒适,项目甚至还不惜成本地用了整块大面积的玻璃,让房间显得更加通透

赠送的飘窗面积让原本面积很小的次卧延展开来,作为儿童间一点不输标准次卧

看到这里,是不是觉得小三房的进化就是尽可能多地把功能塞进去?

和颂的答案是否定的,当空间实在紧张的时候,也不能为了多功能而降低空间品质

所以我们才在91㎡这个户型中看到了1.5卫的设计

大多数的小三房就只有一个卫生间,早上洗漱如厕就变得很拥挤

相反洗浴大多集中在睡前,利用不同的入睡时间错峰使用倒不是很大的问题

于是,和颂选择了把空间花到刀刃上,在主卧置入没有洗浴的卫生间

项目策划提到一个案例:

业主育有一个女儿,他在购买小三房作为小家庭在上海第一套刚需住房的时候,就颇为关心卫生间的问题

1.5卫的设计就深刻地考量到了两代人使用卫生间的隐私和时间差,在极其有限的空间里重点解决如厕和洗漱这两个问题,且每个空间尺度合适,不算拥挤,让他感觉很舒适

好的设计总是有相似的地方,依旧是1.5卫背后的拆分洗漱空间逻辑

在有限的空间内疏散早高峰洗漱拥挤的问题

仁恒海上源的102㎡小户型同样采用了1.5卫的设计,北侧的0.5卫作为客卫还能有效地解决客人穿越卧室私密空间的问题

可见,1.5卫的设计并非罕见,也因为其利用最小面积解决小户型多人口使用卫生间的切实需求,很有可能会变成小户型的常态

除了在布局和空间上的超高利用,能让我感觉到超配的还得是精细化的施工

连封阳台之后的吊顶一体化都被提前考虑到了

阳台的吊顶,特意跟客厅的吊顶一样做了圆弧转角的处理,保证封阳台之后效果的连续性

设计语言的一体化也是小户型设计的重点

圆弧形的细节几乎落到每一处

前面提到的延伸室内和阳台的弧形吊顶如此,每个卧室的吊顶如此,甚至是厨房的灯带设计也在做相同的圆弧处理

甚至,这个设计语言还细化到了空调进风口的挡板、卫生间的镜框以及洗手盆台面的倒角

看完和颂的小三房设计,真的有种看到上海刚需小三房设计天花板的欣喜

02

越来越多的小三房正在向外延展---做多阳台

提升空间使用效率,把室内做饱满是一种途径

向外扩展实际使用空间也是一种,也是最重要的一种途径

因此,我们也看见越来越多的小户型在做三阳台

在上海第一个给小户型配三阳台的招商序就完美地展示了三阳台给小户型带来的空间解绑之感

飘窗能扩大室内实用面积的能力相对来说还是有些受限

尽管我们能看到很多开发商已经给出了很多巧妙的解决方案,比如结合飘窗做软榻、书桌和床的方式

但不能落地终究还是制约了后续的设计和使用

赠送空间里,最好用的还得是阳台

招商序次卧将阳台包进室内之后,床依旧可以放在卧室中间,睡眠舒适度会比在窗边更好

原本的阳台空间在布置了衣柜收纳之后还能容纳下休闲沙发

整体感觉宽敞且舒适

而且,三阳台带来的优势还不仅仅在室内,多阳台的连续可以打破往常住宅立面的封闭,实现开阔的景观视野

还是以招商序为例,当三阳台都采用了玻璃栏板时,室内的采光和视野都变得极为通透

也就是说,三个阳台带来的不仅仅是三块赠送的面积,而是三个拥有超大景观面的居室

图源:招商序效果图

同有招商血脉的招商臻境甚至在三阳台上还做了迭代,借用花池进一步赠送阳台面积

可以想象,当所有阳台被纳入室内使用空间后,这个95㎡的小户型真实体验感一点不会比110㎡的户型差

03

同时,新的小三房其实还在细化需求上做深化设计

首先着重下手的就是小户型历来的痛点收纳

大户型因为在面积上有绝对的优势,收纳压力小很多,甚至可以拿出一个房间专门做储藏间或是衣帽间

但小户型则需要更多巧思、户型节点上的细致动作才能满足收纳,堪称螺蛳壳里做道场

特别是如何统一不同进深的收纳空间

普通的收纳柜进深也就是50cm,但是冰箱起码需要80cm

于是,S墙应运而生

即使空间有限,只要设计到位,还是能解决收纳问题

让相邻的两个户型共同摊平这个大进深收纳空间也在成为越来越常规的做法

不仅是功能上有优势,结合S墙做整体的收纳柜,平整收纳墙面也让空间显得更加宽敞

往前再走一步,我们甚至还能看见:

即使空间再紧张,依然有开发商努力在小户型里创造独立储藏间

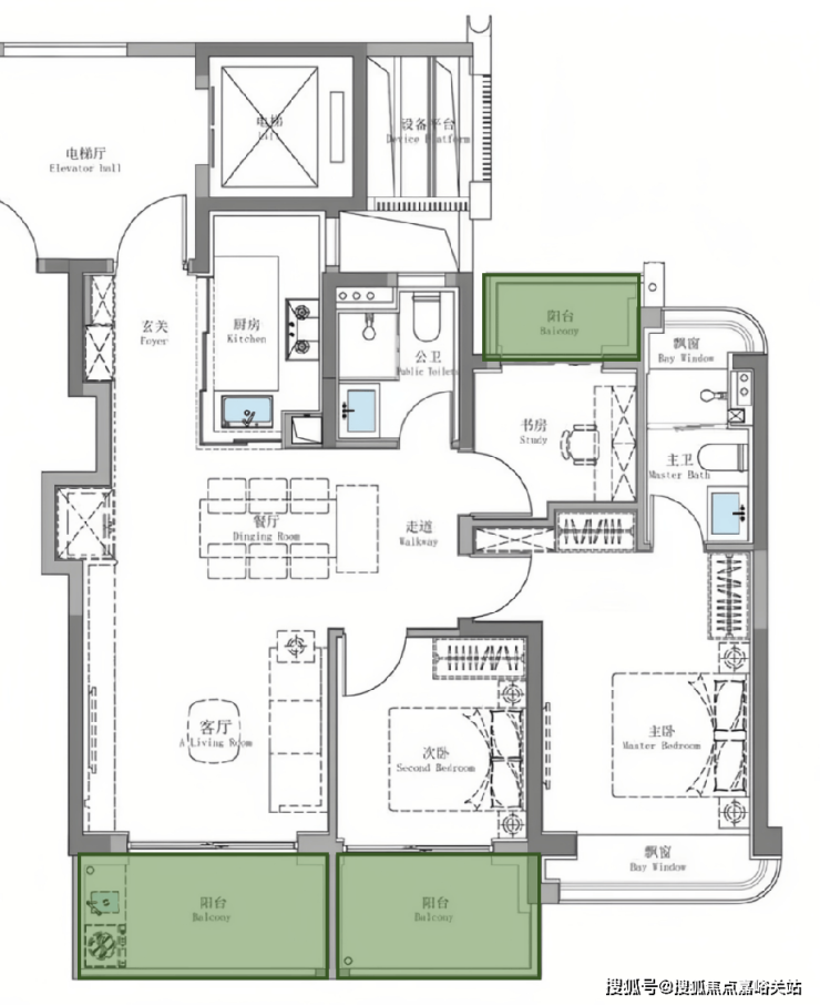
比如上实云端仅95㎡的户型,充分利用户型的进深后,在玄关侧面还做出完整的储物间,让客厅等区域彻底地摆脱不常用物件的收纳烦恼

除此之外,收纳进化还有另一个方向:充分利用走道空间

本来这点空间往往是小户型最让人头痛的一两个平方,几万块只能用来过路,实际使用的时间也非常短

有些新的小三房就选择用足走道空间,通过部分墙体凹陷,让走道成为收纳整理的操作空间

另一个值得关注的新小三房在细化需求上的进化趋势:户型全周期可变

现在的客厅不再是简单的“沙发+电视”的客厅设计

这也反映到了现在的小三房研发上:减少承重墙,让客厅变得可调节

贝好家在奉贤的项目提供的全周期可变户型设计中,其实去客厅化就是针对青年人很重要的一个产品迭代进化

即使是97平的户型也要提供可变的弹性

玄关、厨房收纳在常规的交付中作为标配给到用户

但电视背景墙、北房间结合飘窗加载成为儿童床这样的个性化收纳则可选择交由开发商付费变更

不再统一交付的电视背景墙就直接减轻了青年用户放弃“电视+沙发”的标准客厅模式的负担

有一个问题,不知道大家有没有想过,自己家的客厅一年究竟接待过多少次客人呢?

据统计,现在平均每个青年人年均接待客人不会超过6次

特别是在现在咖啡茶饮店遍地都是、餐厅软装越做越好的情况下,在外接待方便、效率高还舒适

客厅开始褪去接待的功能,而是走向了更接近其英文翻译:living room---生活空间

客厅开始变成了拥有超大面积的小型图书馆、宽敞的电竞空间、有各种器械的工作坊......

可以说,小三房户型的定制化还有很大的提升空间

04

小三房一直以来被当作城市中最被需要的房型来对待

但什么是刚需呢?

难道仅仅是一个可以负担得起的价格和一个勉强能接受的面积吗?

面对各种细微却真实的需求时只能两手一摊表示“面积有限,没有办法”

但仔细思考一下生活需求,最接近“刚需”字面意思的答案应该是:

容纳、满足家庭最真实的生活需求

同时,从时间维度上来考虑,“刚需”还是随着时代需求的变化更迭的变量

安全可靠+功能超配+情绪价值始终是围绕在产品价值上的三个重点词汇

相较于之前开发商做刚需的逻辑:面积合适控制总价、功能配齐、适当提供公共空间

现在的新小三房显然更加重视超配装标和情绪价值

只有这些在越来越多的新小三房上被看见,我们才能说设计背后的客户真正的需求被看到、被重视、被满足

在强调做好房子的时候,我们不能只关注那些越来越大、越来越奢华的户型针对的高净值客群

更要看到那些有着明确且真实生活需求,把自己人生大半积蓄、收入放到房产上的普通人

当看到越来越多的地产商在往这个方向努力的时候,我们对未来普通人也能住上好房子才会有更多的期待

上实云端售楼处电话:400-88 74-108✔【最新预约】⭐⭐⭐⭐⭐

上实云端营销中心电话:400-8874-10 8✔✔【最新认证】⭐⭐⭐⭐⭐

上海上实云端官方售楼处电话:400-8874-1 08 VIPLINE✔✔✔【最新发布】⭐⭐

如有问题可来电咨询,线上售楼中心,预约销售专员,一对一为您服务!

想了解上实云端更多信息?拨打售楼处营销中心热线:400-8874-108 (中介勿扰)【24小时热线】

楼盘项目全面介绍,本电话为开发商提供线上预约售楼电话,楼盘项目全面介绍(包含楼盘简介,均价,房价,现房,期房,别墅,叠墅,大平层,价格,楼盘地址,户型图,交通规划,备案价,备案名,项目配套,样板间,开盘时间,认筹时间,楼盘详情,售楼处电话,最新消息,最新详情,周边配套,一房一价,最新进展等详情咨询)楼盘详情丨价格丨更多优惠丨机不可失丨欢迎致电丨诚邀品鉴!售楼处位置丨特价房丨工抵房丨剩余房源丨户型图丨最新消息丨免责声明:将文章内容综合来源于网络、只作分享,版权归原作者所有!!如有侵权,请联系我们,我们第一时间处理如有问题欢迎来电咨询,专业一对一热情服务,让您用专业眼光去买房.如果您想了解更多楼盘详情,欢迎提前预约拨打

当极端暴雨、电力中断等突发风险来临时,如何让城市“扛得住”、恢复得快,是韧性城市建设必须回答的课题。近日,由北京市应急管理局和北京市市场监管局共同牵头、组织制定的《首都韧性城市建设标准体系》正式发布。该体系作为全国首个韧性城市领域系统性体系,填补了我国超大城市韧性建设标准化领域空白,为城市安全运行构建起一套“抗风险骨架”。

“韧性城市是指具备在重大风险灾害中承受、适应和快速恢复能力的城市,是城市安全发展的新范式。”北京市应急管理局党委委员、副局长李宇说。

北京韧性城市建设已持续多年。2017年,北京市首次将韧性城市建设纳入新一轮城市总体规划;2021年,《关于加快推进韧性城市建设的指导意见》印发;2024年,《北京市韧性城市空间专项规划(2022年—2035年)》正式发布,开创性将全市划分为39个韧性城市组团,构建五级韧性城市空间体系;2025年,空间专项规划的实施方案印发,标志着首都韧性城市建设规划实施体系“四梁八柱”基本搭建完成。

在此基础上,此次发布的《首都韧性城市建设标准体系》,将城市韧性建设从规划蓝图进一步推进落地。李宇介绍,该体系贯穿城市规划、建设、运行、管理、应急处置等各个环节,创新性构建涵盖基础通用、空间韧性、工程韧性、运行管理、社会韧性五大维度框架,下设18个二级子体系、59个三级子体系,累计收纳各类标准1205项。

韧性城市建设,是城市高质量发展的基石,也是首都超大城市治理的重要内容。2024年的空间专项规划经北京市人民政府批复实施,这是北京市韧性城市建设在空间领域的指导性文件,也是全国首个省级韧性城市空间专项规划。

北京市规划和自然资源委员会副主任杨浚表示,韧性城市组团的划定,是空间专项规划在空间组织模式上的一次重要探索。这些组团灾时能发挥综合防范应对、居民基本生活条件保障、区域联合互助支撑作用。

城市韧性不仅体现在规划中,也体现在基础设施运行能力上。“十四五”期间,北京市先后投产运行亦庄、石景山等8座水厂,中心城区及城市副中心供水安全保障能力显著提升。同时,北京市建成全市市政交通基础设施综合管理信息平台,汇聚地下管线、道路场站等多类数据,夯实“数智化”管理底座。截至2025年底,数据库涵盖地下管线14.9万公里,各类市政交通场站3万余个,各类道路和轨道总长度3万余公里,为市政交通基础设施的规划、建设和运行提供空间数据保障和支撑。

“北京市将探索传统集中式城市运行系统转变为分布式组团运行网络,各韧性城市组团内将具备供水、供电、物资等方面相对独立的供应条件和应急指挥调度功能。”杨浚说。

地下管线作为关键的城市基础设施,是城市的“生命线”。提升地下管线的安全韧性,对保障城市运行安全、支撑城市未来发展至关重要。北京市城市管理委员会一级巡视员、新闻发言人李如刚介绍,“十四五”期间,北京市以城市生命线感知体系建设为突破口,对电气热等市政基础设施实施数字化改造升级,全市电力、燃气、供热地下管线基本完成感知体系建设。城市运行指挥调度中心支持数据分级展示、查询、统计、分析、共享,集中呈现地下管线位置及属性信息,实现城市生命线全领域、全过程、全时空、全周期监管。

在韧性城市建设中,消防安全也是重要部分。北京市消防救援局副局长李云浩说,围绕“最大限度降低火灾发生概率、最大程度控制火灾造成损失”,北京增强火灾“防”的主动,形成“源头治理、层层设防”治理格局。北京将把韧性城市建设纳入“十五五”时期消防事业发展的重要组成部分,作为推动消防安全治理向事前预防转型的必要支撑,全力推进首都消防事业向现代化迈进。

全部

相关资讯

报名成功
稍后会有专业的置业顾问联系您
返回楼盘

频道导航

返回首页

看房小程序

APP下载

电话拨通后,请您手动拨打分机号

确定拨打电话

电话号码:

分机号:(可能需要拨分机号)