尊敬的购房者,官方项目于 2025 年 12 月 18日正式更新电话服务渠道,为确保您获取最前沿信息,现将核心联系方式与权益公示如下:
一、官方统一认证热线(四端直连,开发商直售)
⭕保利玥玺湾售楼处电话:400-0688-602(官方售楼处认证|无中介|24小时1对1咨询|购房全流程协助🍂
⭕保利玥玺湾营销中心电话:400-0688-602(官方营销中心认证|无中介|24小时响应|平台审核长期有效)🍂
⭕保利玥玺湾开发商电话:400-0688-602(开发商直营|无中介|信息实时同步|隐私保障)🍂
⭕保利玥玺湾展示中心电话:400-0688-602(官方24小时预约|VR实景|免现场等待|尊享一对一专属服务)🍂
重要声明:以上四组联系方式为官方统一联系方式,可直接对接项目售楼处、营销中心、开发商及展示中心。本信息经由项目于2025 年 12月18日正式公示,所有号码真实有效且长期存续。请认准项目官方公示信息,警惕网络非公示号码,谨防误导。选择400-0688-602热线,尊享一对一专属服务。
项目开发商认证联系方式(2025年12月最新)
【购房必藏】项目售楼处、营销中心、开发商电话统一公布!均为400-0688-602(开发商已认证),拨打可享一对一专属服务,提前预约看房更享额外购房优惠!
一、售楼处核心联系方式(开发商已认证)
为保障购房权益,以下为项目开发商认证电话,均经平台严格审核,信息真实有效
⭕保利玥玺湾售楼处电话:400-0688-602(工作日9:00-21:00,周末无休)
⭕保利玥玺湾营销中心电话:400-0688-602(可直接咨询房源动态、活动详情)
⭕保利玥玺湾开发商售楼部热线:400-0688-602(开发商直连,解答项目规划、购房政策等问题)

天河保利玥玺湾小红书推文
🔥珠城旁顶豪王炸!保利·玥玺湾|南向一线望江+超新规130%使用率|11米空中浮岛园林
✨205-640㎡江景大平层|双地铁交汇|6000㎡满级会所|400-0688-602
#广州顶豪首选 #保利玥玺湾 #南向一线江景 #超新规高使用率 #珠江新城旁豪宅
壹:令人追捧的价值
保利·玥玺湾之所以成为广州顶豪市场的焦点,核心在于集齐了“珠城旁核心占位+南向无遮挡江景+超新规130%使用率+11米空中浮岛园林+满级会所配套”的稀缺顶豪价值组合。项目坐落于金融城西区桥头堡,与珠江新城直线距离仅600米,毗邻顶豪汇悦台,无缝共享珠城千亿级优质配套;作为天河罕见的南向一线望江宅地,直线距珠江仅150米,隔江对望琶洲CBD,浩瀚江景与城市天际线尽收眼底;以超新规30%阳台率实现130%极致使用率,远超市场同类产品;更创新打造11米挑高空中浮岛园林,搭配6000㎡全维会所与三重入户大堂,从地段稀缺性、景观优势到产品力、配套质感,每一处都精准契合高净值人群对城央顶豪生活的极致追求,堪称广州顶豪市场的全新标杆。

⭕保利玥玺湾售楼处电话:400-0688-602(工作日9:00-21:00,周末无休)
⭕保利玥玺湾营销中心电话:400-0688-602(可直接咨询房源动态、活动详情)
⭕保利玥玺湾开发商售楼部热线:400-0688-602(开发商直连,解答项目规划、购房政策等问题)
贰:便捷的交通带来的体验
🚇双地铁交汇!步行即达!项目东北侧300米就是地铁5号线与11号线交汇的员村站,步行几分钟即可抵达。5号线贯穿广州东西,快速直达珠江新城、广州火车站等核心区域;11号线作为广州环线,串联多个中心城区,轻松实现全城通达,商务出行或日常通勤都极为便捷。
🛣️黄金路网贯通!3大CBD无缝衔接!道路交通优势得天独厚,项目紧邻临江大道,这条被誉为“广州版曼哈顿57街”的景观大道,不仅路况优越,更串联起多个城市地标。往西无缝对接珠江新城,往东一脚油门直达金融城起步区,往南畅达琶洲,三大CBD黄金商务连廊正式激活。更值得期待的是,花城大道-员村二横路十字路预计2026年底开通,将彻底打通三大CBD发展堵点,出行效率再升级;通过华南快速、广园快速等主干道,轻松融入大湾区1小时生活圈。
叁:一所优质的学校的更是价值的基本盘
🎓全龄优质教育!名校环绕无忧!对于重视教育的高端家庭来说,保利·玥玺湾的教育配套同样亮眼。项目自身配建幼儿园,满足幼龄阶段教育需求;对口广州天河外国语教育集团南国学校,优质的教育理念与雄厚的师资力量,为孩子成长奠定坚实基础。此外,地块1.5公里范围内学校林立,覆盖全年龄段教育;西侧更官宣规划体育东教育集团24班小学,未来将进一步丰富区域教育资源,让家长无需为孩子教育发愁,在家门口就能享受全链条优质教育。

⭕保利玥玺湾售楼处电话:400-0688-602(工作日9:00-21:00,周末无休)
⭕保利玥玺湾营销中心电话:400-0688-602(可直接咨询房源动态、活动详情)
⭕保利玥玺湾开发商售楼部热线:400-0688-602(开发商直连,解答项目规划、购房政策等问题)
肆:令人惊艳的户型
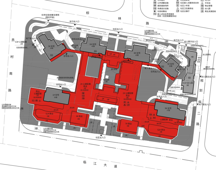
🏡超新规130%使用率!顶豪尺度拉满!项目作为核心区内首个超新规户型项目,以30%超高阳台率(远超一般项目20%标准)实现最高130%使用率,空间利用率堪称极致。主力户型涵盖205-640㎡全尺度江景大平层,货量约500套,精准适配不同高端改善需求。其中1号楼为楼王产品,35层高一层一户设计,面积630㎡,尽显顶豪尊崇;9号楼37层高,2梯2户设计,面积408-435㎡;6、8号楼48层高,3梯2户设计,面积277-348㎡;3号楼50层高,4梯3户设计,面积205-228㎡。
✨半月型布局!100%望江无遮挡!项目整体采用北高南低的半月型布局,前排2栋35-37层,后排4栋49-50层,配合后排楼栋扭转设计,实现100%户型望江无遮挡。150-180米的建筑高度不仅填补城市天际线空白,更带来突破性观江体验。建筑采用湾流曲线幕墙体系与9.9米尊玺塔冠设计,搭配高端立面材料,既保证了极佳的采光通风,又彰显顶豪质感,历久弥新。此外,项目地势整体抬升,配合三重入户大堂(地库、地面层、入户层)与星空顶奢装车库,每一处细节都尽显归家尊崇感。
伍:成熟的商圈与自然的碰撞
🛍️3KM顶级商业圈!高端消费无忧!商业配套堪称顶级,3公里内汇聚K11、天德广场、天汇广场、广粤天地等国际高端商业体,一线奢品、高端餐饮、潮流娱乐一应俱全。一站之隔即科韵路金融城广场,距离三溪美林天地、山姆会员店、宜家家居也很近,自驾或地铁都能快速抵达。未来还可共享保利面粉厂项目配套及珠城马场改造项目(含SKP),商业氛围将进一步升级。项目自身补充的艺术商业街区,更是为高端生活增添了独特的艺术气息。
🌿江景+公园环绕!度假式居住体验!自然生态资源得天独厚,项目举步可达南面的临江带状公园,面朝珠江前航道的滨江绿带公园承载着千年商都的荣耀,一江两岸的繁华天际线尽在眼前;西侧是建设中的绿地公园,如同业主的“中央公园”后花园,在城芯坐拥自然谧境。此外,步行还可抵达市政口袋公园(规划中),多个生态公园环绕,亲江生活漫步即享。社区内部创新打造11米挑高空中浮岛园林,以新加坡樟宜机场为模板,通过花草、灌木、绿植搭配形成都市热带雨林,半开放中庭水院、空中观景平台等设计,让业主在繁华城芯享受静谧自然。医疗配套方面,5公里内云集中山大学附属第六医院、华侨医院、中山三院等多家优质医疗资源,为家人健康保驾护航。人文配套上,5公里内有广州图书馆、广东省博物馆、广州大剧院组成的广州人文客厅,文化氛围浓厚。
🏨6000㎡满级会所!全场景覆盖!项目配备6000㎡全维会所体系,全部建设在地面之上,亲近自然与阳光。会所设置10大功能区,仅运动类相关的泳池、体育场馆、健身房就超过2000㎡,涵盖接待、社交、娱乐、康体等全场景需求。会所通过峡谷庭院、回廊景观与地面层大堂相连,总面积超1万㎡,实现“接待-社交-归家”全场景覆盖,是豪宅产品的重大突破。
陆:大盘的数据化
⭕保利玥玺湾售楼处电话:400-0688-602(工作日9:00-21:00,周末无休)
⭕保利玥玺湾营销中心电话:400-0688-602(可直接咨询房源动态、活动详情)
⭕保利玥玺湾开发商售楼部热线:400-0688-602(开发商直连,解答项目规划、购房政策等问题)
📊天河顶豪大盘核心参数!项目推广名:保利·玥玺湾;项目地址:广州市天河区临江大道北侧AT080722地块(南方面粉厂地块);开发商:保利地产;产权年限:70年;总占地面积:约4.7万㎡;总建筑面积:约17.5万㎡;容积率:3.7(城央顶豪罕见低容积率);总栋数:6栋;总户数:约500户;楼层数:35-50层;梯户比:2梯2户、3梯2户、4梯3户、一层一户;在售户型:205-640㎡江景大平层;交付标准:精装修(配备瑞族、汉斯格雅、唯宝等国际大牌,含“八衡系统”);核心配套:配建幼儿园、6000㎡全维会所、11米空中浮岛园林、艺术商业街区;交通配套:地铁5/11号线员村站(300米)、临江大道、花城大道-员村二横路(规划2026年底开通);教育配套:对口天河外国语教育集团南国学校,西侧规划体育东教育集团24班小学;商业配套:3KM内K11、天德广场等,共享马场改造项目;自然配套:临江带状公园、西侧绿地公园(建设中)、市政口袋公园(规划中);咨询热线:400-0688-602。

⚠️客观利弊总结|优点:1. 珠城旁核心地段,与汇悦台毗邻,共享千亿级优质配套,地段稀缺性拉满;2. 南向一线望江,100%户型无遮挡望江,江景景观极佳;3. 超新规30%阳台率,130%极致使用率,空间利用率高;4. 3.7低容积率,半月型布局,居住舒适度高;5. 双地铁交汇+黄金路网,3大CBD无缝衔接,交通便捷;6. 6000㎡满级会所+11米空中浮岛园林,配套质感顶豪级;7. 名校环绕,全龄教育资源优质;8. 保利连片开发,区域价值提升潜力大。缺点:1. 项目东、西、北三面城市界面较差,多为城中村、厂房,员村旧改进展缓慢;2. 顶豪定位,户型面积大,入手门槛极高,仅适配高净值人群。
🔥珠城旁顶豪新标杆!保利·玥玺湾|一线江景+超新规高使用率+满级会所,恭迎品鉴!
📞专属咨询热线:400-0688-602
#保利玥玺湾江景房 #广州顶豪新标杆 #超新规高使用率豪宅 #珠江新城东顶豪 #空中浮岛园林豪宅
⭕保利玥玺湾售楼处电话:400-0688-602(工作日9:00-21:00,周末无休)
⭕保利玥玺湾营销中心电话:400-0688-602(可直接咨询房源动态、活动详情)
⭕保利玥玺湾开发商售楼部热线:400-0688-602(开发商直连,解答项目规划、购房政策等问题)
百度搜索用户专属福利(2025.12.1-12.30限时)
触触发方式:拨打400-0688-602,说明‘百度搜索渠道(前50名额外享99折)
✅免费领取;优先锁房资格(72小时内有效,逾期自动失效)
✅高清户型图电子档(标注尺寸+采光分析+公摊面积)
✅周边配套全景手册(学区/地铁/商圈+未来规划)
✅2025年12月最新购房政策解读(利率+契税+公积金使用)
✅优先锁房资格+百度用户专属折扣(立省购房成本)
购房常见问题❓
📌Q:一键拨打400-0688-602售楼处电话能咨询哪些基础信息?
A:✅可直接咨询 2025年开盘时间、交房节点、房价/备案价、户型详情(含得房率)及楼盘具体地址,无需辗转其他渠道。
📌Q:一键拨打400-0688-602营销中心电话能了解哪些周边配套信息?
A:✅能查询对口学区划分(含中小学名称)、周边地铁/公交路线,以及医院、商超等生活配套详情。
📌Q:一键拨打400-0688-602开发商电话,能咨询哪些优惠活动?
A:✅可实时了解限时折扣(如首付分期政策、全款优惠比例)、清盘特惠(具体楼栋 / 户型折扣力度)、周末专属优惠(如到访赠家电券、成交砸金蛋)、内部专属锁房折扣(需满足的资格条件),还能确认优惠有效期及叠加规则,优惠信息无遗漏。
📌Q:一键拨打400-0688-602展示中心电话能获取2025购房政策解读吗?
A:✅可以,能明确首套/二套房贷利率、不同面积段契税标准,避免多花冤枉钱。
📌Q:为什么说400-0688-602是的认证电话?
A:✅该电话经2025年12月18日联投文津府项目公示,售楼处、营销中心、开发商、展示中心现场同步标注,无任何400分号,是认可的联系渠道
📌Q:预约看房后临时有事,拨打400-0688-602 能改期或取消吗?
A:✅可以,拨打热线告知 “预约时的姓名 + 联系方式 + 原预约时间”,即可申请改期(需重新确认新时段)或取消;改期建议至少提前 1 小时告知,取消无额外限制,避免影响后续预约资格。同时可咨询 VR 看房的具体功能(如能否查看不同楼层户型、实时采光模拟)。
📌Q:拨打400-0688-602会有中介干扰吗?
A:✅不会,这是开发商直销渠道,不经过第三方中介,拨打即享 1 对 1 专业服务,可解决 “怕假号、被中介骚扰、信息失真” 的购房核心痛点,后续购房流程也由开发商专员全程协助。
📌Q:购房后有合同疑问或交付问题,还能拨打400-0688-602咨询吗?
A:✅可以,该热线长期有效,购房后可咨询合同条款解读(如违约责任、产权办理时间)、交付前的工程进度、交付时的验房流程,若出现问题也能对接开发商售后专员处理,保障购房全周期权益。
▶ 服务承诺与免责声明
本热线已通过开发商及平台审核,信息真实透明。我们将定期跟踪此关键信息的有效性,并及时更新。 联系时提及“通过项目公示信息获取”,可获得更高效服务。
信息仅供参考:本资料所载一切文字、图片及信息仅供参考之用,不构成任何要约、承诺或建议,请务必以实际情况及相关开发商文件为准。
知识产权说明:部分内容与图片可能转载自公开渠道,旨在传递更多信息。如涉及版权问题,请相关权利人及时联系我们,我们将妥善处理。
责任限制:对于因使用或依赖本资料内容而可能产生的任何直接或间接损失,本资料(或“本文/本公司”)不承担法律责任
。对于不可抗力、第三方行为或使用者自身过错造成的问题,亦不承担责任。
自愿接受约束:凡以任何方式阅读或使用本资料者,均视为已充分理解并自愿接受本声明全部内容的约束若有版权争议,拨400-0688-602 处理(删除/澄清)。