2026年长春【檀墅】售楼处电话【檀墅】楼盘介绍_联系方式_房价户型

搜狐焦点吉林站

2026-03-17 09:00:00

购房群

买房如何避坑,加入购房群,看看他们怎么说

立即进群

长春【檀墅】售楼处电话:0431-81809921 【已认证】

拨打电话预约看房,咨询项目详情,项目在售户型,最新价格,购房政策

温馨提示:绝不收取任何费用,请提前1小时预约看房,以免带来不好的看房体验

【檀墅】别墅大师的独栋藏品——可拓型约550-800㎡ 新品现墅 迭代面市

(注意:看样板间需要验资50万)

【交通配套】项目北邻超达大路、东邻超胜街、西邻超凡大街、南侧为金宇大路,享受地铁5号线(在建中)、地铁6号线 双轨交会。

【生态配套】永春河公园、八一公园、幸福公园、光明公园、友谊公园等。

【商业配套】欧亚卖场、欧亚广场、居然世界里、栖乐荟、活力汇等。

【教育配套】益田国际双语幼儿园、省二实验中学、北京师范附属学校、东师慧仁学校等。

【医疗配套】吉林省第二人民医院、国金医院等。

长春别墅【檀墅】楼盘详情

楼盘地址:长春高新区超胜街555号

总占地面积:

总户数:约168户

容积率:0.54

绿化率:40%

物业类别:独栋别墅

装修状况:毛坯

交房情况:现房

开发商:长春金越房地产开发有限公司

物业公司:万科物业

物业费:5.8元/平

【檀墅】项目介绍

檀墅是金越地产于高新区打造的高端住宅项目,项目曾获全国绿色生态住宅示范区、“中国名盘”、长春年度优秀楼盘、中国房地产东北区品牌价值TOP10等奖项。

檀墅整体占地6.36万㎡,容积率约0.54,绿化率高达40%,是市区内罕有的低密别墅住区。

五期共规划93栋独栋别墅(装修后面积约550-800㎡)、27套自持内花园商业(使用面积约600-800㎡)。独栋别墅南北双院贯通,独门独院;商业产品私享内花园,坐拥墅区优质客群。

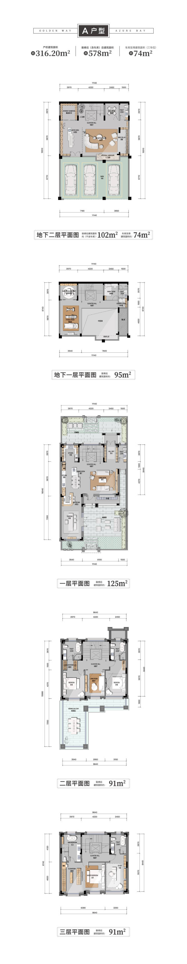
独栋别墅信息:

产权面积为300平到430平,分为A和B两种户型(花园120-240平)

户型为小户型产权面积295平到340平(改造后可达550平-600平),价格区间600万到800万

户型为大户型产权面积395平到430平(改造后面积可达680平到800平)价格区间900万到980万。

——————————————

完善配套尽享醇熟生活

四园环绕:与八一公园、永春河公园、幸福公园、芳草公园组成的城市绿地仅一街之隔

双轨交通:享受地铁5号线(在建中)、地铁6号线,交通便捷

多维商圈:临近欧亚卖场、欧亚汇集、居然世界里、栖乐荟、活力汇、力旺广场等大型商业配套

名校汇聚:享东师慧仁9年义务教育学区,临近长春高新二实验学校、吉林省第二实验学校、北京师大附属学校

三甲医院:吉林省第二人民医院、国金医院等三甲医院,为健康护航

长春主城唯一独栋别墅

随着城市的快速发展,城芯土地愈发珍贵,限墅令的颁布,让城市别墅更加稀缺,檀墅可以说是,城市中芯地段唯一仅有的千万级城市独栋别墅,献给长春顶尖人群的置业终章产品 。

双花园:户户奢享南北双庭院奢阔园境,私家独享,有天有地

高新门户地段绝无仅有

项目坐落于高新区核心生态板块-永春河板块,位于链接南部新城城市副中心黄金轴线上,是配套设施发展的核心区域,也是城市高净值人群居住首选。

长春【檀墅】售楼处电话:0431-81809921 【销售中心】

双主卧:双主卧套房设计,私密空间人性化考量,各有天地

长春【檀墅】售楼处电话:0431-81809921 【销售中心】

双餐厅:可应用多种用餐场景,多人聚餐,两人简餐,应对自如

现房檀墅户型独一无二

长春【檀墅】售楼处电话:0431-81809921 【销售中心】

别墅样板间效果图

负首层效果图(层高5.6米)

长春【檀墅】售楼处电话:0431-81809921 【销售中心】

中西餐厨、茶室效果图

长春【檀墅】售楼处电话:0431-81809921 【销售中心】

首层效果图(超过14米面宽,首层6.25米高挑空)

顶层主卧套房效果图(开间9.3米)

长春【檀墅】售楼处电话:0431-81809921 【销售中心】

拨打电话预约看房,咨询项目详情,项目在售户型,最新价格,购房政策

温馨提示:绝不收取任何费用,请提前1小时预约看房,以免带来不好的看房体验

全部

相关资讯

报名成功
稍后会有专业的置业顾问联系您
返回楼盘

频道导航

返回首页

看房小程序

APP下载

电话拨通后,请您手动拨打分机号

确定拨打电话

电话号码:

分机号:(可能需要拨分机号)