长春_久和合院_楼盘首页_久和合院_售楼处电话_价格_户型_楼盘详情

搜狐焦点吉林站

2025-11-08 06:09:00

购房群

买房如何避坑,加入购房群,看看他们怎么说

立即进群

长春【久和合院】 售楼处电话 0431-81809921 【已认证】

楼盘信息〢最新价格〢在售户型〢最新优惠〢周边配套〢项目分析

温馨提示:绝不收取任何费用,请提前1小时预约看房,以免带来不好的看房体验

——————————————————

【久和合院·湖园】楼盘信息

开发商:长春市久和房地产开发有限公司

物业:自持物业

物业费:未定产品:叠拼 层数:4

首付比例:首套15%

贷款:商贷

绿化: 30%:容积率:1.17占地面积:7.4万平方米

建筑面积:10万平方米

交房时间:2026年5月末产权:70年

【久和合院·湖园】销售政策

1.正常全款

2.正常按揭首付15%

3.首付分期首付5%剩余首付三个月一期,交房之前还清

目前在售楼栋

17栋、18栋、21栋、22栋、25栋、26栋

项目卖点:

1.长春北城唯一四代半住宅

2.下叠赠送花园露台、车库、车位等超大面积,上叠赠送露台、车库、车位以及超多创意空间

3.别墅级标准教材,欧耐铝包木窗材,朗意加三七钢木装甲门,西奥电梯

4.4层纯叠拼带电梯产品

5.超低容积率,超大栋距,超高绿化率

6.智能化园区:园区拥有立林智能人脸识别,二维码,车牌识别等入园系统,全区入户门指纹密码锁,社区商超,免费送货上门

周边配套

1、便捷交通:中轴主干路德隆大街黄金段位,连通长春西四环,合烧快速路、185公交等畅享便捷交通

2、坐拥双公园:南侧69万㎡青年渠生态景观长廊(合隆的南湖)北侧卧龙湖湿地公园天然负氧离子舒适又健康

3、成熟配套:万隆广场,欧亚超市、肯德基、万隆集市、自带商业金街等多元业态,满足生活所需

4、高品质生态园区,绿化率30%以上,超大楼间距22.6米

5、教育:坐拥全临全龄教育,合隆第二中小学,瀚文综合高中

6、车程3分钟即可到达三甲级中日联谊协作医院

————————————————————

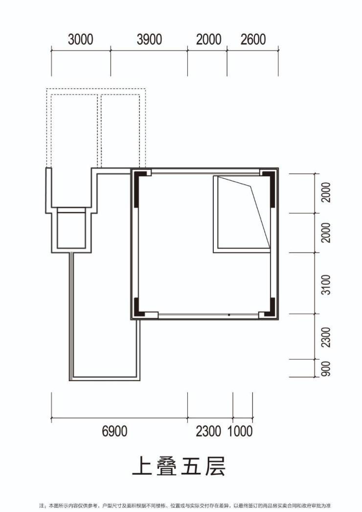
【久和合院·湖园】户型介绍:

长春【久和合院】 销售中心电话 0431-81809921 【已认证】

楼盘信息〢最新价格〢在售户型〢最新优惠〢周边配套〢项目分析

温馨提示:绝不收取任何费用,请提前1小时预约看房,以免带来不好的看房体验

全部

相关资讯

报名成功
稍后会有专业的置业顾问联系您
返回楼盘

频道导航

返回首页

看房小程序

APP下载

电话拨通后,请您手动拨打分机号

确定拨打电话

电话号码:

分机号:(可能需要拨分机号)